Property
Account |
| Property ID: | 7797 | Abbreviated Legal Description: | BROWNS LOT 4 BLK 1 |
| Parcel Number: | 360721520104 | Agent Code: | |
| Type: | Real | | |
| Tax Area: | 1 - OL-140-F | Land Use Code | 11 |
| Open Space: | N | DFL | N |
| Historic Property: | N | Remodel Property: | N |
| Multi-Family Redevelopment: | N | | |
| Township: | 7 | Section: | 21 |
| Range: | 36 |
Location |
| Address: | 1017 UNIVERSITY ST WA 99362 | Mapsco: | |
| Neighborhood: | A-SFR | Map ID: | |
| Neighborhood CD: | 513011 |
Owner |
| Name: | MAKUS KATHERINE DALE | Owner ID: | 65548 |
| Mailing Address: | 1017 UNIVERSITY ST WALLA WALLA, WA 99362 | % Ownership: | 100.0000000000% |
| | | Exemptions: | |
Taxes and Assessment Details
Values
| (+) Improvement Homesite Value: | + | $0 | |
| (+) Improvement Non-Homesite Value: | + | $278,080 | |
| (+) Land Homesite Value: | + | $0 | |
| (+) Land Non-Homesite Value: | + | $31,250 | |
| (+) Curr Use (HS): | + | $0 | $0 |
| (+) Curr Use (NHS): | + | $0 | $0 |
| | | -------------------------- | |
| (=) Market Value: | = | $309,330 | |
| (–) Productivity Loss: | – | $0 | |
| | | -------------------------- | |
| (=) Subtotal: | = | $309,330 | |
| (+) Senior Appraised Value: | + | $0 | |
| (+) Non-Senior Appraised Value: | + | $309,330 | |
| | | -------------------------- | |
| (=) Total Appraised Value: | = | $309,330 | |
| (–) Senior Exemption Loss: | – | $0 | |
| (–) Exemption Loss: | – | $0 | |
| | | -------------------------- | |
| (=) Taxable Value: | = | $309,330 | |
Taxing Jurisdiction
| Owner: | MAKUS KATHERINE DALE | | |
| % Ownership: | 100.0000000000% | | |
| Total Value: | $309,330 | | |
| Tax Area: | 1 - OL-140-F |
| CERFD | CURRENT EXPENSE REFUND 010 | 0.0000000000 | $309,330 | $309,330 | $0.00 | | |
| CURREXP | CURRENT EXPENSE 010 | 1.0175366760 | $309,330 | $309,330 | $314.75 | | |
| HUMNSERV | HUMAN SERVICES 119 | 0.0250000000 | $309,330 | $309,330 | $7.73 | | |
| SLDREL | SOLDIERS RELIEF 121 | 0.0155990005 | $309,330 | $309,330 | $4.83 | | |
| EMERGSER | EMS 147 | 0.3792580840 | $309,330 | $309,330 | $117.32 | | |
| EMSRFD | EMS REFUND 147 | 0.0000000000 | $309,330 | $309,330 | $0.00 | | |
| PORTRFD | PORT REFUND 640 | 0.0000000000 | $309,330 | $309,330 | $0.00 | | |
| PORTWWGEN | PORT OF WW 640 | 0.2460186015 | $309,330 | $309,330 | $76.10 | | |
| SD140BOND | SD #140 BOND 764 | 0.8342371393 | $309,330 | $309,330 | $258.05 | | |
| SD140GEN | SD #140 GENERAL 760 | 2.0646500647 | $309,330 | $309,330 | $638.66 | | |
| ST2 | STATE SCHOOL PART 2 600 | 0.8131451643 | $309,330 | $309,330 | $251.53 | | |
| STATESCHL | STATE SCHOOL 600 | 1.5158548041 | $309,330 | $309,330 | $468.90 | | |
| STREFUND | STATE REFUND LEVY 603 | 0.0000000000 | $309,330 | $309,330 | $0.00 | | |
| CWWBOND | C OF WW BOND 643 | 0.2760494372 | $309,330 | $309,330 | $85.39 | | |
| CWWGEN | CITY OF WW 631 | 1.6100204973 | $309,330 | $309,330 | $498.03 | | |
| CWWRFD | CITY OF WALLA WALLA REFUND 631 | 0.0000000000 | $309,330 | $309,330 | $0.00 | | |
| | Total Tax Rate: | 8.7973694689 | | | | | |
| | | | | Taxes w/Current Exemptions: | $2,721.29 | | |
| | | | | Taxes w/o Exemptions: | $2,721.29 | | |
Improvement / Building
| Improvement #1: | RESIDENTIAL | State Code: | 11 | 1052.0 sqft | Value: | $278,080 |
| Exterior Wall: | SIDING | Heating/Cooling: | WARM & COOLED AIR | | Number of Bathrooms: | 2 | Number of Bedrooms: | 2 | | Plumbing: | 10 | Roof Covering: | COMP SHINGLE |
|
| | Type | Description | Class CD | Sub Class CD | Year Built | Area |
| | MA | Main Area | 1 | 30 | 1929 | 1052.0 |
| | SI1 | SITE IMPROVEMENT | 1 | 30 | 0 | 2.5 |
| | BASE | BASEMENT | 1 | 30 | 1929 | 884.0 |
| | BPF | BASEMENT -PARTITIONED FINISH | 1 | 30 | 1929 | 884.0 |
| | DTG | Detached Garage | 1 | 30 | 1929 | 216.0 |
| | RPS | PORCH W/STEPS,ROOF | 1 | 30 | 1929 | 25.0 |
| | WOD | Wood Deck | 1 | 30 | 1929 | 156.0 |
| | S1F | Single One Story Fireplace | 1 | 30 | 1929 | 1.0 |
Sketch
Property Image
Land
| 1 | RES 1 | Converted: Residential | 0.1148 | 5000.00 | 0.00 | 0.00 | 1.00 | $31,250 | $0 |
Roll Value History
| 2025 | N/A | N/A | N/A | N/A | N/A |
| 2024 | $510,810 | $50,000 | $0 | $560,810 | $560,810 |
| 2023 | $278,080 | $31,250 | $0 | $309,330 | $309,330 |
| 2022 | $278,080 | $31,250 | $0 | $309,330 | $309,330 |
| 2021 | $222,460 | $31,250 | $0 | $253,710 | $253,710 |
| 2020 | $177,970 | $31,250 | $0 | $209,220 | $209,220 |
| 2019 | $177,970 | $31,250 | $0 | $209,220 | $209,220 |
| 2018 | $136,900 | $31,250 | $0 | $168,150 | $168,150 |
| 2017 | $147,580 | $20,000 | $0 | $167,580 | $167,580 |
| 2016 | $140,550 | $20,000 | $0 | $160,550 | $160,550 |
| 2015 | $133,860 | $20,000 | $0 | $153,860 | $153,860 |
| 2014 | $125,100 | $20,000 | $0 | $145,100 | $145,100 |
| 2013 | $125,100 | $20,000 | $0 | $145,100 | $145,100 |
| 2012 | $138,300 | $20,000 | $0 | $0 | $0 |
| 2011 | $138,300 | $20,000 | $0 | $0 | $0 |
| 2010 | $130,800 | $20,000 | $0 | $0 | $0 |
| 2009 | $147,600 | $20,000 | $0 | $0 | $0 |
| 2008 | $125,700 | $20,000 | $0 | $0 | $0 |
| 2007 | $125,700 | $20,000 | $0 | $0 | $0 |
| 2006 | $82,000 | $10,000 | $0 | $0 | $0 |
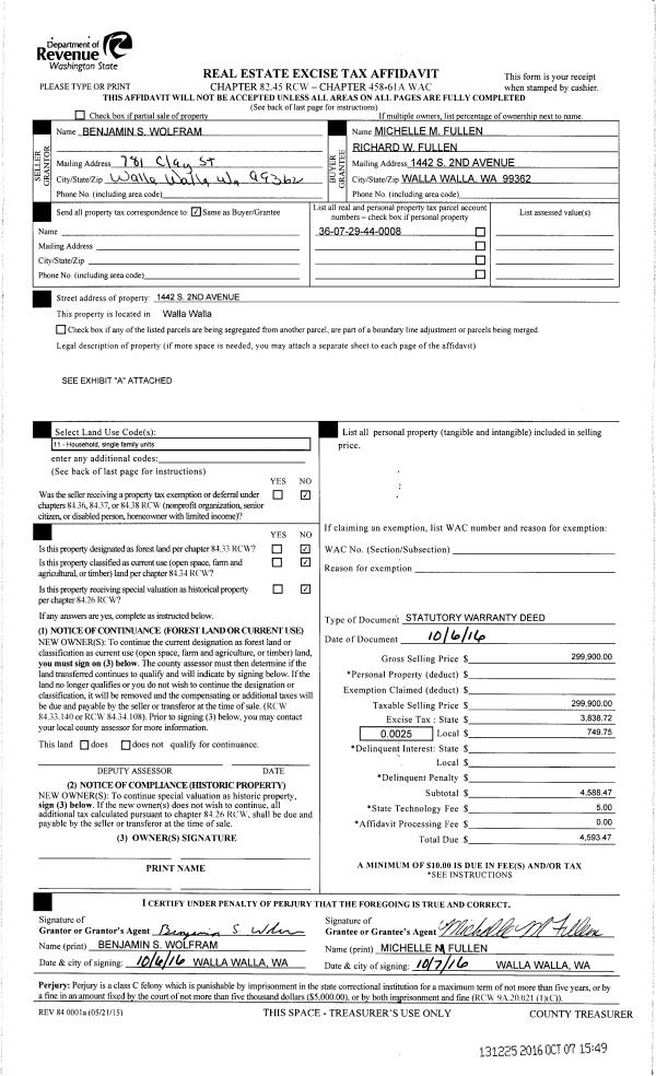
Deed and Sales History
| 1 | 07/16/2019 | SWD | STATUTORY WARRANTY DEED | LOVRAK JON G | MAKUS KATHERINE DALE | | | $255,500.00 | 137295 | 2019-05168 |
| 2 | 10/26/2018 | QCD | QUIT CLAIM DEED | LOVRAK WENDI L | LOVRAK JON G | | | | 135816 | 2018-08883 |
| 3 | 10/26/2018 | SWD | STATUTORY WARRANTY DEED | BROWN CHELAN K | LOVRAK JON G | | | $240,000.00 | 135815 | 2018-08882 |
| 4 | 07/15/1998 | WARRANTY D | WARRANTY DEED | | | | | $93,750.00 | 90872 | 2709-807956 |
Payout Agreement
| No payout information available.. |