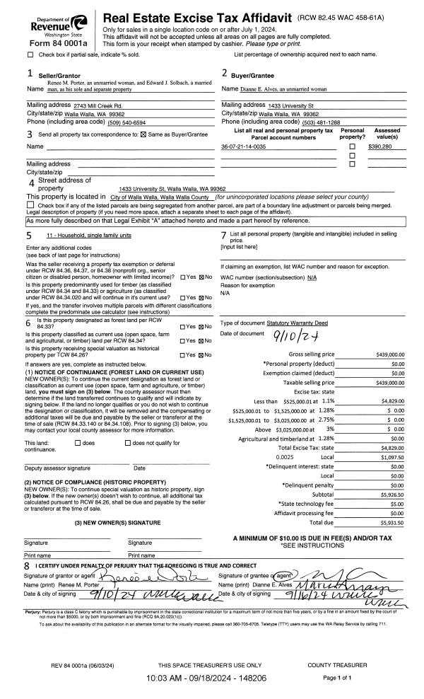
Property
Account |
| Property ID: | 7775 | Abbreviated Legal Description: | GREEN PARK LOTS 10 & 11 & NELY 15' OF LOT 9 BLK 23 |
| Parcel Number: | 360721512310 | Agent Code: | |
| Type: | Real | | |
| Tax Area: | 1 - OL-140-F | Land Use Code | 11 |
| Open Space: | N | DFL | N |
| Historic Property: | N | Remodel Property: | N |
| Multi-Family Redevelopment: | N | | |
| Township: | 7 | Section: | 21 |
| Range: | 36 |
Location |
| Address: | 1229 BONSELLA ST WA 99362 | Mapsco: | |
| Neighborhood: | G-SFR | Map ID: | |
| Neighborhood CD: | 514011 |
Owner |
| Name: | HARLEY CHARLES & ELLEN LIVING TRUST | Owner ID: | 70851 |
| Mailing Address: | 1229 BONSELLA ST WALLA WALLA, WA 99362 | % Ownership: | 100.0000000000% |
| | | Exemptions: | |
Taxes and Assessment Details
Values
| (+) Improvement Homesite Value: | + | $0 | |
| (+) Improvement Non-Homesite Value: | + | $504,020 | |
| (+) Land Homesite Value: | + | $0 | |
| (+) Land Non-Homesite Value: | + | $75,980 | |
| (+) Curr Use (HS): | + | $0 | $0 |
| (+) Curr Use (NHS): | + | $0 | $0 |
| | | -------------------------- | |
| (=) Market Value: | = | $580,000 | |
| (–) Productivity Loss: | – | $0 | |
| | | -------------------------- | |
| (=) Subtotal: | = | $580,000 | |
| (+) Senior Appraised Value: | + | $0 | |
| (+) Non-Senior Appraised Value: | + | $580,000 | |
| | | -------------------------- | |
| (=) Total Appraised Value: | = | $580,000 | |
| (–) Senior Exemption Loss: | – | $0 | |
| (–) Exemption Loss: | – | $0 | |
| | | -------------------------- | |
| (=) Taxable Value: | = | $580,000 | |
Taxing Jurisdiction
| Owner: | HARLEY CHARLES & ELLEN LIVING TRUST | | |
| % Ownership: | 100.0000000000% | | |
| Total Value: | $580,000 | | |
| Tax Area: | 1 - OL-140-F |
| CERFD | CURRENT EXPENSE REFUND 010 | 0.0000000000 | $580,000 | $580,000 | $0.00 | | |
| CURREXP | CURRENT EXPENSE 010 | 1.0175366760 | $580,000 | $580,000 | $590.17 | | |
| HUMNSERV | HUMAN SERVICES 119 | 0.0250000000 | $580,000 | $580,000 | $14.50 | | |
| SLDREL | SOLDIERS RELIEF 121 | 0.0155990005 | $580,000 | $580,000 | $9.05 | | |
| EMERGSER | EMS 147 | 0.3792580840 | $580,000 | $580,000 | $219.97 | | |
| EMSRFD | EMS REFUND 147 | 0.0000000000 | $580,000 | $580,000 | $0.00 | | |
| PORTRFD | PORT REFUND 640 | 0.0000000000 | $580,000 | $580,000 | $0.00 | | |
| PORTWWGEN | PORT OF WW 640 | 0.2460186015 | $580,000 | $580,000 | $142.69 | | |
| SD140BOND | SD #140 BOND 764 | 0.8342371393 | $580,000 | $580,000 | $483.86 | | |
| SD140GEN | SD #140 GENERAL 760 | 2.0646500647 | $580,000 | $580,000 | $1,197.50 | | |
| ST2 | STATE SCHOOL PART 2 600 | 0.8131451643 | $580,000 | $580,000 | $471.62 | | |
| STATESCHL | STATE SCHOOL 600 | 1.5158548041 | $580,000 | $580,000 | $879.20 | | |
| STREFUND | STATE REFUND LEVY 603 | 0.0000000000 | $580,000 | $580,000 | $0.00 | | |
| CWWBOND | C OF WW BOND 643 | 0.2760494372 | $580,000 | $580,000 | $160.11 | | |
| CWWGEN | CITY OF WW 631 | 1.6100204973 | $580,000 | $580,000 | $933.81 | | |
| CWWRFD | CITY OF WALLA WALLA REFUND 631 | 0.0000000000 | $580,000 | $580,000 | $0.00 | | |
| | Total Tax Rate: | 8.7973694689 | | | | | |
| | | | | Taxes w/Current Exemptions: | $5,102.48 | | |
| | | | | Taxes w/o Exemptions: | $5,102.48 | | |
Improvement / Building
| Improvement #1: | RESIDENTIAL | State Code: | 11 | 2393.0 sqft | Value: | $504,020 |
| Exterior Wall: | SIDING | Heating/Cooling: | WARM & COOLED AIR | | Number of Bathrooms: | 3 | Number of Bedrooms: | 3 | | Plumbing: | 12 | Roof Covering: | COMP SHINGLE |
|
| | Type | Description | Class CD | Sub Class CD | Year Built | Area |
| | MA | Main Area | 1 | 40 | 1940 | 2393.0 |
| | SI1 | SITE IMPROVEMENT | 1 | 40 | 1940 | 3.0 |
| | BASE | BASEMENT | 1 | 40 | 1940 | 2117.0 |
| | BPF | BASEMENT -PARTITIONED FINISH | 1 | 40 | 1940 | 1367.0 |
| | DTG | Detached Garage | 1 | 40 | 1940 | 504.0 |
| | RPO | OPEN PORCH W/ROOF | 1 | 40 | 1940 | 30.0 |
| | S1F | Single One Story Fireplace | 1 | 40 | 1940 | 1.0 |
| | D2F | Double 2 Story Fireplace | 1 | 40 | 1940 | 1.0 |
| | RESE | RES ELEVATOR | 1 | 40 | 1940 | 1.0 |
| | WOD | Wood Deck | 1 | 40 | 1940 | 176.0 |
| | CPC | COVERED CARPORT/PATIO | 1 | 40 | 1940 | 432.0 |
Sketch
Property Image
Land
| 1 | RES 1 | Converted: Residential | 0.3719 | 16200.00 | 0.00 | 0.00 | 1.00 | $75,980 | $0 |
Roll Value History
| 2025 | N/A | N/A | N/A | N/A | N/A |
| 2024 | $459,100 | $135,590 | $0 | $594,690 | $594,690 |
| 2023 | $504,020 | $75,980 | $0 | $580,000 | $580,000 |
| 2022 | $458,200 | $75,980 | $0 | $534,180 | $534,180 |
| 2021 | $416,540 | $75,980 | $0 | $492,520 | $492,520 |
| 2020 | $347,120 | $75,980 | $0 | $423,100 | $423,100 |
| 2019 | $347,120 | $75,980 | $0 | $423,100 | $423,100 |
| 2018 | $347,120 | $75,980 | $0 | $423,100 | $423,100 |
| 2017 | $319,660 | $48,700 | $0 | $368,360 | $368,360 |
| 2016 | $290,600 | $48,700 | $0 | $339,300 | $339,300 |
| 2015 | $290,600 | $48,700 | $0 | $339,300 | $339,300 |
| 2014 | $290,600 | $48,700 | $0 | $339,300 | $339,300 |
| 2013 | $290,600 | $48,700 | $0 | $339,300 | $339,300 |
| 2012 | $290,600 | $48,700 | $0 | $0 | $0 |
| 2011 | $290,600 | $48,700 | $0 | $0 | $0 |
| 2010 | $222,200 | $48,700 | $0 | $0 | $0 |
| 2009 | $252,300 | $48,700 | $0 | $0 | $0 |
| 2008 | $213,000 | $48,700 | $0 | $0 | $0 |
| 2007 | $213,000 | $48,700 | $0 | $0 | $0 |
| 2006 | $152,900 | $21,900 | $0 | $0 | $0 |
Deed and Sales History
| 1 | 12/29/2021 | QCD | QUIT CLAIM DEED | HARLEY CHARLES E & ELLEN LS | HARLEY CHARLES & ELLEN LIVING TRUST | | | $0.00 | 143172 | 2022-00015 |
| 2 | 02/16/1984 | WARRANTY D | WARRANTY DEED | | | | | $120,000.00 | 0 | 1428-401128 |
Payout Agreement
| No payout information available.. |