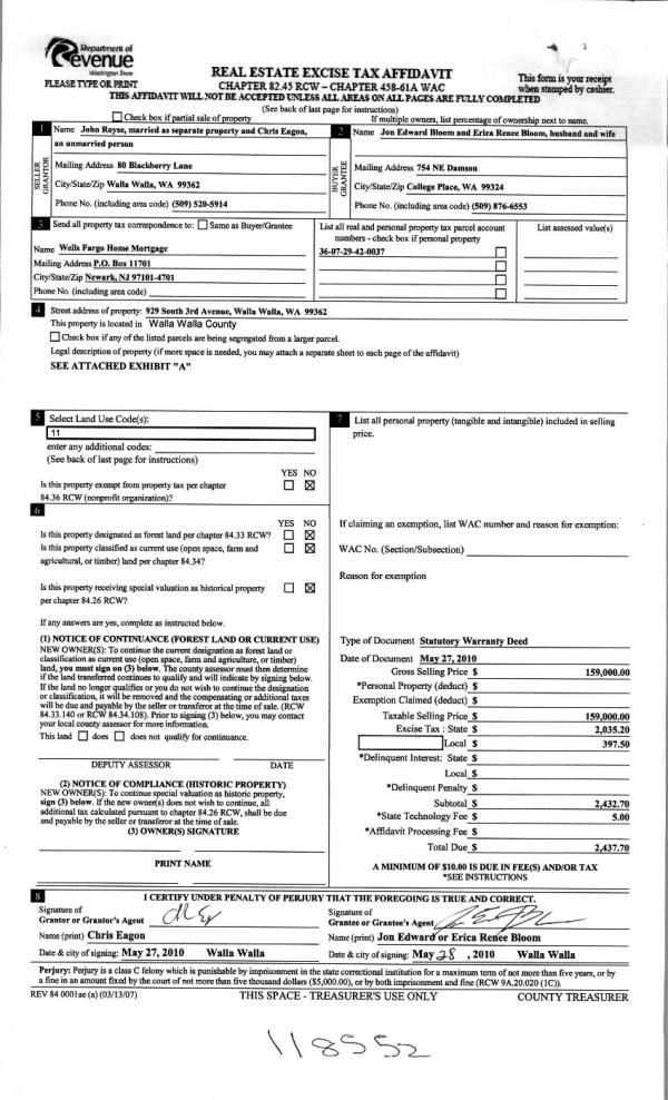
Property
Account |
| Property ID: | 7759 | Abbreviated Legal Description: | GREEN PARK TAX 10 BLK 21 |
| Parcel Number: | 360721512123 | Agent Code: | |
| Type: | Real | | |
| Tax Area: | 1 - OL-140-F | Land Use Code | 11 |
| Open Space: | N | DFL | N |
| Historic Property: | N | Remodel Property: | N |
| Multi-Family Redevelopment: | N | | |
| Township: | 7 | Section: | 21 |
| Range: | 36 |
Location |
| Address: | 1221 PORTLAND AVE WA 99362 | Mapsco: | |
| Neighborhood: | G-SFR | Map ID: | |
| Neighborhood CD: | 514011 |
Owner |
| Name: | MENLO PARK LLC | Owner ID: | 68879 |
| Mailing Address: | 1052 UNIVERSITY ST WALLA WALLA, WA 99362 | % Ownership: | 100.0000000000% |
| | | Exemptions: | |
Taxes and Assessment Details
Values
| (+) Improvement Homesite Value: | + | $0 | |
| (+) Improvement Non-Homesite Value: | + | $358,350 | |
| (+) Land Homesite Value: | + | $0 | |
| (+) Land Non-Homesite Value: | + | $60,900 | |
| (+) Curr Use (HS): | + | $0 | $0 |
| (+) Curr Use (NHS): | + | $0 | $0 |
| | | -------------------------- | |
| (=) Market Value: | = | $419,250 | |
| (–) Productivity Loss: | – | $0 | |
| | | -------------------------- | |
| (=) Subtotal: | = | $419,250 | |
| (+) Senior Appraised Value: | + | $0 | |
| (+) Non-Senior Appraised Value: | + | $419,250 | |
| | | -------------------------- | |
| (=) Total Appraised Value: | = | $419,250 | |
| (–) Senior Exemption Loss: | – | $0 | |
| (–) Exemption Loss: | – | $0 | |
| | | -------------------------- | |
| (=) Taxable Value: | = | $419,250 | |
Taxing Jurisdiction
| Owner: | MENLO PARK LLC | | |
| % Ownership: | 100.0000000000% | | |
| Total Value: | $419,250 | | |
| Tax Area: | 1 - OL-140-F |
| CERFD | CURRENT EXPENSE REFUND 010 | 0.0000000000 | $419,250 | $419,250 | $0.00 | | |
| CURREXP | CURRENT EXPENSE 010 | 1.0175366760 | $419,250 | $419,250 | $426.60 | | |
| HUMNSERV | HUMAN SERVICES 119 | 0.0250000000 | $419,250 | $419,250 | $10.48 | | |
| SLDREL | SOLDIERS RELIEF 121 | 0.0155990005 | $419,250 | $419,250 | $6.54 | | |
| EMERGSER | EMS 147 | 0.3792580840 | $419,250 | $419,250 | $159.00 | | |
| EMSRFD | EMS REFUND 147 | 0.0000000000 | $419,250 | $419,250 | $0.00 | | |
| PORTRFD | PORT REFUND 640 | 0.0000000000 | $419,250 | $419,250 | $0.00 | | |
| PORTWWGEN | PORT OF WW 640 | 0.2460186015 | $419,250 | $419,250 | $103.14 | | |
| SD140BOND | SD #140 BOND 764 | 0.8342371393 | $419,250 | $419,250 | $349.75 | | |
| SD140GEN | SD #140 GENERAL 760 | 2.0646500647 | $419,250 | $419,250 | $865.60 | | |
| ST2 | STATE SCHOOL PART 2 600 | 0.8131451643 | $419,250 | $419,250 | $340.91 | | |
| STATESCHL | STATE SCHOOL 600 | 1.5158548041 | $419,250 | $419,250 | $635.52 | | |
| STREFUND | STATE REFUND LEVY 603 | 0.0000000000 | $419,250 | $419,250 | $0.00 | | |
| CWWBOND | C OF WW BOND 643 | 0.2760494372 | $419,250 | $419,250 | $115.73 | | |
| CWWGEN | CITY OF WW 631 | 1.6100204973 | $419,250 | $419,250 | $675.00 | | |
| CWWRFD | CITY OF WALLA WALLA REFUND 631 | 0.0000000000 | $419,250 | $419,250 | $0.00 | | |
| | Total Tax Rate: | 8.7973694689 | | | | | |
| | | | | Taxes w/Current Exemptions: | $3,688.27 | | |
| | | | | Taxes w/o Exemptions: | $3,688.27 | | |
Improvement / Building
| Improvement #1: | RESIDENTIAL | State Code: | 11 | 1071.0 sqft | Value: | $358,350 |
| Exterior Wall: | VINYL | Heating/Cooling: | WARM & COOLED AIR | | Number of Bathrooms: | 2 | Number of Bedrooms: | 3 | | Plumbing: | 11 | Roof Covering: | COMP SHINGLE |
|
| | Type | Description | Class CD | Sub Class CD | Year Built | Area |
| | MA | Main Area | 1 | 30 | 1935 | 1071.0 |
| | SI1 | SITE IMPROVEMENT | 1 | 30 | 1935 | 2.0 |
| | BASE | BASEMENT | 1 | 30 | 1935 | 756.0 |
| | BPF | BASEMENT -PARTITIONED FINISH | 1 | 30 | 1935 | 706.0 |
| | S1F | Single One Story Fireplace | 1 | 30 | 1935 | 1.0 |
| | APP | APPLIANCE ALLOWANCE | 1 | 30 | 0 | 1.0 |
| | RPS | PORCH W/STEPS,ROOF | 1 | 30 | 1935 | 24.0 |
| | CPC | COVERED CARPORT/PATIO | 1 | 30 | 1935 | 160.0 |
| | ATG | Attached Garage | 1 | 30 | 1935 | 210.0 |
| | GUH | GUEST HOUSE | 1 | 30 | 2019 | 240.0 |
| | LOFT | Loft Area | 1 | 30 | 2019 | 112.0 |
| | FBAT | FULL BATH | 1 | 30 | 2019 | 1.0 |
| | FIXT | AVERAGE FIXTURE | 1 | 30 | 2019 | 1.0 |
| | HVAC | HEAT/AC SYSTEM | 1 | 30 | 2019 | 240.0 |
Sketch
Property Image
Land
| 1 | RES 1 | Converted: Residential | 0.1928 | 8400.00 | 0.00 | 0.00 | 1.00 | $60,900 | $0 |
Roll Value History
| 2025 | N/A | N/A | N/A | N/A | N/A |
| 2024 | $326,850 | $92,400 | $0 | $419,250 | $419,250 |
| 2023 | $358,350 | $60,900 | $0 | $419,250 | $419,250 |
| 2022 | $325,780 | $60,900 | $0 | $386,680 | $386,680 |
| 2021 | $283,280 | $60,900 | $0 | $344,180 | $344,180 |
| 2020 | $217,910 | $60,900 | $0 | $278,810 | $278,810 |
| 2019 | $187,570 | $60,900 | $0 | $248,470 | $248,470 |
| 2018 | $187,570 | $60,900 | $0 | $248,470 | $248,470 |
| 2017 | $210,670 | $37,800 | $0 | $248,470 | $248,470 |
| 2016 | $191,520 | $37,800 | $0 | $229,320 | $229,320 |
| 2015 | $191,520 | $37,800 | $0 | $229,320 | $229,320 |
| 2014 | $159,600 | $37,800 | $0 | $197,400 | $197,400 |
| 2013 | $159,600 | $37,800 | $0 | $197,400 | $197,400 |
| 2012 | $149,700 | $37,800 | $0 | $0 | $0 |
| 2011 | $149,700 | $37,800 | $0 | $0 | $0 |
| 2010 | $140,800 | $37,800 | $0 | $0 | $0 |
| 2009 | $160,600 | $37,800 | $0 | $0 | $0 |
| 2008 | $103,900 | $37,800 | $0 | $0 | $0 |
| 2007 | $103,900 | $37,800 | $0 | $0 | $0 |
| 2006 | $78,300 | $16,800 | $0 | $0 | $0 |
Deed and Sales History
| 1 | 02/12/2021 | QCD | QUIT CLAIM DEED | NORENS GINA D | MENLO PARK LLC | | | $0.00 | 140948 | 2021-02030 |
| 2 | 09/10/2014 | QCD | QUIT CLAIM DEED | GROTE GINA D | NORENS GINA D | | | | 126618 | 2014-06637 |
| 3 | 02/12/1991 | WARRANTY D | WARRANTY DEED | | | | | $30,100.00 | 0 | 1879-100877 |
Payout Agreement
| No payout information available.. |