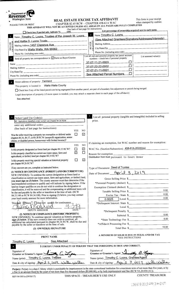
Property
Account |
| Property ID: | 7516 | Abbreviated Legal Description: | TABLEROCK SUBD LOT 1 |
| Parcel Number: | 360604580001 | Agent Code: | |
| Type: | Real | | |
| Tax Area: | 5 - OL-140 | Land Use Code | 11 |
| Open Space: | N | DFL | N |
| Historic Property: | N | Remodel Property: | N |
| Multi-Family Redevelopment: | N | | |
| Township: | 6 | Section: | 4 |
| Range: | 36 |
Location |
| Address: | 7 WOLF FORK PL WA 99362 | Mapsco: | |
| Neighborhood: | VG Res Rural/City Inf | Map ID: | |
| Neighborhood CD: | 615012 |
Owner |
| Name: | MC FETRIDGE PATRICK A & MIKAYLA R | Owner ID: | 54505 |
| Mailing Address: | 7 WOLF FORK PL WALLA WALLA, WA 99362 | % Ownership: | 100.0000000000% |
| | | Exemptions: | |
Taxes and Assessment Details
Values
| (+) Improvement Homesite Value: | + | $0 | |
| (+) Improvement Non-Homesite Value: | + | $536,940 | |
| (+) Land Homesite Value: | + | $0 | |
| (+) Land Non-Homesite Value: | + | $120,000 | |
| (+) Curr Use (HS): | + | $0 | $0 |
| (+) Curr Use (NHS): | + | $0 | $0 |
| | | -------------------------- | |
| (=) Market Value: | = | $656,940 | |
| (–) Productivity Loss: | – | $0 | |
| | | -------------------------- | |
| (=) Subtotal: | = | $656,940 | |
| (+) Senior Appraised Value: | + | $0 | |
| (+) Non-Senior Appraised Value: | + | $656,940 | |
| | | -------------------------- | |
| (=) Total Appraised Value: | = | $656,940 | |
| (–) Senior Exemption Loss: | – | $0 | |
| (–) Exemption Loss: | – | $0 | |
| | | -------------------------- | |
| (=) Taxable Value: | = | $656,940 | |
Taxing Jurisdiction
| Owner: | MC FETRIDGE PATRICK A & MIKAYLA R | | |
| % Ownership: | 100.0000000000% | | |
| Total Value: | $656,940 | | |
| Tax Area: | 5 - OL-140 |
| CERFD | CURRENT EXPENSE REFUND 010 | 0.0000000000 | $656,940 | $656,940 | $0.00 | | |
| CURREXP | CURRENT EXPENSE 010 | 1.0175366760 | $656,940 | $656,940 | $668.46 | | |
| HUMNSERV | HUMAN SERVICES 119 | 0.0250000000 | $656,940 | $656,940 | $16.42 | | |
| SLDREL | SOLDIERS RELIEF 121 | 0.0155990005 | $656,940 | $656,940 | $10.25 | | |
| EMERGSER | EMS 147 | 0.3792580840 | $656,940 | $656,940 | $249.15 | | |
| EMSRFD | EMS REFUND 147 | 0.0000000000 | $656,940 | $656,940 | $0.00 | | |
| PORTRFD | PORT REFUND 640 | 0.0000000000 | $656,940 | $656,940 | $0.00 | | |
| PORTWWGEN | PORT OF WW 640 | 0.2460186015 | $656,940 | $656,940 | $161.62 | | |
| SD140BOND | SD #140 BOND 764 | 0.8342371393 | $656,940 | $656,940 | $548.04 | | |
| SD140GEN | SD #140 GENERAL 760 | 2.0646500647 | $656,940 | $656,940 | $1,356.35 | | |
| ST2 | STATE SCHOOL PART 2 600 | 0.8131451643 | $656,940 | $656,940 | $534.19 | | |
| STATESCHL | STATE SCHOOL 600 | 1.5158548041 | $656,940 | $656,940 | $995.83 | | |
| STREFUND | STATE REFUND LEVY 603 | 0.0000000000 | $656,940 | $656,940 | $0.00 | | |
| CWWBOND | C OF WW BOND 643 | 0.2760494372 | $656,940 | $656,940 | $181.35 | | |
| CWWGEN | CITY OF WW 631 | 1.6100204973 | $656,940 | $656,940 | $1,057.69 | | |
| CWWRFD | CITY OF WALLA WALLA REFUND 631 | 0.0000000000 | $656,940 | $656,940 | $0.00 | | |
| | Total Tax Rate: | 8.7973694689 | | | | | |
| | | | | Taxes w/Current Exemptions: | $5,779.35 | | |
| | | | | Taxes w/o Exemptions: | $5,779.35 | | |
Improvement / Building
| Improvement #1: | RESIDENTIAL | State Code: | 11 | 2776.0 sqft | Value: | $536,940 |
| Exterior Wall: | CEMENT FIBER | Heating/Cooling: | WARM & COOLED AIR | | Number of Bathrooms: | 3 | Number of Bedrooms: | 5 | | Plumbing: | 16 | Roof Covering: | COMP SHINGLE |
|
| | Type | Description | Class CD | Sub Class CD | Year Built | Area |
| | MA | Main Area | 2 | 40 | 2020 | 2776.0 |
| | SI1 | SITE IMPROVEMENT | 2 | 40 | 2020 | 4.0 |
| | UPFL | Upper Floor (included in main area) | 2 | 40 | 2020 | 1304.0 |
| | ATG | Attached Garage | 2 | 40 | 2020 | 850.0 |
| | PRC | PORCH W STEPS, ROOF,CEILED | 2 | 40 | 2020 | 240.0 |
| | GFP | GAS FIREPLACE | 2 | 40 | 2020 | 1.0 |
Sketch
Property Image
Land
| 1 | RES 1 | Converted: Residential | 0.2445 | 10649.00 | 0.00 | 0.00 | 1.00 | $120,000 | $0 |
Roll Value History
| 2025 | N/A | N/A | N/A | N/A | N/A |
| 2024 | $563,780 | $120,000 | $0 | $683,780 | $683,780 |
| 2023 | $536,940 | $120,000 | $0 | $656,940 | $656,940 |
| 2022 | $511,370 | $95,000 | $0 | $606,370 | $606,370 |
| 2021 | $393,360 | $95,000 | $0 | $488,360 | $488,360 |
| 2020 | $357,600 | $95,000 | $0 | $452,600 | $452,600 |
| 2019 | $0 | $95,000 | $0 | $95,000 | $95,000 |
| 2018 | $0 | $50,000 | $0 | $50,000 | $50,000 |
| 2017 | $0 | $50,000 | $0 | $50,000 | $50,000 |
| 2016 | $0 | $50,000 | $0 | $50,000 | $50,000 |
| 2015 | $0 | $50,000 | $0 | $50,000 | $50,000 |
| 2014 | $0 | $50,000 | $0 | $50,000 | $50,000 |
| 2013 | $0 | $50,000 | $0 | $50,000 | $50,000 |
| 2012 | $0 | $55,000 | $0 | $0 | $0 |
| 2011 | $0 | $70,000 | $0 | $0 | $0 |
| 2010 | $0 | $70,000 | $0 | $0 | $0 |
| 2009 | $0 | $70,000 | $0 | $0 | $0 |
| 2008 | $0 | $70,000 | $0 | $0 | $0 |
| 2007 | $0 | $1,900 | $0 | $0 | $0 |
| 2006 | $0 | $1,900 | $0 | $0 | $0 |
Deed and Sales History
| 1 | 05/24/2019 | SWD | STATUTORY WARRANTY DEED | HOY PHILIP J | MC FETRIDGE PATRICK A & MIKAYLA R | | | $75,000.00 | 136939 | 2019-03532 |
| 2 | 05/06/2004 | WARRANTY D | WARRANTY DEED | GATEWOOD, W PAUL | HOY, PHILIP J | | | $46,900.00 | 104693 | 2004-04889 |
Payout Agreement
| No payout information available.. |