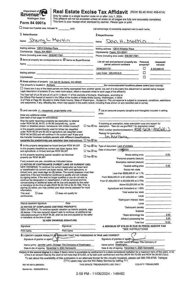
Property
Account |
| Property ID: | 7478 | Abbreviated Legal Description: | ROBERTS TAX 15 BLK 27 |
| Parcel Number: | 360720872722 | Agent Code: | |
| Type: | Real | | |
| Tax Area: | 1 - OL-140-F | Land Use Code | 13 |
| Open Space: | N | DFL | N |
| Historic Property: | N | Remodel Property: | N |
| Multi-Family Redevelopment: | N | | |
| Township: | 7 | Section: | 20 |
| Range: | 36 |
Location |
| Address: | 336 S PALOUSE ST WA 99362 | Mapsco: | |
| Neighborhood: | G Apartment | Map ID: | |
| Neighborhood CD: | 514021 |
Owner |
| Name: | ARLEAH PROPERTIES LLC | Owner ID: | 64487 |
| Mailing Address: | 1644 PLAZA WAY #228 WALLA WALLA, WA 99362 | % Ownership: | 100.0000000000% |
| | | Exemptions: | |
Taxes and Assessment Details
Values
| (+) Improvement Homesite Value: | + | $0 | |
| (+) Improvement Non-Homesite Value: | + | $700,050 | |
| (+) Land Homesite Value: | + | $0 | |
| (+) Land Non-Homesite Value: | + | $75,300 | |
| (+) Curr Use (HS): | + | $0 | $0 |
| (+) Curr Use (NHS): | + | $0 | $0 |
| | | -------------------------- | |
| (=) Market Value: | = | $775,350 | |
| (–) Productivity Loss: | – | $0 | |
| | | -------------------------- | |
| (=) Subtotal: | = | $775,350 | |
| (+) Senior Appraised Value: | + | $0 | |
| (+) Non-Senior Appraised Value: | + | $775,350 | |
| | | -------------------------- | |
| (=) Total Appraised Value: | = | $775,350 | |
| (–) Senior Exemption Loss: | – | $0 | |
| (–) Exemption Loss: | – | $0 | |
| | | -------------------------- | |
| (=) Taxable Value: | = | $775,350 | |
Taxing Jurisdiction
| Owner: | ARLEAH PROPERTIES LLC | | |
| % Ownership: | 100.0000000000% | | |
| Total Value: | $775,350 | | |
| Tax Area: | 1 - OL-140-F |
| CERFD | CURRENT EXPENSE REFUND 010 | 0.0000000000 | $775,350 | $775,350 | $0.00 | | |
| CURREXP | CURRENT EXPENSE 010 | 1.0175366760 | $775,350 | $775,350 | $788.95 | | |
| HUMNSERV | HUMAN SERVICES 119 | 0.0250000000 | $775,350 | $775,350 | $19.38 | | |
| SLDREL | SOLDIERS RELIEF 121 | 0.0155990005 | $775,350 | $775,350 | $12.09 | | |
| EMERGSER | EMS 147 | 0.3792580840 | $775,350 | $775,350 | $294.06 | | |
| EMSRFD | EMS REFUND 147 | 0.0000000000 | $775,350 | $775,350 | $0.00 | | |
| PORTRFD | PORT REFUND 640 | 0.0000000000 | $775,350 | $775,350 | $0.00 | | |
| PORTWWGEN | PORT OF WW 640 | 0.2460186015 | $775,350 | $775,350 | $190.75 | | |
| SD140BOND | SD #140 BOND 764 | 0.8342371393 | $775,350 | $775,350 | $646.83 | | |
| SD140GEN | SD #140 GENERAL 760 | 2.0646500647 | $775,350 | $775,350 | $1,600.83 | | |
| ST2 | STATE SCHOOL PART 2 600 | 0.8131451643 | $775,350 | $775,350 | $630.47 | | |
| STATESCHL | STATE SCHOOL 600 | 1.5158548041 | $775,350 | $775,350 | $1,175.32 | | |
| STREFUND | STATE REFUND LEVY 603 | 0.0000000000 | $775,350 | $775,350 | $0.00 | | |
| CWWBOND | C OF WW BOND 643 | 0.2760494372 | $775,350 | $775,350 | $214.03 | | |
| CWWGEN | CITY OF WW 631 | 1.6100204973 | $775,350 | $775,350 | $1,248.33 | | |
| CWWRFD | CITY OF WALLA WALLA REFUND 631 | 0.0000000000 | $775,350 | $775,350 | $0.00 | | |
| | Total Tax Rate: | 8.7973694689 | | | | | |
| | | | | Taxes w/Current Exemptions: | $6,821.04 | | |
| | | | | Taxes w/o Exemptions: | $6,821.04 | | |
Improvement / Building
| Improvement #1: | RESIDENTIAL | State Code: | 13 | 3720.0 sqft | Value: | $700,050 |
| Exterior Wall: | SIDING | Heating/Cooling: | RADIATOR HOT WATER | | Number of Bathrooms: | 7 | Number of Bedrooms: | 7 | | Plumbing: | 38 | Roof Covering: | COMP SHINGLE |
|
| | Type | Description | Class CD | Sub Class CD | Year Built | Area |
| | MA | Main Area | 2 | 50 | 1903 | 3720.0 |
| | PRC | PORCH W STEPS, ROOF,CEILED | 2 | 50 | 0 | 302.0 |
| | SI1 | SITE IMPROVEMENT | 2 | 50 | 1900 | 5.5 |
| | BASE | BASEMENT | 2 | 50 | 1903 | 1882.0 |
| | BRF | BASEMENT - REC FINISH | 2 | 50 | 1903 | 600.0 |
| | SWP | Solid Wall Porch | 2 | 50 | 1903 | 72.0 |
| | UPFL | Upper Floor (included in main area) | 2 | 50 | 1903 | 1802.0 |
Sketch
Property Image
Land
| 1 | RES 1 | Converted: Residential | 0.3444 | 15000.00 | 0.00 | 0.00 | 1.00 | $75,300 | $0 |
Roll Value History
| 2025 | N/A | N/A | N/A | N/A | N/A |
| 2024 | $680,500 | $85,500 | $0 | $766,000 | $766,000 |
| 2023 | $700,050 | $75,300 | $0 | $775,350 | $775,350 |
| 2022 | $700,050 | $75,300 | $0 | $775,350 | $775,350 |
| 2021 | $636,410 | $75,300 | $0 | $711,710 | $711,710 |
| 2020 | $509,130 | $75,300 | $0 | $584,430 | $584,430 |
| 2019 | $509,130 | $75,300 | $0 | $584,430 | $584,430 |
| 2018 | $339,420 | $75,300 | $0 | $414,720 | $414,720 |
| 2017 | $349,200 | $48,000 | $0 | $397,200 | $397,200 |
| 2016 | $296,500 | $48,000 | $0 | $344,500 | $344,500 |
| 2015 | $296,500 | $48,000 | $0 | $344,500 | $344,500 |
| 2014 | $296,500 | $48,000 | $0 | $344,500 | $344,500 |
| 2013 | $296,500 | $48,000 | $0 | $344,500 | $344,500 |
| 2012 | $296,500 | $48,000 | $0 | $0 | $0 |
| 2011 | $296,500 | $48,000 | $0 | $0 | $0 |
| 2010 | $189,600 | $48,000 | $0 | $0 | $0 |
| 2009 | $189,600 | $48,000 | $0 | $0 | $0 |
| 2008 | $189,600 | $48,000 | $0 | $0 | $0 |
| 2007 | $189,600 | $48,000 | $0 | $0 | $0 |
| 2006 | $104,100 | $21,500 | $0 | $0 | $0 |
Deed and Sales History
| 1 | 01/04/2019 | SWD | STATUTORY WARRANTY DEED | CATON WALTER F & LAURIE A | ARLEAH PROPERTIES LLC | | | $670,000.00 | 136214 | 2019-00069 |
| 2 | 12/08/1998 | WARRANTY D | WARRANTY DEED | | | | | $127,000.00 | 91768 | 2769-814167 |
Payout Agreement
| No payout information available.. |