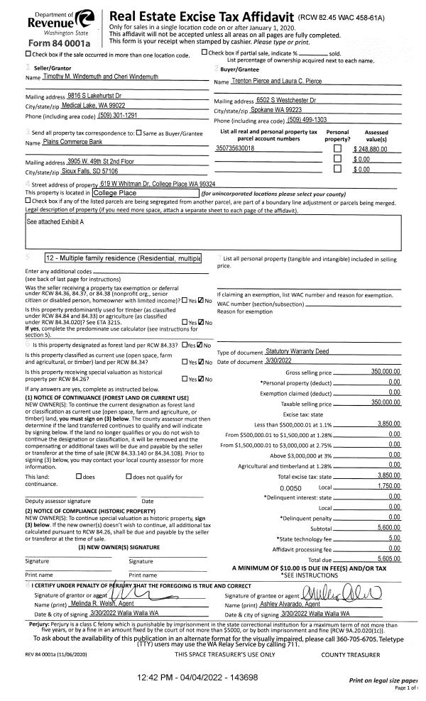
Property
Account |
| Property ID: | 7270 | Abbreviated Legal Description: | WALLA WALLA NLY 80' OF LOT 1 BLK 17; TAX 1 BLK 17; TAX 3 BLK 17 |
| Parcel Number: | 360720771701 | Agent Code: | |
| Type: | Real | | |
| Tax Area: | 1 - OL-140-F | Land Use Code | 63 |
| Open Space: | N | DFL | N |
| Historic Property: | N | Remodel Property: | N |
| Multi-Family Redevelopment: | N | | |
| Township: | 7 | Section: | 20 |
| Range: | 36 |
Location |
| Address: | 101 W POPLAR ST WA 99362 | Mapsco: | |
| Neighborhood: | WW Downtown Core area #3 | Map ID: | |
| Neighborhood CD: | 5343 |
Owner |
| Name: | 101 W POPLAR LLC | Owner ID: | 64337 |
| Mailing Address: | 814 HOME AVE WALLA WALLA, WA 99362 | % Ownership: | 100.0000000000% |
| | | Exemptions: | |
Taxes and Assessment Details
Values
| (+) Improvement Homesite Value: | + | $0 | |
| (+) Improvement Non-Homesite Value: | + | $352,800 | |
| (+) Land Homesite Value: | + | $0 | |
| (+) Land Non-Homesite Value: | + | $158,400 | |
| (+) Curr Use (HS): | + | $0 | $0 |
| (+) Curr Use (NHS): | + | $0 | $0 |
| | | -------------------------- | |
| (=) Market Value: | = | $511,200 | |
| (–) Productivity Loss: | – | $0 | |
| | | -------------------------- | |
| (=) Subtotal: | = | $511,200 | |
| (+) Senior Appraised Value: | + | $0 | |
| (+) Non-Senior Appraised Value: | + | $511,200 | |
| | | -------------------------- | |
| (=) Total Appraised Value: | = | $511,200 | |
| (–) Senior Exemption Loss: | – | $0 | |
| (–) Exemption Loss: | – | $0 | |
| | | -------------------------- | |
| (=) Taxable Value: | = | $511,200 | |
Taxing Jurisdiction
| Owner: | 101 W POPLAR LLC | | |
| % Ownership: | 100.0000000000% | | |
| Total Value: | $511,200 | | |
| Tax Area: | 1 - OL-140-F |
| CERFD | CURRENT EXPENSE REFUND 010 | 0.0000000000 | $511,200 | $511,200 | $0.00 | | |
| CURREXP | CURRENT EXPENSE 010 | 1.0175366760 | $511,200 | $511,200 | $520.16 | | |
| HUMNSERV | HUMAN SERVICES 119 | 0.0250000000 | $511,200 | $511,200 | $12.78 | | |
| SLDREL | SOLDIERS RELIEF 121 | 0.0155990005 | $511,200 | $511,200 | $7.97 | | |
| EMERGSER | EMS 147 | 0.3792580840 | $511,200 | $511,200 | $193.88 | | |
| EMSRFD | EMS REFUND 147 | 0.0000000000 | $511,200 | $511,200 | $0.00 | | |
| PORTRFD | PORT REFUND 640 | 0.0000000000 | $511,200 | $511,200 | $0.00 | | |
| PORTWWGEN | PORT OF WW 640 | 0.2460186015 | $511,200 | $511,200 | $125.76 | | |
| SD140BOND | SD #140 BOND 764 | 0.8342371393 | $511,200 | $511,200 | $426.46 | | |
| SD140GEN | SD #140 GENERAL 760 | 2.0646500647 | $511,200 | $511,200 | $1,055.45 | | |
| ST2 | STATE SCHOOL PART 2 600 | 0.8131451643 | $511,200 | $511,200 | $415.68 | | |
| STATESCHL | STATE SCHOOL 600 | 1.5158548041 | $511,200 | $511,200 | $774.90 | | |
| STREFUND | STATE REFUND LEVY 603 | 0.0000000000 | $511,200 | $511,200 | $0.00 | | |
| CWWBOND | C OF WW BOND 643 | 0.2760494372 | $511,200 | $511,200 | $141.12 | | |
| CWWGEN | CITY OF WW 631 | 1.6100204973 | $511,200 | $511,200 | $823.04 | | |
| CWWRFD | CITY OF WALLA WALLA REFUND 631 | 0.0000000000 | $511,200 | $511,200 | $0.00 | | |
| | Total Tax Rate: | 8.7973694689 | | | | | |
| | | | | Taxes w/Current Exemptions: | $4,497.20 | | |
| | | | | Taxes w/o Exemptions: | $4,497.20 | | |
Improvement / Building
| Improvement #1: | COMMERCIAL | State Code: | 63 | 8144.0 sqft | Value: | $352,800 |
| | Type | Description | Class CD | Sub Class CD | Year Built | Area |
| | MA | Main Area | D | | 1969 | 8144.0 |
| | CPC | COVERED CARPORT/PATIO | D | * | 1969 | 1800.0 |
| | SI1 | SITE IMPROVEMENT | D | * | 1969 | 4.0 |
Sketch
Property Image
Land
| 1 | COM 1 | Converted: Commercial | 0.3306 | 14400.00 | 0.00 | 0.00 | 1.00 | $158,400 | $0 |
Roll Value History
| 2025 | N/A | N/A | N/A | N/A | N/A |
| 2024 | $340,700 | $172,800 | $0 | $513,500 | $513,500 |
| 2023 | $352,800 | $158,400 | $0 | $511,200 | $511,200 |
| 2022 | $352,800 | $158,400 | $0 | $511,200 | $511,200 |
| 2021 | $352,800 | $158,400 | $0 | $511,200 | $511,200 |
| 2020 | $352,800 | $158,400 | $0 | $511,200 | $511,200 |
| 2019 | $326,600 | $158,400 | $0 | $485,000 | $485,000 |
| 2018 | $326,600 | $158,400 | $0 | $485,000 | $485,000 |
| 2017 | $248,300 | $158,400 | $0 | $406,700 | $406,700 |
| 2016 | $248,300 | $158,400 | $0 | $406,700 | $406,700 |
| 2015 | $241,600 | $129,600 | $0 | $371,200 | $371,200 |
| 2014 | $241,600 | $129,600 | $0 | $371,200 | $371,200 |
| 2013 | $241,600 | $129,600 | $0 | $371,200 | $371,200 |
| 2012 | $219,600 | $158,400 | $0 | $0 | $0 |
| 2011 | $219,600 | $158,400 | $0 | $0 | $0 |
| 2010 | $219,600 | $158,400 | $0 | $0 | $0 |
| 2009 | $291,600 | $86,400 | $0 | $0 | $0 |
| 2008 | $291,600 | $86,400 | $0 | $0 | $0 |
| 2007 | $291,600 | $86,400 | $0 | $0 | $0 |
| 2006 | $263,000 | $50,400 | $0 | $0 | $0 |
Deed and Sales History
| 1 | 12/17/2018 | QCD | QUIT CLAIM DEED | BERGEVIN ROBERT D & SHANNON M | 101 W POPLAR LLC | | | $0.00 | 136100 | 2018-10392 |
| 2 | 02/17/2017 | SWD | STATUTORY WARRANTY DEED | LOGAN-SCHNEIDER HELEN C | BERGEVIN ROBERT D & SHANNON M | | | $450,000.00 | 131911 | 2017-01318 |
| 3 | 02/17/2017 | QCD | QUIT CLAIM DEED | LOGAN JOHN D TRUST | LOGAN-SCHNEIDER HELEN C | | | | 131910 | 2017-01316 |
| 4 | 05/01/1978 | WARRANTY D | WARRANTY DEED | | | | | $35,000.00 | 0 | 3310-501209 |
Payout Agreement
| No payout information available.. |