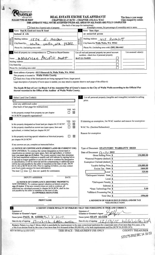
Property
Account |
| Property ID: | 7160 | Abbreviated Legal Description: | MAGALLONS N 1/2 OF LOTS 1 & 2 BLK 2 |
| Parcel Number: | 360719600215 | Agent Code: | |
| Type: | Real | | |
| Tax Area: | 1 - OL-140-F | Land Use Code | 11 |
| Open Space: | N | DFL | N |
| Historic Property: | N | Remodel Property: | N |
| Multi-Family Redevelopment: | N | | |
| Township: | 7 | Section: | 19 |
| Range: | 36 |
Location |
| Address: | 347 N 7TH AVE WA 99362 | Mapsco: | |
| Neighborhood: | F SFR | Map ID: | |
| Neighborhood CD: | 512011 |
Owner |
| Name: | FLORES VINCENTE | Owner ID: | 57348 |
| Mailing Address: | CARLOS FLORES ROJAS 347 N 7TH AVE WALLA WALLA, WA 99362 | % Ownership: | 100.0000000000% |
| | | Exemptions: | |
Taxes and Assessment Details
Values
| (+) Improvement Homesite Value: | + | $0 | |
| (+) Improvement Non-Homesite Value: | + | $162,500 | |
| (+) Land Homesite Value: | + | $0 | |
| (+) Land Non-Homesite Value: | + | $30,190 | |
| (+) Curr Use (HS): | + | $0 | $0 |
| (+) Curr Use (NHS): | + | $0 | $0 |
| | | -------------------------- | |
| (=) Market Value: | = | $192,690 | |
| (–) Productivity Loss: | – | $0 | |
| | | -------------------------- | |
| (=) Subtotal: | = | $192,690 | |
| (+) Senior Appraised Value: | + | $0 | |
| (+) Non-Senior Appraised Value: | + | $192,690 | |
| | | -------------------------- | |
| (=) Total Appraised Value: | = | $192,690 | |
| (–) Senior Exemption Loss: | – | $0 | |
| (–) Exemption Loss: | – | $0 | |
| | | -------------------------- | |
| (=) Taxable Value: | = | $192,690 | |
Taxing Jurisdiction
| Owner: | FLORES VINCENTE | | |
| % Ownership: | 100.0000000000% | | |
| Total Value: | $192,690 | | |
| Tax Area: | 1 - OL-140-F |
| CERFD | CURRENT EXPENSE REFUND 010 | 0.0000000000 | $192,690 | $192,690 | $0.00 | | |
| CURREXP | CURRENT EXPENSE 010 | 1.0175366760 | $192,690 | $192,690 | $196.07 | | |
| HUMNSERV | HUMAN SERVICES 119 | 0.0250000000 | $192,690 | $192,690 | $4.82 | | |
| SLDREL | SOLDIERS RELIEF 121 | 0.0155990005 | $192,690 | $192,690 | $3.01 | | |
| EMERGSER | EMS 147 | 0.3792580840 | $192,690 | $192,690 | $73.08 | | |
| EMSRFD | EMS REFUND 147 | 0.0000000000 | $192,690 | $192,690 | $0.00 | | |
| PORTRFD | PORT REFUND 640 | 0.0000000000 | $192,690 | $192,690 | $0.00 | | |
| PORTWWGEN | PORT OF WW 640 | 0.2460186015 | $192,690 | $192,690 | $47.41 | | |
| SD140BOND | SD #140 BOND 764 | 0.8342371393 | $192,690 | $192,690 | $160.75 | | |
| SD140GEN | SD #140 GENERAL 760 | 2.0646500647 | $192,690 | $192,690 | $397.84 | | |
| ST2 | STATE SCHOOL PART 2 600 | 0.8131451643 | $192,690 | $192,690 | $156.68 | | |
| STATESCHL | STATE SCHOOL 600 | 1.5158548041 | $192,690 | $192,690 | $292.09 | | |
| STREFUND | STATE REFUND LEVY 603 | 0.0000000000 | $192,690 | $192,690 | $0.00 | | |
| CWWBOND | C OF WW BOND 643 | 0.2760494372 | $192,690 | $192,690 | $53.19 | | |
| CWWGEN | CITY OF WW 631 | 1.6100204973 | $192,690 | $192,690 | $310.23 | | |
| CWWRFD | CITY OF WALLA WALLA REFUND 631 | 0.0000000000 | $192,690 | $192,690 | $0.00 | | |
| | Total Tax Rate: | 8.7973694689 | | | | | |
| | | | | Taxes w/Current Exemptions: | $1,695.17 | | |
| | | | | Taxes w/o Exemptions: | $1,695.17 | | |
Improvement / Building
| Improvement #1: | RESIDENTIAL | State Code: | 11 | 1066.0 sqft | Value: | $162,500 |
| Exterior Wall: | VINYL | Heating/Cooling: | WALL FURNACE | | Number of Bathrooms: | 1 | Number of Bedrooms: | 3 | | Plumbing: | 6 | Roof Covering: | COMP SHINGLE |
|
| | Type | Description | Class CD | Sub Class CD | Year Built | Area |
| | MA | Main Area | 1 | 20 | 1911 | 1066.0 |
| | SI1 | SITE IMPROVEMENT | 1 | 20 | 1911 | 1.0 |
| | WDR | WOOD DECK W/ROOF | 1 | 20 | 1911 | 291.0 |
| | BASE | BASEMENT | 1 | 20 | 1911 | 400.0 |
| | DTG | Detached Garage | 1 | 20 | 2017 | 650.0 |
Sketch
Property Image
Land
| 1 | RES 1 | Converted: Residential | 0.1320 | 5750.00 | 0.00 | 0.00 | 1.00 | $30,190 | $0 |
Roll Value History
| 2025 | N/A | N/A | N/A | N/A | N/A |
| 2024 | $195,700 | $51,750 | $0 | $247,450 | $247,450 |
| 2023 | $162,500 | $30,190 | $0 | $192,690 | $192,690 |
| 2022 | $162,500 | $30,190 | $0 | $192,690 | $192,690 |
| 2021 | $81,250 | $30,190 | $0 | $111,440 | $111,440 |
| 2020 | $81,250 | $30,190 | $0 | $111,440 | $111,440 |
| 2019 | $81,250 | $30,190 | $0 | $111,440 | $111,440 |
| 2018 | $67,710 | $30,190 | $0 | $97,900 | $97,900 |
| 2017 | $70,710 | $17,300 | $0 | $88,010 | $88,010 |
| 2016 | $62,030 | $17,300 | $0 | $79,330 | $79,330 |
| 2015 | $62,030 | $17,300 | $0 | $79,330 | $79,330 |
| 2014 | $82,700 | $17,300 | $0 | $100,000 | $100,000 |
| 2013 | $82,700 | $17,300 | $0 | $100,000 | $100,000 |
| 2012 | $90,000 | $17,300 | $0 | $0 | $0 |
| 2011 | $90,000 | $17,300 | $0 | $0 | $0 |
| 2010 | $84,900 | $17,300 | $0 | $0 | $0 |
| 2009 | $96,300 | $17,300 | $0 | $0 | $0 |
| 2008 | $52,600 | $10,100 | $0 | $0 | $0 |
| 2007 | $52,600 | $10,100 | $0 | $0 | $0 |
| 2006 | $52,600 | $10,100 | $0 | $0 | $0 |
Deed and Sales History
| 1 | 09/01/2015 | QCD | QUIT CLAIM DEED | PEREZ ZOCHILT I GILES | ROJAS CARLOS FLORES | | | | 128746 | 2015-07737 |
| 2 | 08/28/2015 | SWD | STATUTORY WARRANTY DEED | US BANK NATIONAL ASSOCIATION | FLORES VINCENTE | | | $74,500.00 | 128745 | 2015-07736 |
| 3 | 02/28/2014 | TRUSTEES D | TRUSTEE'S DEED | GOMEZ JOSEFINA | US BANK NATIONAL ASSOCIATION | | | $85,000.00 | 125500 | 2014-01437 |
| 4 | 11/13/1991 | WARRANTY D | WARRANTY DEED | | | | | $33,900.00 | 0 | 1929-108027 |
Payout Agreement
| No payout information available.. |