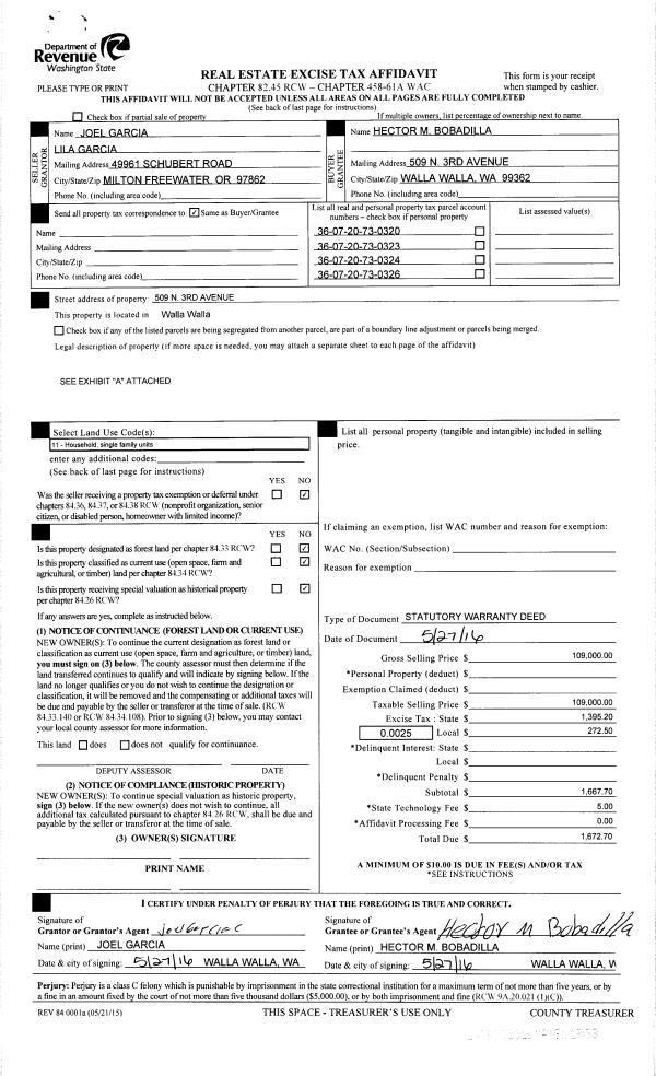
Property
Account |
| Property ID: | 7124 | Abbreviated Legal Description: | LANGFORDS TAX 3A BLK 34 |
| Parcel Number: | 360719593408 | Agent Code: | |
| Type: | Real | | |
| Tax Area: | 1 - OL-140-F | Land Use Code | 11 |
| Open Space: | N | DFL | N |
| Historic Property: | N | Remodel Property: | N |
| Multi-Family Redevelopment: | N | | |
| Township: | 7 | Section: | 19 |
| Range: | 36 |
Location |
| Address: | 442 N 7TH AVE WA 99362 | Mapsco: | |
| Neighborhood: | F SFR | Map ID: | |
| Neighborhood CD: | 512011 |
Owner |
| Name: | BOCANEGRA ISRAEL A | Owner ID: | 72365 |
| Mailing Address: | IRMA M MENDOZA LOPEZ 442 N 7TH AVE WALLA WALLA, WA 99362 | % Ownership: | 100.0000000000% |
| | | Exemptions: | |
Taxes and Assessment Details
Values
| (+) Improvement Homesite Value: | + | $0 | |
| (+) Improvement Non-Homesite Value: | + | $225,140 | |
| (+) Land Homesite Value: | + | $0 | |
| (+) Land Non-Homesite Value: | + | $22,390 | |
| (+) Curr Use (HS): | + | $0 | $0 |
| (+) Curr Use (NHS): | + | $0 | $0 |
| | | -------------------------- | |
| (=) Market Value: | = | $247,530 | |
| (–) Productivity Loss: | – | $0 | |
| | | -------------------------- | |
| (=) Subtotal: | = | $247,530 | |
| (+) Senior Appraised Value: | + | $0 | |
| (+) Non-Senior Appraised Value: | + | $247,530 | |
| | | -------------------------- | |
| (=) Total Appraised Value: | = | $247,530 | |
| (–) Senior Exemption Loss: | – | $0 | |
| (–) Exemption Loss: | – | $0 | |
| | | -------------------------- | |
| (=) Taxable Value: | = | $247,530 | |
Taxing Jurisdiction
| Owner: | BOCANEGRA ISRAEL A | | |
| % Ownership: | 100.0000000000% | | |
| Total Value: | $247,530 | | |
| Tax Area: | 1 - OL-140-F |
| CERFD | CURRENT EXPENSE REFUND 010 | 0.0000000000 | $247,530 | $247,530 | $0.00 | | |
| CURREXP | CURRENT EXPENSE 010 | 1.0175366760 | $247,530 | $247,530 | $251.87 | | |
| HUMNSERV | HUMAN SERVICES 119 | 0.0250000000 | $247,530 | $247,530 | $6.19 | | |
| SLDREL | SOLDIERS RELIEF 121 | 0.0155990005 | $247,530 | $247,530 | $3.86 | | |
| EMERGSER | EMS 147 | 0.3792580840 | $247,530 | $247,530 | $93.88 | | |
| EMSRFD | EMS REFUND 147 | 0.0000000000 | $247,530 | $247,530 | $0.00 | | |
| PORTRFD | PORT REFUND 640 | 0.0000000000 | $247,530 | $247,530 | $0.00 | | |
| PORTWWGEN | PORT OF WW 640 | 0.2460186015 | $247,530 | $247,530 | $60.90 | | |
| SD140BOND | SD #140 BOND 764 | 0.8342371393 | $247,530 | $247,530 | $206.50 | | |
| SD140GEN | SD #140 GENERAL 760 | 2.0646500647 | $247,530 | $247,530 | $511.06 | | |
| ST2 | STATE SCHOOL PART 2 600 | 0.8131451643 | $247,530 | $247,530 | $201.28 | | |
| STATESCHL | STATE SCHOOL 600 | 1.5158548041 | $247,530 | $247,530 | $375.22 | | |
| STREFUND | STATE REFUND LEVY 603 | 0.0000000000 | $247,530 | $247,530 | $0.00 | | |
| CWWBOND | C OF WW BOND 643 | 0.2760494372 | $247,530 | $247,530 | $68.33 | | |
| CWWGEN | CITY OF WW 631 | 1.6100204973 | $247,530 | $247,530 | $398.53 | | |
| CWWRFD | CITY OF WALLA WALLA REFUND 631 | 0.0000000000 | $247,530 | $247,530 | $0.00 | | |
| | Total Tax Rate: | 8.7973694689 | | | | | |
| | | | | Taxes w/Current Exemptions: | $2,177.62 | | |
| | | | | Taxes w/o Exemptions: | $2,177.62 | | |
Improvement / Building
| Improvement #1: | RESIDENTIAL | State Code: | 11 | 988.0 sqft | Value: | $225,140 |
| Exterior Wall: | SIDING | Heating/Cooling: | MINI-SPLIT HP SYSTEM | | Number of Bathrooms: | 1 | Number of Bedrooms: | 2 | | Plumbing: | 6 | Roof Covering: | COMP SHINGLE |
|
| | Type | Description | Class CD | Sub Class CD | Year Built | Area |
| | MA | Main Area | 1 | 20 | 1914 | 988.0 |
| | SI1 | SITE IMPROVEMENT | 1 | 20 | 1914 | 1.0 |
| | WDR | WOOD DECK W/ROOF | 1 | 20 | 1914 | 132.0 |
| | DTG | Detached Garage | 1 | 20 | 2019 | 416.0 |
Sketch
Property Image
Land
| 1 | RES 1 | Converted: Residential | 0.0979 | 4264.00 | 0.00 | 0.00 | 1.00 | $22,390 | $0 |
Roll Value History
| 2025 | N/A | N/A | N/A | N/A | N/A |
| 2024 | $222,600 | $38,380 | $0 | $260,980 | $260,980 |
| 2023 | $225,140 | $22,390 | $0 | $247,530 | $247,530 |
| 2022 | $173,180 | $22,390 | $0 | $195,570 | $195,570 |
| 2021 | $157,440 | $22,390 | $0 | $179,830 | $179,830 |
| 2020 | $131,200 | $22,390 | $0 | $153,590 | $153,590 |
| 2019 | $118,330 | $22,390 | $0 | $140,720 | $140,720 |
| 2018 | $98,610 | $22,390 | $0 | $121,000 | $121,000 |
| 2017 | $84,190 | $12,800 | $0 | $96,990 | $96,990 |
| 2016 | $80,180 | $12,800 | $0 | $92,980 | $92,980 |
| 2015 | $80,180 | $12,800 | $0 | $92,980 | $92,980 |
| 2014 | $84,400 | $12,800 | $0 | $97,200 | $97,200 |
| 2013 | $84,400 | $12,800 | $0 | $97,200 | $97,200 |
| 2012 | $84,400 | $12,800 | $0 | $0 | $0 |
| 2011 | $84,400 | $12,800 | $0 | $0 | $0 |
| 2010 | $84,400 | $12,800 | $0 | $0 | $0 |
| 2009 | $95,200 | $12,800 | $0 | $0 | $0 |
| 2008 | $49,800 | $7,500 | $0 | $0 | $0 |
| 2007 | $49,800 | $7,500 | $0 | $0 | $0 |
| 2006 | $49,800 | $7,500 | $0 | $0 | $0 |
Deed and Sales History
| 1 | 08/30/2022 | QCD | QUIT CLAIM DEED | MENDOZA IRMA M | BOCANEGRA ISRAEL A | | | $0.00 | 144638 | 2022-07445 |
| 2 | 04/20/2007 | WARRANTY D | WARRANTY DEED | BOCANEGRA, ISRAEL | MENDOZA, IRMA M | | | | 0 | CC #07-3-00016-4 |
| 3 | 03/03/1998 | WARRANTY D | WARRANTY DEED | | | | | $61,000.00 | 89977 | 2639-802227 |
Payout Agreement
| No payout information available.. |