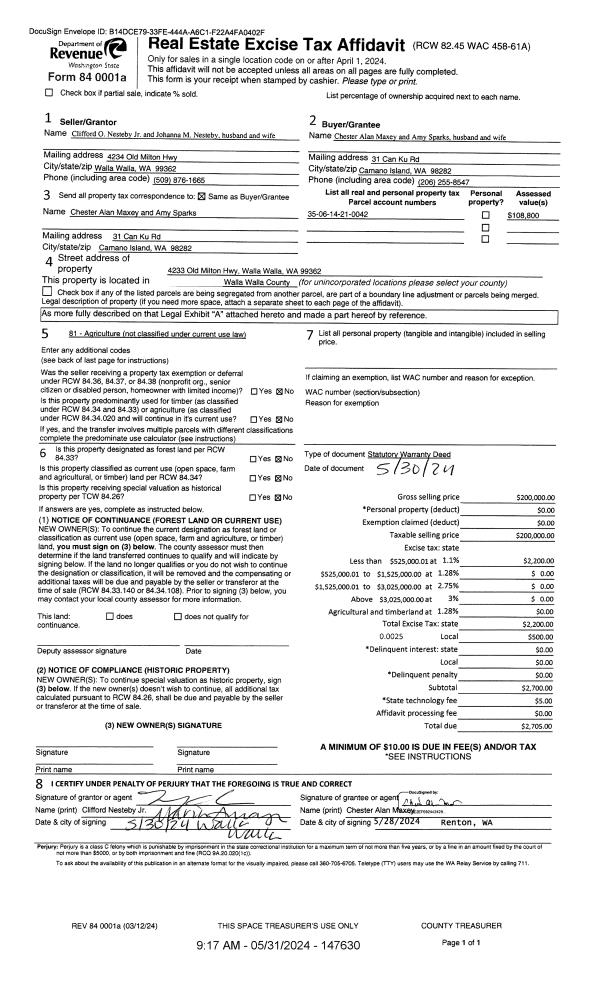
Property
Account |
| Property ID: | 7094 | Abbreviated Legal Description: | LANGFORDS TAX 3 BLK 30 |
| Parcel Number: | 360719593017 | Agent Code: | |
| Type: | Real | | |
| Tax Area: | 1 - OL-140-F | Land Use Code | 11 |
| Open Space: | N | DFL | N |
| Historic Property: | N | Remodel Property: | N |
| Multi-Family Redevelopment: | N | | |
| Township: | 7 | Section: | 19 |
| Range: | 36 |
Location |
| Address: | 506 W PINE ST WA 99362 | Mapsco: | |
| Neighborhood: | F SFR | Map ID: | |
| Neighborhood CD: | 512011 |
Owner |
| Name: | CISNEROS MARIA CLARA | Owner ID: | 62668 |
| Mailing Address: | JAZMIN CISNEROS 506 W PINE ST WALLA WALLA, WA 99362 | % Ownership: | 100.0000000000% |
| | | Exemptions: | |
Taxes and Assessment Details
Values
| (+) Improvement Homesite Value: | + | $0 | |
| (+) Improvement Non-Homesite Value: | + | $115,540 | |
| (+) Land Homesite Value: | + | $0 | |
| (+) Land Non-Homesite Value: | + | $30,770 | |
| (+) Curr Use (HS): | + | $0 | $0 |
| (+) Curr Use (NHS): | + | $0 | $0 |
| | | -------------------------- | |
| (=) Market Value: | = | $146,310 | |
| (–) Productivity Loss: | – | $0 | |
| | | -------------------------- | |
| (=) Subtotal: | = | $146,310 | |
| (+) Senior Appraised Value: | + | $0 | |
| (+) Non-Senior Appraised Value: | + | $146,310 | |
| | | -------------------------- | |
| (=) Total Appraised Value: | = | $146,310 | |
| (–) Senior Exemption Loss: | – | $0 | |
| (–) Exemption Loss: | – | $0 | |
| | | -------------------------- | |
| (=) Taxable Value: | = | $146,310 | |
Taxing Jurisdiction
| Owner: | CISNEROS MARIA CLARA | | |
| % Ownership: | 100.0000000000% | | |
| Total Value: | $146,310 | | |
| Tax Area: | 1 - OL-140-F |
| CERFD | CURRENT EXPENSE REFUND 010 | 0.0000000000 | $146,310 | $146,310 | $0.00 | | |
| CURREXP | CURRENT EXPENSE 010 | 1.0175366760 | $146,310 | $146,310 | $148.88 | | |
| HUMNSERV | HUMAN SERVICES 119 | 0.0250000000 | $146,310 | $146,310 | $3.66 | | |
| SLDREL | SOLDIERS RELIEF 121 | 0.0155990005 | $146,310 | $146,310 | $2.28 | | |
| EMERGSER | EMS 147 | 0.3792580840 | $146,310 | $146,310 | $55.49 | | |
| EMSRFD | EMS REFUND 147 | 0.0000000000 | $146,310 | $146,310 | $0.00 | | |
| PORTRFD | PORT REFUND 640 | 0.0000000000 | $146,310 | $146,310 | $0.00 | | |
| PORTWWGEN | PORT OF WW 640 | 0.2460186015 | $146,310 | $146,310 | $35.99 | | |
| SD140BOND | SD #140 BOND 764 | 0.8342371393 | $146,310 | $146,310 | $122.06 | | |
| SD140GEN | SD #140 GENERAL 760 | 2.0646500647 | $146,310 | $146,310 | $302.08 | | |
| ST2 | STATE SCHOOL PART 2 600 | 0.8131451643 | $146,310 | $146,310 | $118.97 | | |
| STATESCHL | STATE SCHOOL 600 | 1.5158548041 | $146,310 | $146,310 | $221.78 | | |
| STREFUND | STATE REFUND LEVY 603 | 0.0000000000 | $146,310 | $146,310 | $0.00 | | |
| CWWBOND | C OF WW BOND 643 | 0.2760494372 | $146,310 | $146,310 | $40.39 | | |
| CWWGEN | CITY OF WW 631 | 1.6100204973 | $146,310 | $146,310 | $235.56 | | |
| CWWRFD | CITY OF WALLA WALLA REFUND 631 | 0.0000000000 | $146,310 | $146,310 | $0.00 | | |
| | Total Tax Rate: | 8.7973694689 | | | | | |
| | | | | Taxes w/Current Exemptions: | $1,287.14 | | |
| | | | | Taxes w/o Exemptions: | $1,287.14 | | |
Improvement / Building
| Improvement #1: | RESIDENTIAL | State Code: | 11 | 816.0 sqft | Value: | $115,540 |
| Exterior Wall: | STUCCO | Heating/Cooling: | FORCED AIR | | Number of Bathrooms: | 1 | Number of Bedrooms: | 2 | | Plumbing: | 6 | Roof Covering: | COMP SHINGLE |
|
| | Type | Description | Class CD | Sub Class CD | Year Built | Area |
| | MA | Main Area | 1 | 20 | 1919 | 816.0 |
| | SI1 | SITE IMPROVEMENT | 1 | 20 | 1919 | 1.0 |
| | DTG | Detached Garage | 1 | 20 | 1919 | 288.0 |
| | CPC | COVERED CARPORT/PATIO | 1 | 20 | 1919 | 532.0 |
| | GUH | GUEST HOUSE | 1 | 20 | 1919 | 414.0 |
| | RPS | PORCH W/STEPS,ROOF | 1 | 20 | 1919 | 25.0 |
| | RPS | PORCH W/STEPS,ROOF | 1 | 20 | 1919 | 70.0 |
| | RPS | PORCH W/STEPS,ROOF | 1 | 20 | 1919 | 60.0 |
Sketch
Property Image
Land
| 1 | RES 1 | Converted: Residential | 0.1345 | 5860.00 | 0.00 | 0.00 | 1.00 | $30,770 | $0 |
Roll Value History
| 2025 | N/A | N/A | N/A | N/A | N/A |
| 2024 | $160,600 | $52,740 | $0 | $213,340 | $213,340 |
| 2023 | $115,540 | $30,770 | $0 | $146,310 | $146,310 |
| 2022 | $105,040 | $30,770 | $0 | $135,810 | $135,810 |
| 2021 | $84,030 | $30,770 | $0 | $114,800 | $114,800 |
| 2020 | $84,030 | $30,770 | $0 | $114,800 | $114,800 |
| 2019 | $84,030 | $30,770 | $0 | $114,800 | $114,800 |
| 2018 | $80,030 | $30,770 | $0 | $110,800 | $110,800 |
| 2017 | $67,230 | $17,600 | $0 | $84,830 | $84,830 |
| 2016 | $64,030 | $17,600 | $0 | $81,630 | $81,630 |
| 2015 | $64,030 | $17,600 | $0 | $81,630 | $81,630 |
| 2014 | $67,400 | $17,600 | $0 | $85,000 | $85,000 |
| 2013 | $67,400 | $17,600 | $0 | $85,000 | $85,000 |
| 2012 | $67,400 | $17,600 | $0 | $0 | $0 |
| 2011 | $67,400 | $17,600 | $0 | $0 | $0 |
| 2010 | $67,400 | $17,600 | $0 | $0 | $0 |
| 2009 | $76,800 | $17,600 | $0 | $0 | $0 |
| 2008 | $39,800 | $10,300 | $0 | $0 | $0 |
| 2007 | $39,800 | $10,300 | $0 | $0 | $0 |
| 2006 | $39,800 | $10,300 | $0 | $0 | $0 |
Deed and Sales History
| 1 | 02/23/2018 | QCD | QUIT CLAIM DEED | ORTIZ MARIA | CISNEROS MARIA CLARA | | | $0.00 | 134208 | 2018-01538 |
| 2 | 05/21/1998 | WARRANTY D | WARRANTY DEED | | | | | $43,200.00 | 90460 | 2679-805628 |
Payout Agreement
| No payout information available.. |