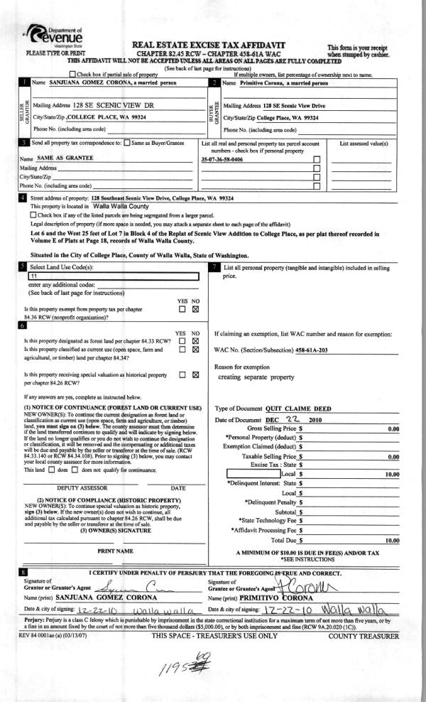
Property
Account |
| Property ID: | 7020 | Abbreviated Legal Description: | HIGHLAND PARK LOT 1 BLK 2 |
| Parcel Number: | 350736540201 | Agent Code: | |
| Type: | Real | | |
| Tax Area: | 77 - CP-250-F | Land Use Code | 11 |
| Open Space: | N | DFL | N |
| Historic Property: | N | Remodel Property: | N |
| Multi-Family Redevelopment: | N | | |
| Township: | 7 | Section: | 36 |
| Range: | 35 |
Location |
| Address: | 404 SE HIGHLAND PARK DR WA 99324 | Mapsco: | |
| Neighborhood: | A Superior SFR | Map ID: | |
| Neighborhood CD: | 113211 |
Owner |
| Name: | BARNES STEVEN R & GLADYS REVOCABLE TRUST | Owner ID: | 60813 |
| Mailing Address: | STEVEN R & GLADYS BARNES TRUSTEES 1832 SE BLISS LN COLLEGE PLACE, WA 99324 | % Ownership: | 100.0000000000% |
| | | Exemptions: | |
Taxes and Assessment Details
Values
| (+) Improvement Homesite Value: | + | $0 | |
| (+) Improvement Non-Homesite Value: | + | $312,300 | |
| (+) Land Homesite Value: | + | $0 | |
| (+) Land Non-Homesite Value: | + | $75,000 | |
| (+) Curr Use (HS): | + | $0 | $0 |
| (+) Curr Use (NHS): | + | $0 | $0 |
| | | -------------------------- | |
| (=) Market Value: | = | $387,300 | |
| (–) Productivity Loss: | – | $0 | |
| | | -------------------------- | |
| (=) Subtotal: | = | $387,300 | |
| (+) Senior Appraised Value: | + | $0 | |
| (+) Non-Senior Appraised Value: | + | $387,300 | |
| | | -------------------------- | |
| (=) Total Appraised Value: | = | $387,300 | |
| (–) Senior Exemption Loss: | – | $0 | |
| (–) Exemption Loss: | – | $0 | |
| | | -------------------------- | |
| (=) Taxable Value: | = | $387,300 | |
Taxing Jurisdiction
| Owner: | BARNES STEVEN R & GLADYS REVOCABLE TRUST | | |
| % Ownership: | 100.0000000000% | | |
| Total Value: | $387,300 | | |
| Tax Area: | 77 - CP-250-F |
| CERFD | CURRENT EXPENSE REFUND 010 | 0.0000000000 | $387,300 | $387,300 | $0.00 | | |
| CURREXP | CURRENT EXPENSE 010 | 1.0175366760 | $387,300 | $387,300 | $394.09 | | |
| HUMNSERV | HUMAN SERVICES 119 | 0.0250000000 | $387,300 | $387,300 | $9.68 | | |
| SLDREL | SOLDIERS RELIEF 121 | 0.0155990005 | $387,300 | $387,300 | $6.04 | | |
| COLLPLBOND | C OF CP BOND 644 | 0.4374241808 | $387,300 | $387,300 | $169.41 | | |
| COLLPLGEN | CITY OF CP 632 | 1.4453819216 | $387,300 | $387,300 | $559.80 | | |
| EMERGSER | EMS 147 | 0.3792580840 | $387,300 | $387,300 | $146.89 | | |
| EMSRFD | EMS REFUND 147 | 0.0000000000 | $387,300 | $387,300 | $0.00 | | |
| RURALLIB | RURAL LIBRARY 623 | 0.3710609029 | $387,300 | $387,300 | $143.71 | | |
| PORTRFD | PORT REFUND 640 | 0.0000000000 | $387,300 | $387,300 | $0.00 | | |
| PORTWWGEN | PORT OF WW 640 | 0.2460186015 | $387,300 | $387,300 | $95.28 | | |
| SD250BOND | SD #250 BOND 773 | 1.4560608159 | $387,300 | $387,300 | $563.93 | | |
| SD250GEN | SD #250 GENERAL 770 | 2.3880724087 | $387,300 | $387,300 | $924.90 | | |
| ST2 | STATE SCHOOL PART 2 600 | 0.8131451643 | $387,300 | $387,300 | $314.93 | | |
| STATESCHL | STATE SCHOOL 600 | 1.5158548041 | $387,300 | $387,300 | $587.09 | | |
| STREFUND | STATE REFUND LEVY 603 | 0.0000000000 | $387,300 | $387,300 | $0.00 | | |
| | Total Tax Rate: | 10.1104125603 | | | | | |
| | | | | Taxes w/Current Exemptions: | $3,915.75 | | |
| | | | | Taxes w/o Exemptions: | $3,915.75 | | |
Improvement / Building
| Improvement #1: | RESIDENTIAL | State Code: | 11 | 1400.0 sqft | Value: | $312,300 |
| Exterior Wall: | PLYWOOD | Heating/Cooling: | BASEBOARD ELECTRIC | | Number of Bathrooms: | 3 | Number of Bedrooms: | 5 | | Plumbing: | 12 | Roof Covering: | COMP SHINGLE |
|
| | Type | Description | Class CD | Sub Class CD | Year Built | Area |
| | MA | Main Area | 1 | 30 | 1969 | 1400.0 |
| | SI1 | SITE IMPROVEMENT | 1 | 30 | 1969 | 1.5 |
| | BASE | BASEMENT | 1 | 30 | 1969 | 1400.0 |
| | BRF | BASEMENT - REC FINISH | 1 | 30 | 1969 | 1400.0 |
| | ATG | Attached Garage | 1 | 30 | 1969 | 720.0 |
| | SWP | Solid Wall Porch | 1 | 30 | 1969 | 140.0 |
| | SHOP | SHOP BUILDING | 1 | 30 | 1969 | 280.0 |
Sketch
Property Image
Land
| 1 | RES 1 | Converted: Residential | 0.3030 | 13200.00 | 0.00 | 0.00 | 1.00 | $75,000 | $0 |
Roll Value History
| 2025 | N/A | N/A | N/A | N/A | N/A |
| 2024 | $343,530 | $75,000 | $0 | $418,530 | $418,530 |
| 2023 | $312,300 | $75,000 | $0 | $387,300 | $387,300 |
| 2022 | $249,840 | $75,000 | $0 | $324,840 | $324,840 |
| 2021 | $170,810 | $75,000 | $0 | $245,810 | $245,810 |
| 2020 | $142,340 | $75,000 | $0 | $217,340 | $217,340 |
| 2019 | $157,340 | $60,000 | $0 | $217,340 | $217,340 |
| 2018 | $131,120 | $60,000 | $0 | $191,120 | $191,120 |
| 2017 | $119,200 | $60,000 | $0 | $179,200 | $179,200 |
| 2016 | $108,360 | $60,000 | $0 | $168,360 | $168,360 |
| 2015 | $108,360 | $60,000 | $0 | $168,360 | $168,360 |
| 2014 | $103,200 | $60,000 | $0 | $163,200 | $163,200 |
| 2013 | $103,200 | $60,000 | $0 | $163,200 | $163,200 |
| 2012 | $111,800 | $60,000 | $0 | $0 | $0 |
| 2011 | $120,800 | $60,000 | $0 | $0 | $0 |
| 2010 | $120,800 | $60,000 | $0 | $0 | $0 |
| 2009 | $130,300 | $60,000 | $0 | $0 | $0 |
| 2008 | $121,600 | $30,000 | $0 | $0 | $0 |
| 2007 | $121,600 | $30,000 | $0 | $0 | $0 |
| 2006 | $121,600 | $30,000 | $0 | $0 | $0 |
Deed and Sales History
| 1 | 05/02/2017 | TRUSTEES D | TRUSTEE'S DEED | BARNES STEVEN R & GLADYS | BARNES STEVEN R & GLADYS REVOCABLE TRUST | | | $0.00 | 132312 | 2017-03287 |
| 2 | 06/10/2010 | WARRANTY D | WARRANTY DEED | FLEMMER, FRED & LEA LIFE EST | BARNES, STEVEN R & GLADYS | | | $168,000.00 | 118601 | 2010-04462 |
| 3 | 08/19/2003 | QCD | QUIT CLAIM DEED | FLEMMER, FRED & LEA | FLEMMER, FRED & LEA LIFE EST | | | | 102822 | 2003-12455 |
| 4 | 10/26/1990 | WARRANTY D | WARRANTY DEED | | | | | $64,000.00 | 0 | 1859-007589 |
Payout Agreement
| No payout information available.. |