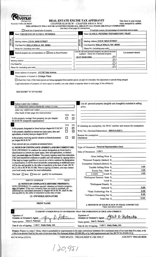
Property
Account |
| Property ID: | 7006 | Abbreviated Legal Description: | 11-6-35 TAX 22F |
| Parcel Number: | 350611410064 | Agent Code: | |
| Type: | Real | | |
| Tax Area: | 311 - 250-4 | Land Use Code | 11 |
| Open Space: | N | DFL | N |
| Historic Property: | N | Remodel Property: | N |
| Multi-Family Redevelopment: | N | | |
| Township: | 6 | Section: | 11 |
| Range: | 35 |
Location |
| Address: | 194 FRONTAGE RD WA 99324 | Mapsco: | |
| Neighborhood: | FAIR RES RURAL | Map ID: | |
| Neighborhood CD: | 212013 |
Owner |
| Name: | MCCARTY KYLE GORDON & DARLENE BROOKE | Owner ID: | 69628 |
| Mailing Address: | 194 FRONTAGE RD WALLA WALLA, WA 99362 | % Ownership: | 100.0000000000% |
| | | Exemptions: | |
Taxes and Assessment Details
Values
| (+) Improvement Homesite Value: | + | $0 | |
| (+) Improvement Non-Homesite Value: | + | $418,850 | |
| (+) Land Homesite Value: | + | $0 | |
| (+) Land Non-Homesite Value: | + | $29,980 | |
| (+) Curr Use (HS): | + | $0 | $0 |
| (+) Curr Use (NHS): | + | $0 | $0 |
| | | -------------------------- | |
| (=) Market Value: | = | $448,830 | |
| (–) Productivity Loss: | – | $0 | |
| | | -------------------------- | |
| (=) Subtotal: | = | $448,830 | |
| (+) Senior Appraised Value: | + | $0 | |
| (+) Non-Senior Appraised Value: | + | $448,830 | |
| | | -------------------------- | |
| (=) Total Appraised Value: | = | $448,830 | |
| (–) Senior Exemption Loss: | – | $0 | |
| (–) Exemption Loss: | – | $0 | |
| | | -------------------------- | |
| (=) Taxable Value: | = | $448,830 | |
Taxing Jurisdiction
| Owner: | MCCARTY KYLE GORDON & DARLENE BROOKE | | |
| % Ownership: | 100.0000000000% | | |
| Total Value: | $448,830 | | |
| Tax Area: | 311 - 250-4 |
| CERFD | CURRENT EXPENSE REFUND 010 | 0.0000000000 | $448,830 | $448,830 | $0.00 | | |
| CURREXP | CURRENT EXPENSE 010 | 1.0175366760 | $448,830 | $448,830 | $456.70 | | |
| HUMNSERV | HUMAN SERVICES 119 | 0.0250000000 | $448,830 | $448,830 | $11.22 | | |
| SLDREL | SOLDIERS RELIEF 121 | 0.0155990005 | $448,830 | $448,830 | $7.00 | | |
| EMERGSER | EMS 147 | 0.3792580840 | $448,830 | $448,830 | $170.22 | | |
| EMSRFD | EMS REFUND 147 | 0.0000000000 | $448,830 | $448,830 | $0.00 | | |
| FD4EXP | FD #4 EXPENSE 686 | 0.8836993059 | $448,830 | $448,830 | $396.63 | | |
| RLBRFD | RURAL LIBRARY REFUND 623 | 0.0000000000 | $448,830 | $448,830 | $0.00 | | |
| RURALLIB | RURAL LIBRARY 623 | 0.3710609029 | $448,830 | $448,830 | $166.54 | | |
| PORTRFD | PORT REFUND 640 | 0.0000000000 | $448,830 | $448,830 | $0.00 | | |
| PORTWWGEN | PORT OF WW 640 | 0.2460186015 | $448,830 | $448,830 | $110.42 | | |
| SD250BOND | SD #250 BOND 773 | 1.4560608159 | $448,830 | $448,830 | $653.52 | | |
| SD250GEN | SD #250 GENERAL 770 | 2.3880724087 | $448,830 | $448,830 | $1,071.84 | | |
| ST2 | STATE SCHOOL PART 2 600 | 0.8131451643 | $448,830 | $448,830 | $364.96 | | |
| STATESCHL | STATE SCHOOL 600 | 1.5158548041 | $448,830 | $448,830 | $680.36 | | |
| STREFUND | STATE REFUND LEVY 603 | 0.0000000000 | $448,830 | $448,830 | $0.00 | | |
| COROAD | COUNTY ROAD 115 | 1.6549953990 | $448,830 | $448,830 | $742.81 | | |
| CRPRD | COUNTY ROAD REFUND 115 | 0.0000000000 | $448,830 | $448,830 | $0.00 | | |
| | Total Tax Rate: | 10.7663011628 | | | | | |
| | | | | Taxes w/Current Exemptions: | $4,832.22 | | |
| | | | | Taxes w/o Exemptions: | $4,832.22 | | |
Improvement / Building
| Improvement #1: | RESIDENTIAL | State Code: | 11 | 1683.0 sqft | Value: | $418,850 |
| Exterior Wall: | STUCCO | Heating/Cooling: | HEAT PUMP | | Number of Bathrooms: | 2 | Number of Bedrooms: | 3 | | Plumbing: | 11 | Roof Covering: | COMP SHINGLE |
|
| | Type | Description | Class CD | Sub Class CD | Year Built | Area |
| | MA | Main Area | 1 | 30 | 2015 | 1683.0 |
| | ATG | Attached Garage | 1 | 30 | 2015 | 784.0 |
| | RPS | PORCH W/STEPS,ROOF | 1 | 30 | 2015 | 270.0 |
| | TOOL | TOOL SHED | 1 | 30 | 2015 | 100.0 |
| | RPC | OPEN PORCH W/ROOF , CEILED | 1 | 30 | 2015 | 56.0 |
| | SI1 | SITE IMPROVEMENT | 1 | 30 | 2015 | 2.0 |
Sketch
Property Image
Land
| 1 | RES 1 | Converted: Residential | 0.5736 | 24984.00 | 0.00 | 0.00 | 1.00 | $29,980 | $0 |
Roll Value History
| 2025 | N/A | N/A | N/A | N/A | N/A |
| 2024 | $418,850 | $29,980 | $0 | $448,830 | $448,830 |
| 2023 | $418,850 | $29,980 | $0 | $448,830 | $448,830 |
| 2022 | $398,910 | $29,980 | $0 | $428,890 | $428,890 |
| 2021 | $234,650 | $29,980 | $0 | $264,630 | $264,630 |
| 2020 | $224,530 | $25,700 | $0 | $250,230 | $250,230 |
| 2019 | $224,530 | $25,700 | $0 | $250,230 | $250,230 |
| 2018 | $204,120 | $25,700 | $0 | $229,820 | $229,820 |
| 2017 | $204,120 | $25,700 | $0 | $229,820 | $229,820 |
| 2016 | $194,400 | $25,700 | $0 | $220,100 | $220,100 |
| 2015 | $0 | $25,700 | $0 | $25,700 | $25,700 |
| 2014 | $0 | $25,700 | $0 | $25,700 | $25,700 |
| 2013 | $0 | $42,800 | $0 | $42,800 | $42,800 |
| 2012 | $0 | $42,800 | $0 | $0 | $0 |
| 2011 | $0 | $42,800 | $0 | $0 | $0 |
| 2010 | $0 | $42,800 | $0 | $0 | $0 |
| 2009 | $0 | $33,800 | $0 | $0 | $0 |
| 2008 | $0 | $33,800 | $0 | $0 | $0 |
| 2007 | $0 | $33,800 | $0 | $0 | $0 |
| 2006 | $0 | $33,800 | $0 | $0 | $0 |
Deed and Sales History
| 1 | 06/17/2021 | SWD | STATUTORY WARRANTY DEED | MARTINEZ RAYMUNDO SEGOVIA | MCCARTY KYLE GORDON & DARLENE BROOKE | | | $449,000.00 | 141826 | 2021-07387 |
| 2 | 07/23/2015 | QCD | QUIT CLAIM DEED | SEGOVIA JOSE G | MARTINEZ RAYMUNDO SEGOVIA | | | $0.00 | 128464 | 2015-06328 |
| 3 | 10/11/2013 | WARRANTY D | WARRANTY DEED | GRAND VISTA ESTATE DEV LLC | SEGOVIA, JOSE G | | | $25,000.00 | 124810 | 2013-10314 |
| 4 | 07/09/2002 | WARRANTY D | WARRANTY DEED | | | | | $32,500.00 | 99891 | 2002-0007766 |
Payout Agreement
| No payout information available.. |