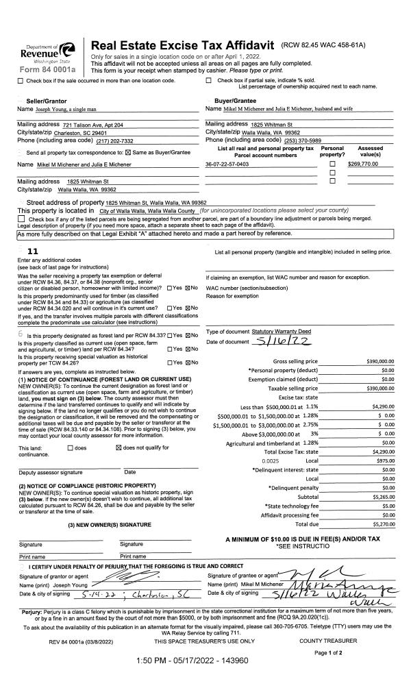
Property
Account |
| Property ID: | 6965 | Abbreviated Legal Description: | COUNCIL GROVE LOT 11 |
| Parcel Number: | 360720600011 | Agent Code: | |
| Type: | Real | | |
| Tax Area: | 1 - OL-140-F | Land Use Code | 11 |
| Open Space: | N | DFL | N |
| Historic Property: | N | Remodel Property: | N |
| Multi-Family Redevelopment: | N | | |
| Township: | 7 | Section: | 20 |
| Range: | 36 |
Location |
| Address: | 432 E ALDER ST WA 99362 | Mapsco: | |
| Neighborhood: | A-SFR | Map ID: | |
| Neighborhood CD: | 513011 |
Owner |
| Name: | D'AGOSTINO ELIZABETH D | Owner ID: | 69062 |
| Mailing Address: | 13317 SW REDDINGS BEACH RD VASHON, WA 98070 | % Ownership: | 100.0000000000% |
| | | Exemptions: | |
Taxes and Assessment Details
Values
| (+) Improvement Homesite Value: | + | $0 | |
| (+) Improvement Non-Homesite Value: | + | $295,430 | |
| (+) Land Homesite Value: | + | $0 | |
| (+) Land Non-Homesite Value: | + | $40,130 | |
| (+) Curr Use (HS): | + | $0 | $0 |
| (+) Curr Use (NHS): | + | $0 | $0 |
| | | -------------------------- | |
| (=) Market Value: | = | $335,560 | |
| (–) Productivity Loss: | – | $0 | |
| | | -------------------------- | |
| (=) Subtotal: | = | $335,560 | |
| (+) Senior Appraised Value: | + | $0 | |
| (+) Non-Senior Appraised Value: | + | $335,560 | |
| | | -------------------------- | |
| (=) Total Appraised Value: | = | $335,560 | |
| (–) Senior Exemption Loss: | – | $0 | |
| (–) Exemption Loss: | – | $0 | |
| | | -------------------------- | |
| (=) Taxable Value: | = | $335,560 | |
Taxing Jurisdiction
| Owner: | D'AGOSTINO ELIZABETH D | | |
| % Ownership: | 100.0000000000% | | |
| Total Value: | $335,560 | | |
| Tax Area: | 1 - OL-140-F |
| CERFD | CURRENT EXPENSE REFUND 010 | 0.0000000000 | $335,560 | $335,560 | $0.00 | | |
| CURREXP | CURRENT EXPENSE 010 | 1.0175366760 | $335,560 | $335,560 | $341.44 | | |
| HUMNSERV | HUMAN SERVICES 119 | 0.0250000000 | $335,560 | $335,560 | $8.39 | | |
| SLDREL | SOLDIERS RELIEF 121 | 0.0155990005 | $335,560 | $335,560 | $5.23 | | |
| EMERGSER | EMS 147 | 0.3792580840 | $335,560 | $335,560 | $127.26 | | |
| EMSRFD | EMS REFUND 147 | 0.0000000000 | $335,560 | $335,560 | $0.00 | | |
| PORTRFD | PORT REFUND 640 | 0.0000000000 | $335,560 | $335,560 | $0.00 | | |
| PORTWWGEN | PORT OF WW 640 | 0.2460186015 | $335,560 | $335,560 | $82.55 | | |
| SD140BOND | SD #140 BOND 764 | 0.8342371393 | $335,560 | $335,560 | $279.94 | | |
| SD140GEN | SD #140 GENERAL 760 | 2.0646500647 | $335,560 | $335,560 | $692.81 | | |
| ST2 | STATE SCHOOL PART 2 600 | 0.8131451643 | $335,560 | $335,560 | $272.86 | | |
| STATESCHL | STATE SCHOOL 600 | 1.5158548041 | $335,560 | $335,560 | $508.66 | | |
| STREFUND | STATE REFUND LEVY 603 | 0.0000000000 | $335,560 | $335,560 | $0.00 | | |
| CWWBOND | C OF WW BOND 643 | 0.2760494372 | $335,560 | $335,560 | $92.63 | | |
| CWWGEN | CITY OF WW 631 | 1.6100204973 | $335,560 | $335,560 | $540.26 | | |
| CWWRFD | CITY OF WALLA WALLA REFUND 631 | 0.0000000000 | $335,560 | $335,560 | $0.00 | | |
| | Total Tax Rate: | 8.7973694689 | | | | | |
| | | | | Taxes w/Current Exemptions: | $2,952.03 | | |
| | | | | Taxes w/o Exemptions: | $2,952.03 | | |
Improvement / Building
| Improvement #1: | RESIDENTIAL | State Code: | 11 | 1951.0 sqft | Value: | $295,430 |
| Exterior Wall: | METAL/STEEL | Heating/Cooling: | WARM & COOLED AIR | | Number of Bathrooms: | 2 | Number of Bedrooms: | 5 | | Plumbing: | 9 | Roof Covering: | COMP SHINGLE |
|
| | Type | Description | Class CD | Sub Class CD | Year Built | Area |
| | MA | Main Area | 2 | 35 | 1909 | 1951.0 |
| | SI1 | SITE IMPROVEMENT | 2 | 35 | 1909 | 2.0 |
| | BASE | BASEMENT | 2 | 35 | 1909 | 884.0 |
| | UPFL | Upper Floor (included in main area) | 2 | 35 | 1909 | 1000.0 |
| | CAB | REC CABIN | 2 | 35 | 1909 | 394.0 |
| | CPC | COVERED CARPORT/PATIO | 2 | 35 | 1909 | 114.0 |
| | FIXT | AVERAGE FIXTURE | 2 | 35 | 1909 | 4.0 |
| | RCD | WOOD DECK W/ROOF, CEILED | 2 | 35 | 1909 | 268.0 |
| | S1F | Single One Story Fireplace | 2 | 35 | 1909 | 1.0 |
Sketch
Property Image
Land
| 1 | RES 1 | Converted: Residential | 0.1474 | 6420.00 | 0.00 | 0.00 | 1.00 | $40,130 | $0 |
Roll Value History
| 2025 | N/A | N/A | N/A | N/A | N/A |
| 2024 | $315,200 | $64,200 | $0 | $379,400 | $379,400 |
| 2023 | $295,430 | $40,130 | $0 | $335,560 | $335,560 |
| 2022 | $281,360 | $40,130 | $0 | $321,490 | $321,490 |
| 2021 | $216,430 | $40,130 | $0 | $256,560 | $256,560 |
| 2020 | $180,360 | $40,130 | $0 | $220,490 | $220,490 |
| 2019 | $180,360 | $40,130 | $0 | $220,490 | $220,490 |
| 2018 | $171,770 | $40,130 | $0 | $211,900 | $211,900 |
| 2017 | $167,130 | $25,700 | $0 | $192,830 | $192,830 |
| 2016 | $151,930 | $25,700 | $0 | $177,630 | $177,630 |
| 2015 | $138,120 | $25,700 | $0 | $163,820 | $163,820 |
| 2014 | $115,100 | $25,700 | $0 | $140,800 | $140,800 |
| 2013 | $115,100 | $25,700 | $0 | $140,800 | $140,800 |
| 2012 | $115,100 | $25,700 | $0 | $0 | $0 |
| 2011 | $96,700 | $25,700 | $0 | $0 | $0 |
| 2010 | $90,900 | $25,700 | $0 | $0 | $0 |
| 2009 | $103,800 | $25,700 | $0 | $0 | $0 |
| 2008 | $103,800 | $25,700 | $0 | $0 | $0 |
| 2007 | $103,800 | $25,700 | $0 | $0 | $0 |
| 2006 | $77,000 | $12,800 | $0 | $0 | $0 |
Deed and Sales History
| 1 | 03/25/2021 | LOPA | LACK OF PROBATE AFFIDAVIT | D'AGOSTINO JOSEPH G | D'AGOSTINO ELIZABETH D | | 3 PARCELS | $0.00 | 141186 | 2021-03472 |
| 2 | 02/24/2010 | WARRANTY D | WARRANTY DEED | MOUNTAIN, WANDA ET AL | D'AGOSTINO, JOSEPH G | | | | 96946 | 2010-01654 |
| 3 | 04/13/2001 | WARRANTY D | WARRANTY DEED | | | | | $90,000.00 | 96951 | 3110-103601 |
Payout Agreement
| No payout information available.. |