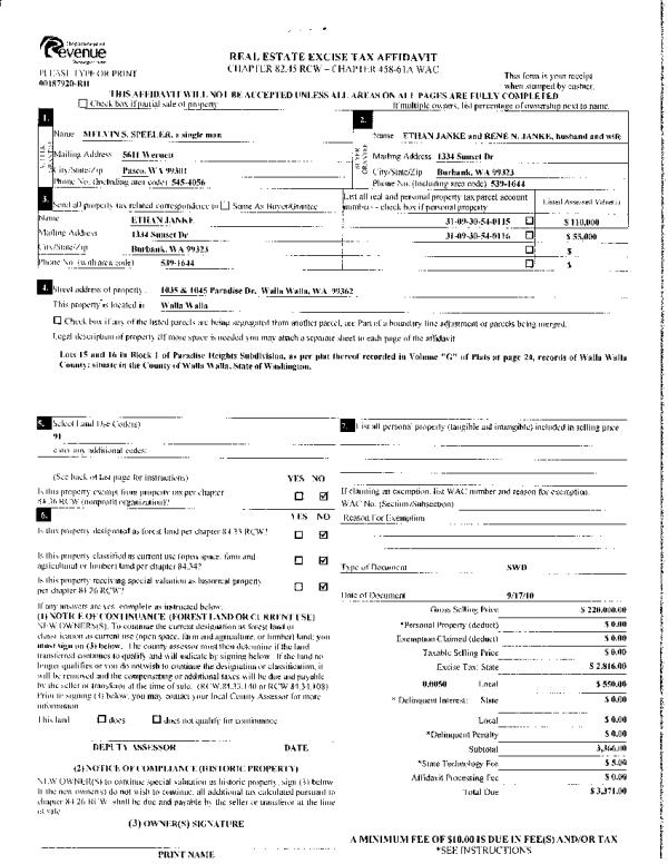
Property
Account |
| Property ID: | 6928 | Abbreviated Legal Description: | LANGFORDS LOT 8 BLK 24 |
| Parcel Number: | 360719592408 | Agent Code: | |
| Type: | Real | | |
| Tax Area: | 1 - OL-140-F | Land Use Code | 91 |
| Open Space: | N | DFL | N |
| Historic Property: | N | Remodel Property: | N |
| Multi-Family Redevelopment: | N | | |
| Township: | 7 | Section: | 19 |
| Range: | 36 |
Location |
| Address: | 941 N 12TH AVE WA 99362 | Mapsco: | |
| Neighborhood: | COMMERCIAL INDUSTRIAL | Map ID: | |
| Neighborhood CD: | 3303 |
Owner |
| Name: | BECKNER BRADLEY & KARA | Owner ID: | 58569 |
| Mailing Address: | PO BOX 3333 WALLA WALLA, WA 99362 | % Ownership: | 100.0000000000% |
| | | Exemptions: | |
Taxes and Assessment Details
Values
| (+) Improvement Homesite Value: | + | $0 | |
| (+) Improvement Non-Homesite Value: | + | $0 | |
| (+) Land Homesite Value: | + | $0 | |
| (+) Land Non-Homesite Value: | + | $25,800 | |
| (+) Curr Use (HS): | + | $0 | $0 |
| (+) Curr Use (NHS): | + | $0 | $0 |
| | | -------------------------- | |
| (=) Market Value: | = | $25,800 | |
| (–) Productivity Loss: | – | $0 | |
| | | -------------------------- | |
| (=) Subtotal: | = | $25,800 | |
| (+) Senior Appraised Value: | + | $0 | |
| (+) Non-Senior Appraised Value: | + | $25,800 | |
| | | -------------------------- | |
| (=) Total Appraised Value: | = | $25,800 | |
| (–) Senior Exemption Loss: | – | $0 | |
| (–) Exemption Loss: | – | $0 | |
| | | -------------------------- | |
| (=) Taxable Value: | = | $25,800 | |
Taxing Jurisdiction
| Owner: | BECKNER BRADLEY & KARA | | |
| % Ownership: | 100.0000000000% | | |
| Total Value: | $25,800 | | |
| Tax Area: | 1 - OL-140-F |
| CERFD | CURRENT EXPENSE REFUND 010 | 0.0000000000 | $25,800 | $25,800 | $0.00 | | |
| CURREXP | CURRENT EXPENSE 010 | 1.0175366760 | $25,800 | $25,800 | $26.25 | | |
| HUMNSERV | HUMAN SERVICES 119 | 0.0250000000 | $25,800 | $25,800 | $0.65 | | |
| SLDREL | SOLDIERS RELIEF 121 | 0.0155990005 | $25,800 | $25,800 | $0.40 | | |
| EMERGSER | EMS 147 | 0.3792580840 | $25,800 | $25,800 | $9.78 | | |
| EMSRFD | EMS REFUND 147 | 0.0000000000 | $25,800 | $25,800 | $0.00 | | |
| PORTRFD | PORT REFUND 640 | 0.0000000000 | $25,800 | $25,800 | $0.00 | | |
| PORTWWGEN | PORT OF WW 640 | 0.2460186015 | $25,800 | $25,800 | $6.35 | | |
| SD140BOND | SD #140 BOND 764 | 0.8342371393 | $25,800 | $25,800 | $21.52 | | |
| SD140GEN | SD #140 GENERAL 760 | 2.0646500647 | $25,800 | $25,800 | $53.27 | | |
| ST2 | STATE SCHOOL PART 2 600 | 0.8131451643 | $25,800 | $25,800 | $20.98 | | |
| STATESCHL | STATE SCHOOL 600 | 1.5158548041 | $25,800 | $25,800 | $39.11 | | |
| STREFUND | STATE REFUND LEVY 603 | 0.0000000000 | $25,800 | $25,800 | $0.00 | | |
| CWWBOND | C OF WW BOND 643 | 0.2760494372 | $25,800 | $25,800 | $7.12 | | |
| CWWGEN | CITY OF WW 631 | 1.6100204973 | $25,800 | $25,800 | $41.54 | | |
| CWWRFD | CITY OF WALLA WALLA REFUND 631 | 0.0000000000 | $25,800 | $25,800 | $0.00 | | |
| | Total Tax Rate: | 8.7973694689 | | | | | |
| | | | | Taxes w/Current Exemptions: | $226.97 | | |
| | | | | Taxes w/o Exemptions: | $226.97 | | |
Improvement / Building
Sketch
| No sketches available for this property. |
Property Image
Land
| 1 | COM 1 | Converted: Commercial | 0.1481 | 6451.24 | 0.00 | 0.00 | 1.00 | $25,800 | $0 |
Roll Value History
| 2025 | N/A | N/A | N/A | N/A | N/A |
| 2024 | $0 | $25,800 | $0 | $25,800 | $25,800 |
| 2023 | $0 | $25,800 | $0 | $25,800 | $25,800 |
| 2022 | $0 | $25,800 | $0 | $25,800 | $25,800 |
| 2021 | $0 | $22,600 | $0 | $22,600 | $22,600 |
| 2020 | $0 | $22,600 | $0 | $22,600 | $22,600 |
| 2019 | $0 | $22,600 | $0 | $22,600 | $22,600 |
| 2018 | $0 | $22,600 | $0 | $22,600 | $22,600 |
| 2017 | $0 | $22,600 | $0 | $22,600 | $22,600 |
| 2016 | $0 | $22,600 | $0 | $22,600 | $22,600 |
| 2015 | $0 | $8,100 | $0 | $8,100 | $8,100 |
| 2014 | $0 | $8,100 | $0 | $8,100 | $8,100 |
| 2013 | $0 | $8,100 | $0 | $8,100 | $8,100 |
| 2012 | $0 | $8,100 | $0 | $0 | $0 |
| 2011 | $0 | $8,100 | $0 | $0 | $0 |
| 2010 | $0 | $7,700 | $0 | $0 | $0 |
| 2009 | $0 | $4,800 | $0 | $0 | $0 |
| 2008 | $0 | $4,800 | $0 | $0 | $0 |
| 2007 | $0 | $4,800 | $0 | $0 | $0 |
| 2006 | $0 | $4,800 | $0 | $0 | $0 |
Deed and Sales History
| 1 | 08/07/2020 | SWD | STATUTORY WARRANTY DEED | MELLISH DANIEL R | BECKNER BRADLEY & KARA | | | $28,000.00 | 139669 | 2020-07757 |
| 2 | 06/04/2014 | QCD | QUIT CLAIM DEED | MELLISH DANIEL R | MELLISH DANIEL R | | | $0.00 | 126020 | 2014-03861 |
| 3 | 06/25/2013 | QCD | QUIT CLAIM DEED | DEAN, LEORA | MELLISH, DANIEL R | | | $0.00 | 124182 | 2013-06423 |
| 4 | 11/24/1997 | WARRANTY D | WARRANTY DEED | | | | | $4,500.00 | 89395 | 2599-711538 |
Payout Agreement
| No payout information available.. |