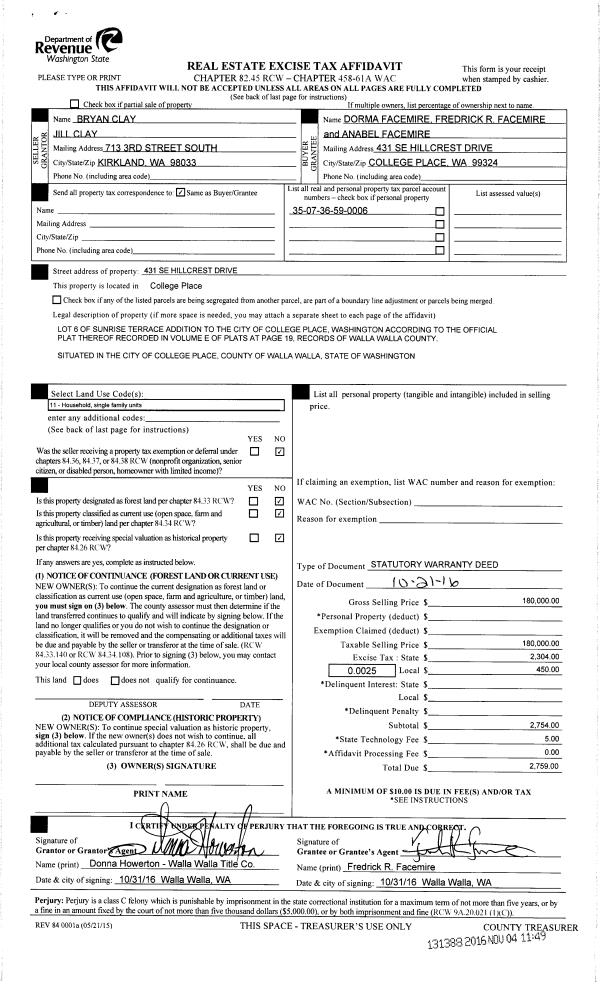
Property
Account |
| Property ID: | 6829 | Abbreviated Legal Description: | LANGFORDS TAX 2 BLK 7 |
| Parcel Number: | 360719590709 | Agent Code: | |
| Type: | Real | | |
| Tax Area: | 1 - OL-140-F | Land Use Code | 11 |
| Open Space: | N | DFL | N |
| Historic Property: | N | Remodel Property: | N |
| Multi-Family Redevelopment: | N | | |
| Township: | 7 | Section: | 19 |
| Range: | 36 |
Location |
| Address: | 1140 N 12TH AVE WA 99362 | Mapsco: | |
| Neighborhood: | A-SFR | Map ID: | |
| Neighborhood CD: | 313011 |
Owner |
| Name: | GARCIA ALEXCIA | Owner ID: | 60578 |
| Mailing Address: | FRANCISCO J LARA DIAZ 1140 N 12TH AVE WALLA WALLA, WA 99362 | % Ownership: | 100.0000000000% |
| | | Exemptions: | |
Taxes and Assessment Details
Values
| (+) Improvement Homesite Value: | + | $0 | |
| (+) Improvement Non-Homesite Value: | + | $157,560 | |
| (+) Land Homesite Value: | + | $0 | |
| (+) Land Non-Homesite Value: | + | $56,430 | |
| (+) Curr Use (HS): | + | $0 | $0 |
| (+) Curr Use (NHS): | + | $0 | $0 |
| | | -------------------------- | |
| (=) Market Value: | = | $213,990 | |
| (–) Productivity Loss: | – | $0 | |
| | | -------------------------- | |
| (=) Subtotal: | = | $213,990 | |
| (+) Senior Appraised Value: | + | $0 | |
| (+) Non-Senior Appraised Value: | + | $213,990 | |
| | | -------------------------- | |
| (=) Total Appraised Value: | = | $213,990 | |
| (–) Senior Exemption Loss: | – | $0 | |
| (–) Exemption Loss: | – | $0 | |
| | | -------------------------- | |
| (=) Taxable Value: | = | $213,990 | |
Taxing Jurisdiction
| Owner: | GARCIA ALEXCIA | | |
| % Ownership: | 100.0000000000% | | |
| Total Value: | $213,990 | | |
| Tax Area: | 1 - OL-140-F |
| CERFD | CURRENT EXPENSE REFUND 010 | 0.0000000000 | $213,990 | $213,990 | $0.00 | | |
| CURREXP | CURRENT EXPENSE 010 | 1.0175366760 | $213,990 | $213,990 | $217.74 | | |
| HUMNSERV | HUMAN SERVICES 119 | 0.0250000000 | $213,990 | $213,990 | $5.35 | | |
| SLDREL | SOLDIERS RELIEF 121 | 0.0155990005 | $213,990 | $213,990 | $3.34 | | |
| EMERGSER | EMS 147 | 0.3792580840 | $213,990 | $213,990 | $81.16 | | |
| EMSRFD | EMS REFUND 147 | 0.0000000000 | $213,990 | $213,990 | $0.00 | | |
| PORTRFD | PORT REFUND 640 | 0.0000000000 | $213,990 | $213,990 | $0.00 | | |
| PORTWWGEN | PORT OF WW 640 | 0.2460186015 | $213,990 | $213,990 | $52.65 | | |
| SD140BOND | SD #140 BOND 764 | 0.8342371393 | $213,990 | $213,990 | $178.52 | | |
| SD140GEN | SD #140 GENERAL 760 | 2.0646500647 | $213,990 | $213,990 | $441.81 | | |
| ST2 | STATE SCHOOL PART 2 600 | 0.8131451643 | $213,990 | $213,990 | $174.00 | | |
| STATESCHL | STATE SCHOOL 600 | 1.5158548041 | $213,990 | $213,990 | $324.38 | | |
| STREFUND | STATE REFUND LEVY 603 | 0.0000000000 | $213,990 | $213,990 | $0.00 | | |
| CWWBOND | C OF WW BOND 643 | 0.2760494372 | $213,990 | $213,990 | $59.07 | | |
| CWWGEN | CITY OF WW 631 | 1.6100204973 | $213,990 | $213,990 | $344.53 | | |
| CWWRFD | CITY OF WALLA WALLA REFUND 631 | 0.0000000000 | $213,990 | $213,990 | $0.00 | | |
| | Total Tax Rate: | 8.7973694689 | | | | | |
| | | | | Taxes w/Current Exemptions: | $1,882.55 | | |
| | | | | Taxes w/o Exemptions: | $1,882.55 | | |
Improvement / Building
| Improvement #1: | RESIDENTIAL | State Code: | 11 | 1008.0 sqft | Value: | $157,560 |
| Exterior Wall: | SIDING | Heating/Cooling: | FORCED AIR | | Number of Bathrooms: | 1 | Number of Bedrooms: | 2 | | Plumbing: | 6 | Roof Covering: | COMP SHINGLE |
|
| | Type | Description | Class CD | Sub Class CD | Year Built | Area |
| | MA | Main Area | 1 | 25 | 1929 | 1008.0 |
| | SI1 | SITE IMPROVEMENT | 1 | 25 | 0 | 1.0 |
| | BASE | BASEMENT | 1 | 25 | 1929 | 848.0 |
| | RPS | PORCH W/STEPS,ROOF | 1 | 25 | 1929 | 15.0 |
Sketch
Property Image
Land
| 1 | RES 1 | Converted: Residential | 0.1570 | 6840.00 | 0.00 | 0.00 | 1.00 | $56,430 | $0 |
Roll Value History
| 2025 | N/A | N/A | N/A | N/A | N/A |
| 2024 | $157,560 | $56,430 | $0 | $213,990 | $213,990 |
| 2023 | $157,560 | $56,430 | $0 | $213,990 | $213,990 |
| 2022 | $112,540 | $56,430 | $0 | $168,970 | $168,970 |
| 2021 | $135,190 | $25,000 | $0 | $160,190 | $160,190 |
| 2020 | $103,990 | $25,000 | $0 | $128,990 | $128,990 |
| 2019 | $103,990 | $25,000 | $0 | $128,990 | $128,990 |
| 2018 | $86,660 | $25,000 | $0 | $111,660 | $111,660 |
| 2017 | $61,900 | $25,000 | $0 | $86,900 | $86,900 |
| 2016 | $61,900 | $25,000 | $0 | $86,900 | $86,900 |
| 2015 | $58,700 | $25,000 | $0 | $83,700 | $83,700 |
| 2014 | $55,900 | $25,000 | $0 | $80,900 | $80,900 |
| 2013 | $55,900 | $25,000 | $0 | $80,900 | $80,900 |
| 2012 | $55,900 | $25,000 | $0 | $0 | $0 |
| 2011 | $55,900 | $25,000 | $0 | $0 | $0 |
| 2010 | $54,200 | $25,000 | $0 | $0 | $0 |
| 2009 | $71,400 | $12,000 | $0 | $0 | $0 |
| 2008 | $45,500 | $12,000 | $0 | $0 | $0 |
| 2007 | $45,500 | $12,000 | $0 | $0 | $0 |
| 2006 | $45,500 | $12,000 | $0 | $0 | $0 |
Deed and Sales History
| 1 | 10/16/2023 | QCD | QUIT CLAIM DEED | GARCIA ALEXCIA | LARA DIAZ FRANCISCO J & ALEXCIA C LARA | | | | 146644 | 2023-06069 |
| 2 | 03/21/2017 | SWD | STATUTORY WARRANTY DEED | CANTU FRANK D & ANGELITA | GARCIA ALEXCIA | | | $60,000.00 | 132078 | 2017-02167 |
| 3 | 09/13/1983 | WARRANTY D | WARRANTY DEED | | | | | $7,000.00 | 33762 | 1398-306632 |
Payout Agreement
| No payout information available.. |