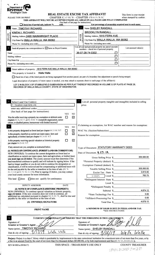
Property
Account |
| Property ID: | 6753 | Abbreviated Legal Description: | KNAPP ADDN PARCEL 8 BLK 4 |
| Parcel Number: | 350736620408 | Agent Code: | |
| Type: | Real | | |
| Tax Area: | 77 - CP-250-F | Land Use Code | 11 |
| Open Space: | N | DFL | N |
| Historic Property: | N | Remodel Property: | N |
| Multi-Family Redevelopment: | N | | |
| Township: | 7 | Section: | 36 |
| Range: | 35 |
Location |
| Address: | 1210 SE COLONIAL DR WA 99324 | Mapsco: | |
| Neighborhood: | A SFR Rural/City Inf | Map ID: | |
| Neighborhood CD: | 113012 |
Owner |
| Name: | FLORES JAIME N & DIANA VICTORIA | Owner ID: | 65157 |
| Mailing Address: | 1210 SE COLONIAL DR COLLEGE PLACE, WA 99324 | % Ownership: | 100.0000000000% |
| | | Exemptions: | |
Taxes and Assessment Details
Values
| (+) Improvement Homesite Value: | + | $0 | |
| (+) Improvement Non-Homesite Value: | + | $215,990 | |
| (+) Land Homesite Value: | + | $0 | |
| (+) Land Non-Homesite Value: | + | $70,000 | |
| (+) Curr Use (HS): | + | $0 | $0 |
| (+) Curr Use (NHS): | + | $0 | $0 |
| | | -------------------------- | |
| (=) Market Value: | = | $285,990 | |
| (–) Productivity Loss: | – | $0 | |
| | | -------------------------- | |
| (=) Subtotal: | = | $285,990 | |
| (+) Senior Appraised Value: | + | $0 | |
| (+) Non-Senior Appraised Value: | + | $285,990 | |
| | | -------------------------- | |
| (=) Total Appraised Value: | = | $285,990 | |
| (–) Senior Exemption Loss: | – | $0 | |
| (–) Exemption Loss: | – | $0 | |
| | | -------------------------- | |
| (=) Taxable Value: | = | $285,990 | |
Taxing Jurisdiction
| Owner: | FLORES JAIME N & DIANA VICTORIA | | |
| % Ownership: | 100.0000000000% | | |
| Total Value: | $285,990 | | |
| Tax Area: | 77 - CP-250-F |
| CERFD | CURRENT EXPENSE REFUND 010 | 0.0000000000 | $285,990 | $285,990 | $0.00 | | |
| CURREXP | CURRENT EXPENSE 010 | 1.0175366760 | $285,990 | $285,990 | $291.01 | | |
| HUMNSERV | HUMAN SERVICES 119 | 0.0250000000 | $285,990 | $285,990 | $7.15 | | |
| SLDREL | SOLDIERS RELIEF 121 | 0.0155990005 | $285,990 | $285,990 | $4.46 | | |
| COLLPLBOND | C OF CP BOND 644 | 0.4374241808 | $285,990 | $285,990 | $125.10 | | |
| COLLPLGEN | CITY OF CP 632 | 1.4453819216 | $285,990 | $285,990 | $413.36 | | |
| EMERGSER | EMS 147 | 0.3792580840 | $285,990 | $285,990 | $108.46 | | |
| EMSRFD | EMS REFUND 147 | 0.0000000000 | $285,990 | $285,990 | $0.00 | | |
| RURALLIB | RURAL LIBRARY 623 | 0.3710609029 | $285,990 | $285,990 | $106.12 | | |
| PORTRFD | PORT REFUND 640 | 0.0000000000 | $285,990 | $285,990 | $0.00 | | |
| PORTWWGEN | PORT OF WW 640 | 0.2460186015 | $285,990 | $285,990 | $70.36 | | |
| SD250BOND | SD #250 BOND 773 | 1.4560608159 | $285,990 | $285,990 | $416.42 | | |
| SD250GEN | SD #250 GENERAL 770 | 2.3880724087 | $285,990 | $285,990 | $682.96 | | |
| ST2 | STATE SCHOOL PART 2 600 | 0.8131451643 | $285,990 | $285,990 | $232.55 | | |
| STATESCHL | STATE SCHOOL 600 | 1.5158548041 | $285,990 | $285,990 | $433.52 | | |
| STREFUND | STATE REFUND LEVY 603 | 0.0000000000 | $285,990 | $285,990 | $0.00 | | |
| | Total Tax Rate: | 10.1104125603 | | | | | |
| | | | | Taxes w/Current Exemptions: | $2,891.47 | | |
| | | | | Taxes w/o Exemptions: | $2,891.47 | | |
Improvement / Building
| Improvement #1: | RESIDENTIAL | State Code: | 11 | 1288.0 sqft | Value: | $215,990 |
| Exterior Wall: | SIDING | Heating/Cooling: | WARM & COOLED AIR | | Number of Bathrooms: | 2 | Number of Bedrooms: | 3 | | Plumbing: | 9 | Roof Covering: | COMP SHINGLE |
|
| | Type | Description | Class CD | Sub Class CD | Year Built | Area |
| | MA | Main Area | 1 | 30 | 1983 | 1288.0 |
| | SI1 | SITE IMPROVEMENT | 1 | 30 | 1983 | 1.5 |
| | ATG | Attached Garage | 1 | 30 | 1983 | 480.0 |
| | RPS | PORCH W/STEPS,ROOF | 1 | 30 | 1983 | 50.0 |
| | CPC | COVERED CARPORT/PATIO | 1 | 30 | 1983 | 240.0 |
Sketch
Property Image
Land
| 1 | RES 1 | Converted: Residential | 0.2435 | 10606.00 | 0.00 | 0.00 | 1.00 | $70,000 | $0 |
Roll Value History
| 2025 | N/A | N/A | N/A | N/A | N/A |
| 2024 | $215,990 | $70,000 | $0 | $285,990 | $285,990 |
| 2023 | $215,990 | $70,000 | $0 | $285,990 | $285,990 |
| 2022 | $205,700 | $70,000 | $0 | $275,700 | $275,700 |
| 2021 | $171,420 | $70,000 | $0 | $241,420 | $241,420 |
| 2020 | $114,280 | $70,000 | $0 | $184,280 | $184,280 |
| 2019 | $129,280 | $55,000 | $0 | $184,280 | $184,280 |
| 2018 | $123,120 | $55,000 | $0 | $178,120 | $178,120 |
| 2017 | $107,060 | $55,000 | $0 | $162,060 | $162,060 |
| 2016 | $101,970 | $55,000 | $0 | $156,970 | $156,970 |
| 2015 | $97,110 | $55,000 | $0 | $152,110 | $152,110 |
| 2014 | $107,900 | $55,000 | $0 | $162,900 | $162,900 |
| 2013 | $107,900 | $55,000 | $0 | $162,900 | $162,900 |
| 2012 | $107,900 | $55,000 | $0 | $0 | $0 |
| 2011 | $107,900 | $55,000 | $0 | $0 | $0 |
| 2010 | $107,900 | $55,000 | $0 | $0 | $0 |
| 2009 | $116,500 | $55,000 | $0 | $0 | $0 |
| 2008 | $89,600 | $30,000 | $0 | $0 | $0 |
| 2007 | $89,600 | $30,000 | $0 | $0 | $0 |
| 2006 | $89,600 | $30,000 | $0 | $0 | $0 |
Deed and Sales History
| 1 | 05/23/2019 | SWD | STATUTORY WARRANTY DEED | LAZARO VIDAL A | FLORES JAIME N & DIANA VICTORIA | | | $225,000.00 | 136929 | 2019-03484 |
| 2 | 08/17/2007 | WARRANTY D | WARRANTY DEED | PETERSON, DALE E & JANET M | LAZARO, VIDAL A | | | | 113531 | 2007-09625 |
| 3 | 08/15/2007 | WARRANTY D | WARRANTY DEED | PETERSON, DALE E & JANET M | LAZARO, VIDAL A | | | $174,900.00 | 113520 | 2007-09528 |
| 4 | 11/21/2003 | WARRANTY D | WARRANTY DEED | BEAUCHAMP, JANICE I | PETERSON, DALE E & JANET M | | | $119,900.00 | 103580 | 2003-17985 |
| 5 | 11/08/1999 | WARRANTY D | WARRANTY DEED | | | | | $98,500.00 | 93983 | 2919-912800 |
Payout Agreement
| No payout information available.. |