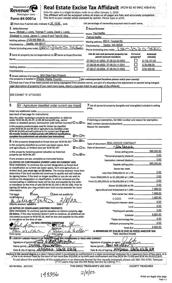
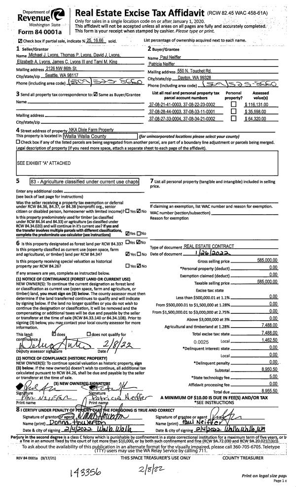
Property
Account |
| Property ID: | 6672 | Abbreviated Legal Description: | SMALLS AMENDED PLAT SLY 83.4' OF ELY 1/2 OF LOT 17 SLY 83.4' OF LOT18 |
| Parcel Number: | 360720750018 | Agent Code: | |
| Type: | Real | | |
| Tax Area: | 1 - OL-140-F | Land Use Code | 11 |
| Open Space: | N | DFL | N |
| Historic Property: | N | Remodel Property: | N |
| Multi-Family Redevelopment: | N | | |
| Township: | 7 | Section: | 20 |
| Range: | 36 |
Location |
| Address: | 345 E BIRCH ST WA 99362 | Mapsco: | |
| Neighborhood: | G-SFR | Map ID: | |
| Neighborhood CD: | 514011 |
Owner |
| Name: | SMILEY AVANULAS R & ANGELA M | Owner ID: | 73272 |
| Mailing Address: | 345 E BIRCH ST WALLA WALLA, WA 99362 | % Ownership: | 100.0000000000% |
| | | Exemptions: | |
Taxes and Assessment Details
Values
| (+) Improvement Homesite Value: | + | $0 | |
| (+) Improvement Non-Homesite Value: | + | $608,330 | |
| (+) Land Homesite Value: | + | $0 | |
| (+) Land Non-Homesite Value: | + | $40,320 | |
| (+) Curr Use (HS): | + | $0 | $0 |
| (+) Curr Use (NHS): | + | $0 | $0 |
| | | -------------------------- | |
| (=) Market Value: | = | $648,650 | |
| (–) Productivity Loss: | – | $0 | |
| | | -------------------------- | |
| (=) Subtotal: | = | $648,650 | |
| (+) Senior Appraised Value: | + | $0 | |
| (+) Non-Senior Appraised Value: | + | $648,650 | |
| | | -------------------------- | |
| (=) Total Appraised Value: | = | $648,650 | |
| (–) Senior Exemption Loss: | – | $0 | |
| (–) Exemption Loss: | – | $0 | |
| | | -------------------------- | |
| (=) Taxable Value: | = | $648,650 | |
Taxing Jurisdiction
| Owner: | SMILEY AVANULAS R & ANGELA M | | |
| % Ownership: | 100.0000000000% | | |
| Total Value: | $648,650 | | |
| Tax Area: | 1 - OL-140-F |
| CERFD | CURRENT EXPENSE REFUND 010 | 0.0000000000 | $648,650 | $648,650 | $0.00 | | |
| CURREXP | CURRENT EXPENSE 010 | 1.0175366760 | $648,650 | $648,650 | $660.03 | | |
| HUMNSERV | HUMAN SERVICES 119 | 0.0250000000 | $648,650 | $648,650 | $16.22 | | |
| SLDREL | SOLDIERS RELIEF 121 | 0.0155990005 | $648,650 | $648,650 | $10.12 | | |
| EMERGSER | EMS 147 | 0.3792580840 | $648,650 | $648,650 | $246.01 | | |
| EMSRFD | EMS REFUND 147 | 0.0000000000 | $648,650 | $648,650 | $0.00 | | |
| PORTRFD | PORT REFUND 640 | 0.0000000000 | $648,650 | $648,650 | $0.00 | | |
| PORTWWGEN | PORT OF WW 640 | 0.2460186015 | $648,650 | $648,650 | $159.58 | | |
| SD140BOND | SD #140 BOND 764 | 0.8342371393 | $648,650 | $648,650 | $541.13 | | |
| SD140GEN | SD #140 GENERAL 760 | 2.0646500647 | $648,650 | $648,650 | $1,339.24 | | |
| ST2 | STATE SCHOOL PART 2 600 | 0.8131451643 | $648,650 | $648,650 | $527.45 | | |
| STATESCHL | STATE SCHOOL 600 | 1.5158548041 | $648,650 | $648,650 | $983.26 | | |
| STREFUND | STATE REFUND LEVY 603 | 0.0000000000 | $648,650 | $648,650 | $0.00 | | |
| CWWBOND | C OF WW BOND 643 | 0.2760494372 | $648,650 | $648,650 | $179.06 | | |
| CWWGEN | CITY OF WW 631 | 1.6100204973 | $648,650 | $648,650 | $1,044.34 | | |
| CWWRFD | CITY OF WALLA WALLA REFUND 631 | 0.0000000000 | $648,650 | $648,650 | $0.00 | | |
| | Total Tax Rate: | 8.7973694689 | | | | | |
| | | | | Taxes w/Current Exemptions: | $5,706.44 | | |
| | | | | Taxes w/o Exemptions: | $5,706.44 | | |
Improvement / Building
| Improvement #1: | RESIDENTIAL | State Code: | 11 | 2133.0 sqft | Value: | $608,330 |
| Exterior Wall: | SIDING | Heating/Cooling: | WARM & COOLED AIR | | Number of Bathrooms: | 3 | Number of Bedrooms: | 5 | | Plumbing: | 13 | Roof Covering: | COMP SHINGLE |
|
| | Type | Description | Class CD | Sub Class CD | Year Built | Area |
| | MA | Main Area | 4 | 45 | 1896 | 2133.0 |
| | SI1 | SITE IMPROVEMENT | 4 | 45 | 0 | 3.5 |
| | WDR | WOOD DECK W/ROOF | 4 | 45 | 0 | 32.0 |
| | BASE | BASEMENT | 4 | 45 | 1896 | 1092.0 |
| | BPF | BASEMENT -PARTITIONED FINISH | 4 | 45 | 1896 | 500.0 |
| | DTG | Detached Garage | 4 | 45 | 1896 | 162.0 |
| | RPS | PORCH W/STEPS,ROOF | 4 | 45 | 1896 | 160.0 |
| | UPFL | Upper Floor (included in main area) | 4 | 45 | 1896 | 600.0 |
Sketch
Property Image
Land
| 1 | RES 1 | Converted: Residential | 0.1277 | 5561.00 | 0.00 | 0.00 | 1.00 | $40,320 | $0 |
Roll Value History
| 2025 | N/A | N/A | N/A | N/A | N/A |
| 2024 | $586,810 | $61,170 | $0 | $647,980 | $647,980 |
| 2023 | $608,330 | $40,320 | $0 | $648,650 | $648,650 |
| 2022 | $608,330 | $40,320 | $0 | $648,650 | $648,650 |
| 2021 | $304,160 | $40,320 | $0 | $344,480 | $344,480 |
| 2020 | $289,680 | $40,320 | $0 | $330,000 | $330,000 |
| 2019 | $289,680 | $40,320 | $0 | $330,000 | $330,000 |
| 2018 | $289,680 | $40,320 | $0 | $330,000 | $330,000 |
| 2017 | $257,360 | $25,000 | $0 | $282,360 | $282,360 |
| 2016 | $245,100 | $25,000 | $0 | $270,100 | $270,100 |
| 2015 | $245,100 | $25,000 | $0 | $270,100 | $270,100 |
| 2014 | $245,100 | $25,000 | $0 | $270,100 | $270,100 |
| 2013 | $245,100 | $25,000 | $0 | $270,100 | $270,100 |
| 2012 | $245,100 | $25,000 | $0 | $0 | $0 |
| 2011 | $245,100 | $25,000 | $0 | $0 | $0 |
| 2010 | $200,100 | $25,000 | $0 | $0 | $0 |
| 2009 | $225,100 | $25,000 | $0 | $0 | $0 |
| 2008 | $183,400 | $25,000 | $0 | $0 | $0 |
| 2007 | $183,400 | $25,000 | $0 | $0 | $0 |
| 2006 | $99,200 | $11,100 | $0 | $0 | $0 |
Deed and Sales History
| 1 | 03/13/2023 | SWD | STATUTORY WARRANTY DEED | PONTI BRYAN | SMILEY AVANULAS R & ANGELA M | | | $645,000.00 | 145508 | 2023-01273 |
| 2 | 03/25/2021 | QCD | QUIT CLAIM DEED | R GARY PONTI | PONTE MARILYN | | | | 141173 | 2021-03399 |
| 3 | 03/23/2021 | QCD | QUIT CLAIM DEED | PONTI ROBIN | PONTI BRYAN | | | | 141174 | 2021-03400 |
| 4 | 03/25/2021 | SWD | STATUTORY WARRANTY DEED | WORDEN WILLIAM SR & BRENDA | PONTI BRYAN | | | $350,000.00 | 141171 | 2021-03398 |
| 5 | 05/09/1994 | WARRANTY D | WARRANTY DEED | | | | | $93,900.00 | 81605 | 2199-405534 |
Payout Agreement
| No payout information available.. |