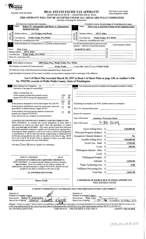
Property
Account |
| Property ID: | 6602 | Abbreviated Legal Description: | SHEILS ELY 20' OF LOT 7 BLK 2; LOT 8 BLK 2 |
| Parcel Number: | 360720730208 | Agent Code: | |
| Type: | Real | | |
| Tax Area: | 1 - OL-140-F | Land Use Code | 11 |
| Open Space: | N | DFL | N |
| Historic Property: | N | Remodel Property: | N |
| Multi-Family Redevelopment: | N | | |
| Township: | 7 | Section: | 20 |
| Range: | 36 |
Location |
| Address: | 18 W PINE ST WA 99362 | Mapsco: | |
| Neighborhood: | F SFR | Map ID: | |
| Neighborhood CD: | 512011 |
Owner |
| Name: | SATURNO RESIDENTIAL HOLDINGS LLC | Owner ID: | 68623 |
| Mailing Address: | 41 S PALOUSE ST WALLA WALLA, WA 99362 | % Ownership: | 100.0000000000% |
| | | Exemptions: | |
Taxes and Assessment Details
Values
| (+) Improvement Homesite Value: | + | $0 | |
| (+) Improvement Non-Homesite Value: | + | $178,950 | |
| (+) Land Homesite Value: | + | $0 | |
| (+) Land Non-Homesite Value: | + | $50,400 | |
| (+) Curr Use (HS): | + | $0 | $0 |
| (+) Curr Use (NHS): | + | $0 | $0 |
| | | -------------------------- | |
| (=) Market Value: | = | $229,350 | |
| (–) Productivity Loss: | – | $0 | |
| | | -------------------------- | |
| (=) Subtotal: | = | $229,350 | |
| (+) Senior Appraised Value: | + | $0 | |
| (+) Non-Senior Appraised Value: | + | $229,350 | |
| | | -------------------------- | |
| (=) Total Appraised Value: | = | $229,350 | |
| (–) Senior Exemption Loss: | – | $0 | |
| (–) Exemption Loss: | – | $0 | |
| | | -------------------------- | |
| (=) Taxable Value: | = | $229,350 | |
Taxing Jurisdiction
| Owner: | SATURNO RESIDENTIAL HOLDINGS LLC | | |
| % Ownership: | 100.0000000000% | | |
| Total Value: | $229,350 | | |
| Tax Area: | 1 - OL-140-F |
| CERFD | CURRENT EXPENSE REFUND 010 | 0.0000000000 | $229,350 | $229,350 | $0.00 | | |
| CURREXP | CURRENT EXPENSE 010 | 1.0175366760 | $229,350 | $229,350 | $233.37 | | |
| HUMNSERV | HUMAN SERVICES 119 | 0.0250000000 | $229,350 | $229,350 | $5.73 | | |
| SLDREL | SOLDIERS RELIEF 121 | 0.0155990005 | $229,350 | $229,350 | $3.58 | | |
| EMERGSER | EMS 147 | 0.3792580840 | $229,350 | $229,350 | $86.98 | | |
| EMSRFD | EMS REFUND 147 | 0.0000000000 | $229,350 | $229,350 | $0.00 | | |
| PORTRFD | PORT REFUND 640 | 0.0000000000 | $229,350 | $229,350 | $0.00 | | |
| PORTWWGEN | PORT OF WW 640 | 0.2460186015 | $229,350 | $229,350 | $56.42 | | |
| SD140BOND | SD #140 BOND 764 | 0.8342371393 | $229,350 | $229,350 | $191.33 | | |
| SD140GEN | SD #140 GENERAL 760 | 2.0646500647 | $229,350 | $229,350 | $473.53 | | |
| ST2 | STATE SCHOOL PART 2 600 | 0.8131451643 | $229,350 | $229,350 | $186.49 | | |
| STATESCHL | STATE SCHOOL 600 | 1.5158548041 | $229,350 | $229,350 | $347.66 | | |
| STREFUND | STATE REFUND LEVY 603 | 0.0000000000 | $229,350 | $229,350 | $0.00 | | |
| CWWBOND | C OF WW BOND 643 | 0.2760494372 | $229,350 | $229,350 | $63.31 | | |
| CWWGEN | CITY OF WW 631 | 1.6100204973 | $229,350 | $229,350 | $369.26 | | |
| CWWRFD | CITY OF WALLA WALLA REFUND 631 | 0.0000000000 | $229,350 | $229,350 | $0.00 | | |
| | Total Tax Rate: | 8.7973694689 | | | | | |
| | | | | Taxes w/Current Exemptions: | $2,017.66 | | |
| | | | | Taxes w/o Exemptions: | $2,017.66 | | |
Improvement / Building
| Improvement #1: | RESIDENTIAL | State Code: | 11 | 724.0 sqft | Value: | $178,950 |
| Exterior Wall: | SIDING | Heating/Cooling: | FLOOR FURNACE | | Number of Bathrooms: | 1 | Number of Bedrooms: | 2 | | Plumbing: | 6 | Roof Covering: | COMP SHINGLE |
|
| | Type | Description | Class CD | Sub Class CD | Year Built | Area |
| | MA | Main Area | 1 | 20 | 1927 | 724.0 |
| | POL2 | POLE BUILDING-CONCRETE | 1 | 20 | 0 | 961.0 |
| | RPC | OPEN PORCH W/ROOF , CEILED | 1 | 20 | 0 | 60.0 |
| | SI1 | SITE IMPROVEMENT | 1 | 20 | 0 | 1.0 |
| | BASE | BASEMENT | 1 | 20 | 1927 | 560.0 |
| | BASE | BASEMENT | 1 | 20 | 1927 | 280.0 |
| | SWP | Solid Wall Porch | 1 | 20 | 1927 | 108.0 |
Sketch
Property Image
Land
| 1 | RES 1 | Converted: Residential | 0.2204 | 9600.00 | 0.00 | 0.00 | 1.00 | $50,400 | $0 |
Roll Value History
| 2025 | N/A | N/A | N/A | N/A | N/A |
| 2024 | $158,100 | $76,900 | $0 | $235,000 | $235,000 |
| 2023 | $178,950 | $50,400 | $0 | $229,350 | $229,350 |
| 2022 | $137,650 | $50,400 | $0 | $188,050 | $188,050 |
| 2021 | $125,140 | $50,400 | $0 | $175,540 | $175,540 |
| 2020 | $104,280 | $50,400 | $0 | $154,680 | $154,680 |
| 2019 | $104,280 | $50,400 | $0 | $154,680 | $154,680 |
| 2018 | $86,900 | $50,400 | $0 | $137,300 | $137,300 |
| 2017 | $77,700 | $22,800 | $0 | $100,500 | $100,500 |
| 2016 | $77,700 | $22,800 | $0 | $100,500 | $100,500 |
| 2015 | $77,700 | $22,800 | $0 | $100,500 | $100,500 |
| 2014 | $77,700 | $22,800 | $0 | $100,500 | $100,500 |
| 2013 | $77,700 | $22,800 | $0 | $100,500 | $100,500 |
| 2012 | $77,700 | $22,800 | $0 | $0 | $0 |
| 2011 | $77,700 | $22,800 | $0 | $0 | $0 |
| 2010 | $77,700 | $22,800 | $0 | $0 | $0 |
| 2009 | $88,900 | $22,800 | $0 | $0 | $0 |
| 2008 | $63,100 | $22,800 | $0 | $0 | $0 |
| 2007 | $63,100 | $22,800 | $0 | $0 | $0 |
| 2006 | $46,200 | $13,100 | $0 | $0 | $0 |
Deed and Sales History
| 1 | 06/26/2020 | BARGAIN & | BARGAIN & SALE DEED | SATURNO DOUGLAS B & MALINDA M | SATURNO RESIDENTIAL HOLDINGS LLC | | | $0.00 | 140711 | 2021-00722 |
| 2 | 04/30/1992 | WARRANTY D | WARRANTY DEED | | | | | $85,000.00 | 76759 | 1969-203833 |
|   | |
Payout Agreement
| No payout information available.. |