Property
Account |
| Property ID: | 6591 | Abbreviated Legal Description: | PARKVIEW LOT 22 |
| Parcel Number: | 360720680022 | Agent Code: | |
| Type: | Real | | |
| Tax Area: | 1 - OL-140-F | Land Use Code | 11 |
| Open Space: | N | DFL | N |
| Historic Property: | N | Remodel Property: | N |
| Multi-Family Redevelopment: | N | | |
| Township: | 7 | Section: | 20 |
| Range: | 36 |
Location |
| Address: | 933 STADIUM DR WA 99362 | Mapsco: | |
| Neighborhood: | A-SFR | Map ID: | |
| Neighborhood CD: | 513011 |
Owner |
| Name: | SWEENEY KEVIN J | Owner ID: | 65431 |
| Mailing Address: | 933 STADIUM DR WALLA WALLA, WA 99362 | % Ownership: | 100.0000000000% |
| | | Exemptions: | |
Taxes and Assessment Details
Values
| (+) Improvement Homesite Value: | + | $0 | |
| (+) Improvement Non-Homesite Value: | + | $280,640 | |
| (+) Land Homesite Value: | + | $0 | |
| (+) Land Non-Homesite Value: | + | $49,840 | |
| (+) Curr Use (HS): | + | $0 | $0 |
| (+) Curr Use (NHS): | + | $0 | $0 |
| | | -------------------------- | |
| (=) Market Value: | = | $330,480 | |
| (–) Productivity Loss: | – | $0 | |
| | | -------------------------- | |
| (=) Subtotal: | = | $330,480 | |
| (+) Senior Appraised Value: | + | $0 | |
| (+) Non-Senior Appraised Value: | + | $330,480 | |
| | | -------------------------- | |
| (=) Total Appraised Value: | = | $330,480 | |
| (–) Senior Exemption Loss: | – | $0 | |
| (–) Exemption Loss: | – | $0 | |
| | | -------------------------- | |
| (=) Taxable Value: | = | $330,480 | |
Taxing Jurisdiction
| Owner: | SWEENEY KEVIN J | | |
| % Ownership: | 100.0000000000% | | |
| Total Value: | $330,480 | | |
| Tax Area: | 1 - OL-140-F |
| CERFD | CURRENT EXPENSE REFUND 010 | 0.0000000000 | $330,480 | $330,480 | $0.00 | | |
| CURREXP | CURRENT EXPENSE 010 | 1.0175366760 | $330,480 | $330,480 | $336.28 | | |
| HUMNSERV | HUMAN SERVICES 119 | 0.0250000000 | $330,480 | $330,480 | $8.26 | | |
| SLDREL | SOLDIERS RELIEF 121 | 0.0155990005 | $330,480 | $330,480 | $5.16 | | |
| EMERGSER | EMS 147 | 0.3792580840 | $330,480 | $330,480 | $125.34 | | |
| EMSRFD | EMS REFUND 147 | 0.0000000000 | $330,480 | $330,480 | $0.00 | | |
| PORTRFD | PORT REFUND 640 | 0.0000000000 | $330,480 | $330,480 | $0.00 | | |
| PORTWWGEN | PORT OF WW 640 | 0.2460186015 | $330,480 | $330,480 | $81.30 | | |
| SD140BOND | SD #140 BOND 764 | 0.8342371393 | $330,480 | $330,480 | $275.70 | | |
| SD140GEN | SD #140 GENERAL 760 | 2.0646500647 | $330,480 | $330,480 | $682.33 | | |
| ST2 | STATE SCHOOL PART 2 600 | 0.8131451643 | $330,480 | $330,480 | $268.73 | | |
| STATESCHL | STATE SCHOOL 600 | 1.5158548041 | $330,480 | $330,480 | $500.96 | | |
| STREFUND | STATE REFUND LEVY 603 | 0.0000000000 | $330,480 | $330,480 | $0.00 | | |
| CWWBOND | C OF WW BOND 643 | 0.2760494372 | $330,480 | $330,480 | $91.23 | | |
| CWWGEN | CITY OF WW 631 | 1.6100204973 | $330,480 | $330,480 | $532.08 | | |
| CWWRFD | CITY OF WALLA WALLA REFUND 631 | 0.0000000000 | $330,480 | $330,480 | $0.00 | | |
| | Total Tax Rate: | 8.7973694689 | | | | | |
| | | | | Taxes w/Current Exemptions: | $2,907.37 | | |
| | | | | Taxes w/o Exemptions: | $2,907.37 | | |
Improvement / Building
| Improvement #1: | RESIDENTIAL | State Code: | 11 | 1418.0 sqft | Value: | $280,640 |
| Exterior Wall: | METAL/STEEL | Heating/Cooling: | HEAT PUMP | | Number of Bathrooms: | 2 | Number of Bedrooms: | 4 | | Plumbing: | 10 | Roof Covering: | COMP SHINGLE |
|
| | Type | Description | Class CD | Sub Class CD | Year Built | Area |
| | MA | Main Area | 4 | 35 | 1946 | 1418.0 |
| | CPC | COVERED CARPORT/PATIO | 4 | 35 | 0 | 140.0 |
| | SI1 | SITE IMPROVEMENT | 4 | 35 | 0 | 1.5 |
| | BASE | BASEMENT | 4 | 35 | 1946 | 1050.0 |
| | BPF | BASEMENT -PARTITIONED FINISH | 4 | 35 | 1946 | 346.0 |
| | OPS | OPEN PORCH W/STEPS | 4 | 35 | 1946 | 20.0 |
| | DTG | Detached Garage | 4 | 35 | 1946 | 460.0 |
| | D2F | Double 2 Story Fireplace | 4 | 35 | 1946 | 1.0 |
| | UPFL | Upper Floor (included in main area) | 4 | 35 | 1946 | 368.0 |
Sketch
Property Image
Land
| 1 | RES 1 | Converted: Residential | 0.1831 | 7975.00 | 0.00 | 0.00 | 1.00 | $49,840 | $0 |
Roll Value History
| 2025 | N/A | N/A | N/A | N/A | N/A |
| 2024 | $308,950 | $79,750 | $0 | $388,700 | $388,700 |
| 2023 | $280,640 | $49,840 | $0 | $330,480 | $330,480 |
| 2022 | $267,270 | $49,840 | $0 | $317,110 | $317,110 |
| 2021 | $213,820 | $49,840 | $0 | $263,660 | $263,660 |
| 2020 | $147,460 | $49,840 | $0 | $197,300 | $197,300 |
| 2019 | $147,460 | $49,840 | $0 | $197,300 | $197,300 |
| 2018 | $147,460 | $49,840 | $0 | $197,300 | $197,300 |
| 2017 | $132,500 | $31,900 | $0 | $164,400 | $164,400 |
| 2016 | $132,500 | $31,900 | $0 | $164,400 | $164,400 |
| 2015 | $132,500 | $31,900 | $0 | $164,400 | $164,400 |
| 2014 | $132,500 | $31,900 | $0 | $164,400 | $164,400 |
| 2013 | $132,500 | $31,900 | $0 | $164,400 | $164,400 |
| 2012 | $160,400 | $31,900 | $0 | $0 | $0 |
| 2011 | $170,500 | $31,900 | $0 | $0 | $0 |
| 2010 | $144,100 | $31,900 | $0 | $0 | $0 |
| 2009 | $163,600 | $31,900 | $0 | $0 | $0 |
| 2008 | $131,000 | $31,900 | $0 | $0 | $0 |
| 2007 | $131,000 | $31,900 | $0 | $0 | $0 |
| 2006 | $96,000 | $15,900 | $0 | $0 | $0 |
Deed and Sales History
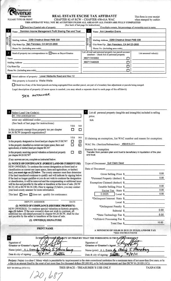
| 1 | 07/03/2019 | SWD | STATUTORY WARRANTY DEED | BYRNES FRANCIS PATRICK | SWEENEY KEVIN J | | | $245,000.00 | 137214 | 2019-04774 |
| 2 | 09/21/2011 | WARRANTY D | WARRANTY DEED | BOUTZ, TIMOTHY P & SUSAN Y | BYRNES, FRANCIS PATRICK | | | $160,550.00 | 120723 | 2011-07361 |
| 3 | 07/29/1985 | WARRANTY D | WARRANTY DEED | | | | | $73,500.00 | 0 | 1518-504985 |
Payout Agreement
| No payout information available.. |