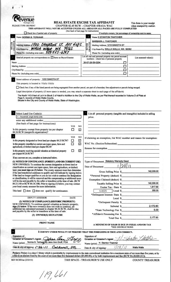
Property
Account |
| Property ID: | 6543 | Abbreviated Legal Description: | HAWLEY LOTS 17 AND 18 BLK C |
| Parcel Number: | 360720630318 | Agent Code: | |
| Type: | Real | | |
| Tax Area: | 1 - OL-140-F | Land Use Code | 11 |
| Open Space: | N | DFL | N |
| Historic Property: | N | Remodel Property: | N |
| Multi-Family Redevelopment: | N | | |
| Township: | 7 | Section: | 20 |
| Range: | 36 |
Location |
| Address: | 531 NEWELL ST WA 99362 | Mapsco: | |
| Neighborhood: | G-SFR | Map ID: | |
| Neighborhood CD: | 514011 |
Owner |
| Name: | MELLO TRUST | Owner ID: | 69033 |
| Mailing Address: | 531 NEWELL ST WALLA WALLA, WA 99362 | % Ownership: | 100.0000000000% |
| | | Exemptions: | |
Taxes and Assessment Details
Values
| (+) Improvement Homesite Value: | + | $0 | |
| (+) Improvement Non-Homesite Value: | + | $666,120 | |
| (+) Land Homesite Value: | + | $0 | |
| (+) Land Non-Homesite Value: | + | $52,200 | |
| (+) Curr Use (HS): | + | $0 | $0 |
| (+) Curr Use (NHS): | + | $0 | $0 |
| | | -------------------------- | |
| (=) Market Value: | = | $718,320 | |
| (–) Productivity Loss: | – | $0 | |
| | | -------------------------- | |
| (=) Subtotal: | = | $718,320 | |
| (+) Senior Appraised Value: | + | $0 | |
| (+) Non-Senior Appraised Value: | + | $718,320 | |
| | | -------------------------- | |
| (=) Total Appraised Value: | = | $718,320 | |
| (–) Senior Exemption Loss: | – | $0 | |
| (–) Exemption Loss: | – | $0 | |
| | | -------------------------- | |
| (=) Taxable Value: | = | $718,320 | |
Taxing Jurisdiction
| Owner: | MELLO TRUST | | |
| % Ownership: | 100.0000000000% | | |
| Total Value: | $718,320 | | |
| Tax Area: | 1 - OL-140-F |
| CERFD | CURRENT EXPENSE REFUND 010 | 0.0000000000 | $718,320 | $718,320 | $0.00 | | |
| CURREXP | CURRENT EXPENSE 010 | 1.0175366760 | $718,320 | $718,320 | $730.92 | | |
| HUMNSERV | HUMAN SERVICES 119 | 0.0250000000 | $718,320 | $718,320 | $17.96 | | |
| SLDREL | SOLDIERS RELIEF 121 | 0.0155990005 | $718,320 | $718,320 | $11.21 | | |
| EMERGSER | EMS 147 | 0.3792580840 | $718,320 | $718,320 | $272.43 | | |
| EMSRFD | EMS REFUND 147 | 0.0000000000 | $718,320 | $718,320 | $0.00 | | |
| PORTRFD | PORT REFUND 640 | 0.0000000000 | $718,320 | $718,320 | $0.00 | | |
| PORTWWGEN | PORT OF WW 640 | 0.2460186015 | $718,320 | $718,320 | $176.72 | | |
| SD140BOND | SD #140 BOND 764 | 0.8342371393 | $718,320 | $718,320 | $599.25 | | |
| SD140GEN | SD #140 GENERAL 760 | 2.0646500647 | $718,320 | $718,320 | $1,483.08 | | |
| ST2 | STATE SCHOOL PART 2 600 | 0.8131451643 | $718,320 | $718,320 | $584.10 | | |
| STATESCHL | STATE SCHOOL 600 | 1.5158548041 | $718,320 | $718,320 | $1,088.87 | | |
| STREFUND | STATE REFUND LEVY 603 | 0.0000000000 | $718,320 | $718,320 | $0.00 | | |
| CWWBOND | C OF WW BOND 643 | 0.2760494372 | $718,320 | $718,320 | $198.29 | | |
| CWWGEN | CITY OF WW 631 | 1.6100204973 | $718,320 | $718,320 | $1,156.51 | | |
| CWWRFD | CITY OF WALLA WALLA REFUND 631 | 0.0000000000 | $718,320 | $718,320 | $0.00 | | |
| | Total Tax Rate: | 8.7973694689 | | | | | |
| | | | | Taxes w/Current Exemptions: | $6,319.34 | | |
| | | | | Taxes w/o Exemptions: | $6,319.34 | | |
Improvement / Building
| Improvement #1: | RESIDENTIAL | State Code: | 11 | 2088.0 sqft | Value: | $666,120 |
| Exterior Wall: | SIDING | Heating/Cooling: | WARM & COOLED AIR | | Number of Bathrooms: | 3 | Number of Bedrooms: | 4 | | Plumbing: | 15 | Roof Covering: | COMP SHINGLE |
|
| | Type | Description | Class CD | Sub Class CD | Year Built | Area |
| | MA | Main Area | 4 | 55 | 1906 | 2088.0 |
| | UPFL | Upper Floor (included in main area) | 4 | 55 | 1906 | 1036.0 |
| | SI1 | SITE IMPROVEMENT | 4 | 55 | 1906 | 6.0 |
| | BASE | BASEMENT | 4 | 55 | 1906 | 1008.0 |
| | BPF | BASEMENT -PARTITIONED FINISH | 4 | 55 | 2019 | 1008.0 |
| | S1F | Single One Story Fireplace | 4 | 55 | 1906 | 1.0 |
| | RCD | WOOD DECK W/ROOF, CEILED | 4 | 55 | 2020 | 132.0 |
| | WOD | Wood Deck | 4 | 55 | 2020 | 3.0 |
| | OSP | Open | 4 | 55 | 2020 | 3.0 |
| | DTG | Detached Garage | 4 | 55 | 1906 | 324.0 |
Sketch
Property Image
Land
| 1 | RES 1 | Converted: Residential | 0.1653 | 7200.00 | 0.00 | 0.00 | 1.00 | $52,200 | $0 |
Roll Value History
| 2025 | N/A | N/A | N/A | N/A | N/A |
| 2024 | $829,350 | $79,200 | $0 | $908,550 | $908,550 |
| 2023 | $666,120 | $52,200 | $0 | $718,320 | $718,320 |
| 2022 | $666,120 | $52,200 | $0 | $718,320 | $718,320 |
| 2021 | $634,400 | $52,200 | $0 | $686,600 | $686,600 |
| 2020 | $316,790 | $52,200 | $0 | $368,990 | $368,990 |
| 2019 | $101,200 | $52,200 | $0 | $153,400 | $153,400 |
| 2018 | $101,200 | $52,200 | $0 | $153,400 | $153,400 |
| 2017 | $121,000 | $32,400 | $0 | $153,400 | $153,400 |
| 2016 | $121,000 | $32,400 | $0 | $153,400 | $153,400 |
| 2015 | $121,000 | $32,400 | $0 | $153,400 | $153,400 |
| 2014 | $121,000 | $32,400 | $0 | $153,400 | $153,400 |
| 2013 | $121,000 | $32,400 | $0 | $153,400 | $153,400 |
| 2012 | $126,900 | $32,400 | $0 | $0 | $0 |
| 2011 | $126,900 | $32,400 | $0 | $0 | $0 |
| 2010 | $119,300 | $32,400 | $0 | $0 | $0 |
| 2009 | $136,100 | $32,400 | $0 | $0 | $0 |
| 2008 | $97,200 | $32,400 | $0 | $0 | $0 |
| 2007 | $97,200 | $32,400 | $0 | $0 | $0 |
| 2006 | $67,000 | $14,400 | $0 | $0 | $0 |
Deed and Sales History
| 1 | 07/23/2024 | SWD | STATUTORY WARRANTY DEED | MELLO TRUST | MARTIN MICHAEL D | | | $925,000.00 | 147911 | 2024-04003 |
| 2 | 03/19/2021 | SWD | STATUTORY WARRANTY DEED | THONNEY BRIAN J | MELLO TRUST | | | $725,000.00 | 141136 | 2021-03156 |
| 3 | 09/10/2018 | SWD | STATUTORY WARRANTY DEED | BITTNER JENNIFER D ET AL | THONNEY BRIAN J | | | $210,000.00 | 135508 | 2018-07479 |
| 4 | 09/09/2015 | QCD | QUIT CLAIM DEED | HERIGSTAD GENEVIEVE ESTATE OF | BITTNER JENNIFER D ET AL | | | $153,400.00 | 128788 | 2015-07910 |
| 5 | 09/12/1973 | QCD | QUIT CLAIM DEED | | | | | $0.00 | 0 | 8053-1989 |
Payout Agreement
| No payout information available.. |