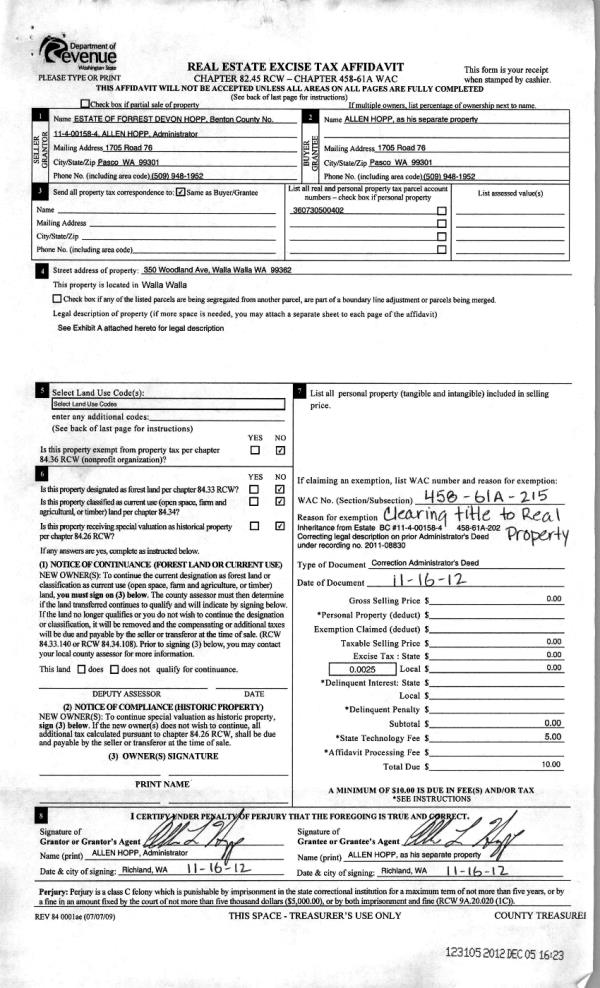
Property
Account |
| Property ID: | 6480 | Abbreviated Legal Description: | COUNCIL GROVE LOT 9 |
| Parcel Number: | 360720600009 | Agent Code: | |
| Type: | Real | | |
| Tax Area: | 1 - OL-140-F | Land Use Code | 11 |
| Open Space: | N | DFL | N |
| Historic Property: | N | Remodel Property: | N |
| Multi-Family Redevelopment: | N | | |
| Township: | 7 | Section: | 20 |
| Range: | 36 |
Location |
| Address: | 437 CRESCENT ST WA 99362 | Mapsco: | |
| Neighborhood: | G-SFR | Map ID: | |
| Neighborhood CD: | 514011 |
Owner |
| Name: | PARKER DAVID DEAN | Owner ID: | 57518 |
| Mailing Address: | 437 CRESCENT ST WALLA WALLA, WA 99362 | % Ownership: | 100.0000000000% |
| | | Exemptions: | SNR/DSBL |
Taxes and Assessment Details
Values
| (+) Improvement Homesite Value: | + | $378,620 | |
| (+) Improvement Non-Homesite Value: | + | $0 | |
| (+) Land Homesite Value: | + | $33,710 | |
| (+) Land Non-Homesite Value: | + | $0 | |
| (+) Curr Use (HS): | + | $0 | $0 |
| (+) Curr Use (NHS): | + | $0 | $0 |
| | | -------------------------- | |
| (=) Market Value: | = | $412,330 | |
| (–) Productivity Loss: | – | $0 | |
| | | -------------------------- | |
| (=) Subtotal: | = | $412,330 | |
| (+) Senior Appraised Value: | + | $200,650 | |
| (+) Non-Senior Appraised Value: | + | $0 | |
| | | -------------------------- | |
| (=) Total Appraised Value: | = | $200,650 | |
| (–) Senior Exemption Loss: | – | $120,390 | |
| (–) Exemption Loss: | – | $0 | |
| | | -------------------------- | |
| (=) Taxable Value: | = | $80,260 | |
Taxing Jurisdiction
| Owner: | PARKER DAVID DEAN | | |
| % Ownership: | 100.0000000000% | | |
| Total Value: | $412,330 | | |
| Tax Area: | 1 - OL-140-F |
| CERFD | CURRENT EXPENSE REFUND 010 | 0.0000000000 | $412,330 | $80,260 | $0.00 | | |
| CURREXP | CURRENT EXPENSE 010 | 1.0175366760 | $412,330 | $80,260 | $81.67 | | |
| HUMNSERV | HUMAN SERVICES 119 | 0.0250000000 | $412,330 | $80,260 | $2.01 | | |
| SLDREL | SOLDIERS RELIEF 121 | 0.0155990005 | $412,330 | $80,260 | $1.25 | | |
| EMERGSER | EMS 147 | 0.3792580840 | $412,330 | $80,260 | $30.44 | | |
| EMSRFD | EMS REFUND 147 | 0.0000000000 | $412,330 | $80,260 | $0.00 | | |
| PORTRFD | PORT REFUND 640 | 0.0000000000 | $412,330 | $80,260 | $0.00 | | |
| PORTWWGEN | PORT OF WW 640 | 0.2460186015 | $412,330 | $80,260 | $19.75 | | |
| SD140BOND | SD #140 BOND 764 | 0.0000000000 | $412,330 | $0 | $0.00 | | |
| SD140GEN | SD #140 GENERAL 760 | 0.0000000000 | $412,330 | $0 | $0.00 | | |
| ST2 | STATE SCHOOL PART 2 600 | 0.0000000000 | $412,330 | $0 | $0.00 | | |
| STATESCHL | STATE SCHOOL 600 | 1.5158548041 | $412,330 | $80,260 | $121.66 | | |
| STREFUND | STATE REFUND LEVY 603 | 0.0000000000 | $412,330 | $80,260 | $0.00 | | |
| CWWBOND | C OF WW BOND 643 | 0.0000000000 | $412,330 | $0 | $0.00 | | |
| CWWGEN | CITY OF WW 631 | 1.6100204973 | $412,330 | $80,260 | $129.22 | | |
| CWWRFD | CITY OF WALLA WALLA REFUND 631 | 0.0000000000 | $412,330 | $80,260 | $0.00 | | |
| | Total Tax Rate: | 4.8092876634 | | | | | |
| | | | | Taxes w/Current Exemptions: | $386.00 | | |
| | | | | Taxes w/o Exemptions: | $3,627.41 | | |
Improvement / Building
| Improvement #1: | RESIDENTIAL | State Code: | 11 | 1688.0 sqft | Value: | $378,620 |
| Exterior Wall: | SIDING | Heating/Cooling: | FORCED AIR | | Number of Bathrooms: | 2 | Number of Bedrooms: | 3 | | Plumbing: | 9 | Roof Covering: | COMP SHINGLE |
|
| | Type | Description | Class CD | Sub Class CD | Year Built | Area |
| | MA | Main Area | 2 | 35 | 1902 | 1688.0 |
| | SI1 | SITE IMPROVEMENT | 2 | 35 | 1902 | 1.0 |
| | UPFL | Upper Floor (included in main area) | 2 | 35 | 1902 | 780.0 |
| | BNV | BUILDING NO VALUE | 2 | 35 | 1902 | 216.0 |
| | RCD | WOOD DECK W/ROOF, CEILED | 2 | 35 | 1902 | 40.0 |
| | RCD | WOOD DECK W/ROOF, CEILED | 2 | 35 | 1902 | 208.0 |
Sketch
Property Image
Land
| 1 | RES 1 | Converted: Residential | 0.1067 | 4650.00 | 0.00 | 0.00 | 1.00 | $33,710 | $0 |
Roll Value History
| 2025 | N/A | N/A | N/A | N/A | N/A |
| 2024 | $356,280 | $51,150 | $0 | $407,430 | $80,260 |
| 2023 | $378,620 | $33,710 | $0 | $412,330 | $80,260 |
| 2022 | $315,520 | $33,710 | $0 | $349,230 | $80,260 |
| 2021 | $233,720 | $33,710 | $0 | $267,430 | $80,260 |
| 2020 | $166,940 | $33,710 | $0 | $200,650 | $80,260 |
| 2019 | $166,940 | $33,710 | $0 | $200,650 | $80,260 |
| 2018 | $158,990 | $33,710 | $0 | $192,700 | $192,700 |
| 2017 | $171,790 | $20,900 | $0 | $192,690 | $192,690 |
| 2016 | $156,170 | $20,900 | $0 | $177,070 | $177,070 |
| 2015 | $156,170 | $20,900 | $0 | $177,070 | $177,070 |
| 2014 | $135,800 | $20,900 | $0 | $156,700 | $156,700 |
| 2013 | $135,800 | $20,900 | $0 | $156,700 | $156,700 |
| 2012 | $135,800 | $20,900 | $0 | $0 | $0 |
| 2011 | $128,300 | $20,900 | $0 | $0 | $0 |
| 2010 | $121,200 | $20,900 | $0 | $0 | $0 |
| 2009 | $137,000 | $20,900 | $0 | $0 | $0 |
| 2008 | $110,700 | $20,900 | $0 | $0 | $0 |
| 2007 | $110,700 | $20,900 | $0 | $0 | $0 |
| 2006 | $85,200 | $9,300 | $0 | $0 | $0 |
Deed and Sales History
| 1 | 09/29/2015 | DPR | DEED OF PERSONAL REPRESENTATIVE | VISCARRA VALERIA L | PARKER DAVID DEAN | | | $0.00 | 128931 | 2015-08695 |
| 2 | 01/24/2005 | WARRANTY D | WARRANTY DEED | CHRISTIAN, WILLIAM R TRUSTEE O | VISCARRA, VALERIA L | | | | 106463 | 2005-00894 |
| 3 | 10/14/1992 | WARRANTY D | WARRANTY DEED | | | | | $87,000.00 | 77800 | 2009-209210 |
Payout Agreement
| No payout information available.. |