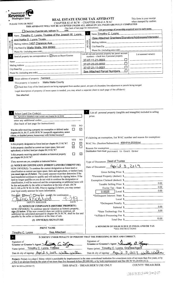
Property
Account |
| Property ID: | 6416 | Abbreviated Legal Description: | CAINS LOT 6 BLK 29 |
| Parcel Number: | 360720572906 | Agent Code: | |
| Type: | Real | | |
| Tax Area: | 1 - OL-140-F | Land Use Code | 12 |
| Open Space: | N | DFL | N |
| Historic Property: | N | Remodel Property: | N |
| Multi-Family Redevelopment: | N | | |
| Township: | 7 | Section: | 20 |
| Range: | 36 |
Location |
| Address: | 501 E OAK ST WA 99362 | Mapsco: | |
| Neighborhood: | F SFR Multi Res | Map ID: | |
| Neighborhood CD: | 512081 |
Owner |
| Name: | SANDOVAL JOSEFINA | Owner ID: | 63083 |
| Mailing Address: | 555 W HERMOSA DR SAN ANTONIO, TX 78212 | % Ownership: | 100.0000000000% |
| | | Exemptions: | |
Taxes and Assessment Details
Values
| (+) Improvement Homesite Value: | + | $0 | |
| (+) Improvement Non-Homesite Value: | + | $140,450 | |
| (+) Land Homesite Value: | + | $0 | |
| (+) Land Non-Homesite Value: | + | $37,800 | |
| (+) Curr Use (HS): | + | $0 | $0 |
| (+) Curr Use (NHS): | + | $0 | $0 |
| | | -------------------------- | |
| (=) Market Value: | = | $178,250 | |
| (–) Productivity Loss: | – | $0 | |
| | | -------------------------- | |
| (=) Subtotal: | = | $178,250 | |
| (+) Senior Appraised Value: | + | $0 | |
| (+) Non-Senior Appraised Value: | + | $178,250 | |
| | | -------------------------- | |
| (=) Total Appraised Value: | = | $178,250 | |
| (–) Senior Exemption Loss: | – | $0 | |
| (–) Exemption Loss: | – | $0 | |
| | | -------------------------- | |
| (=) Taxable Value: | = | $178,250 | |
Taxing Jurisdiction
| Owner: | SANDOVAL JOSEFINA | | |
| % Ownership: | 100.0000000000% | | |
| Total Value: | $178,250 | | |
| Tax Area: | 1 - OL-140-F |
| CERFD | CURRENT EXPENSE REFUND 010 | 0.0000000000 | $178,250 | $178,250 | $0.00 | | |
| CURREXP | CURRENT EXPENSE 010 | 1.0175366760 | $178,250 | $178,250 | $181.38 | | |
| HUMNSERV | HUMAN SERVICES 119 | 0.0250000000 | $178,250 | $178,250 | $4.46 | | |
| SLDREL | SOLDIERS RELIEF 121 | 0.0155990005 | $178,250 | $178,250 | $2.78 | | |
| EMERGSER | EMS 147 | 0.3792580840 | $178,250 | $178,250 | $67.60 | | |
| EMSRFD | EMS REFUND 147 | 0.0000000000 | $178,250 | $178,250 | $0.00 | | |
| PORTRFD | PORT REFUND 640 | 0.0000000000 | $178,250 | $178,250 | $0.00 | | |
| PORTWWGEN | PORT OF WW 640 | 0.2460186015 | $178,250 | $178,250 | $43.85 | | |
| SD140BOND | SD #140 BOND 764 | 0.8342371393 | $178,250 | $178,250 | $148.70 | | |
| SD140GEN | SD #140 GENERAL 760 | 2.0646500647 | $178,250 | $178,250 | $368.02 | | |
| ST2 | STATE SCHOOL PART 2 600 | 0.8131451643 | $178,250 | $178,250 | $144.94 | | |
| STATESCHL | STATE SCHOOL 600 | 1.5158548041 | $178,250 | $178,250 | $270.20 | | |
| STREFUND | STATE REFUND LEVY 603 | 0.0000000000 | $178,250 | $178,250 | $0.00 | | |
| CWWBOND | C OF WW BOND 643 | 0.2760494372 | $178,250 | $178,250 | $49.21 | | |
| CWWGEN | CITY OF WW 631 | 1.6100204973 | $178,250 | $178,250 | $286.99 | | |
| CWWRFD | CITY OF WALLA WALLA REFUND 631 | 0.0000000000 | $178,250 | $178,250 | $0.00 | | |
| | Total Tax Rate: | 8.7973694689 | | | | | |
| | | | | Taxes w/Current Exemptions: | $1,568.13 | | |
| | | | | Taxes w/o Exemptions: | $1,568.13 | | |
Improvement / Building
| Improvement #1: | RESIDENTIAL | State Code: | 12 | 704.0 sqft | Value: | $78,360 |
| Exterior Wall: | SIDING | Heating/Cooling: | GRAVITY FURNACE | | Number of Bathrooms: | 1 | Number of Bedrooms: | 2 | | Plumbing: | 6 | Roof Covering: | COMP SHINGLE |
|
| | Type | Description | Class CD | Sub Class CD | Year Built | Area |
| | MA | Main Area | 1 | 20 | 1910 | 704.0 |
| | SI1 | SITE IMPROVEMENT | 1 | 20 | 0 | 1.0 |
| | RPO | OPEN PORCH W/ROOF | 1 | 20 | 0 | 108.0 |
| Improvement #2: | RESIDENTIAL | State Code: | 12 | 550.0 sqft | Value: | $62,090 |
| Exterior Wall: | SIDING | Heating/Cooling: | FLOOR FURNACE | | Number of Bathrooms: | 1 | Number of Bedrooms: | 1 | | Plumbing: | 6 | Roof Covering: | COMP SHINGLE |
|
| | Type | Description | Class CD | Sub Class CD | Year Built | Area |
| | MA | Main Area | 1 | 20 | 1910 | 550.0 |
| | RPO | OPEN PORCH W/ROOF | 1 | 20 | 1910 | 100.0 |
| | SI1 | SITE IMPROVEMENT | 1 | 20 | 1910 | 1.0 |
Sketch
Property Image
Land
| 1 | RES 1 | Converted: Residential | 0.1653 | 7200.00 | 0.00 | 0.00 | 1.00 | $37,800 | $0 |
Roll Value History
| 2025 | N/A | N/A | N/A | N/A | N/A |
| 2024 | $122,800 | $57,600 | $0 | $180,400 | $180,400 |
| 2023 | $140,450 | $37,800 | $0 | $178,250 | $178,250 |
| 2022 | $127,680 | $37,800 | $0 | $165,480 | $165,480 |
| 2021 | $91,200 | $37,800 | $0 | $129,000 | $129,000 |
| 2020 | $76,000 | $37,800 | $0 | $113,800 | $113,800 |
| 2019 | $76,000 | $37,800 | $0 | $113,800 | $113,800 |
| 2018 | $76,000 | $37,800 | $0 | $113,800 | $113,800 |
| 2017 | $54,400 | $21,600 | $0 | $76,000 | $76,000 |
| 2016 | $54,400 | $21,600 | $0 | $76,000 | $76,000 |
| 2015 | $54,400 | $21,600 | $0 | $76,000 | $76,000 |
| 2014 | $54,400 | $21,600 | $0 | $76,000 | $76,000 |
| 2013 | $54,400 | $21,600 | $0 | $76,000 | $76,000 |
| 2012 | $58,500 | $21,600 | $0 | $0 | $0 |
| 2011 | $58,500 | $21,600 | $0 | $0 | $0 |
| 2010 | $58,500 | $21,600 | $0 | $0 | $0 |
| 2009 | $58,500 | $21,600 | $0 | $0 | $0 |
| 2008 | $58,500 | $21,600 | $0 | $0 | $0 |
| 2007 | $58,500 | $21,600 | $0 | $0 | $0 |
| 2006 | $37,100 | $14,400 | $0 | $0 | $0 |
Deed and Sales History
| 1 | 05/15/2018 | QCD | QUIT CLAIM DEED | CERVANTES CATALINA | SANDOVAL JOSEFINA | | | $0.00 | 134709 | 2018-03806 |
| 2 | 11/15/2012 | QCD | QUIT CLAIM DEED | GUTIERREZ, OLEGARIO | CERVANTES, CATALINA | | | $0.00 | 122994 | 2012-10074 |
| 3 | 03/07/1994 | WARRANTY D | WARRANTY DEED | | | | | $24,000.00 | 81155 | 2179-402744 |
Payout Agreement
| No payout information available.. |