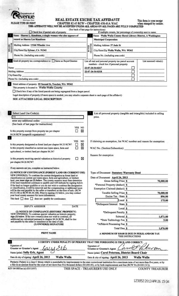
Property
Account |
| Property ID: | 6415 | Abbreviated Legal Description: | CAINS LOT 1,2,3, BLK 29 |
| Parcel Number: | 360720572901 | Agent Code: | |
| Type: | Real | | |
| Tax Area: | 1 - OL-140-F | Land Use Code | 13 |
| Open Space: | N | DFL | N |
| Historic Property: | N | Remodel Property: | N |
| Multi-Family Redevelopment: | N | | |
| Township: | 7 | Section: | 20 |
| Range: | 36 |
Location |
| Address: | 516 E PINE ST WA 99362 | Mapsco: | |
| Neighborhood: | WW Downtown Core area #3 | Map ID: | |
| Neighborhood CD: | 5343 |
Owner |
| Name: | NW RESIDENTIAL PROPERTIES LLC | Owner ID: | 54303 |
| Mailing Address: | 18514 NE 65TH ST VANCOUVER, WA 98682 | % Ownership: | 100.0000000000% |
| | | Exemptions: | |
Taxes and Assessment Details
Values
| (+) Improvement Homesite Value: | + | $0 | |
| (+) Improvement Non-Homesite Value: | + | $524,700 | |
| (+) Land Homesite Value: | + | $0 | |
| (+) Land Non-Homesite Value: | + | $35,400 | |
| (+) Curr Use (HS): | + | $0 | $0 |
| (+) Curr Use (NHS): | + | $0 | $0 |
| | | -------------------------- | |
| (=) Market Value: | = | $560,100 | |
| (–) Productivity Loss: | – | $0 | |
| | | -------------------------- | |
| (=) Subtotal: | = | $560,100 | |
| (+) Senior Appraised Value: | + | $0 | |
| (+) Non-Senior Appraised Value: | + | $560,100 | |
| | | -------------------------- | |
| (=) Total Appraised Value: | = | $560,100 | |
| (–) Senior Exemption Loss: | – | $0 | |
| (–) Exemption Loss: | – | $0 | |
| | | -------------------------- | |
| (=) Taxable Value: | = | $560,100 | |
Taxing Jurisdiction
| Owner: | NW RESIDENTIAL PROPERTIES LLC | | |
| % Ownership: | 100.0000000000% | | |
| Total Value: | $560,100 | | |
| Tax Area: | 1 - OL-140-F |
| CERFD | CURRENT EXPENSE REFUND 010 | 0.0000000000 | $560,100 | $560,100 | $0.00 | | |
| CURREXP | CURRENT EXPENSE 010 | 1.0175366760 | $560,100 | $560,100 | $569.92 | | |
| HUMNSERV | HUMAN SERVICES 119 | 0.0250000000 | $560,100 | $560,100 | $14.00 | | |
| SLDREL | SOLDIERS RELIEF 121 | 0.0155990005 | $560,100 | $560,100 | $8.74 | | |
| EMERGSER | EMS 147 | 0.3792580840 | $560,100 | $560,100 | $212.42 | | |
| EMSRFD | EMS REFUND 147 | 0.0000000000 | $560,100 | $560,100 | $0.00 | | |
| PORTRFD | PORT REFUND 640 | 0.0000000000 | $560,100 | $560,100 | $0.00 | | |
| PORTWWGEN | PORT OF WW 640 | 0.2460186015 | $560,100 | $560,100 | $137.80 | | |
| SD140BOND | SD #140 BOND 764 | 0.8342371393 | $560,100 | $560,100 | $467.26 | | |
| SD140GEN | SD #140 GENERAL 760 | 2.0646500647 | $560,100 | $560,100 | $1,156.41 | | |
| ST2 | STATE SCHOOL PART 2 600 | 0.8131451643 | $560,100 | $560,100 | $455.44 | | |
| STATESCHL | STATE SCHOOL 600 | 1.5158548041 | $560,100 | $560,100 | $849.03 | | |
| STREFUND | STATE REFUND LEVY 603 | 0.0000000000 | $560,100 | $560,100 | $0.00 | | |
| CWWBOND | C OF WW BOND 643 | 0.2760494372 | $560,100 | $560,100 | $154.62 | | |
| CWWGEN | CITY OF WW 631 | 1.6100204973 | $560,100 | $560,100 | $901.77 | | |
| CWWRFD | CITY OF WALLA WALLA REFUND 631 | 0.0000000000 | $560,100 | $560,100 | $0.00 | | |
| | Total Tax Rate: | 8.7973694689 | | | | | |
| | | | | Taxes w/Current Exemptions: | $4,927.41 | | |
| | | | | Taxes w/o Exemptions: | $4,927.41 | | |
Improvement / Building
| Improvement #1: | COMMERCIAL | State Code: | 13 | 6232.0 sqft | Value: | $524,700 |
| | Type | Description | Class CD | Sub Class CD | Year Built | Area |
| | MA | Main Area | D | * | 1985 | 6232.0 |
| | BASE | BASEMENT | D | * | 1985 | 2004.0 |
| | PRKSTLA | PARK STALL AVERAGE | D | * | 1985 | 12.0 |
Sketch
Property Image
Land
| 1 | RES 1 | Converted: Residential | 0.4959 | 21600.00 | 0.00 | 0.00 | 1.00 | $35,400 | $0 |
Roll Value History
| 2025 | N/A | N/A | N/A | N/A | N/A |
| 2024 | $494,900 | $81,700 | $0 | $576,600 | $576,600 |
| 2023 | $524,700 | $35,400 | $0 | $560,100 | $560,100 |
| 2022 | $524,700 | $35,400 | $0 | $560,100 | $560,100 |
| 2021 | $524,700 | $35,400 | $0 | $560,100 | $560,100 |
| 2020 | $524,700 | $35,400 | $0 | $560,100 | $560,100 |
| 2019 | $524,700 | $35,400 | $0 | $560,100 | $560,100 |
| 2018 | $524,700 | $35,400 | $0 | $560,100 | $560,100 |
| 2017 | $524,700 | $28,800 | $0 | $553,500 | $553,500 |
| 2016 | $477,000 | $28,800 | $0 | $505,800 | $505,800 |
| 2015 | $477,000 | $28,800 | $0 | $505,800 | $505,800 |
| 2014 | $477,000 | $28,800 | $0 | $505,800 | $505,800 |
| 2013 | $477,000 | $28,800 | $0 | $505,800 | $505,800 |
| 2012 | $477,000 | $28,800 | $0 | $0 | $0 |
| 2011 | $477,000 | $28,800 | $0 | $0 | $0 |
| 2010 | $282,200 | $28,800 | $0 | $0 | $0 |
| 2009 | $282,200 | $28,800 | $0 | $0 | $0 |
| 2008 | $282,200 | $28,800 | $0 | $0 | $0 |
| 2007 | $282,200 | $28,800 | $0 | $0 | $0 |
| 2006 | $190,100 | $23,500 | $0 | $0 | $0 |
Deed and Sales History
| 1 | 12/13/2013 | BARGAIN & | BARGAIN & SALE DEED | HAMBY DAVE | NW RESIDENTIAL PROPERTIES LLC | | | | 125109 | 2013-11933 |
| 2 | 03/07/2008 | WARRANTY D | WARRANTY DEED | LEDFORD, DENNIS M & DONNA R | HAMBY, DAVE | | | $560,000.00 | 114637 | 2008-02141 |
Payout Agreement
| No payout information available.. |