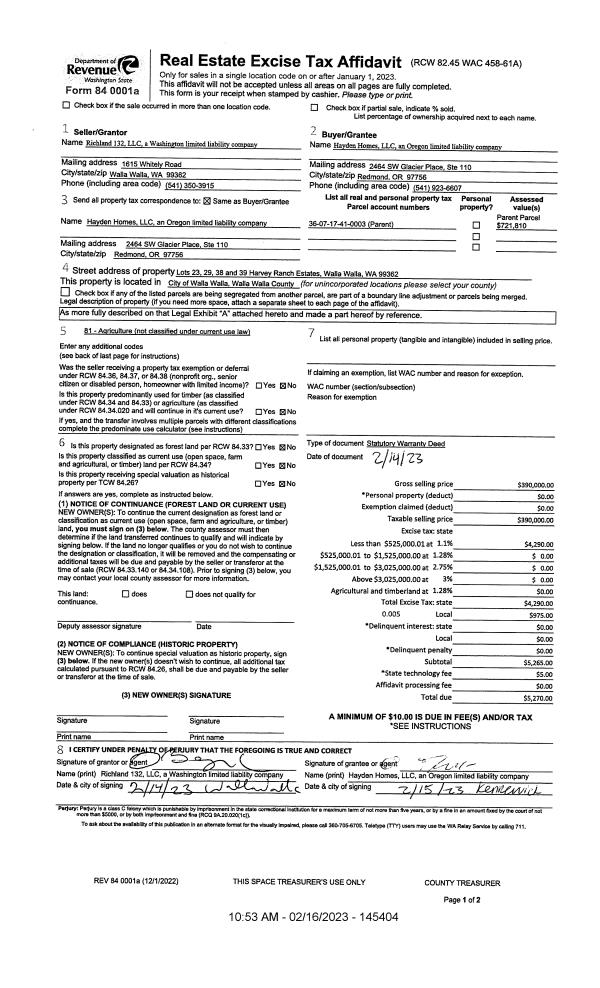
Property
Account |
| Property ID: | 6414 | Abbreviated Legal Description: | CAINS SLY 1/2 OF LOT 1 BLK 27, ELY 10' OF SLY 1/2 OF LOT 2 BLK 27 |
| Parcel Number: | 360720572714 | Agent Code: | |
| Type: | Real | | |
| Tax Area: | 1 - OL-140-F | Land Use Code | 11 |
| Open Space: | N | DFL | N |
| Historic Property: | N | Remodel Property: | N |
| Multi-Family Redevelopment: | N | | |
| Township: | 7 | Section: | 20 |
| Range: | 36 |
Location |
| Address: | 309 N PARK ST WA 99362 | Mapsco: | |
| Neighborhood: | F SFR | Map ID: | |
| Neighborhood CD: | 512011 |
Owner |
| Name: | PEASE JOSHUA DAVID & CHLOE R | Owner ID: | 69726 |
| Mailing Address: | 309 N PARK ST WALLA WALLA, WA 99362 | % Ownership: | 100.0000000000% |
| | | Exemptions: | |
Taxes and Assessment Details
Values
| (+) Improvement Homesite Value: | + | $0 | |
| (+) Improvement Non-Homesite Value: | + | $251,580 | |
| (+) Land Homesite Value: | + | $0 | |
| (+) Land Non-Homesite Value: | + | $22,050 | |
| (+) Curr Use (HS): | + | $0 | $0 |
| (+) Curr Use (NHS): | + | $0 | $0 |
| | | -------------------------- | |
| (=) Market Value: | = | $273,630 | |
| (–) Productivity Loss: | – | $0 | |
| | | -------------------------- | |
| (=) Subtotal: | = | $273,630 | |
| (+) Senior Appraised Value: | + | $0 | |
| (+) Non-Senior Appraised Value: | + | $273,630 | |
| | | -------------------------- | |
| (=) Total Appraised Value: | = | $273,630 | |
| (–) Senior Exemption Loss: | – | $0 | |
| (–) Exemption Loss: | – | $0 | |
| | | -------------------------- | |
| (=) Taxable Value: | = | $273,630 | |
Taxing Jurisdiction
| Owner: | PEASE JOSHUA DAVID & CHLOE R | | |
| % Ownership: | 100.0000000000% | | |
| Total Value: | $273,630 | | |
| Tax Area: | 1 - OL-140-F |
| CERFD | CURRENT EXPENSE REFUND 010 | 0.0000000000 | $273,630 | $273,630 | $0.00 | | |
| CURREXP | CURRENT EXPENSE 010 | 1.0175366760 | $273,630 | $273,630 | $278.43 | | |
| HUMNSERV | HUMAN SERVICES 119 | 0.0250000000 | $273,630 | $273,630 | $6.84 | | |
| SLDREL | SOLDIERS RELIEF 121 | 0.0155990005 | $273,630 | $273,630 | $4.27 | | |
| EMERGSER | EMS 147 | 0.3792580840 | $273,630 | $273,630 | $103.78 | | |
| EMSRFD | EMS REFUND 147 | 0.0000000000 | $273,630 | $273,630 | $0.00 | | |
| PORTRFD | PORT REFUND 640 | 0.0000000000 | $273,630 | $273,630 | $0.00 | | |
| PORTWWGEN | PORT OF WW 640 | 0.2460186015 | $273,630 | $273,630 | $67.32 | | |
| SD140BOND | SD #140 BOND 764 | 0.8342371393 | $273,630 | $273,630 | $228.27 | | |
| SD140GEN | SD #140 GENERAL 760 | 2.0646500647 | $273,630 | $273,630 | $564.95 | | |
| ST2 | STATE SCHOOL PART 2 600 | 0.8131451643 | $273,630 | $273,630 | $222.50 | | |
| STATESCHL | STATE SCHOOL 600 | 1.5158548041 | $273,630 | $273,630 | $414.78 | | |
| STREFUND | STATE REFUND LEVY 603 | 0.0000000000 | $273,630 | $273,630 | $0.00 | | |
| CWWBOND | C OF WW BOND 643 | 0.2760494372 | $273,630 | $273,630 | $75.54 | | |
| CWWGEN | CITY OF WW 631 | 1.6100204973 | $273,630 | $273,630 | $440.55 | | |
| CWWRFD | CITY OF WALLA WALLA REFUND 631 | 0.0000000000 | $273,630 | $273,630 | $0.00 | | |
| | Total Tax Rate: | 8.7973694689 | | | | | |
| | | | | Taxes w/Current Exemptions: | $2,407.23 | | |
| | | | | Taxes w/o Exemptions: | $2,407.23 | | |
Improvement / Building
| Improvement #1: | RESIDENTIAL | State Code: | 11 | 1086.0 sqft | Value: | $251,580 |
| Exterior Wall: | SIDING | Heating/Cooling: | WARM & COOLED AIR | | Number of Bathrooms: | 1 | Number of Bedrooms: | 3 | | Plumbing: | 6 | Roof Covering: | COMP SHINGLE |
|
| | Type | Description | Class CD | Sub Class CD | Year Built | Area |
| | MA | Main Area | 1 | 30 | 1920 | 1086.0 |
| | RPC | OPEN PORCH W/ROOF , CEILED | 1 | 30 | 0 | 52.0 |
| | SI1 | SITE IMPROVEMENT | 1 | 30 | 0 | 1.0 |
| | BASE | BASEMENT | 1 | 30 | 1920 | 800.0 |
| | BRF | BASEMENT - REC FINISH | 1 | 30 | 1920 | 700.0 |
Sketch
Property Image
Land
| 1 | RES 1 | Converted: Residential | 0.0964 | 4200.00 | 0.00 | 0.00 | 1.00 | $22,050 | $0 |
Roll Value History
| 2025 | N/A | N/A | N/A | N/A | N/A |
| 2024 | $233,450 | $37,800 | $0 | $271,250 | $271,250 |
| 2023 | $251,580 | $22,050 | $0 | $273,630 | $273,630 |
| 2022 | $209,650 | $22,050 | $0 | $231,700 | $231,700 |
| 2021 | $174,710 | $22,050 | $0 | $196,760 | $196,760 |
| 2020 | $124,790 | $22,050 | $0 | $146,840 | $146,840 |
| 2019 | $124,790 | $22,050 | $0 | $146,840 | $146,840 |
| 2018 | $118,850 | $22,050 | $0 | $140,900 | $140,900 |
| 2017 | $112,460 | $12,600 | $0 | $125,060 | $125,060 |
| 2016 | $112,460 | $12,600 | $0 | $125,060 | $125,060 |
| 2015 | $107,100 | $12,600 | $0 | $119,700 | $119,700 |
| 2014 | $102,000 | $12,600 | $0 | $114,600 | $114,600 |
| 2013 | $102,000 | $12,600 | $0 | $114,600 | $114,600 |
| 2012 | $102,000 | $12,600 | $0 | $0 | $0 |
| 2011 | $102,000 | $12,600 | $0 | $0 | $0 |
| 2010 | $102,000 | $12,600 | $0 | $0 | $0 |
| 2009 | $114,700 | $12,600 | $0 | $0 | $0 |
| 2008 | $78,300 | $12,600 | $0 | $0 | $0 |
| 2007 | $78,300 | $12,600 | $0 | $0 | $0 |
| 2006 | $60,200 | $8,400 | $0 | $0 | $0 |
Deed and Sales History
| 1 | 07/01/2021 | SWD | STATUTORY WARRANTY DEED | FLEMING KELLY G & MARY P | PEASE JOSHUA DAVID & CHLOE R | | | $232,000.00 | 141951 | 2021-08028 |
| 2 | 10/02/1998 | WARRANTY D | WARRANTY DEED | | | | | $65,500.00 | 91373 | 2739-811374 |
Payout Agreement
| No payout information available.. |