Property
Account |
| Property ID: | 6406 | Abbreviated Legal Description: | CAINS LOT 9 BLK 26 |
| Parcel Number: | 360720572614 | Agent Code: | |
| Type: | Real | | |
| Tax Area: | 1 - OL-140-F | Land Use Code | 12 |
| Open Space: | N | DFL | N |
| Historic Property: | N | Remodel Property: | N |
| Multi-Family Redevelopment: | N | | |
| Township: | 7 | Section: | 20 |
| Range: | 36 |
Location |
| Address: | 421 E CHERRY ST WA 99362 | Mapsco: | |
| Neighborhood: | F Duplex | Map ID: | |
| Neighborhood CD: | 512031 |
Owner |
| Name: | BARRONS BLAZING LLC | Owner ID: | 63386 |
| Mailing Address: | 634 COLLEGE ST MILTON FREEWATER, OR 97862 | % Ownership: | 100.0000000000% |
| | | Exemptions: | |
Taxes and Assessment Details
Values
| (+) Improvement Homesite Value: | + | $0 | |
| (+) Improvement Non-Homesite Value: | + | $236,550 | |
| (+) Land Homesite Value: | + | $0 | |
| (+) Land Non-Homesite Value: | + | $53,570 | |
| (+) Curr Use (HS): | + | $0 | $0 |
| (+) Curr Use (NHS): | + | $0 | $0 |
| | | -------------------------- | |
| (=) Market Value: | = | $290,120 | |
| (–) Productivity Loss: | – | $0 | |
| | | -------------------------- | |
| (=) Subtotal: | = | $290,120 | |
| (+) Senior Appraised Value: | + | $0 | |
| (+) Non-Senior Appraised Value: | + | $290,120 | |
| | | -------------------------- | |
| (=) Total Appraised Value: | = | $290,120 | |
| (–) Senior Exemption Loss: | – | $0 | |
| (–) Exemption Loss: | – | $0 | |
| | | -------------------------- | |
| (=) Taxable Value: | = | $290,120 | |
Taxing Jurisdiction
| Owner: | BARRONS BLAZING LLC | | |
| % Ownership: | 100.0000000000% | | |
| Total Value: | $290,120 | | |
| Tax Area: | 1 - OL-140-F |
| CERFD | CURRENT EXPENSE REFUND 010 | 0.0000000000 | $290,120 | $290,120 | $0.00 | | |
| CURREXP | CURRENT EXPENSE 010 | 1.0175366760 | $290,120 | $290,120 | $295.21 | | |
| HUMNSERV | HUMAN SERVICES 119 | 0.0250000000 | $290,120 | $290,120 | $7.25 | | |
| SLDREL | SOLDIERS RELIEF 121 | 0.0155990005 | $290,120 | $290,120 | $4.53 | | |
| EMERGSER | EMS 147 | 0.3792580840 | $290,120 | $290,120 | $110.03 | | |
| EMSRFD | EMS REFUND 147 | 0.0000000000 | $290,120 | $290,120 | $0.00 | | |
| PORTRFD | PORT REFUND 640 | 0.0000000000 | $290,120 | $290,120 | $0.00 | | |
| PORTWWGEN | PORT OF WW 640 | 0.2460186015 | $290,120 | $290,120 | $71.37 | | |
| SD140BOND | SD #140 BOND 764 | 0.8342371393 | $290,120 | $290,120 | $242.03 | | |
| SD140GEN | SD #140 GENERAL 760 | 2.0646500647 | $290,120 | $290,120 | $599.00 | | |
| ST2 | STATE SCHOOL PART 2 600 | 0.8131451643 | $290,120 | $290,120 | $235.91 | | |
| STATESCHL | STATE SCHOOL 600 | 1.5158548041 | $290,120 | $290,120 | $439.78 | | |
| STREFUND | STATE REFUND LEVY 603 | 0.0000000000 | $290,120 | $290,120 | $0.00 | | |
| CWWBOND | C OF WW BOND 643 | 0.2760494372 | $290,120 | $290,120 | $80.09 | | |
| CWWGEN | CITY OF WW 631 | 1.6100204973 | $290,120 | $290,120 | $467.10 | | |
| CWWRFD | CITY OF WALLA WALLA REFUND 631 | 0.0000000000 | $290,120 | $290,120 | $0.00 | | |
| | Total Tax Rate: | 8.7973694689 | | | | | |
| | | | | Taxes w/Current Exemptions: | $2,552.30 | | |
| | | | | Taxes w/o Exemptions: | $2,552.30 | | |
Improvement / Building
| Improvement #1: | RESIDENTIAL | State Code: | 12 | 1200.0 sqft | Value: | $236,550 |
| Exterior Wall: | SIDING | Heating/Cooling: | BASEBOARD HOT WATER | | Number of Bathrooms: | 2 | Number of Bedrooms: | 2 | | Plumbing: | 10 | Roof Covering: | COMP SHINGLE |
|
| | Type | Description | Class CD | Sub Class CD | Year Built | Area |
| | MA | Main Area | 1 | 25 | 1924 | 1200.0 |
| | SI1 | SITE IMPROVEMENT | 1 | 25 | 0 | 1.0 |
| | BASE | BASEMENT | 1 | 25 | 1924 | 600.0 |
| | DTG | Detached Garage | 1 | 25 | 1924 | 420.0 |
| | SWP | Solid Wall Porch | 1 | 25 | 1924 | 65.0 |
Sketch
Property Image
Land
| 1 | RES 1 | Converted: Residential | 0.3306 | 14400.00 | 0.00 | 0.00 | 1.00 | $53,570 | $0 |
Roll Value History
| 2025 | N/A | N/A | N/A | N/A | N/A |
| 2024 | $222,500 | $78,900 | $0 | $301,400 | $301,400 |
| 2023 | $236,550 | $53,570 | $0 | $290,120 | $290,120 |
| 2022 | $236,550 | $53,570 | $0 | $290,120 | $290,120 |
| 2021 | $143,360 | $53,570 | $0 | $196,930 | $196,930 |
| 2020 | $130,330 | $53,570 | $0 | $183,900 | $183,900 |
| 2019 | $130,330 | $53,570 | $0 | $183,900 | $183,900 |
| 2018 | $130,330 | $53,570 | $0 | $183,900 | $183,900 |
| 2017 | $34,800 | $25,200 | $0 | $60,000 | $60,000 |
| 2016 | $34,800 | $25,200 | $0 | $60,000 | $60,000 |
| 2015 | $34,800 | $25,200 | $0 | $60,000 | $60,000 |
| 2014 | $34,800 | $25,200 | $0 | $60,000 | $60,000 |
| 2013 | $34,800 | $25,200 | $0 | $60,000 | $60,000 |
| 2012 | $34,800 | $25,200 | $0 | $0 | $0 |
| 2011 | $83,900 | $25,200 | $0 | $0 | $0 |
| 2010 | $83,900 | $25,200 | $0 | $0 | $0 |
| 2009 | $96,000 | $25,200 | $0 | $0 | $0 |
| 2008 | $68,000 | $25,200 | $0 | $0 | $0 |
| 2007 | $68,000 | $25,200 | $0 | $0 | $0 |
| 2006 | $70,800 | $18,700 | $0 | $0 | $0 |
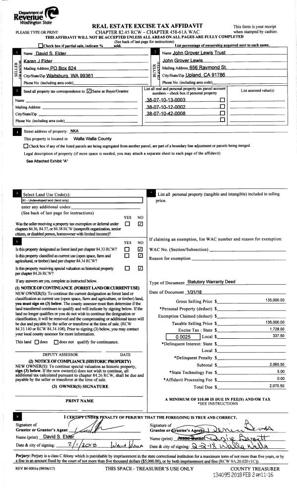
Deed and Sales History
| 1 | 09/03/2021 | SWD | STATUTORY WARRANTY DEED | OETMAN GREG B & JENNIFER | BARRONS BLAZING LLC | | | $300,000.00 | 142436 | 2021-10899 |
| 2 | 10/01/2010 | WARRANTY D | WARRANTY DEED | RIO GRANDE PROPERTIES LLC | OETMAN, GREG B & JENNIFER | | | $60,000.00 | 119115 | 2010-07813 |
| 3 | 04/28/2004 | WARRANTY D | WARRANTY DEED | WATSON, DEMETRIUS & LISA M | RIO GRANDE PROPERTIES LLC | | | | 104606 | 2004-04462 |
| 4 | 09/18/1995 | WARRANTY D | WARRANTY DEED | | | | | $92,000.00 | 84722 | 2339-508882 |
Payout Agreement
| No payout information available.. |