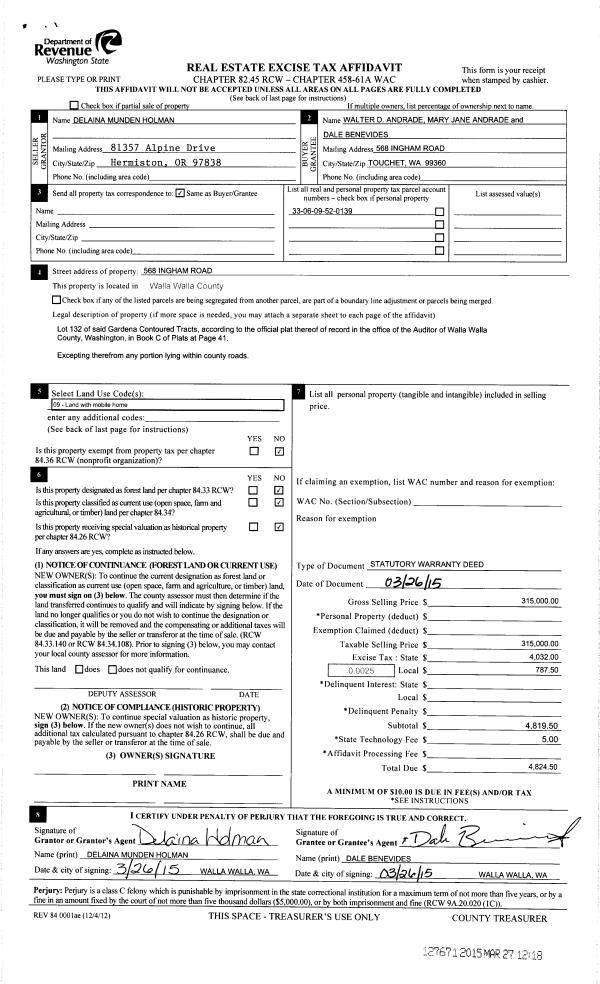
Property
Account |
| Property ID: | 6336 | Abbreviated Legal Description: | BARDSLEYS LOT 7 & N 38' OF LOT 8 BLK L |
| Parcel Number: | 360720530207 | Agent Code: | |
| Type: | Real | | |
| Tax Area: | 1 - OL-140-F | Land Use Code | 11 |
| Open Space: | N | DFL | N |
| Historic Property: | N | Remodel Property: | N |
| Multi-Family Redevelopment: | N | | |
| Township: | 7 | Section: | 20 |
| Range: | 36 |
Location |
| Address: | 911 JEFFERSON ST WA 99362 | Mapsco: | |
| Neighborhood: | A-SFR | Map ID: | |
| Neighborhood CD: | 313011 |
Owner |
| Name: | VAZQUEZ CARLOS CUEVAS | Owner ID: | 54436 |
| Mailing Address: | 911 JEFFERSON ST WALLA WALLA, WA 99362 | % Ownership: | 100.0000000000% |
| | | Exemptions: | |
Taxes and Assessment Details
Values
| (+) Improvement Homesite Value: | + | $0 | |
| (+) Improvement Non-Homesite Value: | + | $1,390 | |
| (+) Land Homesite Value: | + | $0 | |
| (+) Land Non-Homesite Value: | + | $67,690 | |
| (+) Curr Use (HS): | + | $0 | $0 |
| (+) Curr Use (NHS): | + | $0 | $0 |
| | | -------------------------- | |
| (=) Market Value: | = | $69,080 | |
| (–) Productivity Loss: | – | $0 | |
| | | -------------------------- | |
| (=) Subtotal: | = | $69,080 | |
| (+) Senior Appraised Value: | + | $0 | |
| (+) Non-Senior Appraised Value: | + | $69,080 | |
| | | -------------------------- | |
| (=) Total Appraised Value: | = | $69,080 | |
| (–) Senior Exemption Loss: | – | $0 | |
| (–) Exemption Loss: | – | $0 | |
| | | -------------------------- | |
| (=) Taxable Value: | = | $69,080 | |
Taxing Jurisdiction
| Owner: | VAZQUEZ CARLOS CUEVAS | | |
| % Ownership: | 100.0000000000% | | |
| Total Value: | $69,080 | | |
| Tax Area: | 1 - OL-140-F |
| CERFD | CURRENT EXPENSE REFUND 010 | 0.0000000000 | $69,080 | $69,080 | $0.00 | | |
| CURREXP | CURRENT EXPENSE 010 | 1.0175366760 | $69,080 | $69,080 | $70.29 | | |
| HUMNSERV | HUMAN SERVICES 119 | 0.0250000000 | $69,080 | $69,080 | $1.73 | | |
| SLDREL | SOLDIERS RELIEF 121 | 0.0155990005 | $69,080 | $69,080 | $1.08 | | |
| EMERGSER | EMS 147 | 0.3792580840 | $69,080 | $69,080 | $26.20 | | |
| EMSRFD | EMS REFUND 147 | 0.0000000000 | $69,080 | $69,080 | $0.00 | | |
| PORTRFD | PORT REFUND 640 | 0.0000000000 | $69,080 | $69,080 | $0.00 | | |
| PORTWWGEN | PORT OF WW 640 | 0.2460186015 | $69,080 | $69,080 | $16.99 | | |
| SD140BOND | SD #140 BOND 764 | 0.8342371393 | $69,080 | $69,080 | $57.63 | | |
| SD140GEN | SD #140 GENERAL 760 | 2.0646500647 | $69,080 | $69,080 | $142.63 | | |
| ST2 | STATE SCHOOL PART 2 600 | 0.8131451643 | $69,080 | $69,080 | $56.17 | | |
| STATESCHL | STATE SCHOOL 600 | 1.5158548041 | $69,080 | $69,080 | $104.72 | | |
| STREFUND | STATE REFUND LEVY 603 | 0.0000000000 | $69,080 | $69,080 | $0.00 | | |
| CWWBOND | C OF WW BOND 643 | 0.2760494372 | $69,080 | $69,080 | $19.07 | | |
| CWWGEN | CITY OF WW 631 | 1.6100204973 | $69,080 | $69,080 | $111.22 | | |
| CWWRFD | CITY OF WALLA WALLA REFUND 631 | 0.0000000000 | $69,080 | $69,080 | $0.00 | | |
| | Total Tax Rate: | 8.7973694689 | | | | | |
| | | | | Taxes w/Current Exemptions: | $607.73 | | |
| | | | | Taxes w/o Exemptions: | $607.73 | | |
Improvement / Building
| Improvement #1: | RESIDENTIAL | State Code: | 11 | 876.0 sqft | Value: | $1,390 |
| Exterior Wall: | SIDING | Foundation: | POST & PIER | | Heating/Cooling: | FORCED AIR | Number of Bathrooms: | 1 | | Number of Bedrooms: | 2 | Plumbing: | 6 | | Roof Covering: | GALVANIZED METAL |   |   |
|
| | Type | Description | Class CD | Sub Class CD | Year Built | Area |
| | MA | Main Area | 1 | 20 | 1920 | 876.0 |
| | SI1 | SITE IMPROVEMENT | 1 | 20 | 0 | 1.0 |
| | WDR | WOOD DECK W/ROOF | 1 | 20 | 0 | 72.0 |
Sketch
Property Image
Land
| 1 | RES 1 | Converted: Residential | 0.2424 | 10560.00 | 0.00 | 0.00 | 1.00 | $67,690 | $0 |
Roll Value History
| 2025 | N/A | N/A | N/A | N/A | N/A |
| 2024 | $0 | $67,690 | $0 | $67,690 | $67,690 |
| 2023 | $1,390 | $67,690 | $0 | $69,080 | $69,080 |
| 2022 | $1,390 | $67,690 | $0 | $69,080 | $69,080 |
| 2021 | $26,110 | $27,530 | $0 | $53,640 | $53,640 |
| 2020 | $26,110 | $27,530 | $0 | $53,640 | $53,640 |
| 2019 | $26,110 | $27,530 | $0 | $53,640 | $53,640 |
| 2018 | $26,110 | $27,530 | $0 | $53,640 | $53,640 |
| 2017 | $26,110 | $27,530 | $0 | $53,640 | $53,640 |
| 2016 | $24,870 | $27,530 | $0 | $52,400 | $52,400 |
| 2015 | $39,170 | $14,300 | $0 | $53,470 | $53,470 |
| 2014 | $37,300 | $14,300 | $0 | $51,600 | $51,600 |
| 2013 | $37,300 | $14,300 | $0 | $51,600 | $51,600 |
| 2012 | $37,300 | $14,300 | $0 | $0 | $0 |
| 2011 | $37,300 | $14,300 | $0 | $0 | $0 |
| 2010 | $26,100 | $27,500 | $0 | $0 | $0 |
| 2009 | $25,000 | $15,300 | $0 | $0 | $0 |
| 2008 | $19,700 | $15,300 | $0 | $0 | $0 |
| 2007 | $19,700 | $15,300 | $0 | $0 | $0 |
| 2006 | $17,500 | $11,300 | $0 | $0 | $0 |
Deed and Sales History
| 1 | 11/22/2023 | SWD | STATUTORY WARRANTY DEED | VAZQUEZ CARLOS CUEVAS | AYALA IRMA SANCHEZ | | | $80,000.00 | 146838 | 2023-06829 |
| 2 | 01/31/2014 | SWD | STATUTORY WARRANTY DEED | HINTZ ROMAN C | VAZQUEZ CARLOS CUEVAS | | | $55,000.00 | 125357 | 2014-00784 |
| 3 | 05/04/1990 | QCD | QUIT CLAIM DEED | | | | | $5,126.00 | 0 | 1829-002954 |
Payout Agreement
| No payout information available.. |