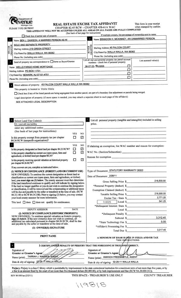
Property
Account |
| Property ID: | 6216 | Abbreviated Legal Description: | BUTLERS LOTS 19 & 20 BLK 10 |
| Parcel Number: | 360719521019 | Agent Code: | |
| Type: | Real | | |
| Tax Area: | 1 - OL-140-F | Land Use Code | 91 |
| Open Space: | N | DFL | N |
| Historic Property: | N | Remodel Property: | N |
| Multi-Family Redevelopment: | N | | |
| Township: | 7 | Section: | 19 |
| Range: | 36 |
Location |
| Address: | WA 99362 | Mapsco: | |
| Neighborhood: | COMMERCIAL | Map ID: | |
| Neighborhood CD: | 3319 |
Owner |
| Name: | VARGAS ODILON & YNEZ | Owner ID: | 64205 |
| Mailing Address: | 1830 E ALDER ST WALLA WALLA, WA 99362 | % Ownership: | 100.0000000000% |
| | | Exemptions: | |
Taxes and Assessment Details
Values
| (+) Improvement Homesite Value: | + | $0 | |
| (+) Improvement Non-Homesite Value: | + | $0 | |
| (+) Land Homesite Value: | + | $0 | |
| (+) Land Non-Homesite Value: | + | $28,500 | |
| (+) Curr Use (HS): | + | $0 | $0 |
| (+) Curr Use (NHS): | + | $0 | $0 |
| | | -------------------------- | |
| (=) Market Value: | = | $28,500 | |
| (–) Productivity Loss: | – | $0 | |
| | | -------------------------- | |
| (=) Subtotal: | = | $28,500 | |
| (+) Senior Appraised Value: | + | $0 | |
| (+) Non-Senior Appraised Value: | + | $28,500 | |
| | | -------------------------- | |
| (=) Total Appraised Value: | = | $28,500 | |
| (–) Senior Exemption Loss: | – | $0 | |
| (–) Exemption Loss: | – | $0 | |
| | | -------------------------- | |
| (=) Taxable Value: | = | $28,500 | |
Taxing Jurisdiction
| Owner: | VARGAS ODILON & YNEZ | | |
| % Ownership: | 100.0000000000% | | |
| Total Value: | $28,500 | | |
| Tax Area: | 1 - OL-140-F |
| CERFD | CURRENT EXPENSE REFUND 010 | 0.0000000000 | $28,500 | $28,500 | $0.00 | | |
| CURREXP | CURRENT EXPENSE 010 | 1.0175366760 | $28,500 | $28,500 | $29.00 | | |
| HUMNSERV | HUMAN SERVICES 119 | 0.0250000000 | $28,500 | $28,500 | $0.71 | | |
| SLDREL | SOLDIERS RELIEF 121 | 0.0155990005 | $28,500 | $28,500 | $0.44 | | |
| EMERGSER | EMS 147 | 0.3792580840 | $28,500 | $28,500 | $10.81 | | |
| EMSRFD | EMS REFUND 147 | 0.0000000000 | $28,500 | $28,500 | $0.00 | | |
| PORTRFD | PORT REFUND 640 | 0.0000000000 | $28,500 | $28,500 | $0.00 | | |
| PORTWWGEN | PORT OF WW 640 | 0.2460186015 | $28,500 | $28,500 | $7.01 | | |
| SD140BOND | SD #140 BOND 764 | 0.8342371393 | $28,500 | $28,500 | $23.78 | | |
| SD140GEN | SD #140 GENERAL 760 | 2.0646500647 | $28,500 | $28,500 | $58.84 | | |
| ST2 | STATE SCHOOL PART 2 600 | 0.8131451643 | $28,500 | $28,500 | $23.17 | | |
| STATESCHL | STATE SCHOOL 600 | 1.5158548041 | $28,500 | $28,500 | $43.20 | | |
| STREFUND | STATE REFUND LEVY 603 | 0.0000000000 | $28,500 | $28,500 | $0.00 | | |
| CWWBOND | C OF WW BOND 643 | 0.2760494372 | $28,500 | $28,500 | $7.87 | | |
| CWWGEN | CITY OF WW 631 | 1.6100204973 | $28,500 | $28,500 | $45.89 | | |
| CWWRFD | CITY OF WALLA WALLA REFUND 631 | 0.0000000000 | $28,500 | $28,500 | $0.00 | | |
| | Total Tax Rate: | 8.7973694689 | | | | | |
| | | | | Taxes w/Current Exemptions: | $250.72 | | |
| | | | | Taxes w/o Exemptions: | $250.72 | | |
Improvement / Building
Sketch
| No sketches available for this property. |
Property Image
Land
| 1 | COM 1 | Converted: Commercial | 0.2415 | 10519.74 | 0.00 | 0.00 | 1.00 | $28,500 | $0 |
Roll Value History
| 2025 | N/A | N/A | N/A | N/A | N/A |
| 2024 | $0 | $28,500 | $0 | $28,500 | $28,500 |
| 2023 | $0 | $28,500 | $0 | $28,500 | $28,500 |
| 2022 | $0 | $28,500 | $0 | $28,500 | $28,500 |
| 2021 | $0 | $15,800 | $0 | $15,800 | $15,800 |
| 2020 | $0 | $15,800 | $0 | $15,800 | $15,800 |
| 2019 | $0 | $15,800 | $0 | $15,800 | $15,800 |
| 2018 | $0 | $15,800 | $0 | $15,800 | $15,800 |
| 2017 | $0 | $15,800 | $0 | $15,800 | $15,800 |
| 2016 | $0 | $15,800 | $0 | $15,800 | $15,800 |
| 2015 | $0 | $10,500 | $0 | $10,500 | $10,500 |
| 2014 | $0 | $10,500 | $0 | $10,500 | $10,500 |
| 2013 | $0 | $10,500 | $0 | $10,500 | $10,500 |
| 2012 | $0 | $10,500 | $0 | $0 | $0 |
| 2011 | $0 | $10,500 | $0 | $0 | $0 |
| 2010 | $0 | $7,900 | $0 | $0 | $0 |
| 2009 | $0 | $7,900 | $0 | $0 | $0 |
| 2008 | $0 | $7,900 | $0 | $0 | $0 |
| 2007 | $0 | $7,900 | $0 | $0 | $0 |
| 2006 | $0 | $7,900 | $0 | $0 | $0 |
Deed and Sales History
| 1 | 10/31/2018 | SWD | STATUTORY WARRANTY DEED | POWELL-CHRISTENSEN INC | VARGAS ODILON & YNEZ | | 3-PARCELS | $154,500.00 | 135841 | 2018-09033 |
|   | |
| 2 | 07/25/2001 | WARRANTY D | WARRANTY DEED | | | | | | 97660 | 3170-107894 |
Payout Agreement
| No payout information available.. |