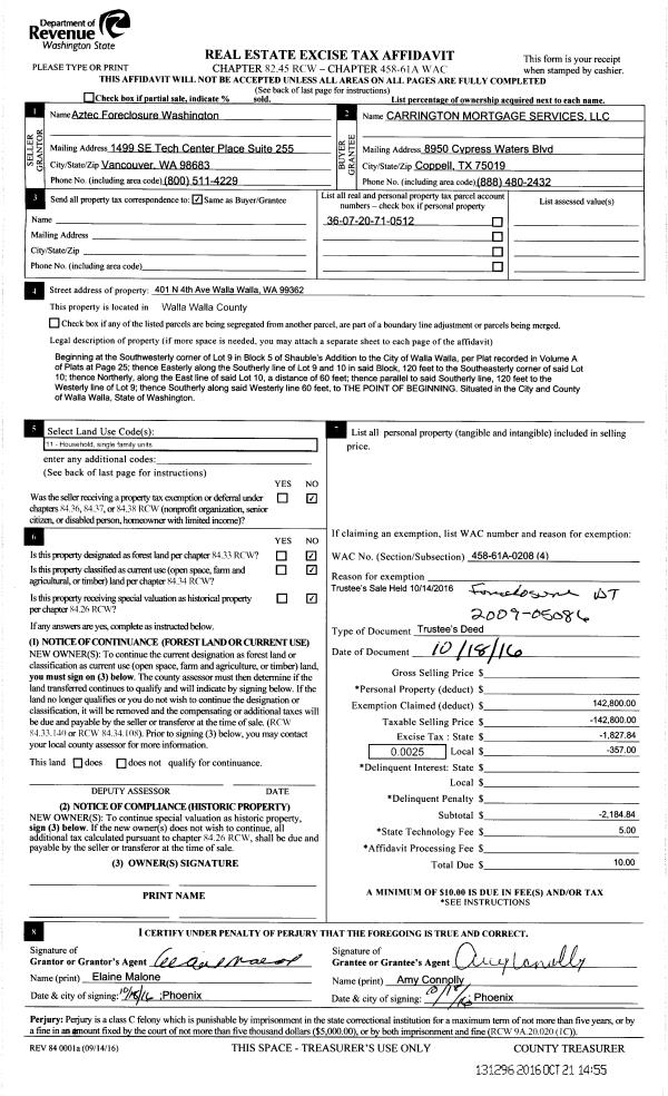
Property
Account |
| Property ID: | 6146 | Abbreviated Legal Description: | 19-7-36 LOT 6 OF AMENDED S/P (PT TAX 17) |
| Parcel Number: | 360719430051 | Agent Code: | |
| Type: | Real | | |
| Tax Area: | 1 - OL-140-F | Land Use Code | 64 |
| Open Space: | N | DFL | N |
| Historic Property: | N | Remodel Property: | N |
| Multi-Family Redevelopment: | N | | |
| Township: | 7 | Section: | 19 |
| Range: | 36 |
Location |
| Address: | 622 INDUSTRIAL CT WALLA WALLA, WA 99362 | Mapsco: | |
| Neighborhood: | COMMERCIAL INDUSTRIAL | Map ID: | |
| Neighborhood CD: | 3303 |
Owner |
| Name: | EDDY SMITH LLC | Owner ID: | 58087 |
| Mailing Address: | 1412 TOPAZ WALLA WALLA, WA 99362 | % Ownership: | 100.0000000000% |
| | | Exemptions: | |
Taxes and Assessment Details
Values
| (+) Improvement Homesite Value: | + | $0 | |
| (+) Improvement Non-Homesite Value: | + | $366,100 | |
| (+) Land Homesite Value: | + | $0 | |
| (+) Land Non-Homesite Value: | + | $133,800 | |
| (+) Curr Use (HS): | + | $0 | $0 |
| (+) Curr Use (NHS): | + | $0 | $0 |
| | | -------------------------- | |
| (=) Market Value: | = | $499,900 | |
| (–) Productivity Loss: | – | $0 | |
| | | -------------------------- | |
| (=) Subtotal: | = | $499,900 | |
| (+) Senior Appraised Value: | + | $0 | |
| (+) Non-Senior Appraised Value: | + | $499,900 | |
| | | -------------------------- | |
| (=) Total Appraised Value: | = | $499,900 | |
| (–) Senior Exemption Loss: | – | $0 | |
| (–) Exemption Loss: | – | $0 | |
| | | -------------------------- | |
| (=) Taxable Value: | = | $499,900 | |
Taxing Jurisdiction
| Owner: | EDDY SMITH LLC | | |
| % Ownership: | 100.0000000000% | | |
| Total Value: | $499,900 | | |
| Tax Area: | 1 - OL-140-F |
| CERFD | CURRENT EXPENSE REFUND 010 | 0.0000000000 | $499,900 | $499,900 | $0.00 | | |
| CURREXP | CURRENT EXPENSE 010 | 1.0175366760 | $499,900 | $499,900 | $508.67 | | |
| HUMNSERV | HUMAN SERVICES 119 | 0.0250000000 | $499,900 | $499,900 | $12.50 | | |
| SLDREL | SOLDIERS RELIEF 121 | 0.0155990005 | $499,900 | $499,900 | $7.80 | | |
| EMERGSER | EMS 147 | 0.3792580840 | $499,900 | $499,900 | $189.59 | | |
| EMSRFD | EMS REFUND 147 | 0.0000000000 | $499,900 | $499,900 | $0.00 | | |
| PORTRFD | PORT REFUND 640 | 0.0000000000 | $499,900 | $499,900 | $0.00 | | |
| PORTWWGEN | PORT OF WW 640 | 0.2460186015 | $499,900 | $499,900 | $122.98 | | |
| SD140BOND | SD #140 BOND 764 | 0.8342371393 | $499,900 | $499,900 | $417.04 | | |
| SD140GEN | SD #140 GENERAL 760 | 2.0646500647 | $499,900 | $499,900 | $1,032.12 | | |
| ST2 | STATE SCHOOL PART 2 600 | 0.8131451643 | $499,900 | $499,900 | $406.49 | | |
| STATESCHL | STATE SCHOOL 600 | 1.5158548041 | $499,900 | $499,900 | $757.78 | | |
| STREFUND | STATE REFUND LEVY 603 | 0.0000000000 | $499,900 | $499,900 | $0.00 | | |
| CWWBOND | C OF WW BOND 643 | 0.2760494372 | $499,900 | $499,900 | $138.00 | | |
| CWWGEN | CITY OF WW 631 | 1.6100204973 | $499,900 | $499,900 | $804.85 | | |
| CWWRFD | CITY OF WALLA WALLA REFUND 631 | 0.0000000000 | $499,900 | $499,900 | $0.00 | | |
| | Total Tax Rate: | 8.7973694689 | | | | | |
| | | | | Taxes w/Current Exemptions: | $4,397.82 | | |
| | | | | Taxes w/o Exemptions: | $4,397.82 | | |
Improvement / Building
| Improvement #1: | COMMERCIAL | State Code: | 64 | 4310.0 sqft | Value: | $366,100 |
| | Type | Description | Class CD | Sub Class CD | Year Built | Area |
| | MA | Main Area | D | * | 2015 | 4310.0 |
| | SI1 | SITE IMPROVEMENT | D | * | 2015 | 3.0 |
Sketch
Property Image
Land
| 1 | COM 1 | Converted: Commercial | 0.8299 | 36150.44 | 0.00 | 0.00 | 1.00 | $133,800 | $0 |
Roll Value History
| 2025 | N/A | N/A | N/A | N/A | N/A |
| 2024 | $366,100 | $133,800 | $0 | $499,900 | $499,900 |
| 2023 | $366,100 | $133,800 | $0 | $499,900 | $499,900 |
| 2022 | $366,100 | $133,800 | $0 | $499,900 | $499,900 |
| 2021 | $359,400 | $126,500 | $0 | $485,900 | $485,900 |
| 2020 | $359,400 | $126,500 | $0 | $485,900 | $485,900 |
| 2019 | $359,400 | $126,500 | $0 | $485,900 | $485,900 |
| 2018 | $359,400 | $126,500 | $0 | $485,900 | $485,900 |
| 2017 | $359,400 | $126,500 | $0 | $485,900 | $485,900 |
| 2016 | $310,000 | $126,500 | $0 | $436,500 | $436,500 |
| 2015 | $210,500 | $104,600 | $0 | $315,100 | $315,100 |
| 2014 | $0 | $45,100 | $0 | $45,100 | $45,100 |
| 2013 | $0 | $45,100 | $0 | $45,100 | $45,100 |
| 2012 | $0 | $180,400 | $0 | $0 | $0 |
| 2011 | $0 | $180,400 | $0 | $0 | $0 |
| 2010 | $0 | $180,400 | $0 | $0 | $0 |
| 2009 | $0 | $36,100 | $0 | $0 | $0 |
| 2008 | $0 | $36,100 | $0 | $0 | $0 |
| 2007 | $0 | $36,100 | $0 | $0 | $0 |
| 2006 | $0 | $36,100 | $0 | $0 | $0 |
Deed and Sales History
| 1 | 01/22/2016 | QCD | QUIT CLAIM DEED | EDDY SUSAN | EDDY SMITH LLC | | | $0.00 | 129551 | 2016-00502 |
| 2 | 05/28/2014 | BARGAIN & | BARGAIN & SALE DEED | BOCK DANIEL & BERNIE STUBER | EDDY SUSAN | | | $105,000.00 | 125968 | 2014-03614 |
| 3 | 09/28/2004 | WARRANTY D | WARRANTY DEED | "PRINGLE, RAY T & BARBARA" | PK PARTNERSHIP | | | | 105801 | 2004-11209 |
| 4 | | WARRANTY D | WARRANTY DEED | PK PARTNERSHIP | BOCK, DANIEL & BERNIE STUBER | | | | 97435 | 315-0106544 |
Payout Agreement
| No payout information available.. |