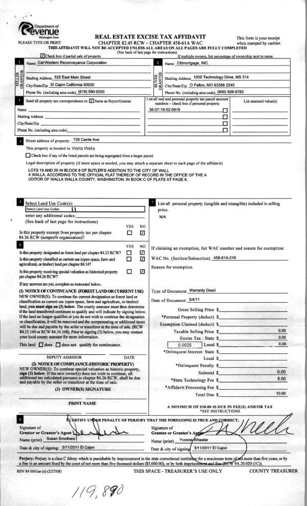
Property
Account |
| Property ID: | 6120 | Abbreviated Legal Description: | 19-7-36 TAX 64A LESS TAX 64B & 64C |
| Parcel Number: | 360719330008 | Agent Code: | |
| Type: | Real | | |
| Tax Area: | 1 - OL-140-F | Land Use Code | 11 |
| Open Space: | N | DFL | N |
| Historic Property: | N | Remodel Property: | N |
| Multi-Family Redevelopment: | N | | |
| Township: | 7 | Section: | 19 |
| Range: | 36 |
Location |
| Address: | 532 WOODLAND AVE WA 99362 | Mapsco: | |
| Neighborhood: | A-SFR | Map ID: | |
| Neighborhood CD: | 313011 |
Owner |
| Name: | HAMADA FAMILY TRUST | Owner ID: | 63491 |
| Mailing Address: | 36017 SE KENDALL PEAK ST SNOQUALMIE, WA 98065 | % Ownership: | 100.0000000000% |
| | | Exemptions: | |
Taxes and Assessment Details
Values
| (+) Improvement Homesite Value: | + | $0 | |
| (+) Improvement Non-Homesite Value: | + | $254,010 | |
| (+) Land Homesite Value: | + | $0 | |
| (+) Land Non-Homesite Value: | + | $91,190 | |
| (+) Curr Use (HS): | + | $0 | $0 |
| (+) Curr Use (NHS): | + | $0 | $0 |
| | | -------------------------- | |
| (=) Market Value: | = | $345,200 | |
| (–) Productivity Loss: | – | $0 | |
| | | -------------------------- | |
| (=) Subtotal: | = | $345,200 | |
| (+) Senior Appraised Value: | + | $0 | |
| (+) Non-Senior Appraised Value: | + | $345,200 | |
| | | -------------------------- | |
| (=) Total Appraised Value: | = | $345,200 | |
| (–) Senior Exemption Loss: | – | $0 | |
| (–) Exemption Loss: | – | $0 | |
| | | -------------------------- | |
| (=) Taxable Value: | = | $345,200 | |
Taxing Jurisdiction
| Owner: | HAMADA FAMILY TRUST | | |
| % Ownership: | 100.0000000000% | | |
| Total Value: | $345,200 | | |
| Tax Area: | 1 - OL-140-F |
| CERFD | CURRENT EXPENSE REFUND 010 | 0.0000000000 | $345,200 | $345,200 | $0.00 | | |
| CURREXP | CURRENT EXPENSE 010 | 1.0175366760 | $345,200 | $345,200 | $351.25 | | |
| HUMNSERV | HUMAN SERVICES 119 | 0.0250000000 | $345,200 | $345,200 | $8.63 | | |
| SLDREL | SOLDIERS RELIEF 121 | 0.0155990005 | $345,200 | $345,200 | $5.38 | | |
| EMERGSER | EMS 147 | 0.3792580840 | $345,200 | $345,200 | $130.92 | | |
| EMSRFD | EMS REFUND 147 | 0.0000000000 | $345,200 | $345,200 | $0.00 | | |
| PORTRFD | PORT REFUND 640 | 0.0000000000 | $345,200 | $345,200 | $0.00 | | |
| PORTWWGEN | PORT OF WW 640 | 0.2460186015 | $345,200 | $345,200 | $84.93 | | |
| SD140BOND | SD #140 BOND 764 | 0.8342371393 | $345,200 | $345,200 | $287.98 | | |
| SD140GEN | SD #140 GENERAL 760 | 2.0646500647 | $345,200 | $345,200 | $712.72 | | |
| ST2 | STATE SCHOOL PART 2 600 | 0.8131451643 | $345,200 | $345,200 | $280.70 | | |
| STATESCHL | STATE SCHOOL 600 | 1.5158548041 | $345,200 | $345,200 | $523.27 | | |
| STREFUND | STATE REFUND LEVY 603 | 0.0000000000 | $345,200 | $345,200 | $0.00 | | |
| CWWBOND | C OF WW BOND 643 | 0.2760494372 | $345,200 | $345,200 | $95.29 | | |
| CWWGEN | CITY OF WW 631 | 1.6100204973 | $345,200 | $345,200 | $555.78 | | |
| CWWRFD | CITY OF WALLA WALLA REFUND 631 | 0.0000000000 | $345,200 | $345,200 | $0.00 | | |
| | Total Tax Rate: | 8.7973694689 | | | | | |
| | | | | Taxes w/Current Exemptions: | $3,036.85 | | |
| | | | | Taxes w/o Exemptions: | $3,036.85 | | |
Improvement / Building
| Improvement #1: | RESIDENTIAL | State Code: | 11 | 1677.0 sqft | Value: | $254,010 |
| Exterior Wall: | SIDING | Heating/Cooling: | WARM & COOLED AIR | | Number of Bathrooms: | 2 | Number of Bedrooms: | 3 | | Plumbing: | 9 | Roof Covering: | COMP SHINGLE |
|
| | Type | Description | Class CD | Sub Class CD | Year Built | Area |
| | MA | Main Area | 1 | 30 | 1952 | 1677.0 |
| | BRW | BREEZEWAY | 1 | 30 | 0 | 240.0 |
| | SI1 | SITE IMPROVEMENT | 1 | 30 | 0 | 1.0 |
| | BASE | BASEMENT | 1 | 30 | 1952 | 1677.0 |
| | DTG | Detached Garage | 1 | 30 | 1952 | 420.0 |
| | S1F | Single One Story Fireplace | 1 | 30 | 1952 | 1.0 |
| | PRC | PORCH W STEPS, ROOF,CEILED | 1 | 30 | 1952 | 42.0 |
| | TOOL | TOOL SHED | 1 | 30 | 1952 | 288.0 |
Sketch
Property Image
Land
| 1 | RES 1 | Converted: Residential | 0.5300 | 23087.00 | 0.00 | 0.00 | 1.00 | $91,190 | $0 |
Roll Value History
| 2025 | N/A | N/A | N/A | N/A | N/A |
| 2024 | $254,010 | $91,190 | $0 | $345,200 | $345,200 |
| 2023 | $254,010 | $91,190 | $0 | $345,200 | $345,200 |
| 2022 | $230,920 | $91,190 | $0 | $322,110 | $322,110 |
| 2021 | $256,880 | $34,300 | $0 | $291,180 | $291,180 |
| 2020 | $233,530 | $34,300 | $0 | $267,830 | $267,830 |
| 2019 | $233,530 | $34,300 | $0 | $267,830 | $267,830 |
| 2018 | $166,810 | $34,300 | $0 | $201,110 | $201,110 |
| 2017 | $158,870 | $34,300 | $0 | $193,170 | $193,170 |
| 2016 | $151,300 | $34,300 | $0 | $185,600 | $185,600 |
| 2015 | $125,300 | $36,000 | $0 | $161,300 | $161,300 |
| 2014 | $125,300 | $36,000 | $0 | $161,300 | $161,300 |
| 2013 | $125,300 | $36,000 | $0 | $161,300 | $161,300 |
| 2012 | $125,300 | $36,000 | $0 | $0 | $0 |
| 2011 | $125,300 | $36,000 | $0 | $0 | $0 |
| 2010 | $124,600 | $36,000 | $0 | $0 | $0 |
| 2009 | $148,600 | $20,500 | $0 | $0 | $0 |
| 2008 | $96,100 | $20,500 | $0 | $0 | $0 |
| 2007 | $96,100 | $20,500 | $0 | $0 | $0 |
| 2006 | $96,100 | $20,500 | $0 | $0 | $0 |
Deed and Sales History
| 1 | 06/25/2018 | DEED | DEED | HAMADA RANDALL K ESTATE OF | HAMADA FAMILY TRUST | | | $0.00 | 135047 | 2018-05311 |
| 2 | 05/15/2014 | SWD | STATUTORY WARRANTY DEED | HAMADA FRANK | HAMADA RANDALL K ESTATE OF | | | $61,417.00 | 125890 | 2014-03302 |
| 3 | 05/14/2010 | WARRANTY D | WARRANTY DEED | HAMADA, HARRY | HAMADA, FRANK | | | $59,625.00 | 118471 | 2010-03736 |
| 4 | 01/19/1962 | WARRANTY D | WARRANTY DEED | | | | | $0.00 | 0 | 3010-438196 |
Payout Agreement
| No payout information available.. |