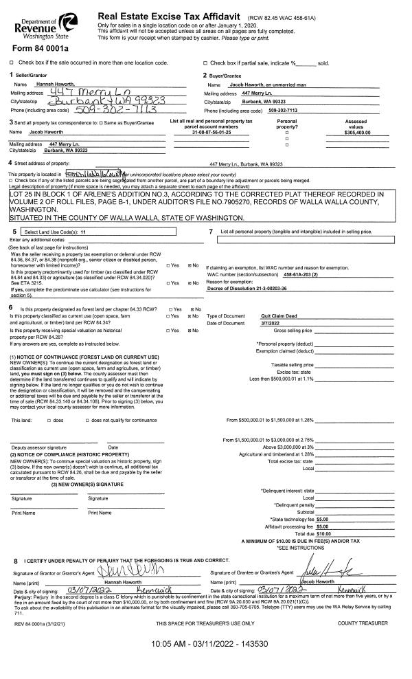
Property
Account |
| Property ID: | 6116 | Abbreviated Legal Description: | 19-7-36 AFTER ADJUSTMENT LOT 2 SURVEY 2023-00235 (PORTION LOT 1; PLUS LOT 2; PLUS PORTION LOT 3 SHORT PLAT 2/177 1992-06459) PTN TAX 13 IN NW1/4 SW1/4 |
| Parcel Number: | 360719320036 | Agent Code: | |
| Type: | Real | | |
| Tax Area: | 1 - OL-140-F | Land Use Code | 52 |
| Open Space: | N | DFL | N |
| Historic Property: | N | Remodel Property: | N |
| Multi-Family Redevelopment: | N | | |
| Township: | 7 | Section: | 19 |
| Range: | 36 |
Location |
| Address: | 1392 W PINE ST WA 99362 | Mapsco: | |
| Neighborhood: | | Map ID: | |
| Neighborhood CD: | 3343 |
Owner |
| Name: | ALDEN KIRK & KRISTINA C | Owner ID: | 4098 |
| Mailing Address: | 105 NEWTOWN RD WALLA WALLA, WA 99362 | % Ownership: | 100.0000000000% |
| | | Exemptions: | |
Taxes and Assessment Details
Values
| (+) Improvement Homesite Value: | + | $0 | |
| (+) Improvement Non-Homesite Value: | + | $177,000 | |
| (+) Land Homesite Value: | + | $0 | |
| (+) Land Non-Homesite Value: | + | $130,500 | |
| (+) Curr Use (HS): | + | $0 | $0 |
| (+) Curr Use (NHS): | + | $0 | $0 |
| | | -------------------------- | |
| (=) Market Value: | = | $307,500 | |
| (–) Productivity Loss: | – | $0 | |
| | | -------------------------- | |
| (=) Subtotal: | = | $307,500 | |
| (+) Senior Appraised Value: | + | $0 | |
| (+) Non-Senior Appraised Value: | + | $307,500 | |
| | | -------------------------- | |
| (=) Total Appraised Value: | = | $307,500 | |
| (–) Senior Exemption Loss: | – | $0 | |
| (–) Exemption Loss: | – | $0 | |
| | | -------------------------- | |
| (=) Taxable Value: | = | $307,500 | |
Taxing Jurisdiction
| Owner: | ALDEN KIRK & KRISTINA C | | |
| % Ownership: | 100.0000000000% | | |
| Total Value: | $307,500 | | |
| Tax Area: | 1 - OL-140-F |
| CERFD | CURRENT EXPENSE REFUND 010 | 0.0000000000 | $307,500 | $307,500 | $0.00 | | |
| CURREXP | CURRENT EXPENSE 010 | 1.0175366760 | $307,500 | $307,500 | $312.89 | | |
| HUMNSERV | HUMAN SERVICES 119 | 0.0250000000 | $307,500 | $307,500 | $7.69 | | |
| SLDREL | SOLDIERS RELIEF 121 | 0.0155990005 | $307,500 | $307,500 | $4.80 | | |
| EMERGSER | EMS 147 | 0.3792580840 | $307,500 | $307,500 | $116.62 | | |
| EMSRFD | EMS REFUND 147 | 0.0000000000 | $307,500 | $307,500 | $0.00 | | |
| PORTRFD | PORT REFUND 640 | 0.0000000000 | $307,500 | $307,500 | $0.00 | | |
| PORTWWGEN | PORT OF WW 640 | 0.2460186015 | $307,500 | $307,500 | $75.65 | | |
| SD140BOND | SD #140 BOND 764 | 0.8342371393 | $307,500 | $307,500 | $256.53 | | |
| SD140GEN | SD #140 GENERAL 760 | 2.0646500647 | $307,500 | $307,500 | $634.88 | | |
| ST2 | STATE SCHOOL PART 2 600 | 0.8131451643 | $307,500 | $307,500 | $250.04 | | |
| STATESCHL | STATE SCHOOL 600 | 1.5158548041 | $307,500 | $307,500 | $466.13 | | |
| STREFUND | STATE REFUND LEVY 603 | 0.0000000000 | $307,500 | $307,500 | $0.00 | | |
| CWWBOND | C OF WW BOND 643 | 0.2760494372 | $307,500 | $307,500 | $84.89 | | |
| CWWGEN | CITY OF WW 631 | 1.6100204973 | $307,500 | $307,500 | $495.08 | | |
| CWWRFD | CITY OF WALLA WALLA REFUND 631 | 0.0000000000 | $307,500 | $307,500 | $0.00 | | |
| | Total Tax Rate: | 8.7973694689 | | | | | |
| | | | | Taxes w/Current Exemptions: | $2,705.20 | | |
| | | | | Taxes w/o Exemptions: | $2,705.20 | | |
Improvement / Building
| Improvement #1: | COMMERCIAL | State Code: | 52 | 5049.0 sqft | Value: | $177,000 |
| | Type | Description | Class CD | Sub Class CD | Year Built | Area |
| | MA | Main Area | D | * | 0 | 5049.0 |
| | HBAT | HALF BATH | D | * | 0 | 1.0 |
| | SI1 | SITE IMPROVEMENT | D | * | 0 | 2.0 |
Sketch
Property Image
Land
| 1 | COM 1 | Converted: Commercial | 0.9432 | 41087.00 | 0.00 | 0.00 | 1.00 | $130,500 | $0 |
Roll Value History
| 2025 | N/A | N/A | N/A | N/A | N/A |
| 2024 | $519,400 | $198,600 | $0 | $718,000 | $718,000 |
| 2023 | $177,000 | $130,500 | $0 | $307,500 | $307,500 |
| 2022 | $177,000 | $130,500 | $0 | $307,500 | $307,500 |
| 2021 | $177,000 | $105,300 | $0 | $282,300 | $282,300 |
| 2020 | $177,000 | $105,300 | $0 | $282,300 | $282,300 |
| 2019 | $177,000 | $105,300 | $0 | $282,300 | $282,300 |
| 2018 | $177,000 | $105,300 | $0 | $282,300 | $282,300 |
| 2017 | $177,000 | $105,300 | $0 | $282,300 | $282,300 |
| 2016 | $177,000 | $105,300 | $0 | $282,300 | $282,300 |
| 2015 | $146,800 | $135,500 | $0 | $282,300 | $282,300 |
| 2014 | $146,800 | $135,500 | $0 | $282,300 | $282,300 |
| 2013 | $146,800 | $135,500 | $0 | $282,300 | $282,300 |
| 2012 | $146,800 | $135,500 | $0 | $0 | $0 |
| 2011 | $146,800 | $135,500 | $0 | $0 | $0 |
| 2010 | $146,800 | $135,500 | $0 | $0 | $0 |
| 2009 | $176,800 | $40,700 | $0 | $0 | $0 |
| 2008 | $176,800 | $40,700 | $0 | $0 | $0 |
| 2007 | $176,800 | $40,700 | $0 | $0 | $0 |
| 2006 | $176,800 | $40,700 | $0 | $0 | $0 |
Deed and Sales History
| 1 | 02/15/2023 | SWD | STATUTORY WARRANTY DEED | GRUDZINSKI RANDALL C | ALDEN KIRK & KRISTINA C | | | $745,000.00 | 145399 | 2023-00768 |
| 2 | 01/17/2023 | SURVEY | SURVEY | | | 14 | 91 | | 0 | 2023-00235 |
| 3 | 07/24/1992 | WARRANTY D | WARRANTY DEED | | | | | $0.00 | 0 | 9206-459 |
Payout Agreement
| No payout information available.. |