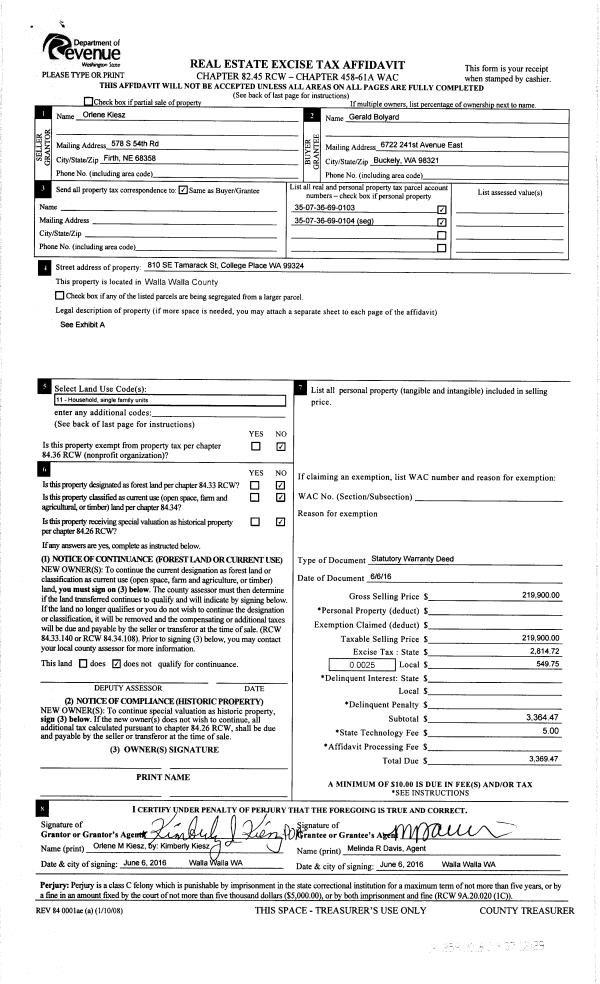
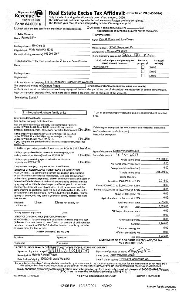
Property
Account |
| Property ID: | 6089 | Abbreviated Legal Description: | 19-7-36 TAX 78 PLUS 1/2 VAC IRENE ST |
| Parcel Number: | 360719310027 | Agent Code: | |
| Type: | Real | | |
| Tax Area: | 5 - OL-140 | Land Use Code | 64 |
| Open Space: | N | DFL | N |
| Historic Property: | N | Remodel Property: | N |
| Multi-Family Redevelopment: | N | | |
| Township: | 7 | Section: | 19 |
| Range: | 36 |
Location |
| Address: | 1220 W PINE ST WA 99362 | Mapsco: | |
| Neighborhood: | | Map ID: | |
| Neighborhood CD: | 3343 |
Owner |
| Name: | DAHLQUIST PETER H TESTAMENTARY TRUST | Owner ID: | 61989 |
| Mailing Address: | 1741 STURM AVE WALLA WALLA, WA 99362 | % Ownership: | 100.0000000000% |
| | | Exemptions: | |
Taxes and Assessment Details
Values
| (+) Improvement Homesite Value: | + | $0 | |
| (+) Improvement Non-Homesite Value: | + | $161,700 | |
| (+) Land Homesite Value: | + | $0 | |
| (+) Land Non-Homesite Value: | + | $72,400 | |
| (+) Curr Use (HS): | + | $0 | $0 |
| (+) Curr Use (NHS): | + | $0 | $0 |
| | | -------------------------- | |
| (=) Market Value: | = | $234,100 | |
| (–) Productivity Loss: | – | $0 | |
| | | -------------------------- | |
| (=) Subtotal: | = | $234,100 | |
| (+) Senior Appraised Value: | + | $0 | |
| (+) Non-Senior Appraised Value: | + | $234,100 | |
| | | -------------------------- | |
| (=) Total Appraised Value: | = | $234,100 | |
| (–) Senior Exemption Loss: | – | $0 | |
| (–) Exemption Loss: | – | $0 | |
| | | -------------------------- | |
| (=) Taxable Value: | = | $234,100 | |
Taxing Jurisdiction
| Owner: | DAHLQUIST PETER H TESTAMENTARY TRUST | | |
| % Ownership: | 100.0000000000% | | |
| Total Value: | $234,100 | | |
| Tax Area: | 5 - OL-140 |
| CERFD | CURRENT EXPENSE REFUND 010 | 0.0000000000 | $234,100 | $234,100 | $0.00 | | |
| CURREXP | CURRENT EXPENSE 010 | 1.0175366760 | $234,100 | $234,100 | $238.21 | | |
| HUMNSERV | HUMAN SERVICES 119 | 0.0250000000 | $234,100 | $234,100 | $5.85 | | |
| SLDREL | SOLDIERS RELIEF 121 | 0.0155990005 | $234,100 | $234,100 | $3.65 | | |
| EMERGSER | EMS 147 | 0.3792580840 | $234,100 | $234,100 | $88.78 | | |
| EMSRFD | EMS REFUND 147 | 0.0000000000 | $234,100 | $234,100 | $0.00 | | |
| PORTRFD | PORT REFUND 640 | 0.0000000000 | $234,100 | $234,100 | $0.00 | | |
| PORTWWGEN | PORT OF WW 640 | 0.2460186015 | $234,100 | $234,100 | $57.59 | | |
| SD140BOND | SD #140 BOND 764 | 0.8342371393 | $234,100 | $234,100 | $195.29 | | |
| SD140GEN | SD #140 GENERAL 760 | 2.0646500647 | $234,100 | $234,100 | $483.33 | | |
| ST2 | STATE SCHOOL PART 2 600 | 0.8131451643 | $234,100 | $234,100 | $190.36 | | |
| STATESCHL | STATE SCHOOL 600 | 1.5158548041 | $234,100 | $234,100 | $354.86 | | |
| STREFUND | STATE REFUND LEVY 603 | 0.0000000000 | $234,100 | $234,100 | $0.00 | | |
| CWWBOND | C OF WW BOND 643 | 0.2760494372 | $234,100 | $234,100 | $64.62 | | |
| CWWGEN | CITY OF WW 631 | 1.6100204973 | $234,100 | $234,100 | $376.91 | | |
| CWWRFD | CITY OF WALLA WALLA REFUND 631 | 0.0000000000 | $234,100 | $234,100 | $0.00 | | |
| | Total Tax Rate: | 8.7973694689 | | | | | |
| | | | | Taxes w/Current Exemptions: | $2,059.45 | | |
| | | | | Taxes w/o Exemptions: | $2,059.45 | | |
Improvement / Building
| Improvement #1: | COMMERCIAL | State Code: | 64 | 6332.0 sqft | Value: | $161,700 |
Sketch
Property Image
Land
| 1 | COM 1 | Converted: Commercial | 0.3000 | 13068.00 | 0.00 | 0.00 | 1.00 | $72,400 | $0 |
Roll Value History
| 2025 | N/A | N/A | N/A | N/A | N/A |
| 2024 | $161,700 | $72,400 | $0 | $234,100 | $234,100 |
| 2023 | $161,700 | $72,400 | $0 | $234,100 | $234,100 |
| 2022 | $161,700 | $72,400 | $0 | $234,100 | $234,100 |
| 2021 | $161,700 | $63,200 | $0 | $224,900 | $224,900 |
| 2020 | $161,700 | $63,200 | $0 | $224,900 | $224,900 |
| 2019 | $161,700 | $63,200 | $0 | $224,900 | $224,900 |
| 2018 | $161,700 | $63,200 | $0 | $224,900 | $224,900 |
| 2017 | $161,700 | $63,200 | $0 | $224,900 | $224,900 |
| 2016 | $161,700 | $63,200 | $0 | $224,900 | $224,900 |
| 2015 | $161,700 | $64,300 | $0 | $226,000 | $226,000 |
| 2014 | $161,700 | $64,300 | $0 | $226,000 | $226,000 |
| 2013 | $161,700 | $64,300 | $0 | $226,000 | $226,000 |
| 2012 | $161,700 | $64,300 | $0 | $0 | $0 |
| 2011 | $161,700 | $64,300 | $0 | $0 | $0 |
| 2010 | $161,700 | $64,300 | $0 | $0 | $0 |
| 2009 | $157,800 | $25,700 | $0 | $0 | $0 |
| 2008 | $157,800 | $25,700 | $0 | $0 | $0 |
| 2007 | $157,800 | $25,700 | $0 | $0 | $0 |
| 2006 | $157,800 | $25,700 | $0 | $0 | $0 |
Deed and Sales History
| 1 | 10/26/2017 | DEED | DEED | DAHLQUIST PETER H & KAREN | DAHLQUIST PETER H TESTAMENTARY TRUST | | | $0.00 | 133525 | 2017-08725 |
| 2 | 09/02/1994 | WARRANTY D | WARRANTY DEED | | | | | $235,000.00 | 82495 | 2239-410335 |
|   | |
Payout Agreement
| No payout information available.. |