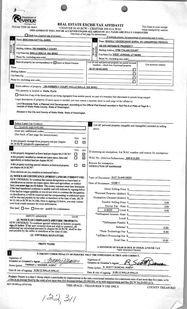
Property
Account |
| Property ID: | 6051 | Abbreviated Legal Description: | FREEWAY PARK ADDITION LOT 12 BLK 2 |
| Parcel Number: | 360716660212 | Agent Code: | |
| Type: | Real | | |
| Tax Area: | 5 - OL-140 | Land Use Code | 11 |
| Open Space: | N | DFL | N |
| Historic Property: | N | Remodel Property: | N |
| Multi-Family Redevelopment: | N | | |
| Township: | 7 | Section: | 16 |
| Range: | 36 |
Location |
| Address: | 1958 K ST WA 99362 | Mapsco: | |
| Neighborhood: | G-SFR | Map ID: | |
| Neighborhood CD: | 514011 |
Owner |
| Name: | BUSSELL ARTHUR W | Owner ID: | 6306 |
| Mailing Address: | 1958 K ST WALLA WALLA, WA 99362 | % Ownership: | 100.0000000000% |
| | | Exemptions: | |
Taxes and Assessment Details
Values
| (+) Improvement Homesite Value: | + | $0 | |
| (+) Improvement Non-Homesite Value: | + | $245,920 | |
| (+) Land Homesite Value: | + | $0 | |
| (+) Land Non-Homesite Value: | + | $50,240 | |
| (+) Curr Use (HS): | + | $0 | $0 |
| (+) Curr Use (NHS): | + | $0 | $0 |
| | | -------------------------- | |
| (=) Market Value: | = | $296,160 | |
| (–) Productivity Loss: | – | $0 | |
| | | -------------------------- | |
| (=) Subtotal: | = | $296,160 | |
| (+) Senior Appraised Value: | + | $0 | |
| (+) Non-Senior Appraised Value: | + | $296,160 | |
| | | -------------------------- | |
| (=) Total Appraised Value: | = | $296,160 | |
| (–) Senior Exemption Loss: | – | $0 | |
| (–) Exemption Loss: | – | $0 | |
| | | -------------------------- | |
| (=) Taxable Value: | = | $296,160 | |
Taxing Jurisdiction
| Owner: | BUSSELL ARTHUR W | | |
| % Ownership: | 100.0000000000% | | |
| Total Value: | $296,160 | | |
| Tax Area: | 5 - OL-140 |
| CERFD | CURRENT EXPENSE REFUND 010 | 0.0000000000 | $296,160 | $296,160 | $0.00 | | |
| CURREXP | CURRENT EXPENSE 010 | 1.0175366760 | $296,160 | $296,160 | $301.35 | | |
| HUMNSERV | HUMAN SERVICES 119 | 0.0250000000 | $296,160 | $296,160 | $7.40 | | |
| SLDREL | SOLDIERS RELIEF 121 | 0.0155990005 | $296,160 | $296,160 | $4.62 | | |
| EMERGSER | EMS 147 | 0.3792580840 | $296,160 | $296,160 | $112.32 | | |
| EMSRFD | EMS REFUND 147 | 0.0000000000 | $296,160 | $296,160 | $0.00 | | |
| PORTRFD | PORT REFUND 640 | 0.0000000000 | $296,160 | $296,160 | $0.00 | | |
| PORTWWGEN | PORT OF WW 640 | 0.2460186015 | $296,160 | $296,160 | $72.86 | | |
| SD140BOND | SD #140 BOND 764 | 0.8342371393 | $296,160 | $296,160 | $247.07 | | |
| SD140GEN | SD #140 GENERAL 760 | 2.0646500647 | $296,160 | $296,160 | $611.47 | | |
| ST2 | STATE SCHOOL PART 2 600 | 0.8131451643 | $296,160 | $296,160 | $240.82 | | |
| STATESCHL | STATE SCHOOL 600 | 1.5158548041 | $296,160 | $296,160 | $448.94 | | |
| STREFUND | STATE REFUND LEVY 603 | 0.0000000000 | $296,160 | $296,160 | $0.00 | | |
| CWWBOND | C OF WW BOND 643 | 0.2760494372 | $296,160 | $296,160 | $81.75 | | |
| CWWGEN | CITY OF WW 631 | 1.6100204973 | $296,160 | $296,160 | $476.82 | | |
| CWWRFD | CITY OF WALLA WALLA REFUND 631 | 0.0000000000 | $296,160 | $296,160 | $0.00 | | |
| | Total Tax Rate: | 8.7973694689 | | | | | |
| | | | | Taxes w/Current Exemptions: | $2,605.42 | | |
| | | | | Taxes w/o Exemptions: | $2,605.42 | | |
Improvement / Building
| Improvement #1: | RESIDENTIAL | State Code: | 11 | 1210.0 sqft | Value: | $245,920 |
| Exterior Wall: | PLYWOOD | Heating/Cooling: | HEAT PUMP | | Number of Bathrooms: | 2 | Number of Bedrooms: | 3 | | Plumbing: | 9 | Roof Covering: | COMP SHINGLE |
|
| | Type | Description | Class CD | Sub Class CD | Year Built | Area |
| | MA | Main Area | 1 | 30 | 2001 | 1210.0 |
| | RPC | OPEN PORCH W/ROOF , CEILED | 1 | 30 | 0 | 40.0 |
| | SI1 | SITE IMPROVEMENT | 1 | 30 | 0 | 1.5 |
| | ATG | Attached Garage | 1 | 30 | 2001 | 520.0 |
Sketch
Property Image
Land
| 1 | RES 1 | Converted: Residential | 0.1591 | 6930.00 | 0.00 | 0.00 | 1.00 | $50,240 | $0 |
Roll Value History
| 2025 | N/A | N/A | N/A | N/A | N/A |
| 2024 | $237,260 | $76,230 | $0 | $313,490 | $313,490 |
| 2023 | $245,920 | $50,240 | $0 | $296,160 | $296,160 |
| 2022 | $223,560 | $50,240 | $0 | $273,800 | $273,800 |
| 2021 | $186,300 | $50,240 | $0 | $236,540 | $236,540 |
| 2020 | $149,040 | $50,240 | $0 | $199,280 | $199,280 |
| 2019 | $149,040 | $50,240 | $0 | $199,280 | $199,280 |
| 2018 | $129,600 | $50,240 | $0 | $179,840 | $179,840 |
| 2017 | $132,370 | $31,200 | $0 | $163,570 | $163,570 |
| 2016 | $126,070 | $31,200 | $0 | $157,270 | $157,270 |
| 2015 | $126,070 | $31,200 | $0 | $157,270 | $157,270 |
| 2014 | $122,400 | $31,200 | $0 | $153,600 | $153,600 |
| 2013 | $122,400 | $31,200 | $0 | $153,600 | $153,600 |
| 2012 | $139,000 | $31,200 | $0 | $0 | $0 |
| 2011 | $139,000 | $31,200 | $0 | $0 | $0 |
| 2010 | $130,900 | $31,200 | $0 | $0 | $0 |
| 2009 | $148,900 | $31,200 | $0 | $0 | $0 |
| 2008 | $125,400 | $31,200 | $0 | $0 | $0 |
| 2007 | $125,400 | $31,200 | $0 | $0 | $0 |
| 2006 | $86,800 | $22,000 | $0 | $0 | $0 |
Deed and Sales History
| 1 | 05/11/2016 | QCD | QUIT CLAIM DEED | BUSSELL CATHERINE E | BUSSELL ARTHUR W | | | | 130198 | 2016-03537 |
| 2 | 05/11/2016 | SWD | STATUTORY WARRANTY DEED | ARBUCKLE MARVIN E | BUSSELL ARTHUR W | | | $189,000.00 | 130197 | 2016-03536 |
| 3 | 03/08/2011 | QCD | QUIT CLAIM DEED | ARBUCKLE, MARVIN E & CENA P | ARBUCKLE, MARVIN E | | | | 119854 | 2011-02103 |
| 4 | 10/10/2001 | WARRANTY D | WARRANTY DEED | | | | | $110,000.00 | 98160 | 3200-110943 |
Payout Agreement
| No payout information available.. |