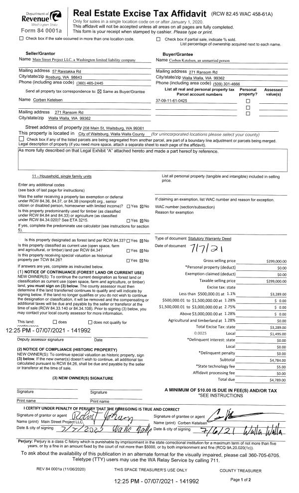
Property
Account |
| Property ID: | 6012 | Abbreviated Legal Description: | SCENIC VIEW W 43' OF LOT 16 BLK 6; PLUS E 24' OF LOT 17 BLK 6 |
| Parcel Number: | 350736580616 | Agent Code: | |
| Type: | Real | | |
| Tax Area: | 75 - CP 250 | Land Use Code | 11 |
| Open Space: | N | DFL | N |
| Historic Property: | N | Remodel Property: | N |
| Multi-Family Redevelopment: | N | | |
| Township: | 7 | Section: | 36 |
| Range: | 35 |
Location |
| Address: | 301 SE VALLEY DR WA 99324 | Mapsco: | |
| Neighborhood: | A SFR | Map ID: | |
| Neighborhood CD: | 113011 |
Owner |
| Name: | ROUSE KYLE C | Owner ID: | 67478 |
| Mailing Address: | 301 SE VALLEY DR COLLEGE PLACE, WA 99324 | % Ownership: | 100.0000000000% |
| | | Exemptions: | |
Taxes and Assessment Details
Values
| (+) Improvement Homesite Value: | + | $0 | |
| (+) Improvement Non-Homesite Value: | + | $278,070 | |
| (+) Land Homesite Value: | + | $0 | |
| (+) Land Non-Homesite Value: | + | $54,270 | |
| (+) Curr Use (HS): | + | $0 | $0 |
| (+) Curr Use (NHS): | + | $0 | $0 |
| | | -------------------------- | |
| (=) Market Value: | = | $332,340 | |
| (–) Productivity Loss: | – | $0 | |
| | | -------------------------- | |
| (=) Subtotal: | = | $332,340 | |
| (+) Senior Appraised Value: | + | $0 | |
| (+) Non-Senior Appraised Value: | + | $332,340 | |
| | | -------------------------- | |
| (=) Total Appraised Value: | = | $332,340 | |
| (–) Senior Exemption Loss: | – | $0 | |
| (–) Exemption Loss: | – | $0 | |
| | | -------------------------- | |
| (=) Taxable Value: | = | $332,340 | |
Taxing Jurisdiction
| Owner: | ROUSE KYLE C | | |
| % Ownership: | 100.0000000000% | | |
| Total Value: | $332,340 | | |
| Tax Area: | 75 - CP 250 |
| CERFD | CURRENT EXPENSE REFUND 010 | 0.0000000000 | $332,340 | $332,340 | $0.00 | | |
| CURREXP | CURRENT EXPENSE 010 | 1.0175366760 | $332,340 | $332,340 | $338.17 | | |
| HUMNSERV | HUMAN SERVICES 119 | 0.0250000000 | $332,340 | $332,340 | $8.31 | | |
| SLDREL | SOLDIERS RELIEF 121 | 0.0155990005 | $332,340 | $332,340 | $5.18 | | |
| COLLPLBOND | C OF CP BOND 644 | 0.4374241808 | $332,340 | $332,340 | $145.37 | | |
| COLLPLGEN | CITY OF CP 632 | 1.4453819216 | $332,340 | $332,340 | $480.36 | | |
| EMERGSER | EMS 147 | 0.3792580840 | $332,340 | $332,340 | $126.04 | | |
| EMSRFD | EMS REFUND 147 | 0.0000000000 | $332,340 | $332,340 | $0.00 | | |
| RURALLIB | RURAL LIBRARY 623 | 0.3710609029 | $332,340 | $332,340 | $123.32 | | |
| PORTRFD | PORT REFUND 640 | 0.0000000000 | $332,340 | $332,340 | $0.00 | | |
| PORTWWGEN | PORT OF WW 640 | 0.2460186015 | $332,340 | $332,340 | $81.76 | | |
| SD250BOND | SD #250 BOND 773 | 1.4560608159 | $332,340 | $332,340 | $483.91 | | |
| SD250GEN | SD #250 GENERAL 770 | 2.3880724087 | $332,340 | $332,340 | $793.65 | | |
| ST2 | STATE SCHOOL PART 2 600 | 0.8131451643 | $332,340 | $332,340 | $270.24 | | |
| STATESCHL | STATE SCHOOL 600 | 1.5158548041 | $332,340 | $332,340 | $503.78 | | |
| STREFUND | STATE REFUND LEVY 603 | 0.0000000000 | $332,340 | $332,340 | $0.00 | | |
| | Total Tax Rate: | 10.1104125603 | | | | | |
| | | | | Taxes w/Current Exemptions: | $3,360.09 | | |
| | | | | Taxes w/o Exemptions: | $3,360.09 | | |
Improvement / Building
| Improvement #1: | RESIDENTIAL | State Code: | 11 | 1263.0 sqft | Value: | $278,070 |
| Exterior Wall: | SIDING | Heating/Cooling: | WARM & COOLED AIR | | Number of Bathrooms: | 2 | Number of Bedrooms: | 3 | | Plumbing: | 9 | Roof Covering: | BUILT-UP ROCK |
|
| | Type | Description | Class CD | Sub Class CD | Year Built | Area |
| | MA | Main Area | 1 | 30 | 1950 | 1263.0 |
| | SI1 | SITE IMPROVEMENT | 1 | 30 | 1950 | 1.0 |
| | BASE | BASEMENT | 1 | 30 | 1950 | 963.0 |
| | OPS | OPEN PORCH W/STEPS | 1 | | 1950 | 123.0 |
| | BRF | BASEMENT - REC FINISH | 1 | 30 | 1950 | 963.0 |
| | BIG | Built In Garage | 1 | 30 | 1950 | 300.0 |
| | D2F | Double 2 Story Fireplace | 1 | 30 | 1950 | 1.0 |
| | RPC | OPEN PORCH W/ROOF , CEILED | 1 | 30 | 1950 | 132.0 |
| | OPS | OPEN PORCH W/STEPS | 1 | 30 | 1950 | 123.0 |
Sketch
Property Image
Land
| 1 | RES 1 | Converted: Residential | 0.1846 | 8040.00 | 0.00 | 0.00 | 1.00 | $54,270 | $0 |
Roll Value History
| 2025 | N/A | N/A | N/A | N/A | N/A |
| 2024 | $278,070 | $54,270 | $0 | $332,340 | $332,340 |
| 2023 | $278,070 | $54,270 | $0 | $332,340 | $332,340 |
| 2022 | $252,790 | $54,270 | $0 | $307,060 | $307,060 |
| 2021 | $219,810 | $54,270 | $0 | $274,080 | $274,080 |
| 2020 | $157,010 | $54,270 | $0 | $211,280 | $211,280 |
| 2019 | $141,900 | $45,500 | $0 | $187,400 | $187,400 |
| 2018 | $123,400 | $45,500 | $0 | $168,900 | $168,900 |
| 2017 | $117,520 | $45,500 | $0 | $163,020 | $163,020 |
| 2016 | $102,190 | $45,500 | $0 | $147,690 | $147,690 |
| 2015 | $92,900 | $45,500 | $0 | $138,400 | $138,400 |
| 2014 | $92,900 | $45,500 | $0 | $138,400 | $138,400 |
| 2013 | $92,900 | $45,500 | $0 | $138,400 | $138,400 |
| 2012 | $92,900 | $45,500 | $0 | $0 | $0 |
| 2011 | $92,900 | $45,500 | $0 | $0 | $0 |
| 2010 | $86,300 | $45,500 | $0 | $0 | $0 |
| 2009 | $100,900 | $45,500 | $0 | $0 | $0 |
| 2008 | $106,700 | $23,000 | $0 | $0 | $0 |
| 2007 | $106,700 | $23,000 | $0 | $0 | $0 |
| 2006 | $106,700 | $23,000 | $0 | $0 | $0 |
Deed and Sales History
| 1 | 06/24/2020 | DPR | DEED OF PERSONAL REPRESENTATIVE | FREEL LEONA GRACE ESTATE OF | ROUSE KYLE C | | | $265,000.00 | 139347 | 2020-05803 |
| 2 | 08/01/1990 | WARRANTY D | WARRANTY DEED | | | | | $74,900.00 | 0 | 1849-005253 |
Payout Agreement
| No payout information available.. |