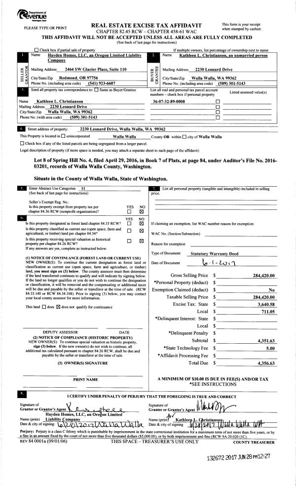
Property
Account |
| Property ID: | 5971 | Abbreviated Legal Description: | 6-7-38 NE1/4; N1/2SE1/4 |
| Parcel Number: | 380706110001 | Agent Code: | |
| Type: | Real | | |
| Tax Area: | 310 - 101-8 | Land Use Code | 83 |
| Open Space: | Y | DFL | N |
| Historic Property: | N | Remodel Property: | N |
| Multi-Family Redevelopment: | N | | |
| Township: | 7 | Section: | 6 |
| Range: | 38 |
Location |
| Address: | WA 99329 | Mapsco: | |
| Neighborhood: | 0 Farm | Map ID: | |
| Neighborhood CD: | 5250 |
Owner |
| Name: | KK 4 FARMS LLC | Owner ID: | 65012 |
| Mailing Address: | 3023 E HAZELWOOD ST PHOENIX, AZ 85016-5071 | % Ownership: | 100.0000000000% |
| | | Exemptions: | |
Taxes and Assessment Details
Values
| (+) Improvement Homesite Value: | + | $0 | |
| (+) Improvement Non-Homesite Value: | + | $0 | |
| (+) Land Homesite Value: | + | $0 | |
| (+) Land Non-Homesite Value: | + | $0 | |
| (+) Curr Use (HS): | + | $0 | $0 |
| (+) Curr Use (NHS): | + | $461,700 | $157,500 |
| | | -------------------------- | |
| (=) Market Value: | = | $461,700 | |
| (–) Productivity Loss: | – | $304,210 | |
| | | -------------------------- | |
| (=) Subtotal: | = | $157,490 | |
| (+) Senior Appraised Value: | + | $0 | |
| (+) Non-Senior Appraised Value: | + | $157,500 | |
| | | -------------------------- | |
| (=) Total Appraised Value: | = | $157,500 | |
| (–) Senior Exemption Loss: | – | $0 | |
| (–) Exemption Loss: | – | $0 | |
| | | -------------------------- | |
| (=) Taxable Value: | = | $157,500 | |
Taxing Jurisdiction
| Owner: | KK 4 FARMS LLC | | |
| % Ownership: | 100.0000000000% | | |
| Total Value: | $461,700 | | |
| Tax Area: | 310 - 101-8 |
| CERFD | CURRENT EXPENSE REFUND 010 | 0.0000000000 | $157,500 | $157,500 | $0.00 | | |
| CURREXP | CURRENT EXPENSE 010 | 1.0175366760 | $157,500 | $157,500 | $160.26 | | |
| HUMNSERV | HUMAN SERVICES 119 | 0.0250000000 | $157,500 | $157,500 | $3.94 | | |
| SLDREL | SOLDIERS RELIEF 121 | 0.0155990005 | $157,500 | $157,500 | $2.46 | | |
| EMERGSER | EMS 147 | 0.3792580840 | $157,500 | $157,500 | $59.73 | | |
| EMSRFD | EMS REFUND 147 | 0.0000000000 | $157,500 | $157,500 | $0.00 | | |
| FD8EXP | FD #8 EXPENSE 697 | 0.6647992540 | $157,500 | $157,500 | $104.71 | | |
| RLBRFD | RURAL LIBRARY REFUND 623 | 0.0000000000 | $157,500 | $157,500 | $0.00 | | |
| RURALLIB | RURAL LIBRARY 623 | 0.3710609029 | $157,500 | $157,500 | $58.44 | | |
| PORTRFD | PORT REFUND 640 | 0.0000000000 | $157,500 | $157,500 | $0.00 | | |
| PORTWWGEN | PORT OF WW 640 | 0.2460186015 | $157,500 | $157,500 | $38.75 | | |
| SD101CAP | SD #101 CAP 752 | 0.5894423472 | $157,500 | $157,500 | $92.84 | | |
| SD101GEN | SD #101 GENERAL 750 | 0.7455117868 | $157,500 | $157,500 | $117.42 | | |
| ST2 | STATE SCHOOL PART 2 600 | 0.8131451643 | $157,500 | $157,500 | $128.07 | | |
| STATESCHL | STATE SCHOOL 600 | 1.5158548041 | $157,500 | $157,500 | $238.75 | | |
| STREFUND | STATE REFUND LEVY 603 | 0.0000000000 | $157,500 | $157,500 | $0.00 | | |
| COROAD | COUNTY ROAD 115 | 1.6549953990 | $157,500 | $157,500 | $260.66 | | |
| CRPRD | COUNTY ROAD REFUND 115 | 0.0000000000 | $157,500 | $157,500 | $0.00 | | |
| | Total Tax Rate: | 8.0382220203 | | | | | |
| | | | | Taxes w/Current Exemptions: | $1,266.03 | | |
| | | | | Taxes w/o Exemptions: | $1,266.03 | | |
Improvement / Building
Sketch
| No sketches available for this property. |
Property Image
Land
| 1 | WASTE | Waste | 14.5900 | 0.00 | 0.00 | 0.00 | 1.00 | $0 | $0 |
| 2 | 1-MTN | Mountain | 68.3000 | 0.00 | 0.00 | 0.00 | 1.00 | $34,150 | $1,640 |
| 3 | 80-C2AN | Class 2 80 BU Annual | 155.7000 | 0.00 | 0.00 | 0.00 | 1.00 | $427,550 | $155,860 |
Roll Value History
| 2025 | N/A | N/A | N/A | N/A | N/A |
| 2024 | $0 | $493,400 | $152,220 | $152,220 | $152,220 |
| 2023 | $0 | $461,700 | $157,500 | $157,500 | $157,500 |
| 2022 | $0 | $441,150 | $150,820 | $150,820 | $150,820 |
| 2021 | $0 | $418,730 | $149,880 | $149,880 | $149,880 |
| 2020 | $0 | $396,780 | $153,850 | $153,850 | $153,850 |
| 2019 | $0 | $385,570 | $156,650 | $156,650 | $156,650 |
| 2018 | $0 | $384,480 | $178,290 | $178,290 | $178,290 |
| 2017 | $0 | $381,670 | $181,160 | $181,160 | $181,160 |
| 2016 | $0 | $381,670 | $181,400 | $181,400 | $181,400 |
| 2015 | $0 | $381,670 | $161,120 | $161,120 | $161,120 |
| 2014 | $0 | $381,670 | $162,270 | $162,270 | $162,270 |
| 2013 | $0 | $364,900 | $131,200 | $131,200 | $131,200 |
| 2012 | $0 | $84,500 | $0 | $0 | $0 |
| 2011 | $0 | $79,900 | $0 | $0 | $0 |
| 2010 | $0 | $71,800 | $0 | $0 | $0 |
| 2009 | $0 | $74,000 | $0 | $0 | $0 |
| 2008 | $0 | $107,600 | $0 | $0 | $0 |
| 2007 | $0 | $107,600 | $0 | $0 | $0 |
| 2006 | $0 | $107,600 | $0 | $0 | $0 |
Deed and Sales History
| 1 | 04/25/2019 | QCD | QUIT CLAIM DEED | KILBURG KRISTINE L 50% | KK 4 FARMS LLC | | | $0.00 | 136767 | 2019-02681 |
| 2 | 04/25/2019 | DPR | DEED OF PERSONAL REPRESENTATIVE | KELLER FREDERICK W ESTATE & KK4 FARMS LLC | KILBURG KRISTINE L 50% | 6 PARCELS | | $0.00 | 136761 | 2019-02677 |
| 3 | 04/08/2019 | DPR | DEED OF PERSONAL REPRESENTATIVE | KELLER FREDERICK W ESTATE & KK4 FARMS LLC | KILBURG KRISTINE L 50% | 6 PARCELS | | $0.00 | 136662 | 2019-02324 |
| 4 | 09/23/2016 | QCD | QUIT CLAIM DEED | KELLER MIRIAM L | KK4 FARMS INC | | | $0.00 | 131160 | 2016-08052 |
| 5 | 09/23/2016 | DPR | DEED OF PERSONAL REPRESENTATIVE | KELLER FREDERICK W | KELLER FREDERICK W ESTATE | | | $0.00 | 131159 | 2016-08051 |
| 6 | 01/11/2001 | WARRANTY D | WARRANTY DEED | | | | | $260,000.00 | 96455 | 3060-100308 |
|   | |
Payout Agreement
| No payout information available.. |