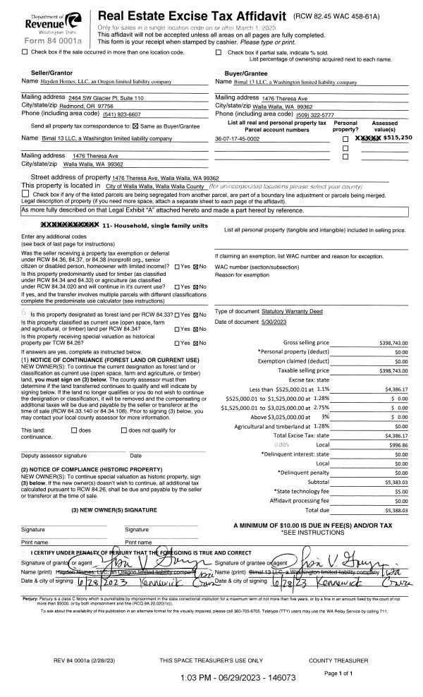
Property
Account |
| Property ID: | 5884 | Abbreviated Legal Description: | 36 07 21 TAX 66S |
| Parcel Number: | 360721440019 | Agent Code: | |
| Type: | Real | | |
| Tax Area: | 6 - OL-140-F-FB | Land Use Code | 12 |
| Open Space: | N | DFL | N |
| Historic Property: | N | Remodel Property: | N |
| Multi-Family Redevelopment: | N | | |
| Township: | 7 | Section: | 21 |
| Range: | 36 |
Location |
| Address: | 1565 OLIVE ST WA 99362 | Mapsco: | |
| Neighborhood: | A-Duplex | Map ID: | |
| Neighborhood CD: | 513031 |
Owner |
| Name: | TALBOT DANIEL O | Owner ID: | 62991 |
| Mailing Address: | RIKA HASHIMOTO 1929 MILLPOINTE DR SE MILLCREEK, WA 98012 | % Ownership: | 100.0000000000% |
| | | Exemptions: | |
Taxes and Assessment Details
Values
| (+) Improvement Homesite Value: | + | $0 | |
| (+) Improvement Non-Homesite Value: | + | $397,540 | |
| (+) Land Homesite Value: | + | $0 | |
| (+) Land Non-Homesite Value: | + | $64,540 | |
| (+) Curr Use (HS): | + | $0 | $0 |
| (+) Curr Use (NHS): | + | $0 | $0 |
| | | -------------------------- | |
| (=) Market Value: | = | $462,080 | |
| (–) Productivity Loss: | – | $0 | |
| | | -------------------------- | |
| (=) Subtotal: | = | $462,080 | |
| (+) Senior Appraised Value: | + | $0 | |
| (+) Non-Senior Appraised Value: | + | $462,080 | |
| | | -------------------------- | |
| (=) Total Appraised Value: | = | $462,080 | |
| (–) Senior Exemption Loss: | – | $0 | |
| (–) Exemption Loss: | – | $0 | |
| | | -------------------------- | |
| (=) Taxable Value: | = | $462,080 | |
Taxing Jurisdiction
| Owner: | TALBOT DANIEL O | | |
| % Ownership: | 100.0000000000% | | |
| Total Value: | $462,080 | | |
| Tax Area: | 6 - OL-140-F-FB |
| CERFD | CURRENT EXPENSE REFUND 010 | 0.0000000000 | $462,080 | $462,080 | $0.00 | | |
| CURREXP | CURRENT EXPENSE 010 | 1.0175366760 | $462,080 | $462,080 | $470.18 | | |
| HUMNSERV | HUMAN SERVICES 119 | 0.0250000000 | $462,080 | $462,080 | $11.55 | | |
| SLDREL | SOLDIERS RELIEF 121 | 0.0155990005 | $462,080 | $462,080 | $7.21 | | |
| EMERGSER | EMS 147 | 0.3792580840 | $462,080 | $462,080 | $175.25 | | |
| EMSRFD | EMS REFUND 147 | 0.0000000000 | $462,080 | $462,080 | $0.00 | | |
| PORTRFD | PORT REFUND 640 | 0.0000000000 | $462,080 | $462,080 | $0.00 | | |
| PORTWWGEN | PORT OF WW 640 | 0.2460186015 | $462,080 | $462,080 | $113.68 | | |
| SD140BOND | SD #140 BOND 764 | 0.8342371393 | $462,080 | $462,080 | $385.48 | | |
| SD140GEN | SD #140 GENERAL 760 | 2.0646500647 | $462,080 | $462,080 | $954.03 | | |
| ST2 | STATE SCHOOL PART 2 600 | 0.8131451643 | $462,080 | $462,080 | $375.74 | | |
| STATESCHL | STATE SCHOOL 600 | 1.5158548041 | $462,080 | $462,080 | $700.45 | | |
| STREFUND | STATE REFUND LEVY 603 | 0.0000000000 | $462,080 | $462,080 | $0.00 | | |
| CWWBOND | C OF WW BOND 643 | 0.2760494372 | $462,080 | $462,080 | $127.56 | | |
| CWWGEN | CITY OF WW 631 | 1.6100204973 | $462,080 | $462,080 | $743.96 | | |
| CWWRFD | CITY OF WALLA WALLA REFUND 631 | 0.0000000000 | $462,080 | $462,080 | $0.00 | | |
| | Total Tax Rate: | 8.7973694689 | | | | | |
| | | | | Taxes w/Current Exemptions: | $4,065.09 | | |
| | | | | Taxes w/o Exemptions: | $4,065.09 | | |
Improvement / Building
| Improvement #1: | RESIDENTIAL | State Code: | 12 | 2790.0 sqft | Value: | $397,540 |
| Exterior Wall: | SIDING | Heating/Cooling: | HEAT PUMP | | Number of Bathrooms: | 3 | Number of Bedrooms: | 5 | | Plumbing: | 8 | Roof Covering: | BUILT-UP ROCK |
|
| | Type | Description | Class CD | Sub Class CD | Year Built | Area |
| | MA | Main Area | 1 | 30 | 1958 | 2790.0 |
| | SI1 | SITE IMPROVEMENT | 4 | 30 | 1958 | 1.5 |
| | S1F | Single One Story Fireplace | 4 | 30 | 1958 | 1.0 |
| | CPC | COVERED CARPORT/PATIO | 4 | 30 | 1958 | 247.0 |
| | CPC | COVERED CARPORT/PATIO | 4 | 30 | 1958 | 717.0 |
Sketch
Property Image
Land
| 1 | RES 1 | Converted: Residential | 0.3200 | 13939.00 | 0.00 | 0.00 | 1.00 | $64,540 | $0 |
Roll Value History
| 2025 | N/A | N/A | N/A | N/A | N/A |
| 2024 | $385,500 | $78,600 | $0 | $464,100 | $464,100 |
| 2023 | $397,540 | $64,540 | $0 | $462,080 | $462,080 |
| 2022 | $397,540 | $64,540 | $0 | $462,080 | $462,080 |
| 2021 | $240,940 | $64,540 | $0 | $305,480 | $305,480 |
| 2020 | $200,780 | $64,540 | $0 | $265,320 | $265,320 |
| 2019 | $200,780 | $64,540 | $0 | $265,320 | $265,320 |
| 2018 | $154,520 | $64,540 | $0 | $219,060 | $219,060 |
| 2017 | $138,600 | $43,000 | $0 | $181,600 | $181,600 |
| 2016 | $138,600 | $43,000 | $0 | $181,600 | $181,600 |
| 2015 | $138,600 | $43,000 | $0 | $181,600 | $181,600 |
| 2014 | $126,000 | $43,000 | $0 | $169,000 | $169,000 |
| 2013 | $126,000 | $43,000 | $0 | $169,000 | $169,000 |
| 2012 | $126,000 | $43,000 | $0 | $0 | $0 |
| 2011 | $110,600 | $43,000 | $0 | $0 | $0 |
| 2010 | $110,600 | $43,000 | $0 | $0 | $0 |
| 2009 | $110,600 | $43,000 | $0 | $0 | $0 |
| 2008 | $110,600 | $43,000 | $0 | $0 | $0 |
| 2007 | $110,600 | $43,000 | $0 | $0 | $0 |
| 2006 | $118,400 | $21,200 | $0 | $0 | $0 |
Deed and Sales History
| 1 | 04/27/2018 | SWD | STATUTORY WARRANTY DEED | FOX THOMAS J | TALBOT DANIEL O | | | $275,000.00 | 134585 | 2018-03329 |
| 2 | 09/26/2003 | WARRANTY D | WARRANTY DEED | ORCHARD, HENDERSON II | FOX, THOMAS J & BILLIE J | | | $150,000.00 | 103092 | 2003-14791 |
| 3 | 08/26/2002 | WARRANTY D | WARRANTY DEED | ARCHER, JAMES & NANCY | ORCHARD, HENDERSON II | | | $107,203.00 | 100225 | 2002-09550 |
| 4 | 12/01/1964 | WARRANTY D | WARRANTY DEED | | | | | $13,062.00 | 0 | 5120-462672 |
Payout Agreement
| No payout information available.. |