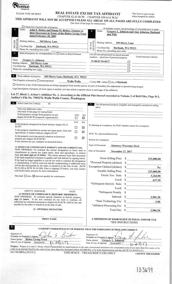
Property
Account |
| Property ID: | 5829 | Abbreviated Legal Description: | WILSONS LOT 4 & W 31' OF LOT 5 BLK 2 |
| Parcel Number: | 360716580204 | Agent Code: | |
| Type: | Real | | |
| Tax Area: | 5 - OL-140 | Land Use Code | 11 |
| Open Space: | N | DFL | N |
| Historic Property: | N | Remodel Property: | N |
| Multi-Family Redevelopment: | N | | |
| Township: | 7 | Section: | 16 |
| Range: | 36 |
Location |
| Address: | 1618 K ST WA 99362 | Mapsco: | |
| Neighborhood: | A-SFR | Map ID: | |
| Neighborhood CD: | 513011 |
Owner |
| Name: | COCKRAM JAIMIE E | Owner ID: | 60100 |
| Mailing Address: | ANTHONY R WILKINSON 1618 K ST WALLA WALLA, WA 99362 | % Ownership: | 100.0000000000% |
| | | Exemptions: | |
Taxes and Assessment Details
Values
| (+) Improvement Homesite Value: | + | $0 | |
| (+) Improvement Non-Homesite Value: | + | $243,200 | |
| (+) Land Homesite Value: | + | $0 | |
| (+) Land Non-Homesite Value: | + | $60,750 | |
| (+) Curr Use (HS): | + | $0 | $0 |
| (+) Curr Use (NHS): | + | $0 | $0 |
| | | -------------------------- | |
| (=) Market Value: | = | $303,950 | |
| (–) Productivity Loss: | – | $0 | |
| | | -------------------------- | |
| (=) Subtotal: | = | $303,950 | |
| (+) Senior Appraised Value: | + | $0 | |
| (+) Non-Senior Appraised Value: | + | $303,950 | |
| | | -------------------------- | |
| (=) Total Appraised Value: | = | $303,950 | |
| (–) Senior Exemption Loss: | – | $0 | |
| (–) Exemption Loss: | – | $0 | |
| | | -------------------------- | |
| (=) Taxable Value: | = | $303,950 | |
Taxing Jurisdiction
| Owner: | COCKRAM JAIMIE E | | |
| % Ownership: | 100.0000000000% | | |
| Total Value: | $303,950 | | |
| Tax Area: | 5 - OL-140 |
| CERFD | CURRENT EXPENSE REFUND 010 | 0.0000000000 | $303,950 | $303,950 | $0.00 | | |
| CURREXP | CURRENT EXPENSE 010 | 1.0175366760 | $303,950 | $303,950 | $309.28 | | |
| HUMNSERV | HUMAN SERVICES 119 | 0.0250000000 | $303,950 | $303,950 | $7.60 | | |
| SLDREL | SOLDIERS RELIEF 121 | 0.0155990005 | $303,950 | $303,950 | $4.74 | | |
| EMERGSER | EMS 147 | 0.3792580840 | $303,950 | $303,950 | $115.28 | | |
| EMSRFD | EMS REFUND 147 | 0.0000000000 | $303,950 | $303,950 | $0.00 | | |
| PORTRFD | PORT REFUND 640 | 0.0000000000 | $303,950 | $303,950 | $0.00 | | |
| PORTWWGEN | PORT OF WW 640 | 0.2460186015 | $303,950 | $303,950 | $74.78 | | |
| SD140BOND | SD #140 BOND 764 | 0.8342371393 | $303,950 | $303,950 | $253.57 | | |
| SD140GEN | SD #140 GENERAL 760 | 2.0646500647 | $303,950 | $303,950 | $627.55 | | |
| ST2 | STATE SCHOOL PART 2 600 | 0.8131451643 | $303,950 | $303,950 | $247.16 | | |
| STATESCHL | STATE SCHOOL 600 | 1.5158548041 | $303,950 | $303,950 | $460.74 | | |
| STREFUND | STATE REFUND LEVY 603 | 0.0000000000 | $303,950 | $303,950 | $0.00 | | |
| CWWBOND | C OF WW BOND 643 | 0.2760494372 | $303,950 | $303,950 | $83.91 | | |
| CWWGEN | CITY OF WW 631 | 1.6100204973 | $303,950 | $303,950 | $489.37 | | |
| CWWRFD | CITY OF WALLA WALLA REFUND 631 | 0.0000000000 | $303,950 | $303,950 | $0.00 | | |
| | Total Tax Rate: | 8.7973694689 | | | | | |
| | | | | Taxes w/Current Exemptions: | $2,673.98 | | |
| | | | | Taxes w/o Exemptions: | $2,673.98 | | |
Improvement / Building
| Improvement #1: | RESIDENTIAL | State Code: | 11 | 1212.0 sqft | Value: | $243,200 |
| Exterior Wall: | PLYWOOD | Heating/Cooling: | WARM & COOLED AIR | | Number of Bathrooms: | 2 | Number of Bedrooms: | 2 | | Plumbing: | 10 | Roof Covering: | COMP SHINGLE |
|
| | Type | Description | Class CD | Sub Class CD | Year Built | Area |
| | MA | Main Area | 1 | 30 | 1971 | 1212.0 |
| | CPC | COVERED CARPORT/PATIO | 1 | 30 | 0 | 144.0 |
| | CPC | COVERED CARPORT/PATIO | 1 | 30 | 0 | 216.0 |
| | SI1 | SITE IMPROVEMENT | 1 | 30 | 0 | 1.5 |
| | BASE | BASEMENT | 1 | 30 | 1971 | 624.0 |
| | BPF | BASEMENT -PARTITIONED FINISH | 1 | 30 | 1971 | 500.0 |
| | DTG | Detached Garage | 1 | 30 | 1971 | 624.0 |
| | RPS | PORCH W/STEPS,ROOF | 1 | 30 | 1971 | 23.0 |
Sketch
Property Image
Land
| 1 | RES 1 | Converted: Residential | 0.2231 | 9720.00 | 0.00 | 0.00 | 1.00 | $60,750 | $0 |
Roll Value History
| 2025 | N/A | N/A | N/A | N/A | N/A |
| 2024 | $214,390 | $97,200 | $0 | $311,590 | $311,590 |
| 2023 | $243,200 | $60,750 | $0 | $303,950 | $303,950 |
| 2022 | $243,200 | $60,750 | $0 | $303,950 | $303,950 |
| 2021 | $187,080 | $60,750 | $0 | $247,830 | $247,830 |
| 2020 | $138,580 | $60,750 | $0 | $199,330 | $199,330 |
| 2019 | $138,580 | $60,750 | $0 | $199,330 | $199,330 |
| 2018 | $120,500 | $60,750 | $0 | $181,250 | $181,250 |
| 2017 | $127,050 | $38,900 | $0 | $165,950 | $165,950 |
| 2016 | $115,500 | $38,900 | $0 | $154,400 | $154,400 |
| 2015 | $115,500 | $38,900 | $0 | $154,400 | $154,400 |
| 2014 | $110,000 | $38,900 | $0 | $148,900 | $148,900 |
| 2013 | $110,000 | $38,900 | $0 | $148,900 | $148,900 |
| 2012 | $119,100 | $38,900 | $0 | $0 | $0 |
| 2011 | $98,500 | $38,900 | $0 | $0 | $0 |
| 2010 | $92,000 | $38,900 | $0 | $0 | $0 |
| 2009 | $106,500 | $38,900 | $0 | $0 | $0 |
| 2008 | $99,600 | $38,900 | $0 | $0 | $0 |
| 2007 | $99,600 | $38,900 | $0 | $0 | $0 |
| 2006 | $76,100 | $19,400 | $0 | $0 | $0 |
Deed and Sales History
| 1 | 12/12/2016 | SWP | Special Warranty Deed | SECRETARY OF HOUSING & URBAN DEVELOPMENT | COCKRAM JAIMIE E | | | $0.00 | 131593 | 2016-10267 |
| 2 | 08/19/2016 | SWP | Special Warranty Deed | STEARNS LENDING LLC | SECRETARY OF HOUSING & URBAN DEVELOPMENT | | | $0.00 | 130877 | 2016-06765 |
| 3 | 05/03/2016 | TRUSTEES D | TRUSTEE'S DEED | DOBBS AMBER R | STEARNS LENDING LLC | | | $151,900.00 | 130146 | 2016-03303 |
| 4 | 04/22/2013 | WARRANTY D | WARRANTY DEED | LASKI, ROBERT L | DOBBS, AMBER R | | | $155,900.00 | 123815 | 2013-03922 |
| 5 | 08/24/1987 | WARRANTY D | WARRANTY DEED | | | | | $46,500.00 | 0 | 1668-706516 |
Payout Agreement
| No payout information available.. |