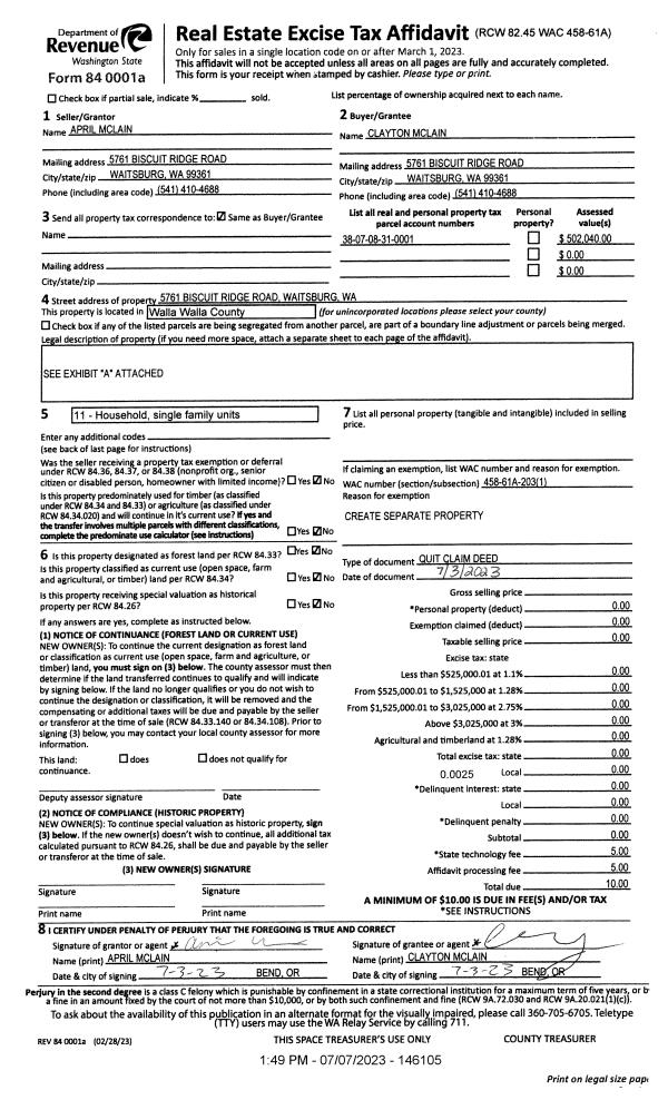
Property
Account |
| Property ID: | 5696 | Abbreviated Legal Description: | MELODY PARK LOT 16 BLK 3 |
| Parcel Number: | 360716530316 | Agent Code: | |
| Type: | Real | | |
| Tax Area: | 5 - OL-140 | Land Use Code | 11 |
| Open Space: | N | DFL | N |
| Historic Property: | N | Remodel Property: | N |
| Multi-Family Redevelopment: | N | | |
| Township: | 7 | Section: | 16 |
| Range: | 36 |
Location |
| Address: | 663 CARDINAL DR WA 99362 | Mapsco: | |
| Neighborhood: | A-Superior SFR | Map ID: | |
| Neighborhood CD: | 513211 |
Owner |
| Name: | WOLF KATHERINE R & CHRISTOPHER T | Owner ID: | 70963 |
| Mailing Address: | 663 CARDINAL DR WALLA WALLA, WA 99362 | % Ownership: | 100.0000000000% |
| | | Exemptions: | |
Taxes and Assessment Details
Values
| (+) Improvement Homesite Value: | + | $0 | |
| (+) Improvement Non-Homesite Value: | + | $283,970 | |
| (+) Land Homesite Value: | + | $0 | |
| (+) Land Non-Homesite Value: | + | $36,230 | |
| (+) Curr Use (HS): | + | $0 | $0 |
| (+) Curr Use (NHS): | + | $0 | $0 |
| | | -------------------------- | |
| (=) Market Value: | = | $320,200 | |
| (–) Productivity Loss: | – | $0 | |
| | | -------------------------- | |
| (=) Subtotal: | = | $320,200 | |
| (+) Senior Appraised Value: | + | $0 | |
| (+) Non-Senior Appraised Value: | + | $320,200 | |
| | | -------------------------- | |
| (=) Total Appraised Value: | = | $320,200 | |
| (–) Senior Exemption Loss: | – | $0 | |
| (–) Exemption Loss: | – | $0 | |
| | | -------------------------- | |
| (=) Taxable Value: | = | $320,200 | |
Taxing Jurisdiction
| Owner: | WOLF KATHERINE R & CHRISTOPHER T | | |
| % Ownership: | 100.0000000000% | | |
| Total Value: | $320,200 | | |
| Tax Area: | 5 - OL-140 |
| CERFD | CURRENT EXPENSE REFUND 010 | 0.0000000000 | $320,200 | $320,200 | $0.00 | | |
| CURREXP | CURRENT EXPENSE 010 | 1.0175366760 | $320,200 | $320,200 | $325.82 | | |
| HUMNSERV | HUMAN SERVICES 119 | 0.0250000000 | $320,200 | $320,200 | $8.01 | | |
| SLDREL | SOLDIERS RELIEF 121 | 0.0155990005 | $320,200 | $320,200 | $4.99 | | |
| EMERGSER | EMS 147 | 0.3792580840 | $320,200 | $320,200 | $121.44 | | |
| EMSRFD | EMS REFUND 147 | 0.0000000000 | $320,200 | $320,200 | $0.00 | | |
| PORTRFD | PORT REFUND 640 | 0.0000000000 | $320,200 | $320,200 | $0.00 | | |
| PORTWWGEN | PORT OF WW 640 | 0.2460186015 | $320,200 | $320,200 | $78.78 | | |
| SD140BOND | SD #140 BOND 764 | 0.8342371393 | $320,200 | $320,200 | $267.12 | | |
| SD140GEN | SD #140 GENERAL 760 | 2.0646500647 | $320,200 | $320,200 | $661.10 | | |
| ST2 | STATE SCHOOL PART 2 600 | 0.8131451643 | $320,200 | $320,200 | $260.37 | | |
| STATESCHL | STATE SCHOOL 600 | 1.5158548041 | $320,200 | $320,200 | $485.38 | | |
| STREFUND | STATE REFUND LEVY 603 | 0.0000000000 | $320,200 | $320,200 | $0.00 | | |
| CWWBOND | C OF WW BOND 643 | 0.2760494372 | $320,200 | $320,200 | $88.39 | | |
| CWWGEN | CITY OF WW 631 | 1.6100204973 | $320,200 | $320,200 | $515.53 | | |
| CWWRFD | CITY OF WALLA WALLA REFUND 631 | 0.0000000000 | $320,200 | $320,200 | $0.00 | | |
| | Total Tax Rate: | 8.7973694689 | | | | | |
| | | | | Taxes w/Current Exemptions: | $2,816.93 | | |
| | | | | Taxes w/o Exemptions: | $2,816.93 | | |
Improvement / Building
| Improvement #1: | RESIDENTIAL | State Code: | 11 | 1000.0 sqft | Value: | $283,970 |
| Exterior Wall: | SIDING | Heating/Cooling: | WARM & COOLED AIR | | Number of Bathrooms: | 2 | Number of Bedrooms: | 2 | | Plumbing: | 9 | Roof Covering: | COMP SHINGLE |
|
| | Type | Description | Class CD | Sub Class CD | Year Built | Area |
| | MA | Main Area | 1 | 30 | 1969 | 1000.0 |
| | CPC | COVERED CARPORT/PATIO | 1 | 30 | 0 | 480.0 |
| | SI1 | SITE IMPROVEMENT | 1 | 30 | 0 | 1.5 |
| | SMP | SWIMMING POOL | 1 | 30 | 0 | 1.0 |
| | BASE | BASEMENT | 1 | 30 | 1969 | 1000.0 |
| | BPF | BASEMENT -PARTITIONED FINISH | 1 | 30 | 1969 | 1000.0 |
| | RPO | OPEN PORCH W/ROOF | 1 | 30 | 1969 | 110.0 |
| | UTST | Utility Storage Shed | 1 | 30 | 1969 | 196.0 |
Sketch
Property Image
Land
| 1 | RES 1 | Converted: Residential | 0.1331 | 5796.00 | 0.00 | 0.00 | 1.00 | $36,230 | $0 |
Roll Value History
| 2025 | N/A | N/A | N/A | N/A | N/A |
| 2024 | $275,430 | $57,960 | $0 | $333,390 | $333,390 |
| 2023 | $283,970 | $36,230 | $0 | $320,200 | $320,200 |
| 2022 | $283,970 | $36,230 | $0 | $320,200 | $320,200 |
| 2021 | $195,840 | $36,230 | $0 | $232,070 | $232,070 |
| 2020 | $163,200 | $36,230 | $0 | $199,430 | $199,430 |
| 2019 | $163,200 | $36,230 | $0 | $199,430 | $199,430 |
| 2018 | $136,000 | $36,230 | $0 | $172,230 | $172,230 |
| 2017 | $125,200 | $23,200 | $0 | $148,400 | $148,400 |
| 2016 | $100,160 | $23,200 | $0 | $123,360 | $123,360 |
| 2015 | $100,160 | $23,200 | $0 | $123,360 | $123,360 |
| 2014 | $107,700 | $23,200 | $0 | $130,900 | $130,900 |
| 2013 | $107,700 | $23,200 | $0 | $130,900 | $130,900 |
| 2012 | $102,600 | $23,200 | $0 | $0 | $0 |
| 2011 | $102,600 | $23,200 | $0 | $0 | $0 |
| 2010 | $95,600 | $23,200 | $0 | $0 | $0 |
| 2009 | $108,800 | $23,200 | $0 | $0 | $0 |
| 2008 | $108,800 | $23,200 | $0 | $0 | $0 |
| 2007 | $108,800 | $23,200 | $0 | $0 | $0 |
| 2006 | $93,800 | $11,600 | $0 | $0 | $0 |
Deed and Sales History
| 1 | 01/11/2022 | SWD | STATUTORY WARRANTY DEED | ESLINGER DANIEL E & AUDREY E | WOLF KATHERINE R & CHRISTOPHER T | | | $337,500.00 | 143227 | 2022-00343 |
| 2 | 02/27/2006 | WARRANTY D | WARRANTY DEED | SECRETARY OF HOUSING & URBAN D | ESLINGER, DANIEL E & AUDREY E | | | $127,500.00 | 109724 | 2006-02225 |
| 3 | 11/18/2005 | WARRANTY D | WARRANTY DEED | COUNTRYWIDE HOME LOANS INC | SECRETARY OF HOUSING & URBAN D | | | | 109073 | 2005-14598 |
| 4 | 10/12/2005 | WARRANTY D | WARRANTY DEED | COLE, DARREN M | COUNTRYWIDE HOME LOANS INC | | | $142,661.00 | 108745 | 2005-12739 |
| 5 | 03/05/1999 | WARRANTY D | WARRANTY DEED | | | | | $112,000.00 | 92301 | 2819-902853 |
Payout Agreement
| No payout information available.. |