Property
Account |
| Property ID: | 5679 | Abbreviated Legal Description: | MELODY PARK LOT 17 BLK 2 |
| Parcel Number: | 360716530217 | Agent Code: | |
| Type: | Real | | |
| Tax Area: | 5 - OL-140 | Land Use Code | 11 |
| Open Space: | N | DFL | N |
| Historic Property: | N | Remodel Property: | N |
| Multi-Family Redevelopment: | N | | |
| Township: | 7 | Section: | 16 |
| Range: | 36 |
Location |
| Address: | 2050 LARK DR WA 99362 | Mapsco: | |
| Neighborhood: | A-Superior SFR | Map ID: | |
| Neighborhood CD: | 513211 |
Owner |
| Name: | COLEMAN RANDY C & SUSAN M | Owner ID: | 7228 |
| Mailing Address: | 916 BONNIE BRAE WALLA WALLA, WA 99362 | % Ownership: | 100.0000000000% |
| | | Exemptions: | |
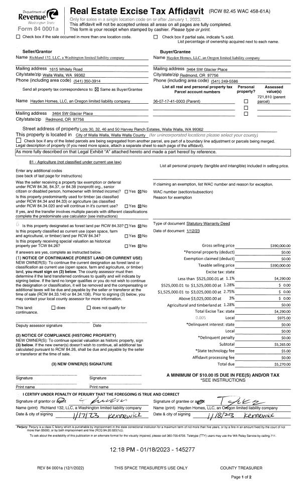
Taxes and Assessment Details
Values
| (+) Improvement Homesite Value: | + | $0 | |
| (+) Improvement Non-Homesite Value: | + | $273,290 | |
| (+) Land Homesite Value: | + | $0 | |
| (+) Land Non-Homesite Value: | + | $43,310 | |
| (+) Curr Use (HS): | + | $0 | $0 |
| (+) Curr Use (NHS): | + | $0 | $0 |
| | | -------------------------- | |
| (=) Market Value: | = | $316,600 | |
| (–) Productivity Loss: | – | $0 | |
| | | -------------------------- | |
| (=) Subtotal: | = | $316,600 | |
| (+) Senior Appraised Value: | + | $0 | |
| (+) Non-Senior Appraised Value: | + | $316,600 | |
| | | -------------------------- | |
| (=) Total Appraised Value: | = | $316,600 | |
| (–) Senior Exemption Loss: | – | $0 | |
| (–) Exemption Loss: | – | $0 | |
| | | -------------------------- | |
| (=) Taxable Value: | = | $316,600 | |
Taxing Jurisdiction
| Owner: | COLEMAN RANDY C & SUSAN M | | |
| % Ownership: | 100.0000000000% | | |
| Total Value: | $316,600 | | |
| Tax Area: | 5 - OL-140 |
| CERFD | CURRENT EXPENSE REFUND 010 | 0.0000000000 | $316,600 | $316,600 | $0.00 | | |
| CURREXP | CURRENT EXPENSE 010 | 1.0175366760 | $316,600 | $316,600 | $322.15 | | |
| HUMNSERV | HUMAN SERVICES 119 | 0.0250000000 | $316,600 | $316,600 | $7.92 | | |
| SLDREL | SOLDIERS RELIEF 121 | 0.0155990005 | $316,600 | $316,600 | $4.94 | | |
| EMERGSER | EMS 147 | 0.3792580840 | $316,600 | $316,600 | $120.07 | | |
| EMSRFD | EMS REFUND 147 | 0.0000000000 | $316,600 | $316,600 | $0.00 | | |
| PORTRFD | PORT REFUND 640 | 0.0000000000 | $316,600 | $316,600 | $0.00 | | |
| PORTWWGEN | PORT OF WW 640 | 0.2460186015 | $316,600 | $316,600 | $77.89 | | |
| SD140BOND | SD #140 BOND 764 | 0.8342371393 | $316,600 | $316,600 | $264.12 | | |
| SD140GEN | SD #140 GENERAL 760 | 2.0646500647 | $316,600 | $316,600 | $653.67 | | |
| ST2 | STATE SCHOOL PART 2 600 | 0.8131451643 | $316,600 | $316,600 | $257.44 | | |
| STATESCHL | STATE SCHOOL 600 | 1.5158548041 | $316,600 | $316,600 | $479.92 | | |
| STREFUND | STATE REFUND LEVY 603 | 0.0000000000 | $316,600 | $316,600 | $0.00 | | |
| CWWBOND | C OF WW BOND 643 | 0.2760494372 | $316,600 | $316,600 | $87.40 | | |
| CWWGEN | CITY OF WW 631 | 1.6100204973 | $316,600 | $316,600 | $509.73 | | |
| CWWRFD | CITY OF WALLA WALLA REFUND 631 | 0.0000000000 | $316,600 | $316,600 | $0.00 | | |
| | Total Tax Rate: | 8.7973694689 | | | | | |
| | | | | Taxes w/Current Exemptions: | $2,785.25 | | |
| | | | | Taxes w/o Exemptions: | $2,785.25 | | |
Improvement / Building
| Improvement #1: | RESIDENTIAL | State Code: | 11 | 960.0 sqft | Value: | $273,290 |
| Exterior Wall: | SIDING | Heating/Cooling: | REV-HEAT-PUMP-W/DUCT | | Number of Bathrooms: | 2 | Number of Bedrooms: | 3 | | Plumbing: | 9 | Roof Covering: | COMP SHINGLE |
|
| | Type | Description | Class CD | Sub Class CD | Year Built | Area |
| | MA | Main Area | 1 | 30 | 1959 | 960.0 |
| | SI1 | SITE IMPROVEMENT | 1 | 30 | 1959 | 1.5 |
| | BASE | BASEMENT | 1 | 30 | 1959 | 960.0 |
| | BPF | BASEMENT -PARTITIONED FINISH | 1 | 30 | 1959 | 480.0 |
| | CPC | COVERED CARPORT/PATIO | 1 | 30 | 1959 | 200.0 |
| | OPS | OPEN PORCH W/STEPS | 1 | 30 | 1959 | 30.0 |
| | S1F | Single One Story Fireplace | 1 | 30 | 1959 | 1.0 |
Sketch
Property Image
Land
| 1 | RES 1 | Converted: Residential | 0.1591 | 6930.00 | 0.00 | 0.00 | 1.00 | $43,310 | $0 |
Roll Value History
| 2025 | N/A | N/A | N/A | N/A | N/A |
| 2024 | $261,760 | $69,300 | $0 | $331,060 | $331,060 |
| 2023 | $273,290 | $43,310 | $0 | $316,600 | $316,600 |
| 2022 | $237,640 | $43,310 | $0 | $280,950 | $280,950 |
| 2021 | $203,110 | $43,310 | $0 | $246,420 | $246,420 |
| 2020 | $145,080 | $43,310 | $0 | $188,390 | $188,390 |
| 2019 | $145,080 | $43,310 | $0 | $188,390 | $188,390 |
| 2018 | $120,900 | $43,310 | $0 | $164,210 | $164,210 |
| 2017 | $119,190 | $27,700 | $0 | $146,890 | $146,890 |
| 2016 | $99,320 | $27,700 | $0 | $127,020 | $127,020 |
| 2015 | $99,320 | $27,700 | $0 | $127,020 | $127,020 |
| 2014 | $106,800 | $27,700 | $0 | $134,500 | $134,500 |
| 2013 | $106,800 | $27,700 | $0 | $134,500 | $134,500 |
| 2012 | $119,000 | $27,700 | $0 | $0 | $0 |
| 2011 | $112,000 | $27,700 | $0 | $0 | $0 |
| 2010 | $105,300 | $27,700 | $0 | $0 | $0 |
| 2009 | $120,100 | $27,700 | $0 | $0 | $0 |
| 2008 | $106,700 | $27,700 | $0 | $0 | $0 |
| 2007 | $106,700 | $27,700 | $0 | $0 | $0 |
| 2006 | $79,900 | $13,900 | $0 | $0 | $0 |
Deed and Sales History
| 1 | 01/15/2014 | SWD | STATUTORY WARRANTY DEED | ZHANG JENNY | COLEMAN RANDY C & SUSAN M | | | $125,000.00 | 125270 | 2014-00331 |
| 2 | 12/29/2003 | WARRANTY D | WARRANTY DEED | LEONETTI, MICHAEL D | ZHANG, JENNY | | | $120,000.00 | 103800 | 2003-19483 |
| 3 | 06/17/1996 | WARRANTY D | WARRANTY DEED | | | | | $102,000.00 | 86311 | 2429-606044 |
Payout Agreement
| No payout information available.. |