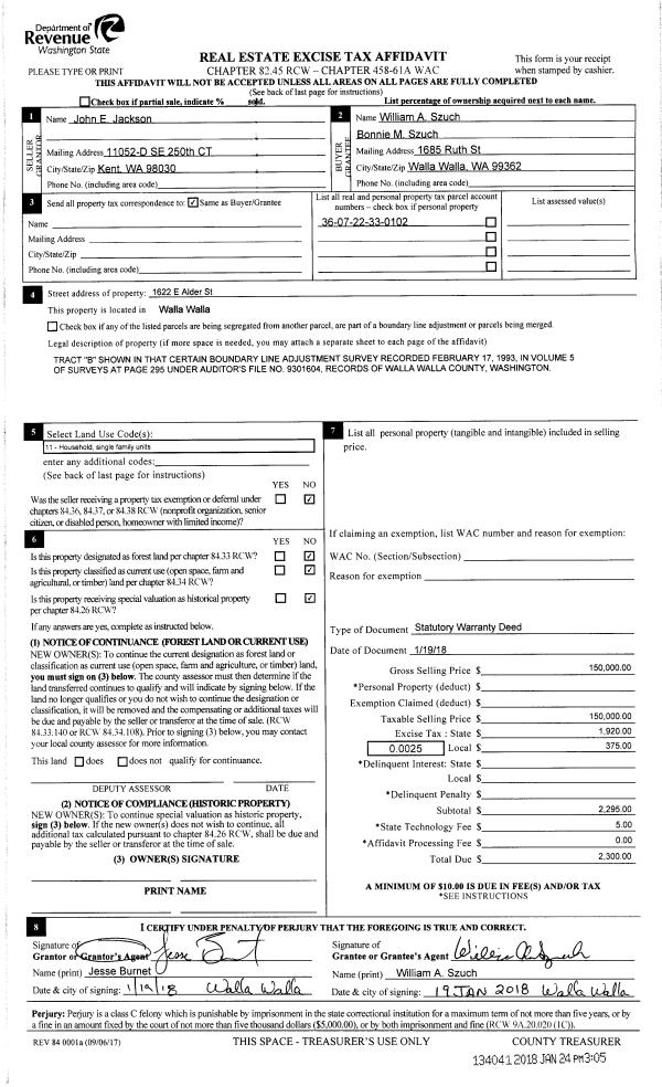
Property
Account |
| Property ID: | 5639 | Abbreviated Legal Description: | FRANKLAND W1/2 OF LOTS 8 & 9 BLK 11 |
| Parcel Number: | 360716501119 | Agent Code: | |
| Type: | Real | | |
| Tax Area: | 5 - OL-140 | Land Use Code | 11 |
| Open Space: | N | DFL | N |
| Historic Property: | N | Remodel Property: | N |
| Multi-Family Redevelopment: | N | | |
| Township: | 7 | Section: | 16 |
| Range: | 36 |
Location |
| Address: | 1805 MELROSE ST WA 99362 | Mapsco: | |
| Neighborhood: | A-SFR | Map ID: | |
| Neighborhood CD: | 513011 |
Owner |
| Name: | SNEDIGAR DUSTIN | Owner ID: | 63582 |
| Mailing Address: | 1805 MELROSE ST WALLA WALLA, WA 99362 | % Ownership: | 100.0000000000% |
| | | Exemptions: | |
Taxes and Assessment Details
Values
| (+) Improvement Homesite Value: | + | $0 | |
| (+) Improvement Non-Homesite Value: | + | $166,460 | |
| (+) Land Homesite Value: | + | $0 | |
| (+) Land Non-Homesite Value: | + | $40,000 | |
| (+) Curr Use (HS): | + | $0 | $0 |
| (+) Curr Use (NHS): | + | $0 | $0 |
| | | -------------------------- | |
| (=) Market Value: | = | $206,460 | |
| (–) Productivity Loss: | – | $0 | |
| | | -------------------------- | |
| (=) Subtotal: | = | $206,460 | |
| (+) Senior Appraised Value: | + | $0 | |
| (+) Non-Senior Appraised Value: | + | $206,460 | |
| | | -------------------------- | |
| (=) Total Appraised Value: | = | $206,460 | |
| (–) Senior Exemption Loss: | – | $0 | |
| (–) Exemption Loss: | – | $0 | |
| | | -------------------------- | |
| (=) Taxable Value: | = | $206,460 | |
Taxing Jurisdiction
| Owner: | SNEDIGAR DUSTIN | | |
| % Ownership: | 100.0000000000% | | |
| Total Value: | $206,460 | | |
| Tax Area: | 5 - OL-140 |
| CERFD | CURRENT EXPENSE REFUND 010 | 0.0000000000 | $206,460 | $206,460 | $0.00 | | |
| CURREXP | CURRENT EXPENSE 010 | 1.0175366760 | $206,460 | $206,460 | $210.08 | | |
| HUMNSERV | HUMAN SERVICES 119 | 0.0250000000 | $206,460 | $206,460 | $5.16 | | |
| SLDREL | SOLDIERS RELIEF 121 | 0.0155990005 | $206,460 | $206,460 | $3.22 | | |
| EMERGSER | EMS 147 | 0.3792580840 | $206,460 | $206,460 | $78.30 | | |
| EMSRFD | EMS REFUND 147 | 0.0000000000 | $206,460 | $206,460 | $0.00 | | |
| PORTRFD | PORT REFUND 640 | 0.0000000000 | $206,460 | $206,460 | $0.00 | | |
| PORTWWGEN | PORT OF WW 640 | 0.2460186015 | $206,460 | $206,460 | $50.79 | | |
| SD140BOND | SD #140 BOND 764 | 0.8342371393 | $206,460 | $206,460 | $172.24 | | |
| SD140GEN | SD #140 GENERAL 760 | 2.0646500647 | $206,460 | $206,460 | $426.27 | | |
| ST2 | STATE SCHOOL PART 2 600 | 0.8131451643 | $206,460 | $206,460 | $167.88 | | |
| STATESCHL | STATE SCHOOL 600 | 1.5158548041 | $206,460 | $206,460 | $312.96 | | |
| STREFUND | STATE REFUND LEVY 603 | 0.0000000000 | $206,460 | $206,460 | $0.00 | | |
| CWWBOND | C OF WW BOND 643 | 0.2760494372 | $206,460 | $206,460 | $56.99 | | |
| CWWGEN | CITY OF WW 631 | 1.6100204973 | $206,460 | $206,460 | $332.40 | | |
| CWWRFD | CITY OF WALLA WALLA REFUND 631 | 0.0000000000 | $206,460 | $206,460 | $0.00 | | |
| | Total Tax Rate: | 8.7973694689 | | | | | |
| | | | | Taxes w/Current Exemptions: | $1,816.29 | | |
| | | | | Taxes w/o Exemptions: | $1,816.29 | | |
Improvement / Building
| Improvement #1: | RESIDENTIAL | State Code: | 11 | 824.0 sqft | Value: | $166,460 |
| Exterior Wall: | PLYWOOD | Heating/Cooling: | BASEBOARD ELECTRIC | | Number of Bathrooms: | 1 | Number of Bedrooms: | 2 | | Plumbing: | 6 | Roof Covering: | COMP SHINGLE |
|
| | Type | Description | Class CD | Sub Class CD | Year Built | Area |
| | MA | Main Area | 1 | 20 | 1975 | 824.0 |
| | SI1 | SITE IMPROVEMENT | 1 | 20 | 0 | 1.0 |
| | BASE | BASEMENT | 1 | 20 | 1975 | 824.0 |
| | BPF | BASEMENT -PARTITIONED FINISH | 1 | 20 | 1975 | 824.0 |
| | RPS | PORCH W/STEPS,ROOF | 1 | 20 | 1975 | 25.0 |
Sketch
Property Image
Land
| 1 | RES 1 | Converted: Residential | 0.1469 | 6400.00 | 0.00 | 0.00 | 1.00 | $40,000 | $0 |
Roll Value History
| 2025 | N/A | N/A | N/A | N/A | N/A |
| 2024 | $146,420 | $64,000 | $0 | $210,420 | $210,420 |
| 2023 | $166,460 | $40,000 | $0 | $206,460 | $206,460 |
| 2022 | $166,460 | $40,000 | $0 | $206,460 | $206,460 |
| 2021 | $144,750 | $40,000 | $0 | $184,750 | $184,750 |
| 2020 | $115,800 | $40,000 | $0 | $155,800 | $155,800 |
| 2019 | $115,800 | $40,000 | $0 | $155,800 | $155,800 |
| 2018 | $115,800 | $40,000 | $0 | $155,800 | $155,800 |
| 2017 | $130,560 | $25,600 | $0 | $156,160 | $156,160 |
| 2016 | $118,690 | $25,600 | $0 | $144,290 | $144,290 |
| 2015 | $98,910 | $25,600 | $0 | $124,510 | $124,510 |
| 2014 | $94,200 | $25,600 | $0 | $119,800 | $119,800 |
| 2013 | $94,200 | $25,600 | $0 | $119,800 | $119,800 |
| 2012 | $98,900 | $25,600 | $0 | $0 | $0 |
| 2011 | $98,900 | $25,600 | $0 | $0 | $0 |
| 2010 | $98,900 | $25,600 | $0 | $0 | $0 |
| 2009 | $112,700 | $25,600 | $0 | $0 | $0 |
| 2008 | $80,800 | $25,600 | $0 | $0 | $0 |
| 2007 | $80,800 | $25,600 | $0 | $0 | $0 |
| 2006 | $56,100 | $12,800 | $0 | $0 | $0 |
Deed and Sales History
| 1 | 07/17/2018 | SWD | STATUTORY WARRANTY DEED | BEAMAN DAVID E | SNEDIGAR DUSTIN | | | $156,500.00 | 135134 | 2018-05783 |
| 2 | 03/14/1995 | WARRANTY D | WARRANTY DEED | | | | | $69,250.00 | 83668 | 2289-502344 |
Payout Agreement
| No payout information available.. |