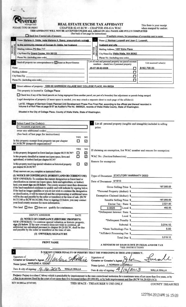
Property
Account |
| Property ID: | 5579 | Abbreviated Legal Description: | 16-7-36 TAX 55 |
| Parcel Number: | 360716340016 | Agent Code: | |
| Type: | Real | | |
| Tax Area: | 5 - OL-140 | Land Use Code | 11 |
| Open Space: | N | DFL | N |
| Historic Property: | N | Remodel Property: | N |
| Multi-Family Redevelopment: | N | | |
| Township: | 7 | Section: | 16 |
| Range: | 36 |
Location |
| Address: | 1533 TRUMAN ST WA 99362 | Mapsco: | |
| Neighborhood: | A-SFR | Map ID: | |
| Neighborhood CD: | 513011 |
Owner |
| Name: | JARVIS JOHN D | Owner ID: | 59386 |
| Mailing Address: | 1533 TRUMAN ST WALLA WALLA, WA 99362 | % Ownership: | 100.0000000000% |
| | | Exemptions: | |
Taxes and Assessment Details
Values
| (+) Improvement Homesite Value: | + | $0 | |
| (+) Improvement Non-Homesite Value: | + | $197,450 | |
| (+) Land Homesite Value: | + | $0 | |
| (+) Land Non-Homesite Value: | + | $43,560 | |
| (+) Curr Use (HS): | + | $0 | $0 |
| (+) Curr Use (NHS): | + | $0 | $0 |
| | | -------------------------- | |
| (=) Market Value: | = | $241,010 | |
| (–) Productivity Loss: | – | $0 | |
| | | -------------------------- | |
| (=) Subtotal: | = | $241,010 | |
| (+) Senior Appraised Value: | + | $0 | |
| (+) Non-Senior Appraised Value: | + | $241,010 | |
| | | -------------------------- | |
| (=) Total Appraised Value: | = | $241,010 | |
| (–) Senior Exemption Loss: | – | $0 | |
| (–) Exemption Loss: | – | $0 | |
| | | -------------------------- | |
| (=) Taxable Value: | = | $241,010 | |
Taxing Jurisdiction
| Owner: | JARVIS JOHN D | | |
| % Ownership: | 100.0000000000% | | |
| Total Value: | $241,010 | | |
| Tax Area: | 5 - OL-140 |
| CERFD | CURRENT EXPENSE REFUND 010 | 0.0000000000 | $241,010 | $241,010 | $0.00 | | |
| CURREXP | CURRENT EXPENSE 010 | 1.0175366760 | $241,010 | $241,010 | $245.24 | | |
| HUMNSERV | HUMAN SERVICES 119 | 0.0250000000 | $241,010 | $241,010 | $6.03 | | |
| SLDREL | SOLDIERS RELIEF 121 | 0.0155990005 | $241,010 | $241,010 | $3.76 | | |
| EMERGSER | EMS 147 | 0.3792580840 | $241,010 | $241,010 | $91.40 | | |
| EMSRFD | EMS REFUND 147 | 0.0000000000 | $241,010 | $241,010 | $0.00 | | |
| PORTRFD | PORT REFUND 640 | 0.0000000000 | $241,010 | $241,010 | $0.00 | | |
| PORTWWGEN | PORT OF WW 640 | 0.2460186015 | $241,010 | $241,010 | $59.29 | | |
| SD140BOND | SD #140 BOND 764 | 0.8342371393 | $241,010 | $241,010 | $201.06 | | |
| SD140GEN | SD #140 GENERAL 760 | 2.0646500647 | $241,010 | $241,010 | $497.60 | | |
| ST2 | STATE SCHOOL PART 2 600 | 0.8131451643 | $241,010 | $241,010 | $195.98 | | |
| STATESCHL | STATE SCHOOL 600 | 1.5158548041 | $241,010 | $241,010 | $365.34 | | |
| STREFUND | STATE REFUND LEVY 603 | 0.0000000000 | $241,010 | $241,010 | $0.00 | | |
| CWWBOND | C OF WW BOND 643 | 0.2760494372 | $241,010 | $241,010 | $66.53 | | |
| CWWGEN | CITY OF WW 631 | 1.6100204973 | $241,010 | $241,010 | $388.03 | | |
| CWWRFD | CITY OF WALLA WALLA REFUND 631 | 0.0000000000 | $241,010 | $241,010 | $0.00 | | |
| | Total Tax Rate: | 8.7973694689 | | | | | |
| | | | | Taxes w/Current Exemptions: | $2,120.26 | | |
| | | | | Taxes w/o Exemptions: | $2,120.26 | | |
Improvement / Building
| Improvement #1: | RESIDENTIAL | State Code: | 11 | 758.0 sqft | Value: | $197,450 |
| Exterior Wall: | VINYL | Heating/Cooling: | BASEBOARD ELECTRIC | | Number of Bathrooms: | 1 | Number of Bedrooms: | 2 | | Plumbing: | 6 | Roof Covering: | COMP SHINGLE |
|
| | Type | Description | Class CD | Sub Class CD | Year Built | Area |
| | MA | Main Area | 1 | 30 | 1947 | 758.0 |
| | SI1 | SITE IMPROVEMENT | 1 | 30 | 1947 | 1.0 |
| | UTST | Utility Storage Shed | 1 | 30 | 1947 | 294.0 |
| | UTST | Utility Storage Shed | 1 | 30 | 1947 | 80.0 |
| | UTST | Utility Storage Shed | 1 | 30 | 1947 | 168.0 |
| | CPC | COVERED CARPORT/PATIO | 1 | 30 | 1947 | 152.0 |
| | SPO | SCREENED PORCH | 1 | 30 | 1947 | 190.0 |
| | PRC | PORCH W STEPS, ROOF,CEILED | 1 | 30 | 1947 | 28.0 |
| | TOOL | TOOL SHED | 1 | 30 | 1947 | 288.0 |
Sketch
Property Image
Land
| 1 | RES 1 | Converted: Residential | 0.1600 | 6969.00 | 0.00 | 0.00 | 1.00 | $43,560 | $0 |
Roll Value History
| 2025 | N/A | N/A | N/A | N/A | N/A |
| 2024 | $183,040 | $69,690 | $0 | $252,730 | $252,730 |
| 2023 | $197,450 | $43,560 | $0 | $241,010 | $241,010 |
| 2022 | $164,540 | $43,560 | $0 | $208,100 | $208,100 |
| 2021 | $109,690 | $43,560 | $0 | $153,250 | $153,250 |
| 2020 | $91,410 | $43,560 | $0 | $134,970 | $134,970 |
| 2019 | $91,410 | $43,560 | $0 | $134,970 | $134,970 |
| 2018 | $83,100 | $43,560 | $0 | $126,660 | $126,660 |
| 2017 | $97,010 | $27,900 | $0 | $124,910 | $124,910 |
| 2016 | $92,390 | $27,900 | $0 | $120,290 | $120,290 |
| 2015 | $87,990 | $27,900 | $0 | $115,890 | $115,890 |
| 2014 | $83,800 | $27,900 | $0 | $111,700 | $111,700 |
| 2013 | $83,800 | $27,900 | $0 | $111,700 | $111,700 |
| 2012 | $89,100 | $27,900 | $0 | $0 | $0 |
| 2011 | $89,100 | $27,900 | $0 | $0 | $0 |
| 2010 | $83,500 | $27,900 | $0 | $0 | $0 |
| 2009 | $95,900 | $27,900 | $0 | $0 | $0 |
| 2008 | $60,500 | $27,900 | $0 | $0 | $0 |
| 2007 | $60,500 | $27,900 | $0 | $0 | $0 |
| 2006 | $44,500 | $13,900 | $0 | $0 | $0 |
Deed and Sales History
| 1 | 08/08/2016 | SWD | STATUTORY WARRANTY DEED | ROBERTS MAJOR JOHN ESTATE OF | JARVIS JOHN D | | | $126,000.00 | 130801 | 2016-06308 |
| 2 | 07/21/2011 | WARRANTY D | WARRANTY DEED | FLEMING, KELLY G & MARY P | ROBERTS, MAJOR JOHN | | | $115,000.00 | 120442 | 2011-05678 |
| 3 | 10/30/2000 | WARRANTY D | WARRANTY DEED | | | | | $55,000.00 | 96091 | 3040-010380 |
Payout Agreement
| No payout information available.. |