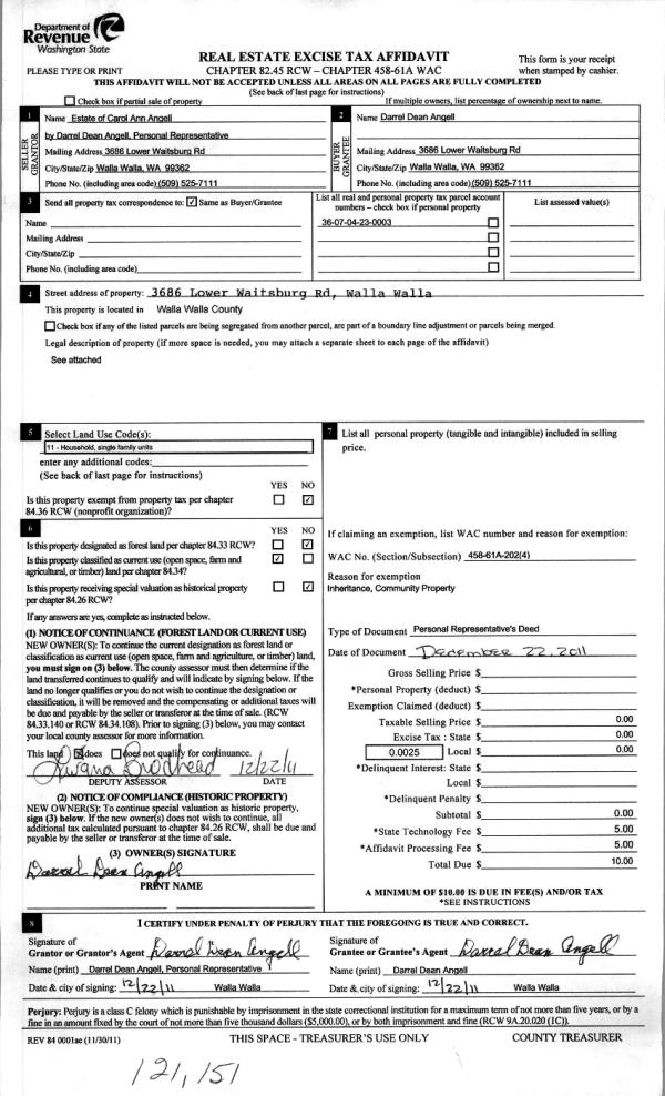
Property
Account |
| Property ID: | 5524 | Abbreviated Legal Description: | EDAIR VISTAS REPLAT LOT 19 BLK 3 |
| Parcel Number: | 360715510319 | Agent Code: | |
| Type: | Real | | |
| Tax Area: | 5 - OL-140 | Land Use Code | 11 |
| Open Space: | N | DFL | N |
| Historic Property: | N | Remodel Property: | N |
| Multi-Family Redevelopment: | N | | |
| Township: | 7 | Section: | 15 |
| Range: | 36 |
Location |
| Address: | 938 MOUNTAIN PARK DR WA 99362 | Mapsco: | |
| Neighborhood: | A-SFR | Map ID: | |
| Neighborhood CD: | 313011 |
Owner |
| Name: | HANSELL JOSHUA M & MICHELE | Owner ID: | 61682 |
| Mailing Address: | 938 MOUNTAIN PARK DR WALLA WALLA, WA 99362 | % Ownership: | 100.0000000000% |
| | | Exemptions: | |
Taxes and Assessment Details
Values
| (+) Improvement Homesite Value: | + | $0 | |
| (+) Improvement Non-Homesite Value: | + | $405,920 | |
| (+) Land Homesite Value: | + | $0 | |
| (+) Land Non-Homesite Value: | + | $90,000 | |
| (+) Curr Use (HS): | + | $0 | $0 |
| (+) Curr Use (NHS): | + | $0 | $0 |
| | | -------------------------- | |
| (=) Market Value: | = | $495,920 | |
| (–) Productivity Loss: | – | $0 | |
| | | -------------------------- | |
| (=) Subtotal: | = | $495,920 | |
| (+) Senior Appraised Value: | + | $0 | |
| (+) Non-Senior Appraised Value: | + | $495,920 | |
| | | -------------------------- | |
| (=) Total Appraised Value: | = | $495,920 | |
| (–) Senior Exemption Loss: | – | $0 | |
| (–) Exemption Loss: | – | $0 | |
| | | -------------------------- | |
| (=) Taxable Value: | = | $495,920 | |
Taxing Jurisdiction
| Owner: | HANSELL JOSHUA M & MICHELE | | |
| % Ownership: | 100.0000000000% | | |
| Total Value: | $495,920 | | |
| Tax Area: | 5 - OL-140 |
| CERFD | CURRENT EXPENSE REFUND 010 | 0.0000000000 | $495,920 | $495,920 | $0.00 | | |
| CURREXP | CURRENT EXPENSE 010 | 1.0175366760 | $495,920 | $495,920 | $504.62 | | |
| HUMNSERV | HUMAN SERVICES 119 | 0.0250000000 | $495,920 | $495,920 | $12.40 | | |
| SLDREL | SOLDIERS RELIEF 121 | 0.0155990005 | $495,920 | $495,920 | $7.74 | | |
| EMERGSER | EMS 147 | 0.3792580840 | $495,920 | $495,920 | $188.08 | | |
| EMSRFD | EMS REFUND 147 | 0.0000000000 | $495,920 | $495,920 | $0.00 | | |
| PORTRFD | PORT REFUND 640 | 0.0000000000 | $495,920 | $495,920 | $0.00 | | |
| PORTWWGEN | PORT OF WW 640 | 0.2460186015 | $495,920 | $495,920 | $122.01 | | |
| SD140BOND | SD #140 BOND 764 | 0.8342371393 | $495,920 | $495,920 | $413.71 | | |
| SD140GEN | SD #140 GENERAL 760 | 2.0646500647 | $495,920 | $495,920 | $1,023.90 | | |
| ST2 | STATE SCHOOL PART 2 600 | 0.8131451643 | $495,920 | $495,920 | $403.25 | | |
| STATESCHL | STATE SCHOOL 600 | 1.5158548041 | $495,920 | $495,920 | $751.74 | | |
| STREFUND | STATE REFUND LEVY 603 | 0.0000000000 | $495,920 | $495,920 | $0.00 | | |
| CWWBOND | C OF WW BOND 643 | 0.2760494372 | $495,920 | $495,920 | $136.90 | | |
| CWWGEN | CITY OF WW 631 | 1.6100204973 | $495,920 | $495,920 | $798.44 | | |
| CWWRFD | CITY OF WALLA WALLA REFUND 631 | 0.0000000000 | $495,920 | $495,920 | $0.00 | | |
| | Total Tax Rate: | 8.7973694689 | | | | | |
| | | | | Taxes w/Current Exemptions: | $4,362.79 | | |
| | | | | Taxes w/o Exemptions: | $4,362.79 | | |
Improvement / Building
| Improvement #1: | RESIDENTIAL | State Code: | 11 | 2096.0 sqft | Value: | $405,920 |
| Exterior Wall: | SIDING | Foundation: | SLAB FOUNDATION | | Heating/Cooling: | WARM & COOLED AIR | Number of Bathrooms: | 3 | | Number of Bedrooms: | 3 | Plumbing: | 12 | | Roof Covering: | COMP SHINGLE |   |   |
|
| | Type | Description | Class CD | Sub Class CD | Year Built | Area |
| | MA | Main Area | 3 | 35 | 1976 | 2096.0 |
| | UPFL | Upper Floor (included in main area) | 3 | 35 | 1976 | 672.0 |
| | SI1 | SITE IMPROVEMENT | 3 | 35 | 1976 | 2.5 |
| | BASE | BASEMENT | 3 | 35 | 1976 | 784.0 |
| | BPF | BASEMENT -PARTITIONED FINISH | 3 | 35 | 1976 | 784.0 |
| | S1F | Single One Story Fireplace | 3 | 35 | 1976 | 1.0 |
| | ATG | Attached Garage | 3 | 35 | 1976 | 528.0 |
| | PRC | PORCH W STEPS, ROOF,CEILED | 3 | 35 | 1976 | 40.0 |
| | CPC | COVERED CARPORT/PATIO | 3 | 35 | 1976 | 220.0 |
| | TOOL | TOOL SHED | 3 | 35 | 1976 | 200.0 |
Sketch
Property Image
Land
| 1 | RES 1 | Converted: Residential | 0.3304 | 14391.00 | 0.00 | 0.00 | 1.00 | $90,000 | $0 |
Roll Value History
| 2025 | N/A | N/A | N/A | N/A | N/A |
| 2024 | $405,920 | $90,000 | $0 | $495,920 | $495,920 |
| 2023 | $405,920 | $90,000 | $0 | $495,920 | $495,920 |
| 2022 | $369,020 | $90,000 | $0 | $459,020 | $459,020 |
| 2021 | $311,520 | $55,000 | $0 | $366,520 | $366,520 |
| 2020 | $311,520 | $55,000 | $0 | $366,520 | $366,520 |
| 2019 | $311,520 | $55,000 | $0 | $366,520 | $366,520 |
| 2018 | $270,890 | $55,000 | $0 | $325,890 | $325,890 |
| 2017 | $216,710 | $55,000 | $0 | $271,710 | $271,710 |
| 2016 | $216,710 | $55,000 | $0 | $271,710 | $271,710 |
| 2015 | $199,760 | $55,000 | $0 | $254,760 | $254,760 |
| 2014 | $173,700 | $55,000 | $0 | $228,700 | $228,700 |
| 2013 | $173,700 | $55,000 | $0 | $228,700 | $228,700 |
| 2012 | $185,700 | $55,000 | $0 | $0 | $0 |
| 2011 | $185,700 | $55,000 | $0 | $0 | $0 |
| 2010 | $176,400 | $40,000 | $0 | $0 | $0 |
| 2009 | $213,100 | $40,000 | $0 | $0 | $0 |
| 2008 | $180,100 | $40,000 | $0 | $0 | $0 |
| 2007 | $180,100 | $40,000 | $0 | $0 | $0 |
| 2006 | $158,100 | $25,000 | $0 | $0 | $0 |
Deed and Sales History
| 1 | 09/08/2017 | SWD | STATUTORY WARRANTY DEED | BRAUN MICHAEL J & LINDSAY N | HANSELL JOSHUA M & MICHELE | | | $375,000.00 | 133182 | 2017-07076 |
| 2 | 12/03/2013 | WARRANTY D | WARRANTY DEED | GRIFFITH LESLIE R & BONNIE | BRAUN MICHAEL J & LINDSAY N | | | $272,000.00 | 125047 | 2013-11678 |
| 3 | 09/28/1992 | WARRANTY D | WARRANTY DEED | | | | | $170,000.00 | 77667 | 2009-208630 |
Payout Agreement
| No payout information available.. |