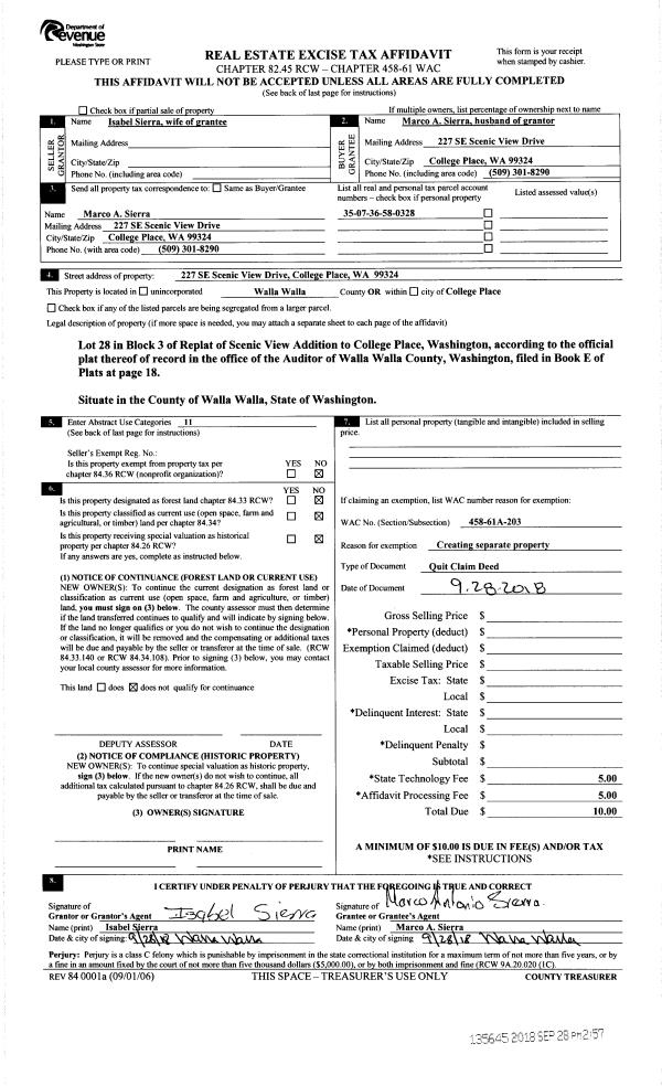
Property
Account |
| Property ID: | 5370 | Abbreviated Legal Description: | 3-7-36 E1/2SE1/4 LESS RD; E1/2W1/2SE1/4 |
| Parcel Number: | 360703410003 | Agent Code: | |
| Type: | Real | | |
| Tax Area: | 100 - 140-8 | Land Use Code | 83 |
| Open Space: | Y | DFL | N |
| Historic Property: | N | Remodel Property: | N |
| Multi-Family Redevelopment: | N | | |
| Township: | 7 | Section: | 3 |
| Range: | 36 |
Location |
| Address: | WA 99362 | Mapsco: | |
| Neighborhood: | 0 Farm | Map ID: | |
| Neighborhood CD: | 3230 |
Owner |
| Name: | MINNICK LAND COMPANY LLC | Owner ID: | 33467 |
| Mailing Address: | 2440 MIDDLE WAITSBURG RD WALLA WALLA, WA 99362 | % Ownership: | 100.0000000000% |
| | | Exemptions: | |
Taxes and Assessment Details
Values
| (+) Improvement Homesite Value: | + | $0 | |
| (+) Improvement Non-Homesite Value: | + | $173,600 | |
| (+) Land Homesite Value: | + | $0 | |
| (+) Land Non-Homesite Value: | + | $0 | |
| (+) Curr Use (HS): | + | $0 | $0 |
| (+) Curr Use (NHS): | + | $842,290 | $173,310 |
| | | -------------------------- | |
| (=) Market Value: | = | $1,015,890 | |
| (–) Productivity Loss: | – | $668,980 | |
| | | -------------------------- | |
| (=) Subtotal: | = | $346,910 | |
| (+) Senior Appraised Value: | + | $0 | |
| (+) Non-Senior Appraised Value: | + | $346,910 | |
| | | -------------------------- | |
| (=) Total Appraised Value: | = | $346,910 | |
| (–) Senior Exemption Loss: | – | $0 | |
| (–) Exemption Loss: | – | $0 | |
| | | -------------------------- | |
| (=) Taxable Value: | = | $346,910 | |
Taxing Jurisdiction
| Owner: | MINNICK LAND COMPANY LLC | | |
| % Ownership: | 100.0000000000% | | |
| Total Value: | $1,015,890 | | |
| Tax Area: | 100 - 140-8 |
| CERFD | CURRENT EXPENSE REFUND 010 | 0.0000000000 | $346,910 | $346,910 | $0.00 | | |
| CURREXP | CURRENT EXPENSE 010 | 1.0175366760 | $346,910 | $346,910 | $352.99 | | |
| HUMNSERV | HUMAN SERVICES 119 | 0.0250000000 | $346,910 | $346,910 | $8.67 | | |
| SLDREL | SOLDIERS RELIEF 121 | 0.0155990005 | $346,910 | $346,910 | $5.41 | | |
| EMERGSER | EMS 147 | 0.3792580840 | $346,910 | $346,910 | $131.57 | | |
| EMSRFD | EMS REFUND 147 | 0.0000000000 | $346,910 | $346,910 | $0.00 | | |
| FD8EXP | FD #8 EXPENSE 697 | 0.6647992540 | $346,910 | $346,910 | $230.63 | | |
| RLBRFD | RURAL LIBRARY REFUND 623 | 0.0000000000 | $346,910 | $346,910 | $0.00 | | |
| RURALLIB | RURAL LIBRARY 623 | 0.3710609029 | $346,910 | $346,910 | $128.72 | | |
| PORTRFD | PORT REFUND 640 | 0.0000000000 | $346,910 | $346,910 | $0.00 | | |
| PORTWWGEN | PORT OF WW 640 | 0.2460186015 | $346,910 | $346,910 | $85.35 | | |
| SD140BOND | SD #140 BOND 764 | 0.8342371393 | $346,910 | $346,910 | $289.41 | | |
| SD140GEN | SD #140 GENERAL 760 | 2.0646500647 | $346,910 | $346,910 | $716.25 | | |
| ST2 | STATE SCHOOL PART 2 600 | 0.8131451643 | $346,910 | $346,910 | $282.09 | | |
| STATESCHL | STATE SCHOOL 600 | 1.5158548041 | $346,910 | $346,910 | $525.87 | | |
| STREFUND | STATE REFUND LEVY 603 | 0.0000000000 | $346,910 | $346,910 | $0.00 | | |
| COROAD | COUNTY ROAD 115 | 1.6549953990 | $346,910 | $346,910 | $574.13 | | |
| CRPRD | COUNTY ROAD REFUND 115 | 0.0000000000 | $346,910 | $346,910 | $0.00 | | |
| | Total Tax Rate: | 9.6021550903 | | | | | |
| | | | | Taxes w/Current Exemptions: | $3,331.09 | | |
| | | | | Taxes w/o Exemptions: | $3,331.09 | | |
Improvement / Building
| Improvement #1: | PERM CROP | State Code: | 83 | 0.0 sqft | Value: | $173,600 |
Sketch
| No sketches available for this property. |
Property Image
Land
| 1 | CC1-2 | Class 1 Circle Irrigation | 35.0000 | 0.00 | 0.00 | 0.00 | 1.00 | $343,000 | $70,180 |
| 2 | C1-I | Class 1 Irrigated | 81.8500 | 0.00 | 0.00 | 0.00 | 1.00 | $499,290 | $103,130 |
Roll Value History
| 2025 | N/A | N/A | N/A | N/A | N/A |
| 2024 | $173,600 | $865,660 | $174,220 | $347,820 | $347,820 |
| 2023 | $173,600 | $842,290 | $173,310 | $346,910 | $346,910 |
| 2022 | $173,600 | $765,180 | $166,970 | $340,570 | $340,570 |
| 2021 | $173,600 | $724,250 | $168,930 | $342,530 | $342,530 |
| 2020 | $173,600 | $607,400 | $169,520 | $343,120 | $343,120 |
| 2019 | $162,750 | $531,480 | $170,050 | $332,800 | $332,800 |
| 2018 | $162,750 | $453,290 | $169,440 | $332,190 | $332,190 |
| 2017 | $162,750 | $453,290 | $172,460 | $335,210 | $335,210 |
| 2016 | $162,750 | $400,790 | $172,870 | $335,620 | $335,620 |
| 2015 | $162,800 | $350,550 | $157,340 | $320,140 | $320,140 |
| 2014 | $162,800 | $350,550 | $157,340 | $320,140 | $320,140 |
| 2013 | $162,800 | $338,900 | $137,400 | $300,200 | $300,200 |
| 2012 | $0 | $100,000 | $0 | $0 | $0 |
| 2011 | $0 | $96,100 | $0 | $0 | $0 |
| 2010 | $0 | $99,000 | $0 | $0 | $0 |
| 2009 | $0 | $97,600 | $0 | $0 | $0 |
| 2008 | $0 | $117,600 | $0 | $0 | $0 |
| 2007 | $0 | $128,500 | $0 | $0 | $0 |
| 2006 | $0 | $128,500 | $0 | $0 | $0 |
Deed and Sales History
| 1 | 10/04/2018 | SWD | STATUTORY WARRANTY DEED | FOUNDATION FARM INC | MINNICK LAND COMPANY LLC | | 2-PARCELS | $1,500,000.00 | 135693 | 2018-08260 |
|   | |
| 2 | 06/17/1974 | QCD | QUIT CLAIM DEED | | | | | $1,437.00 | 0 | 1705-37645 |
|   | |
Payout Agreement
| No payout information available.. |