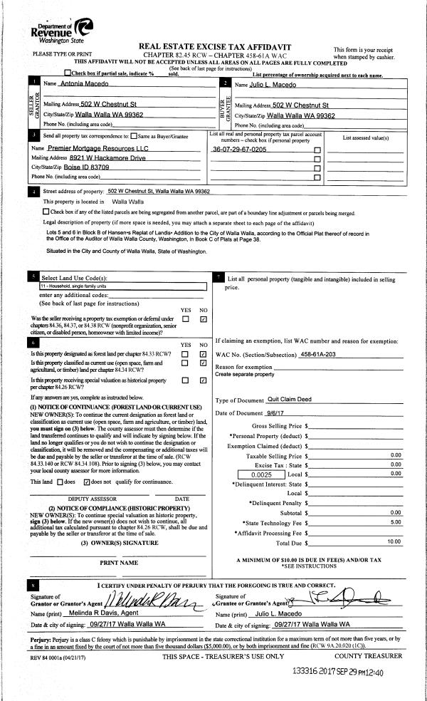
Property
Account |
| Property ID: | 5309 | Abbreviated Legal Description: | GAM SUBD LOT 20 |
| Parcel Number: | 360606540020 | Agent Code: | |
| Type: | Real | | |
| Tax Area: | 101 - 140-4 | Land Use Code | 11 |
| Open Space: | N | DFL | N |
| Historic Property: | N | Remodel Property: | N |
| Multi-Family Redevelopment: | N | | |
| Township: | 6 | Section: | 6 |
| Range: | 36 |
Location |
| Address: | 1745 GRAY LYNN DR WA 99362 | Mapsco: | |
| Neighborhood: | VG SFR Rural/City Inf | Map ID: | |
| Neighborhood CD: | 115012 |
Owner |
| Name: | WICK RICHARD R & SARAH M | Owner ID: | 61351 |
| Mailing Address: | 1745 GRAY LYNN DR WALLA WALLA, WA 99362 | % Ownership: | 100.0000000000% |
| | | Exemptions: | |
Taxes and Assessment Details
Values
| (+) Improvement Homesite Value: | + | $0 | |
| (+) Improvement Non-Homesite Value: | + | $804,640 | |
| (+) Land Homesite Value: | + | $0 | |
| (+) Land Non-Homesite Value: | + | $165,150 | |
| (+) Curr Use (HS): | + | $0 | $0 |
| (+) Curr Use (NHS): | + | $0 | $0 |
| | | -------------------------- | |
| (=) Market Value: | = | $969,790 | |
| (–) Productivity Loss: | – | $0 | |
| | | -------------------------- | |
| (=) Subtotal: | = | $969,790 | |
| (+) Senior Appraised Value: | + | $0 | |
| (+) Non-Senior Appraised Value: | + | $969,790 | |
| | | -------------------------- | |
| (=) Total Appraised Value: | = | $969,790 | |
| (–) Senior Exemption Loss: | – | $0 | |
| (–) Exemption Loss: | – | $0 | |
| | | -------------------------- | |
| (=) Taxable Value: | = | $969,790 | |
Taxing Jurisdiction
| Owner: | WICK RICHARD R & SARAH M | | |
| % Ownership: | 100.0000000000% | | |
| Total Value: | $969,790 | | |
| Tax Area: | 101 - 140-4 |
| CERFD | CURRENT EXPENSE REFUND 010 | 0.0000000000 | $969,790 | $969,790 | $0.00 | | |
| CURREXP | CURRENT EXPENSE 010 | 1.0175366760 | $969,790 | $969,790 | $986.80 | | |
| HUMNSERV | HUMAN SERVICES 119 | 0.0250000000 | $969,790 | $969,790 | $24.24 | | |
| SLDREL | SOLDIERS RELIEF 121 | 0.0155990005 | $969,790 | $969,790 | $15.13 | | |
| EMERGSER | EMS 147 | 0.3792580840 | $969,790 | $969,790 | $367.80 | | |
| EMSRFD | EMS REFUND 147 | 0.0000000000 | $969,790 | $969,790 | $0.00 | | |
| FD4EXP | FD #4 EXPENSE 686 | 0.8836993059 | $969,790 | $969,790 | $857.00 | | |
| RLBRFD | RURAL LIBRARY REFUND 623 | 0.0000000000 | $969,790 | $969,790 | $0.00 | | |
| RURALLIB | RURAL LIBRARY 623 | 0.3710609029 | $969,790 | $969,790 | $359.85 | | |
| PORTRFD | PORT REFUND 640 | 0.0000000000 | $969,790 | $969,790 | $0.00 | | |
| PORTWWGEN | PORT OF WW 640 | 0.2460186015 | $969,790 | $969,790 | $238.59 | | |
| SD140BOND | SD #140 BOND 764 | 0.8342371393 | $969,790 | $969,790 | $809.03 | | |
| SD140GEN | SD #140 GENERAL 760 | 2.0646500647 | $969,790 | $969,790 | $2,002.28 | | |
| ST2 | STATE SCHOOL PART 2 600 | 0.8131451643 | $969,790 | $969,790 | $788.58 | | |
| STATESCHL | STATE SCHOOL 600 | 1.5158548041 | $969,790 | $969,790 | $1,470.06 | | |
| STREFUND | STATE REFUND LEVY 603 | 0.0000000000 | $969,790 | $969,790 | $0.00 | | |
| COROAD | COUNTY ROAD 115 | 1.6549953990 | $969,790 | $969,790 | $1,605.00 | | |
| CRPRD | COUNTY ROAD REFUND 115 | 0.0000000000 | $969,790 | $969,790 | $0.00 | | |
| | Total Tax Rate: | 9.8210551422 | | | | | |
| | | | | Taxes w/Current Exemptions: | $9,524.36 | | |
| | | | | Taxes w/o Exemptions: | $9,524.36 | | |
Improvement / Building
| Improvement #1: | RESIDENTIAL | State Code: | 11 | 2561.0 sqft | Value: | $804,640 |
| Exterior Wall: | MASONRY VENEER | Heating/Cooling: | WARM & COOLED AIR | | Number of Bathrooms: | 4.5 | Number of Bedrooms: | 4 | | Plumbing: | 17 | Roof Covering: | COMP SHINGLE |
|
| | Type | Description | Class CD | Sub Class CD | Year Built | Area |
| | MA | Main Area | 1 | 55 | 2001 | 2561.0 |
| | GFP | GAS FIREPLACE | 1 | 55 | 2001 | 1.0 |
| | SI1 | SITE IMPROVEMENT | 1 | 55 | 2001 | 8.5 |
| | BASE | BASEMENT | 1 | 55 | 2001 | 2561.0 |
| | BLW | WOOD BALCONIES | 1 | 55 | 2001 | 367.0 |
| | BPF | BASEMENT -PARTITIONED FINISH | 1 | 55 | 2001 | 2561.0 |
| | ATG | Attached Garage | 1 | 55 | 2001 | 834.0 |
| | RPS | PORCH W/STEPS,ROOF | 1 | 55 | 2001 | 102.0 |
Sketch
Property Image
Land
| 1 | RES 1 | Converted: Residential | 2.0100 | 0.00 | 0.00 | 0.00 | 1.00 | $165,150 | $0 |
Roll Value History
| 2025 | N/A | N/A | N/A | N/A | N/A |
| 2024 | $804,640 | $165,150 | $0 | $969,790 | $969,790 |
| 2023 | $804,640 | $165,150 | $0 | $969,790 | $969,790 |
| 2022 | $766,320 | $165,150 | $0 | $931,470 | $931,470 |
| 2021 | $729,830 | $165,150 | $0 | $894,980 | $894,980 |
| 2020 | $663,480 | $165,150 | $0 | $828,630 | $828,630 |
| 2019 | $734,630 | $94,000 | $0 | $828,630 | $828,630 |
| 2018 | $667,840 | $94,000 | $0 | $761,840 | $761,840 |
| 2017 | $580,730 | $94,000 | $0 | $674,730 | $674,730 |
| 2016 | $414,810 | $94,000 | $0 | $508,810 | $508,810 |
| 2015 | $377,100 | $94,000 | $0 | $471,100 | $471,100 |
| 2014 | $377,100 | $94,000 | $0 | $471,100 | $471,100 |
| 2013 | $377,100 | $94,000 | $0 | $471,100 | $471,100 |
| 2012 | $401,900 | $94,000 | $0 | $0 | $0 |
| 2011 | $371,900 | $124,000 | $0 | $0 | $0 |
| 2010 | $371,900 | $124,000 | $0 | $0 | $0 |
| 2009 | $398,000 | $124,000 | $0 | $0 | $0 |
| 2008 | $393,900 | $128,100 | $0 | $0 | $0 |
| 2007 | $334,300 | $66,100 | $0 | $0 | $0 |
| 2006 | $334,300 | $66,100 | $0 | $0 | $0 |
Deed and Sales History
| 1 | 07/18/2017 | SWD | STATUTORY WARRANTY DEED | ELSKENS DANIEL P | WICK RICHARD R & SARAH M | | | $875,000.00 | 132798 | 2017-05500 |
| 2 | 06/15/2016 | SWD | STATUTORY WARRANTY DEED | STACEY MICHAEL D & PATRICIA | ELSKENS DANIEL P | | | $754,000.00 | 130423 | 2016-04600 |
| 3 | 01/08/1997 | WARRANTY D | WARRANTY DEED | | | | | $40,000.00 | 87519 | 2479-700172 |
Payout Agreement
| No payout information available.. |