Property
Account |
| Property ID: | 4917 | Abbreviated Legal Description: | 31-8-35 W1/2 N&E OF R/W LESS RD |
| Parcel Number: | 350831210002 | Agent Code: | |
| Type: | Real | | |
| Tax Area: | 100 - 140-8 | Land Use Code | 83 |
| Open Space: | Y | DFL | N |
| Historic Property: | N | Remodel Property: | N |
| Multi-Family Redevelopment: | N | | |
| Township: | 8 | Section: | 31 |
| Range: | 35 |
Location |
| Address: | WA 99362 | Mapsco: | |
| Neighborhood: | 0 Farm | Map ID: | |
| Neighborhood CD: | 3230 |
Owner |
| Name: | GORHAM SCOTT V | Owner ID: | 12841 |
| Mailing Address: | 2489 COUNTRY CLUB RD WALLA WALLA, WA 99362 | % Ownership: | 100.0000000000% |
| | | Exemptions: | |
Taxes and Assessment Details
Values
| (+) Improvement Homesite Value: | + | $0 | |
| (+) Improvement Non-Homesite Value: | + | $0 | |
| (+) Land Homesite Value: | + | $0 | |
| (+) Land Non-Homesite Value: | + | $0 | |
| (+) Curr Use (HS): | + | $0 | $0 |
| (+) Curr Use (NHS): | + | $204,500 | $67,440 |
| | | -------------------------- | |
| (=) Market Value: | = | $204,500 | |
| (–) Productivity Loss: | – | $137,060 | |
| | | -------------------------- | |
| (=) Subtotal: | = | $67,440 | |
| (+) Senior Appraised Value: | + | $0 | |
| (+) Non-Senior Appraised Value: | + | $67,440 | |
| | | -------------------------- | |
| (=) Total Appraised Value: | = | $67,440 | |
| (–) Senior Exemption Loss: | – | $0 | |
| (–) Exemption Loss: | – | $0 | |
| | | -------------------------- | |
| (=) Taxable Value: | = | $67,440 | |
Taxing Jurisdiction
| Owner: | GORHAM SCOTT V | | |
| % Ownership: | 100.0000000000% | | |
| Total Value: | $204,500 | | |
| Tax Area: | 100 - 140-8 |
| CERFD | CURRENT EXPENSE REFUND 010 | 0.0000000000 | $67,440 | $67,440 | $0.00 | | |
| CURREXP | CURRENT EXPENSE 010 | 1.0175366760 | $67,440 | $67,440 | $68.62 | | |
| HUMNSERV | HUMAN SERVICES 119 | 0.0250000000 | $67,440 | $67,440 | $1.69 | | |
| SLDREL | SOLDIERS RELIEF 121 | 0.0155990005 | $67,440 | $67,440 | $1.05 | | |
| EMERGSER | EMS 147 | 0.3792580840 | $67,440 | $67,440 | $25.58 | | |
| EMSRFD | EMS REFUND 147 | 0.0000000000 | $67,440 | $67,440 | $0.00 | | |
| FD8EXP | FD #8 EXPENSE 697 | 0.6647992540 | $67,440 | $67,440 | $44.83 | | |
| RLBRFD | RURAL LIBRARY REFUND 623 | 0.0000000000 | $67,440 | $67,440 | $0.00 | | |
| RURALLIB | RURAL LIBRARY 623 | 0.3710609029 | $67,440 | $67,440 | $25.02 | | |
| PORTRFD | PORT REFUND 640 | 0.0000000000 | $67,440 | $67,440 | $0.00 | | |
| PORTWWGEN | PORT OF WW 640 | 0.2460186015 | $67,440 | $67,440 | $16.59 | | |
| SD140BOND | SD #140 BOND 764 | 0.8342371393 | $67,440 | $67,440 | $56.26 | | |
| SD140GEN | SD #140 GENERAL 760 | 2.0646500647 | $67,440 | $67,440 | $139.24 | | |
| ST2 | STATE SCHOOL PART 2 600 | 0.8131451643 | $67,440 | $67,440 | $54.84 | | |
| STATESCHL | STATE SCHOOL 600 | 1.5158548041 | $67,440 | $67,440 | $102.23 | | |
| STREFUND | STATE REFUND LEVY 603 | 0.0000000000 | $67,440 | $67,440 | $0.00 | | |
| COROAD | COUNTY ROAD 115 | 1.6549953990 | $67,440 | $67,440 | $111.61 | | |
| CRPRD | COUNTY ROAD REFUND 115 | 0.0000000000 | $67,440 | $67,440 | $0.00 | | |
| | Total Tax Rate: | 9.6021550903 | | | | | |
| | | | | Taxes w/Current Exemptions: | $647.56 | | |
| | | | | Taxes w/o Exemptions: | $647.56 | | |
Improvement / Building
Sketch
| No sketches available for this property. |
Property Image
Land
| 1 | 50-C1 | Class 1 50 BU | 166.9400 | 0.00 | 0.00 | 0.00 | 1.00 | $204,500 | $67,440 |
| 2 | WASTE | Waste | 13.0000 | 0.00 | 0.00 | 0.00 | 1.00 | $0 | $0 |
Roll Value History
| 2025 | N/A | N/A | N/A | N/A | N/A |
| 2024 | $0 | $209,510 | $64,770 | $64,770 | $64,770 |
| 2023 | $0 | $204,500 | $67,440 | $67,440 | $67,440 |
| 2022 | $0 | $183,630 | $64,770 | $64,770 | $64,770 |
| 2021 | $0 | $166,940 | $64,770 | $64,770 | $64,770 |
| 2020 | $0 | $154,420 | $66,440 | $66,440 | $66,440 |
| 2019 | $0 | $148,240 | $67,950 | $67,950 | $67,950 |
| 2018 | $0 | $147,410 | $77,460 | $77,460 | $77,460 |
| 2017 | $0 | $141,060 | $78,800 | $78,800 | $78,800 |
| 2016 | $0 | $141,060 | $78,960 | $78,960 | $78,960 |
| 2015 | $0 | $139,900 | $69,950 | $69,950 | $69,950 |
| 2014 | $0 | $139,900 | $70,450 | $70,450 | $70,450 |
| 2013 | $0 | $131,500 | $56,900 | $56,900 | $56,900 |
| 2012 | $0 | $37,200 | $0 | $0 | $0 |
| 2011 | $0 | $42,100 | $0 | $0 | $0 |
| 2010 | $0 | $38,900 | $0 | $0 | $0 |
| 2009 | $0 | $38,600 | $0 | $0 | $0 |
| 2008 | $0 | $32,400 | $0 | $0 | $0 |
| 2007 | $0 | $36,100 | $0 | $0 | $0 |
| 2006 | $0 | $36,100 | $0 | $0 | $0 |
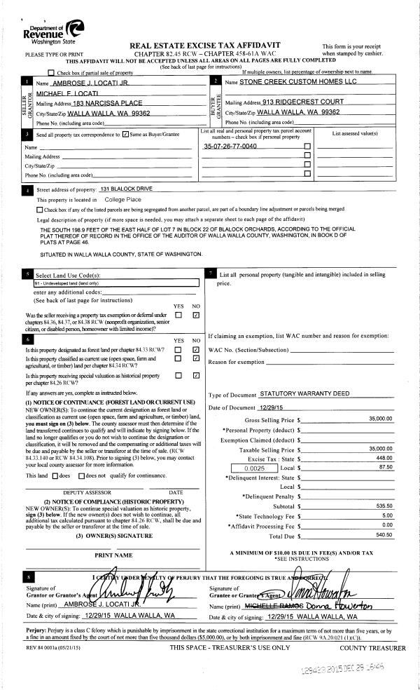
Deed and Sales History
| 1 | 12/19/2005 | WARRANTY D | WARRANTY DEED | GORHAM, ELEANOR K | GORHAM SCOTT V | | | | 109286 | 2005-15823 |
| 2 | 07/01/1976 | WARRANTY D | WARRANTY DEED | | | | | $0.00 | 63849 | 3190-478870 |
Payout Agreement
| No payout information available.. |