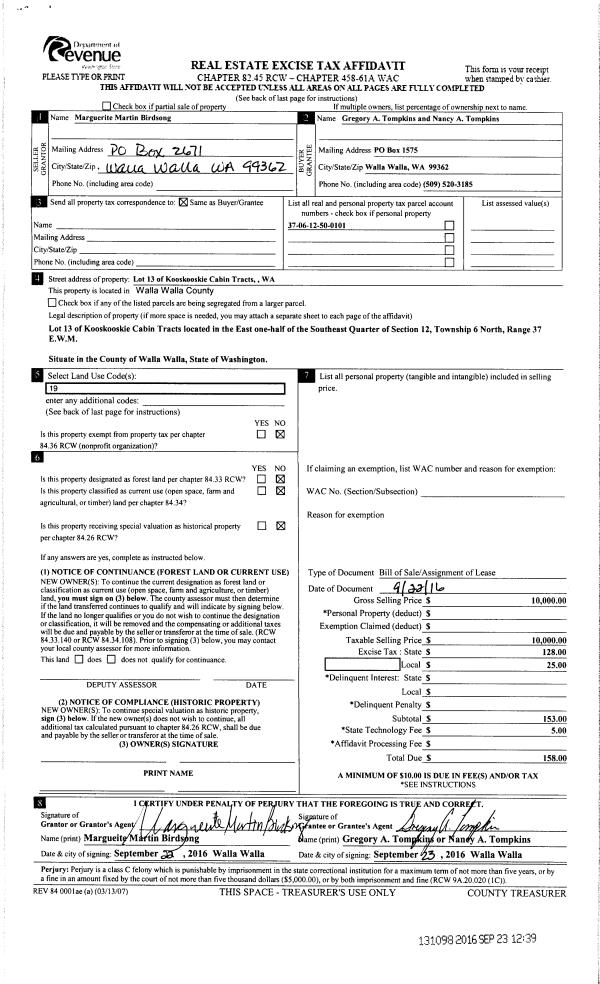
Property
Account |
| Property ID: | 4805 | Abbreviated Legal Description: | 25-7-35 TAX 52A, LESS NLY 5' STRIP |
| Parcel Number: | 350725440023 | Agent Code: | |
| Type: | Real | | |
| Tax Area: | 76 - CP-250-F-FB | Land Use Code | 11 |
| Open Space: | N | DFL | N |
| Historic Property: | N | Remodel Property: | N |
| Multi-Family Redevelopment: | N | | |
| Township: | 7 | Section: | 25 |
| Range: | 35 |
Location |
| Address: | 1002 NE C ST WA 99324 | Mapsco: | |
| Neighborhood: | A SFR | Map ID: | |
| Neighborhood CD: | 113011 |
Owner |
| Name: | MARTINEZ MARIA J | Owner ID: | 70498 |
| Mailing Address: | MAGLALENA RODRIGUEZ 1002 NE C ST COLLEGE PLACE, WA 99324 | % Ownership: | 100.0000000000% |
| | | Exemptions: | |
Taxes and Assessment Details
Values
| (+) Improvement Homesite Value: | + | $0 | |
| (+) Improvement Non-Homesite Value: | + | $280,490 | |
| (+) Land Homesite Value: | + | $0 | |
| (+) Land Non-Homesite Value: | + | $46,700 | |
| (+) Curr Use (HS): | + | $0 | $0 |
| (+) Curr Use (NHS): | + | $0 | $0 |
| | | -------------------------- | |
| (=) Market Value: | = | $327,190 | |
| (–) Productivity Loss: | – | $0 | |
| | | -------------------------- | |
| (=) Subtotal: | = | $327,190 | |
| (+) Senior Appraised Value: | + | $0 | |
| (+) Non-Senior Appraised Value: | + | $327,190 | |
| | | -------------------------- | |
| (=) Total Appraised Value: | = | $327,190 | |
| (–) Senior Exemption Loss: | – | $0 | |
| (–) Exemption Loss: | – | $0 | |
| | | -------------------------- | |
| (=) Taxable Value: | = | $327,190 | |
Taxing Jurisdiction
| Owner: | MARTINEZ MARIA J | | |
| % Ownership: | 100.0000000000% | | |
| Total Value: | $327,190 | | |
| Tax Area: | 76 - CP-250-F-FB |
| CERFD | CURRENT EXPENSE REFUND 010 | 0.0000000000 | $327,190 | $327,190 | $0.00 | | |
| CURREXP | CURRENT EXPENSE 010 | 1.0175366760 | $327,190 | $327,190 | $332.93 | | |
| HUMNSERV | HUMAN SERVICES 119 | 0.0250000000 | $327,190 | $327,190 | $8.18 | | |
| SLDREL | SOLDIERS RELIEF 121 | 0.0155990005 | $327,190 | $327,190 | $5.10 | | |
| COLLPLBOND | C OF CP BOND 644 | 0.4374241808 | $327,190 | $327,190 | $143.12 | | |
| COLLPLGEN | CITY OF CP 632 | 1.4453819216 | $327,190 | $327,190 | $472.91 | | |
| EMERGSER | EMS 147 | 0.3792580840 | $327,190 | $327,190 | $124.09 | | |
| EMSRFD | EMS REFUND 147 | 0.0000000000 | $327,190 | $327,190 | $0.00 | | |
| RURALLIB | RURAL LIBRARY 623 | 0.3710609029 | $327,190 | $327,190 | $121.41 | | |
| PORTRFD | PORT REFUND 640 | 0.0000000000 | $327,190 | $327,190 | $0.00 | | |
| PORTWWGEN | PORT OF WW 640 | 0.2460186015 | $327,190 | $327,190 | $80.49 | | |
| SD250BOND | SD #250 BOND 773 | 1.4560608159 | $327,190 | $327,190 | $476.41 | | |
| SD250GEN | SD #250 GENERAL 770 | 2.3880724087 | $327,190 | $327,190 | $781.35 | | |
| ST2 | STATE SCHOOL PART 2 600 | 0.8131451643 | $327,190 | $327,190 | $266.05 | | |
| STATESCHL | STATE SCHOOL 600 | 1.5158548041 | $327,190 | $327,190 | $495.97 | | |
| STREFUND | STATE REFUND LEVY 603 | 0.0000000000 | $327,190 | $327,190 | $0.00 | | |
| | Total Tax Rate: | 10.1104125603 | | | | | |
| | | | | Taxes w/Current Exemptions: | $3,308.01 | | |
| | | | | Taxes w/o Exemptions: | $3,308.01 | | |
Improvement / Building
| Improvement #1: | RESIDENTIAL | State Code: | 11 | 952.0 sqft | Value: | $280,490 |
| Exterior Wall: | CEMENT FIBER | Heating/Cooling: | WARM & COOLED AIR | | Number of Bathrooms: | 1 | Number of Bedrooms: | 3 | | Plumbing: | 6 | Roof Covering: | COMP SHINGLE |
|
| | Type | Description | Class CD | Sub Class CD | Year Built | Area |
| | MA | Main Area | 1 | 30 | 1942 | 952.0 |
| | SI1 | SITE IMPROVEMENT | 1 | 30 | 1942 | 1.5 |
| | BASE | BASEMENT | 1 | 30 | 1942 | 672.0 |
| | DTG | Detached Garage | 1 | 30 | 1942 | 620.0 |
| | RPS | PORCH W/STEPS,ROOF | 1 | 30 | 1942 | 48.0 |
| | CPC | COVERED CARPORT/PATIO | 1 | 30 | 1942 | 240.0 |
Sketch
Property Image
Land
| 1 | RES 1 | Converted: Residential | 0.2181 | 9500.00 | 0.00 | 0.00 | 1.00 | $46,700 | $0 |
Roll Value History
| 2025 | N/A | N/A | N/A | N/A | N/A |
| 2024 | $280,490 | $46,700 | $0 | $327,190 | $327,190 |
| 2023 | $280,490 | $46,700 | $0 | $327,190 | $327,190 |
| 2022 | $254,990 | $46,700 | $0 | $301,690 | $301,690 |
| 2021 | $203,990 | $46,700 | $0 | $250,690 | $250,690 |
| 2020 | $134,460 | $46,700 | $0 | $181,160 | $181,160 |
| 2019 | $134,460 | $46,700 | $0 | $181,160 | $181,160 |
| 2018 | $116,920 | $46,700 | $0 | $163,620 | $163,620 |
| 2017 | $101,670 | $46,700 | $0 | $148,370 | $148,370 |
| 2016 | $88,410 | $46,700 | $0 | $135,110 | $135,110 |
| 2015 | $84,200 | $46,700 | $0 | $130,900 | $130,900 |
| 2014 | $84,200 | $46,700 | $0 | $130,900 | $130,900 |
| 2013 | $84,200 | $46,700 | $0 | $130,900 | $130,900 |
| 2012 | $84,200 | $46,700 | $0 | $0 | $0 |
| 2011 | $84,200 | $46,700 | $0 | $0 | $0 |
| 2010 | $78,000 | $46,700 | $0 | $0 | $0 |
| 2009 | $91,900 | $46,700 | $0 | $0 | $0 |
| 2008 | $74,900 | $24,300 | $0 | $0 | $0 |
| 2007 | $74,900 | $24,300 | $0 | $0 | $0 |
| 2006 | $74,900 | $24,300 | $0 | $0 | $0 |
Deed and Sales History
| 1 | 10/27/2021 | SWD | STATUTORY WARRANTY DEED | REISWIG NICOLE TALER | MARTINEZ MARIA J | | | $315,000.00 | 142745 | 2021-12945 |
| 2 | 12/27/2018 | QCD | QUIT CLAIM DEED | BOUDREAU SHADEN P | REISWIG NICOLE TALER | | | $0.00 | 136153 | 2018-10633 |
| 3 | 06/29/2017 | BARGAIN & | BARGAIN & SALE DEED | US BANK TRUST NA | BOUDREAU SHADEN P | | | $134,900.00 | 132693 | 2017-05002 |
| 4 | 06/09/2016 | TRUSTEES D | TRUSTEE'S DEED | SALTER MORRIS D | US BANK TRUST NA | | | $141,000.00 | 130387 | 2016-04367 |
| 5 | 10/12/2004 | WARRANTY D | WARRANTY DEED | BOTIMER, DOUGLAS A & GLORIA | SALTER, MORRIS D | | | $126,000.00 | 105939 | 2004-11775 |
| 6 | 10/12/2004 | QCD | QUIT CLAIM DEED | SALTER, SHEILA K | SALTER, MORRIS D | | | | 105938 | 2004-11774 |
| 7 | 06/16/2004 | WARRANTY D | WARRANTY DEED | BOTIMER, DOUGLAS A & GLORIA | BOTIMER, DOUGLAS A & GLORIA | | | | 105031 | 2004-06674 |
| 8 | 07/17/2003 | WARRANTY D | WARRANTY DEED | JAQUINS, JUDITH A | BOTIMER, DOUGLAS A & GLORIA | | | $92,500.00 | 102590 | 2003-10600 |
Payout Agreement
| No payout information available.. |