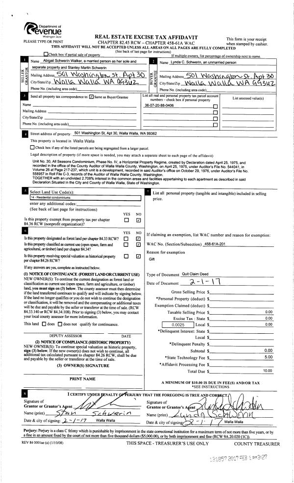
Property
Account |
| Property ID: | 4803 | Abbreviated Legal Description: | SHERBURNE ADDN LOT 8 BLK 1 |
| Parcel Number: | 350736740108 | Agent Code: | |
| Type: | Real | | |
| Tax Area: | 75 - CP 250 | Land Use Code | 11 |
| Open Space: | N | DFL | N |
| Historic Property: | N | Remodel Property: | N |
| Multi-Family Redevelopment: | N | | |
| Township: | 7 | Section: | 36 |
| Range: | 35 |
Location |
| Address: | 739 SE LANDEN DR WA 99324 | Mapsco: | |
| Neighborhood: | G SFR | Map ID: | |
| Neighborhood CD: | 114011 |
Owner |
| Name: | DETWILER CHARLES G & JENNIFER J | Owner ID: | 2367 |
| Mailing Address: | 13465 S 175TH AVE GOODYEAR, AZ 85338 | % Ownership: | 100.0000000000% |
| | | Exemptions: | |
Taxes and Assessment Details
Values
| (+) Improvement Homesite Value: | + | $0 | |
| (+) Improvement Non-Homesite Value: | + | $251,950 | |
| (+) Land Homesite Value: | + | $0 | |
| (+) Land Non-Homesite Value: | + | $75,000 | |
| (+) Curr Use (HS): | + | $0 | $0 |
| (+) Curr Use (NHS): | + | $0 | $0 |
| | | -------------------------- | |
| (=) Market Value: | = | $326,950 | |
| (–) Productivity Loss: | – | $0 | |
| | | -------------------------- | |
| (=) Subtotal: | = | $326,950 | |
| (+) Senior Appraised Value: | + | $0 | |
| (+) Non-Senior Appraised Value: | + | $326,950 | |
| | | -------------------------- | |
| (=) Total Appraised Value: | = | $326,950 | |
| (–) Senior Exemption Loss: | – | $0 | |
| (–) Exemption Loss: | – | $0 | |
| | | -------------------------- | |
| (=) Taxable Value: | = | $326,950 | |
Taxing Jurisdiction
| Owner: | DETWILER CHARLES G & JENNIFER J | | |
| % Ownership: | 100.0000000000% | | |
| Total Value: | $326,950 | | |
| Tax Area: | 75 - CP 250 |
| CERFD | CURRENT EXPENSE REFUND 010 | 0.0000000000 | $326,950 | $326,950 | $0.00 | | |
| CURREXP | CURRENT EXPENSE 010 | 1.0175366760 | $326,950 | $326,950 | $332.68 | | |
| HUMNSERV | HUMAN SERVICES 119 | 0.0250000000 | $326,950 | $326,950 | $8.17 | | |
| SLDREL | SOLDIERS RELIEF 121 | 0.0155990005 | $326,950 | $326,950 | $5.10 | | |
| COLLPLBOND | C OF CP BOND 644 | 0.4374241808 | $326,950 | $326,950 | $143.02 | | |
| COLLPLGEN | CITY OF CP 632 | 1.4453819216 | $326,950 | $326,950 | $472.57 | | |
| EMERGSER | EMS 147 | 0.3792580840 | $326,950 | $326,950 | $124.00 | | |
| EMSRFD | EMS REFUND 147 | 0.0000000000 | $326,950 | $326,950 | $0.00 | | |
| RURALLIB | RURAL LIBRARY 623 | 0.3710609029 | $326,950 | $326,950 | $121.32 | | |
| PORTRFD | PORT REFUND 640 | 0.0000000000 | $326,950 | $326,950 | $0.00 | | |
| PORTWWGEN | PORT OF WW 640 | 0.2460186015 | $326,950 | $326,950 | $80.44 | | |
| SD250BOND | SD #250 BOND 773 | 1.4560608159 | $326,950 | $326,950 | $476.06 | | |
| SD250GEN | SD #250 GENERAL 770 | 2.3880724087 | $326,950 | $326,950 | $780.78 | | |
| ST2 | STATE SCHOOL PART 2 600 | 0.8131451643 | $326,950 | $326,950 | $265.86 | | |
| STATESCHL | STATE SCHOOL 600 | 1.5158548041 | $326,950 | $326,950 | $495.61 | | |
| STREFUND | STATE REFUND LEVY 603 | 0.0000000000 | $326,950 | $326,950 | $0.00 | | |
| | Total Tax Rate: | 10.1104125603 | | | | | |
| | | | | Taxes w/Current Exemptions: | $3,305.61 | | |
| | | | | Taxes w/o Exemptions: | $3,305.61 | | |
Improvement / Building
| Improvement #1: | RESIDENTIAL | State Code: | 11 | 1322.0 sqft | Value: | $251,950 |
| Exterior Wall: | SIDING | Heating/Cooling: | WARM & COOLED AIR | | Number of Bathrooms: | 2 | Number of Bedrooms: | 3 | | Plumbing: | 9 | Roof Covering: | COMP SHINGLE |
|
| | Type | Description | Class CD | Sub Class CD | Year Built | Area |
| | MA | Main Area | 1 | 35 | 1997 | 1322.0 |
| | SI1 | SITE IMPROVEMENT | 1 | 35 | 1997 | 2.0 |
| | ATG | Attached Garage | 1 | 35 | 1997 | 484.0 |
| | RPO | OPEN PORCH W/ROOF | 1 | 35 | 1997 | 88.0 |
Sketch
Property Image
Land
| 1 | RES 1 | Converted: Residential | 0.2105 | 9169.00 | 0.00 | 0.00 | 1.00 | $75,000 | $0 |
Roll Value History
| 2025 | N/A | N/A | N/A | N/A | N/A |
| 2024 | $289,740 | $75,000 | $0 | $364,740 | $364,740 |
| 2023 | $251,950 | $75,000 | $0 | $326,950 | $326,950 |
| 2022 | $219,090 | $75,000 | $0 | $294,090 | $294,090 |
| 2021 | $208,660 | $75,000 | $0 | $283,660 | $283,660 |
| 2020 | $143,900 | $75,000 | $0 | $218,900 | $218,900 |
| 2019 | $153,900 | $65,000 | $0 | $218,900 | $218,900 |
| 2018 | $133,830 | $65,000 | $0 | $198,830 | $198,830 |
| 2017 | $133,830 | $65,000 | $0 | $198,830 | $198,830 |
| 2016 | $121,660 | $65,000 | $0 | $186,660 | $186,660 |
| 2015 | $110,600 | $65,000 | $0 | $175,600 | $175,600 |
| 2014 | $110,600 | $65,000 | $0 | $175,600 | $175,600 |
| 2013 | $110,600 | $65,000 | $0 | $175,600 | $175,600 |
| 2012 | $130,100 | $65,000 | $0 | $0 | $0 |
| 2011 | $130,100 | $65,000 | $0 | $0 | $0 |
| 2010 | $130,100 | $65,000 | $0 | $0 | $0 |
| 2009 | $140,400 | $65,000 | $0 | $0 | $0 |
| 2008 | $105,600 | $30,000 | $0 | $0 | $0 |
| 2007 | $105,600 | $30,000 | $0 | $0 | $0 |
| 2006 | $105,600 | $30,000 | $0 | $0 | $0 |
Deed and Sales History
| 1 | 01/06/2021 | SWD | STATUTORY WARRANTY DEED | CRAIG CARL R JR | DETWILER CHARLES G & JENNIFER J | | | $295,000.00 | 140675 | 2021-00156 |
| 2 | 12/09/2015 | SWD | STATUTORY WARRANTY DEED | DYE THOMAS H & CHERYL L | CRAIG CARL R JR | | | $210,000.00 | 129313 | 2015-10522 |
| 3 | 08/18/1997 | WARRANTY D | WARRANTY DEED | | | | | $125,000.00 | 88734 | 2559-707606 |
Payout Agreement
| No payout information available.. |