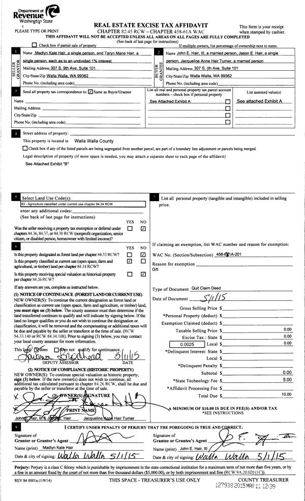
Property
Account |
| Property ID: | 4744 | Abbreviated Legal Description: | CRESTMONT ADDN LOT 5 BLK 1 |
| Parcel Number: | 350736670105 | Agent Code: | |
| Type: | Real | | |
| Tax Area: | 75 - CP 250 | Land Use Code | 11 |
| Open Space: | N | DFL | N |
| Historic Property: | N | Remodel Property: | N |
| Multi-Family Redevelopment: | N | | |
| Township: | 7 | Section: | 36 |
| Range: | 35 |
Location |
| Address: | 1157 SE DATE AVE WA 99324 | Mapsco: | |
| Neighborhood: | G SFR | Map ID: | |
| Neighborhood CD: | 114011 |
Owner |
| Name: | SANCHEZ-MICHEL JOSE G | Owner ID: | 60972 |
| Mailing Address: | JESSICA O FLORES 1157 SE DATE AVE COLLEGE PLACE, WA 99324 | % Ownership: | 100.0000000000% |
| | | Exemptions: | |
Taxes and Assessment Details
Values
| (+) Improvement Homesite Value: | + | $0 | |
| (+) Improvement Non-Homesite Value: | + | $293,720 | |
| (+) Land Homesite Value: | + | $0 | |
| (+) Land Non-Homesite Value: | + | $65,000 | |
| (+) Curr Use (HS): | + | $0 | $0 |
| (+) Curr Use (NHS): | + | $0 | $0 |
| | | -------------------------- | |
| (=) Market Value: | = | $358,720 | |
| (–) Productivity Loss: | – | $0 | |
| | | -------------------------- | |
| (=) Subtotal: | = | $358,720 | |
| (+) Senior Appraised Value: | + | $0 | |
| (+) Non-Senior Appraised Value: | + | $358,720 | |
| | | -------------------------- | |
| (=) Total Appraised Value: | = | $358,720 | |
| (–) Senior Exemption Loss: | – | $0 | |
| (–) Exemption Loss: | – | $0 | |
| | | -------------------------- | |
| (=) Taxable Value: | = | $358,720 | |
Taxing Jurisdiction
| Owner: | SANCHEZ-MICHEL JOSE G | | |
| % Ownership: | 100.0000000000% | | |
| Total Value: | $358,720 | | |
| Tax Area: | 75 - CP 250 |
| CERFD | CURRENT EXPENSE REFUND 010 | 0.0000000000 | $358,720 | $358,720 | $0.00 | | |
| CURREXP | CURRENT EXPENSE 010 | 1.0175366760 | $358,720 | $358,720 | $365.01 | | |
| HUMNSERV | HUMAN SERVICES 119 | 0.0250000000 | $358,720 | $358,720 | $8.97 | | |
| SLDREL | SOLDIERS RELIEF 121 | 0.0155990005 | $358,720 | $358,720 | $5.60 | | |
| COLLPLBOND | C OF CP BOND 644 | 0.4374241808 | $358,720 | $358,720 | $156.91 | | |
| COLLPLGEN | CITY OF CP 632 | 1.4453819216 | $358,720 | $358,720 | $518.49 | | |
| EMERGSER | EMS 147 | 0.3792580840 | $358,720 | $358,720 | $136.05 | | |
| EMSRFD | EMS REFUND 147 | 0.0000000000 | $358,720 | $358,720 | $0.00 | | |
| RURALLIB | RURAL LIBRARY 623 | 0.3710609029 | $358,720 | $358,720 | $133.11 | | |
| PORTRFD | PORT REFUND 640 | 0.0000000000 | $358,720 | $358,720 | $0.00 | | |
| PORTWWGEN | PORT OF WW 640 | 0.2460186015 | $358,720 | $358,720 | $88.25 | | |
| SD250BOND | SD #250 BOND 773 | 1.4560608159 | $358,720 | $358,720 | $522.32 | | |
| SD250GEN | SD #250 GENERAL 770 | 2.3880724087 | $358,720 | $358,720 | $856.65 | | |
| ST2 | STATE SCHOOL PART 2 600 | 0.8131451643 | $358,720 | $358,720 | $291.69 | | |
| STATESCHL | STATE SCHOOL 600 | 1.5158548041 | $358,720 | $358,720 | $543.77 | | |
| STREFUND | STATE REFUND LEVY 603 | 0.0000000000 | $358,720 | $358,720 | $0.00 | | |
| | Total Tax Rate: | 10.1104125603 | | | | | |
| | | | | Taxes w/Current Exemptions: | $3,626.82 | | |
| | | | | Taxes w/o Exemptions: | $3,626.82 | | |
Improvement / Building
| Improvement #1: | RESIDENTIAL | State Code: | 11 | 1392.0 sqft | Value: | $293,720 |
| Exterior Wall: | PLYWOOD | Heating/Cooling: | HEAT PUMP | | Number of Bathrooms: | 3 | Number of Bedrooms: | 3 | | Plumbing: | 12 | Roof Covering: | COMP SHINGLE |
|
| | Type | Description | Class CD | Sub Class CD | Year Built | Area |
| | MA | Main Area | 1 | 30 | 1982 | 1392.0 |
| | SI1 | SITE IMPROVEMENT | 1 | 30 | 1982 | 1.5 |
| | BASE | BASEMENT | 1 | 30 | 1982 | 1392.0 |
| | BPF | BASEMENT -PARTITIONED FINISH | 1 | 30 | 1982 | 696.0 |
| | ATG | Attached Garage | 1 | 30 | 1982 | 528.0 |
| | OPS | OPEN PORCH W/STEPS | 1 | 30 | 1982 | 30.0 |
| | BRF | BASEMENT - REC FINISH | 1 | 30 | 1982 | 696.0 |
Sketch
Property Image
Land
| 1 | RES 1 | Converted: Residential | 0.1448 | 6307.00 | 0.00 | 0.00 | 1.00 | $65,000 | $0 |
Roll Value History
| 2025 | N/A | N/A | N/A | N/A | N/A |
| 2024 | $293,720 | $65,000 | $0 | $358,720 | $358,720 |
| 2023 | $293,720 | $65,000 | $0 | $358,720 | $358,720 |
| 2022 | $289,590 | $65,000 | $0 | $354,590 | $354,590 |
| 2021 | $231,670 | $65,000 | $0 | $296,670 | $296,670 |
| 2020 | $165,480 | $65,000 | $0 | $230,480 | $230,480 |
| 2019 | $165,480 | $65,000 | $0 | $230,480 | $230,480 |
| 2018 | $150,440 | $65,000 | $0 | $215,440 | $215,440 |
| 2017 | $130,820 | $65,000 | $0 | $195,820 | $195,820 |
| 2016 | $130,820 | $65,000 | $0 | $195,820 | $195,820 |
| 2015 | $130,820 | $65,000 | $0 | $195,820 | $195,820 |
| 2014 | $153,900 | $65,000 | $0 | $218,900 | $218,900 |
| 2013 | $153,900 | $65,000 | $0 | $218,900 | $218,900 |
| 2012 | $153,900 | $65,000 | $0 | $0 | $0 |
| 2011 | $153,900 | $65,000 | $0 | $0 | $0 |
| 2010 | $153,900 | $65,000 | $0 | $0 | $0 |
| 2009 | $165,400 | $65,000 | $0 | $0 | $0 |
| 2008 | $131,200 | $30,000 | $0 | $0 | $0 |
| 2007 | $131,200 | $30,000 | $0 | $0 | $0 |
| 2006 | $131,200 | $30,000 | $0 | $0 | $0 |
Deed and Sales History
| 1 | 05/26/2017 | SWD | STATUTORY WARRANTY DEED | MONTGOMERY DARREN J & ERIKA JOANNE | SANCHEZ-MICHEL JOSE G | | | $219,000.00 | 132482 | 2017-04022 |
| 2 | 07/02/2015 | BARGAIN & | BARGAIN & SALE DEED | US BANK TRUST | MONTGOMERY DARREN J & ERIKA JOANNE | | | $162,000.00 | 128310 | 2015-05681 |
| 3 | 01/16/2015 | TRUSTEES D | TRUSTEE'S DEED | ANDERSEN-BENNETT KRISTI | US BANK TRUST | | | $132,255.00 | 127295 | 2015-00404 |
| 4 | 08/25/2006 | WARRANTY D | WARRANTY DEED | SMITH, DONALD J & SUZANNE S | ANDERSEN-BENNETT, KRISTI | | | $187,500.00 | 111045 | 2006-`10255 |
| 5 | 12/29/2003 | WARRANTY D | WARRANTY DEED | SPENCER, CLIFFORD & CATHERINE | SMITH, DONALD J & SUZANNE S | | | $162,500.00 | 103809 | 2003-19507 |
| 6 | 11/08/1990 | WARRANTY D | WARRANTY DEED | | | | | $70,000.00 | 0 | 1869-007920 |
Payout Agreement
| No payout information available.. |