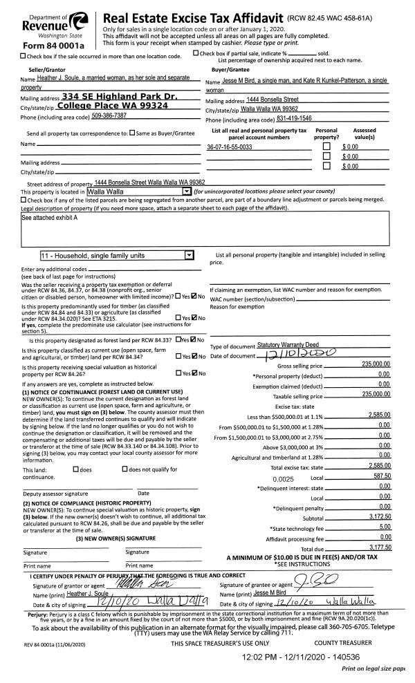
Property
Account |
| Property ID: | 4709 | Abbreviated Legal Description: | KNAPP ADDN PARCEL 16 BLK 4 |
| Parcel Number: | 350736620416 | Agent Code: | |
| Type: | Real | | |
| Tax Area: | 77 - CP-250-F | Land Use Code | 11 |
| Open Space: | N | DFL | N |
| Historic Property: | N | Remodel Property: | N |
| Multi-Family Redevelopment: | N | | |
| Township: | 7 | Section: | 36 |
| Range: | 35 |
Location |
| Address: | 1484 SE JUSTICE AVE WA 99324 | Mapsco: | |
| Neighborhood: | A SFR Rural/City Inf | Map ID: | |
| Neighborhood CD: | 113012 |
Owner |
| Name: | ELSOM GARRETT P J | Owner ID: | 71927 |
| Mailing Address: | DANIEL A & PAULA M ELSOM 1484 SE JUSTICE AVE COLLEGE PLACE, WA 99324 | % Ownership: | 100.0000000000% |
| | | Exemptions: | |
Taxes and Assessment Details
Values
| (+) Improvement Homesite Value: | + | $0 | |
| (+) Improvement Non-Homesite Value: | + | $268,380 | |
| (+) Land Homesite Value: | + | $0 | |
| (+) Land Non-Homesite Value: | + | $70,000 | |
| (+) Curr Use (HS): | + | $0 | $0 |
| (+) Curr Use (NHS): | + | $0 | $0 |
| | | -------------------------- | |
| (=) Market Value: | = | $338,380 | |
| (–) Productivity Loss: | – | $0 | |
| | | -------------------------- | |
| (=) Subtotal: | = | $338,380 | |
| (+) Senior Appraised Value: | + | $0 | |
| (+) Non-Senior Appraised Value: | + | $338,380 | |
| | | -------------------------- | |
| (=) Total Appraised Value: | = | $338,380 | |
| (–) Senior Exemption Loss: | – | $0 | |
| (–) Exemption Loss: | – | $0 | |
| | | -------------------------- | |
| (=) Taxable Value: | = | $338,380 | |
Taxing Jurisdiction
| Owner: | ELSOM GARRETT P J | | |
| % Ownership: | 100.0000000000% | | |
| Total Value: | $338,380 | | |
| Tax Area: | 77 - CP-250-F |
| CERFD | CURRENT EXPENSE REFUND 010 | 0.0000000000 | $338,380 | $338,380 | $0.00 | | |
| CURREXP | CURRENT EXPENSE 010 | 1.0175366760 | $338,380 | $338,380 | $344.31 | | |
| HUMNSERV | HUMAN SERVICES 119 | 0.0250000000 | $338,380 | $338,380 | $8.46 | | |
| SLDREL | SOLDIERS RELIEF 121 | 0.0155990005 | $338,380 | $338,380 | $5.28 | | |
| COLLPLBOND | C OF CP BOND 644 | 0.4374241808 | $338,380 | $338,380 | $148.02 | | |
| COLLPLGEN | CITY OF CP 632 | 1.4453819216 | $338,380 | $338,380 | $489.09 | | |
| EMERGSER | EMS 147 | 0.3792580840 | $338,380 | $338,380 | $128.33 | | |
| EMSRFD | EMS REFUND 147 | 0.0000000000 | $338,380 | $338,380 | $0.00 | | |
| RURALLIB | RURAL LIBRARY 623 | 0.3710609029 | $338,380 | $338,380 | $125.56 | | |
| PORTRFD | PORT REFUND 640 | 0.0000000000 | $338,380 | $338,380 | $0.00 | | |
| PORTWWGEN | PORT OF WW 640 | 0.2460186015 | $338,380 | $338,380 | $83.25 | | |
| SD250BOND | SD #250 BOND 773 | 1.4560608159 | $338,380 | $338,380 | $492.70 | | |
| SD250GEN | SD #250 GENERAL 770 | 2.3880724087 | $338,380 | $338,380 | $808.08 | | |
| ST2 | STATE SCHOOL PART 2 600 | 0.8131451643 | $338,380 | $338,380 | $275.15 | | |
| STATESCHL | STATE SCHOOL 600 | 1.5158548041 | $338,380 | $338,380 | $512.93 | | |
| STREFUND | STATE REFUND LEVY 603 | 0.0000000000 | $338,380 | $338,380 | $0.00 | | |
| | Total Tax Rate: | 10.1104125603 | | | | | |
| | | | | Taxes w/Current Exemptions: | $3,421.16 | | |
| | | | | Taxes w/o Exemptions: | $3,421.16 | | |
Improvement / Building
| Improvement #1: | RESIDENTIAL | State Code: | 11 | 1521.0 sqft | Value: | $268,380 |
| Exterior Wall: | PLYWOOD | Heating/Cooling: | REV-HEAT-PUMP-W/DUCT | | Number of Bathrooms: | 2 | Number of Bedrooms: | 3 | | Plumbing: | 9 | Roof Covering: | COMP SHINGLE |
|
| | Type | Description | Class CD | Sub Class CD | Year Built | Area |
| | MA | Main Area | 1 | 35 | 1993 | 1521.0 |
| | SI1 | SITE IMPROVEMENT | 1 | 35 | 1993 | 2.0 |
| | ATG | Attached Garage | 1 | 35 | 1993 | 460.0 |
| | PRC | PORCH W STEPS, ROOF,CEILED | 1 | 35 | 1993 | 36.0 |
| | ATG | Attached Garage | 1 | 35 | 2008 | 168.0 |
Sketch
Property Image
Land
| 1 | RES 1 | Converted: Residential | 0.2273 | 9900.00 | 0.00 | 0.00 | 1.00 | $70,000 | $0 |
Roll Value History
| 2025 | N/A | N/A | N/A | N/A | N/A |
| 2024 | $268,380 | $70,000 | $0 | $338,380 | $338,380 |
| 2023 | $268,380 | $70,000 | $0 | $338,380 | $338,380 |
| 2022 | $268,380 | $70,000 | $0 | $338,380 | $338,380 |
| 2021 | $233,380 | $70,000 | $0 | $303,380 | $303,380 |
| 2020 | $179,520 | $70,000 | $0 | $249,520 | $249,520 |
| 2019 | $194,520 | $55,000 | $0 | $249,520 | $249,520 |
| 2018 | $185,250 | $55,000 | $0 | $240,250 | $240,250 |
| 2017 | $148,200 | $55,000 | $0 | $203,200 | $203,200 |
| 2016 | $134,730 | $55,000 | $0 | $189,730 | $189,730 |
| 2015 | $134,730 | $55,000 | $0 | $189,730 | $189,730 |
| 2014 | $149,700 | $55,000 | $0 | $204,700 | $204,700 |
| 2013 | $149,700 | $55,000 | $0 | $204,700 | $204,700 |
| 2012 | $149,700 | $55,000 | $0 | $0 | $0 |
| 2011 | $149,700 | $55,000 | $0 | $0 | $0 |
| 2010 | $149,700 | $55,000 | $0 | $0 | $0 |
| 2009 | $155,800 | $55,000 | $0 | $0 | $0 |
| 2008 | $117,700 | $30,000 | $0 | $0 | $0 |
| 2007 | $117,700 | $30,000 | $0 | $0 | $0 |
| 2006 | $117,700 | $30,000 | $0 | $0 | $0 |
Deed and Sales History
| 1 | 07/08/2022 | SWD | STATUTORY WARRANTY DEED | OJEDA REUBEN & DELILA C | ELSOM GARRETT P J | | | $340,000.00 | 144264 | 2022-05771 |
| 2 | 09/07/1993 | WARRANTY D | WARRANTY DEED | | | | | $112,000.00 | 79925 | 2109-309242 |
Payout Agreement
| No payout information available.. |