Property
Account |
| Property ID: | 45121 | Abbreviated Legal Description: | 2-6-34 SW1/4 LY ELY OF FROG HOLLOW VIEW TRACTS, LESS TAX 2, 3 &PARCEL 8 & LESS RDS; W1/2SE1/4, LESS RDS |
| Parcel Number: | 340602310008 | Agent Code: | |
| Type: | Real | | |
| Tax Area: | 311 - 250-4 | Land Use Code | 83 |
| Open Space: | Y | DFL | N |
| Historic Property: | N | Remodel Property: | N |
| Multi-Family Redevelopment: | N | | |
| Township: | 6 | Section: | 2 |
| Range: | 34 |
Location |
| Address: | 4998 FROG HOLLOW RD WA 99324 | Mapsco: | |
| Neighborhood: | 0 Farm | Map ID: | |
| Neighborhood CD: | 2220 |
Owner |
| Name: | MC CAW RANCHES INC | Owner ID: | 18193 |
| Mailing Address: | 2825 WINONA LANE WALLA WALLA, WA 99362 | % Ownership: | 100.0000000000% |
| | | Exemptions: | |
Taxes and Assessment Details
Values
| (+) Improvement Homesite Value: | + | $0 | |
| (+) Improvement Non-Homesite Value: | + | $24,100 | |
| (+) Land Homesite Value: | + | $0 | |
| (+) Land Non-Homesite Value: | + | $0 | |
| (+) Curr Use (HS): | + | $0 | $0 |
| (+) Curr Use (NHS): | + | $829,820 | $174,260 |
| | | -------------------------- | |
| (=) Market Value: | = | $853,920 | |
| (–) Productivity Loss: | – | $655,560 | |
| | | -------------------------- | |
| (=) Subtotal: | = | $198,360 | |
| (+) Senior Appraised Value: | + | $0 | |
| (+) Non-Senior Appraised Value: | + | $198,360 | |
| | | -------------------------- | |
| (=) Total Appraised Value: | = | $198,360 | |
| (–) Senior Exemption Loss: | – | $0 | |
| (–) Exemption Loss: | – | $0 | |
| | | -------------------------- | |
| (=) Taxable Value: | = | $198,360 | |
Taxing Jurisdiction
| Owner: | MC CAW RANCHES INC | | |
| % Ownership: | 100.0000000000% | | |
| Total Value: | $853,920 | | |
| Tax Area: | 311 - 250-4 |
| CERFD | CURRENT EXPENSE REFUND 010 | 0.0000000000 | $198,360 | $198,360 | $0.00 | | |
| CURREXP | CURRENT EXPENSE 010 | 1.0175366760 | $198,360 | $198,360 | $201.84 | | |
| HUMNSERV | HUMAN SERVICES 119 | 0.0250000000 | $198,360 | $198,360 | $4.96 | | |
| SLDREL | SOLDIERS RELIEF 121 | 0.0155990005 | $198,360 | $198,360 | $3.09 | | |
| EMERGSER | EMS 147 | 0.3792580840 | $198,360 | $198,360 | $75.23 | | |
| EMSRFD | EMS REFUND 147 | 0.0000000000 | $198,360 | $198,360 | $0.00 | | |
| FD4EXP | FD #4 EXPENSE 686 | 0.8836993059 | $198,360 | $198,360 | $175.29 | | |
| RLBRFD | RURAL LIBRARY REFUND 623 | 0.0000000000 | $198,360 | $198,360 | $0.00 | | |
| RURALLIB | RURAL LIBRARY 623 | 0.3710609029 | $198,360 | $198,360 | $73.60 | | |
| PORTRFD | PORT REFUND 640 | 0.0000000000 | $198,360 | $198,360 | $0.00 | | |
| PORTWWGEN | PORT OF WW 640 | 0.2460186015 | $198,360 | $198,360 | $48.80 | | |
| SD250BOND | SD #250 BOND 773 | 1.4560608159 | $198,360 | $198,360 | $288.82 | | |
| SD250GEN | SD #250 GENERAL 770 | 2.3880724087 | $198,360 | $198,360 | $473.70 | | |
| ST2 | STATE SCHOOL PART 2 600 | 0.8131451643 | $198,360 | $198,360 | $161.30 | | |
| STATESCHL | STATE SCHOOL 600 | 1.5158548041 | $198,360 | $198,360 | $300.68 | | |
| STREFUND | STATE REFUND LEVY 603 | 0.0000000000 | $198,360 | $198,360 | $0.00 | | |
| COROAD | COUNTY ROAD 115 | 1.6549953990 | $198,360 | $198,360 | $328.28 | | |
| CRPRD | COUNTY ROAD REFUND 115 | 0.0000000000 | $198,360 | $198,360 | $0.00 | | |
| | Total Tax Rate: | 10.7663011628 | | | | | |
| | | | | Taxes w/Current Exemptions: | $2,135.59 | | |
| | | | | Taxes w/o Exemptions: | $2,135.59 | | |
Improvement / Building
| Improvement #1: | RESIDENTIAL | State Code: | 83 | 0.0 sqft | Value: | $24,100 |
| | Type | Description | Class CD | Sub Class CD | Year Built | Area |
| | BARN | BARN-AVE | 1 | 20 | 1940 | 2400.0 |
| | SHOP | SHOP BUILDING | 1 | 30 | 1960 | 1600.0 |
| | HAYSHED | HAYSHED | 1 | 20 | 1960 | 3200.0 |
| | LOAF-SHED | LOAFING SHED | 1 | 20 | 1979 | 8640.0 |
| | LOAF-SHED | LOAFING SHED | 1 | 20 | 1960 | 1840.0 |
| | UTILITY | UTILITY BUILDING | 1 | 20 | 1950 | 696.0 |
| | UTILITY | UTILITY BUILDING | 1 | 20 | 1950 | 666.0 |
| | UTIL-STOR | UTILITY STORAGE | 1 | 10 | 1940 | 672.0 |
| | LOAF-SHED | LOAFING SHED | 1 | 10 | 1960 | 8000.0 |
Sketch
Property Image
Land
| 1 | C2-I | Class 2 Irrigated | 153.6700 | 0.00 | 0.00 | 0.00 | 1.00 | $829,820 | $174,260 |
| 2 | WASTE | Waste | 24.2100 | 0.00 | 0.00 | 0.00 | 1.00 | $0 | $0 |
Roll Value History
| 2025 | N/A | N/A | N/A | N/A | N/A |
| 2024 | $24,100 | $860,550 | $175,180 | $199,280 | $199,280 |
| 2023 | $24,100 | $829,820 | $174,260 | $198,360 | $198,360 |
| 2022 | $24,100 | $768,350 | $168,120 | $192,220 | $192,220 |
| 2021 | $24,100 | $691,520 | $171,340 | $195,440 | $195,440 |
| 2020 | $18,300 | $553,210 | $174,880 | $193,180 | $193,180 |
| 2019 | $18,300 | $491,740 | $180,410 | $198,710 | $198,710 |
| 2018 | $18,300 | $476,380 | $183,790 | $202,090 | $202,090 |
Deed and Sales History
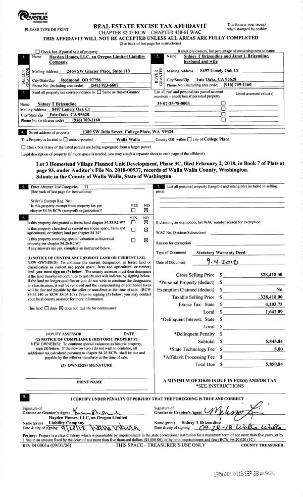
| 1 | 10/03/2018 | WARRANTY D | WARRANTY DEED | | MC CAW RANCHES INC | | | $0.00 | 135684 | 2018-08249 |
| 2 | 01/23/2002 | WARRANTY D | WARRANTY DEED | | | | | $0.00 | 98786 | 3270-200780 |
Payout Agreement
| No payout information available.. |