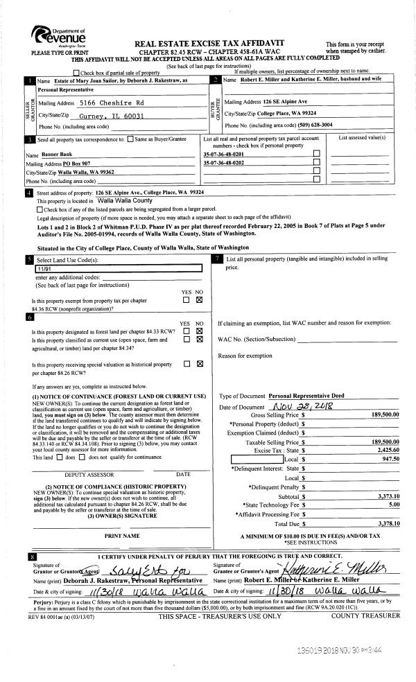
Property
Account |
| Property ID: | 4488 | Abbreviated Legal Description: | SCENIC VIEW LOT 34 AND E1/2 OF LOT 35 BLK 7 |
| Parcel Number: | 350736580734 | Agent Code: | |
| Type: | Real | | |
| Tax Area: | 75 - CP 250 | Land Use Code | 11 |
| Open Space: | N | DFL | N |
| Historic Property: | N | Remodel Property: | N |
| Multi-Family Redevelopment: | N | | |
| Township: | 7 | Section: | 36 |
| Range: | 35 |
Location |
| Address: | 411 SE MOUNTAIN VIEW DR WA 99324 | Mapsco: | |
| Neighborhood: | A SFR | Map ID: | |
| Neighborhood CD: | 113011 |
Owner |
| Name: | HAYS BENJAMIN | Owner ID: | 55540 |
| Mailing Address: | 2165 E 6630 S SALT LAKE CITY, UT 84121 | % Ownership: | 100.0000000000% |
| | | Exemptions: | |
Taxes and Assessment Details
Values
| (+) Improvement Homesite Value: | + | $0 | |
| (+) Improvement Non-Homesite Value: | + | $204,550 | |
| (+) Land Homesite Value: | + | $0 | |
| (+) Land Non-Homesite Value: | + | $60,750 | |
| (+) Curr Use (HS): | + | $0 | $0 |
| (+) Curr Use (NHS): | + | $0 | $0 |
| | | -------------------------- | |
| (=) Market Value: | = | $265,300 | |
| (–) Productivity Loss: | – | $0 | |
| | | -------------------------- | |
| (=) Subtotal: | = | $265,300 | |
| (+) Senior Appraised Value: | + | $0 | |
| (+) Non-Senior Appraised Value: | + | $265,300 | |
| | | -------------------------- | |
| (=) Total Appraised Value: | = | $265,300 | |
| (–) Senior Exemption Loss: | – | $0 | |
| (–) Exemption Loss: | – | $0 | |
| | | -------------------------- | |
| (=) Taxable Value: | = | $265,300 | |
Taxing Jurisdiction
| Owner: | HAYS BENJAMIN | | |
| % Ownership: | 100.0000000000% | | |
| Total Value: | $265,300 | | |
| Tax Area: | 75 - CP 250 |
| CERFD | CURRENT EXPENSE REFUND 010 | 0.0000000000 | $265,300 | $265,300 | $0.00 | | |
| CURREXP | CURRENT EXPENSE 010 | 1.0175366760 | $265,300 | $265,300 | $269.95 | | |
| HUMNSERV | HUMAN SERVICES 119 | 0.0250000000 | $265,300 | $265,300 | $6.63 | | |
| SLDREL | SOLDIERS RELIEF 121 | 0.0155990005 | $265,300 | $265,300 | $4.14 | | |
| COLLPLBOND | C OF CP BOND 644 | 0.4374241808 | $265,300 | $265,300 | $116.05 | | |
| COLLPLGEN | CITY OF CP 632 | 1.4453819216 | $265,300 | $265,300 | $383.46 | | |
| EMERGSER | EMS 147 | 0.3792580840 | $265,300 | $265,300 | $100.62 | | |
| EMSRFD | EMS REFUND 147 | 0.0000000000 | $265,300 | $265,300 | $0.00 | | |
| RURALLIB | RURAL LIBRARY 623 | 0.3710609029 | $265,300 | $265,300 | $98.44 | | |
| PORTRFD | PORT REFUND 640 | 0.0000000000 | $265,300 | $265,300 | $0.00 | | |
| PORTWWGEN | PORT OF WW 640 | 0.2460186015 | $265,300 | $265,300 | $65.27 | | |
| SD250BOND | SD #250 BOND 773 | 1.4560608159 | $265,300 | $265,300 | $386.29 | | |
| SD250GEN | SD #250 GENERAL 770 | 2.3880724087 | $265,300 | $265,300 | $633.56 | | |
| ST2 | STATE SCHOOL PART 2 600 | 0.8131451643 | $265,300 | $265,300 | $215.73 | | |
| STATESCHL | STATE SCHOOL 600 | 1.5158548041 | $265,300 | $265,300 | $402.16 | | |
| STREFUND | STATE REFUND LEVY 603 | 0.0000000000 | $265,300 | $265,300 | $0.00 | | |
| | Total Tax Rate: | 10.1104125603 | | | | | |
| | | | | Taxes w/Current Exemptions: | $2,682.30 | | |
| | | | | Taxes w/o Exemptions: | $2,682.30 | | |
Improvement / Building
| Improvement #1: | RESIDENTIAL | State Code: | 11 | 1035.0 sqft | Value: | $204,550 |
| Exterior Wall: | VINYL | Heating/Cooling: | WARM & COOLED AIR | | Number of Bathrooms: | 1 | Number of Bedrooms: | 2 | | Plumbing: | 6 | Roof Covering: | COMP SHINGLE |
|
| | Type | Description | Class CD | Sub Class CD | Year Built | Area |
| | MA | Main Area | 1 | 30 | 1948 | 1035.0 |
| | SI1 | SITE IMPROVEMENT | 1 | 30 | 1948 | 1.5 |
| | DTG | Detached Garage | 1 | 30 | 1948 | 400.0 |
| | WDR | WOOD DECK W/ROOF | 1 | 30 | 1948 | 192.0 |
| | RPO | OPEN PORCH W/ROOF | 1 | 30 | 1948 | 44.0 |
Sketch
Property Image
Land
| 1 | RES 1 | Converted: Residential | 0.2066 | 9000.00 | 0.00 | 0.00 | 1.00 | $60,750 | $0 |
Roll Value History
| 2025 | N/A | N/A | N/A | N/A | N/A |
| 2024 | $214,780 | $60,750 | $0 | $275,530 | $275,530 |
| 2023 | $204,550 | $60,750 | $0 | $265,300 | $265,300 |
| 2022 | $177,870 | $60,750 | $0 | $238,620 | $238,620 |
| 2021 | $148,230 | $60,750 | $0 | $208,980 | $208,980 |
| 2020 | $118,580 | $60,750 | $0 | $179,330 | $179,330 |
| 2019 | $133,030 | $46,300 | $0 | $179,330 | $179,330 |
| 2018 | $102,330 | $46,300 | $0 | $148,630 | $148,630 |
| 2017 | $99,350 | $46,300 | $0 | $145,650 | $145,650 |
| 2016 | $94,620 | $46,300 | $0 | $140,920 | $140,920 |
| 2015 | $86,020 | $46,300 | $0 | $132,320 | $132,320 |
| 2014 | $78,200 | $46,300 | $0 | $124,500 | $124,500 |
| 2013 | $78,200 | $46,300 | $0 | $124,500 | $124,500 |
| 2012 | $86,100 | $46,300 | $0 | $0 | $0 |
| 2011 | $86,100 | $46,300 | $0 | $0 | $0 |
| 2010 | $79,800 | $46,300 | $0 | $0 | $0 |
| 2009 | $93,800 | $46,300 | $0 | $0 | $0 |
| 2008 | $58,000 | $23,800 | $0 | $0 | $0 |
| 2007 | $58,000 | $23,800 | $0 | $0 | $0 |
| 2006 | $58,000 | $23,800 | $0 | $0 | $0 |
Deed and Sales History
| 1 | 09/11/2014 | QCD | QUIT CLAIM DEED | HAYS BENJAMIN | HAYS BENJAMIN | | | | 126660 | 2014-06811 |
| 2 | 04/17/2006 | WARRANTY D | WARRANTY DEED | WANTLAND, BENJAMIN | HAYS, BENJAMIN | | | $125,000.00 | 110050 | 2006-04345 |
| 3 | 11/02/1982 | WARRANTY D | WARRANTY DEED | | | | | $0.00 | 0 | 1358-207534 |
Payout Agreement
| No payout information available.. |