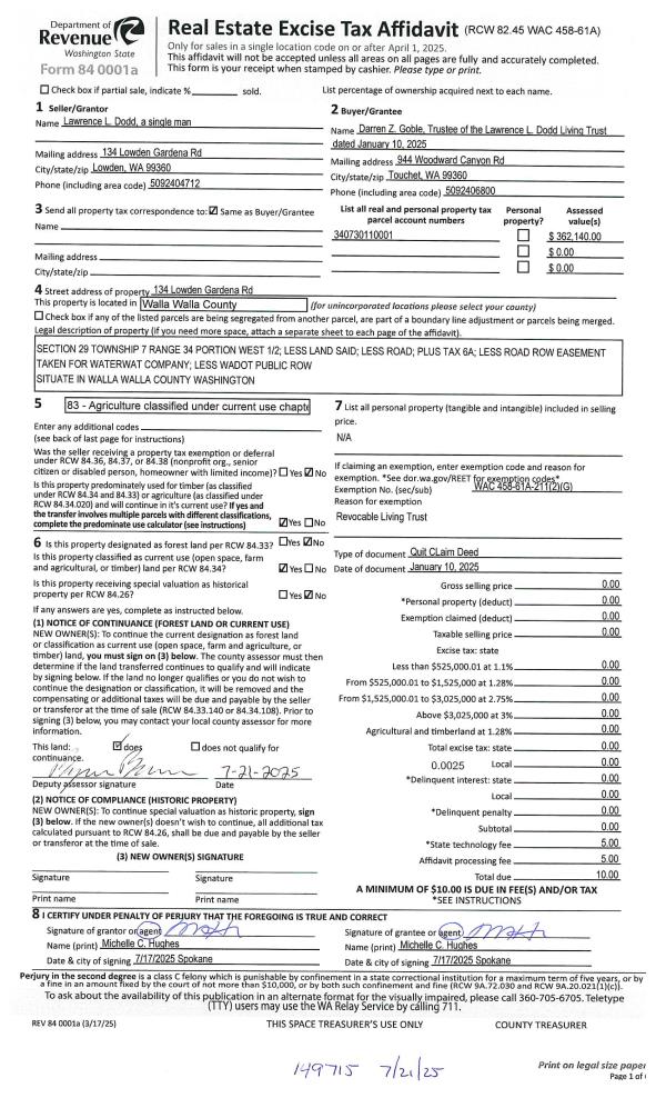
Property
Account |
| Property ID: | 4456 | Abbreviated Legal Description: | SCENIC VIEW LOT 16 BLK 4 |
| Parcel Number: | 350736580416 | Agent Code: | |
| Type: | Real | | |
| Tax Area: | 75 - CP 250 | Land Use Code | 11 |
| Open Space: | N | DFL | N |
| Historic Property: | N | Remodel Property: | N |
| Multi-Family Redevelopment: | N | | |
| Township: | 7 | Section: | 36 |
| Range: | 35 |
Location |
| Address: | 308 SE SCENIC VIEW DR WA 99324 | Mapsco: | |
| Neighborhood: | A SFR | Map ID: | |
| Neighborhood CD: | 113011 |
Owner |
| Name: | CATON WALTER F & LAURIE A | Owner ID: | 4613 |
| Mailing Address: | 254 THUNDER RIDGE DR WALLA WALLA, WA 99362 | % Ownership: | 100.0000000000% |
| | | Exemptions: | |
Taxes and Assessment Details
Values
| (+) Improvement Homesite Value: | + | $0 | |
| (+) Improvement Non-Homesite Value: | + | $146,320 | |
| (+) Land Homesite Value: | + | $0 | |
| (+) Land Non-Homesite Value: | + | $44,550 | |
| (+) Curr Use (HS): | + | $0 | $0 |
| (+) Curr Use (NHS): | + | $0 | $0 |
| | | -------------------------- | |
| (=) Market Value: | = | $190,870 | |
| (–) Productivity Loss: | – | $0 | |
| | | -------------------------- | |
| (=) Subtotal: | = | $190,870 | |
| (+) Senior Appraised Value: | + | $0 | |
| (+) Non-Senior Appraised Value: | + | $190,870 | |
| | | -------------------------- | |
| (=) Total Appraised Value: | = | $190,870 | |
| (–) Senior Exemption Loss: | – | $0 | |
| (–) Exemption Loss: | – | $0 | |
| | | -------------------------- | |
| (=) Taxable Value: | = | $190,870 | |
Taxing Jurisdiction
| Owner: | CATON WALTER F & LAURIE A | | |
| % Ownership: | 100.0000000000% | | |
| Total Value: | $190,870 | | |
| Tax Area: | 75 - CP 250 |
| CERFD | CURRENT EXPENSE REFUND 010 | 0.0000000000 | $190,870 | $190,870 | $0.00 | | |
| CURREXP | CURRENT EXPENSE 010 | 1.0175366760 | $190,870 | $190,870 | $194.22 | | |
| HUMNSERV | HUMAN SERVICES 119 | 0.0250000000 | $190,870 | $190,870 | $4.77 | | |
| SLDREL | SOLDIERS RELIEF 121 | 0.0155990005 | $190,870 | $190,870 | $2.98 | | |
| COLLPLBOND | C OF CP BOND 644 | 0.4374241808 | $190,870 | $190,870 | $83.49 | | |
| COLLPLGEN | CITY OF CP 632 | 1.4453819216 | $190,870 | $190,870 | $275.88 | | |
| EMERGSER | EMS 147 | 0.3792580840 | $190,870 | $190,870 | $72.39 | | |
| EMSRFD | EMS REFUND 147 | 0.0000000000 | $190,870 | $190,870 | $0.00 | | |
| RURALLIB | RURAL LIBRARY 623 | 0.3710609029 | $190,870 | $190,870 | $70.82 | | |
| PORTRFD | PORT REFUND 640 | 0.0000000000 | $190,870 | $190,870 | $0.00 | | |
| PORTWWGEN | PORT OF WW 640 | 0.2460186015 | $190,870 | $190,870 | $46.96 | | |
| SD250BOND | SD #250 BOND 773 | 1.4560608159 | $190,870 | $190,870 | $277.92 | | |
| SD250GEN | SD #250 GENERAL 770 | 2.3880724087 | $190,870 | $190,870 | $455.81 | | |
| ST2 | STATE SCHOOL PART 2 600 | 0.8131451643 | $190,870 | $190,870 | $155.21 | | |
| STATESCHL | STATE SCHOOL 600 | 1.5158548041 | $190,870 | $190,870 | $289.33 | | |
| STREFUND | STATE REFUND LEVY 603 | 0.0000000000 | $190,870 | $190,870 | $0.00 | | |
| | Total Tax Rate: | 10.1104125603 | | | | | |
| | | | | Taxes w/Current Exemptions: | $1,929.78 | | |
| | | | | Taxes w/o Exemptions: | $1,929.78 | | |
Improvement / Building
| Improvement #1: | RESIDENTIAL | State Code: | 11 | 768.0 sqft | Value: | $146,320 |
| Exterior Wall: | VINYL | Heating/Cooling: | REV-HEAT-PUMP-W/DUCT | | Number of Bathrooms: | 1 | Number of Bedrooms: | 2 | | Plumbing: | 6 | Roof Covering: | COMP SHINGLE |
|
| | Type | Description | Class CD | Sub Class CD | Year Built | Area |
| | MA | Main Area | 1 | 30 | 1950 | 768.0 |
| | SI1 | SITE IMPROVEMENT | 1 | 30 | 1950 | 1.0 |
| | DTG | Detached Garage | 1 | 30 | 1950 | 392.0 |
| | RPO | OPEN PORCH W/ROOF | 1 | 30 | 1950 | 20.0 |
Sketch
Property Image
Land
| 1 | RES 1 | Converted: Residential | 0.1515 | 6600.00 | 0.00 | 0.00 | 1.00 | $44,550 | $0 |
Roll Value History
| 2025 | N/A | N/A | N/A | N/A | N/A |
| 2024 | $204,850 | $44,550 | $0 | $249,400 | $249,400 |
| 2023 | $146,320 | $44,550 | $0 | $190,870 | $190,870 |
| 2022 | $127,240 | $44,550 | $0 | $171,790 | $171,790 |
| 2021 | $106,030 | $44,550 | $0 | $150,580 | $150,580 |
| 2020 | $66,270 | $44,550 | $0 | $110,820 | $110,820 |
| 2019 | $71,220 | $39,600 | $0 | $110,820 | $110,820 |
| 2018 | $59,350 | $39,600 | $0 | $98,950 | $98,950 |
| 2017 | $57,620 | $39,600 | $0 | $97,220 | $97,220 |
| 2016 | $57,620 | $39,600 | $0 | $97,220 | $97,220 |
| 2015 | $52,380 | $39,600 | $0 | $91,980 | $91,980 |
| 2014 | $58,200 | $39,600 | $0 | $97,800 | $97,800 |
| 2013 | $58,200 | $39,600 | $0 | $97,800 | $97,800 |
| 2012 | $69,100 | $39,600 | $0 | $0 | $0 |
| 2011 | $69,100 | $39,600 | $0 | $0 | $0 |
| 2010 | $63,900 | $39,600 | $0 | $0 | $0 |
| 2009 | $75,400 | $39,600 | $0 | $0 | $0 |
| 2008 | $47,300 | $19,800 | $0 | $0 | $0 |
| 2007 | $47,300 | $19,800 | $0 | $0 | $0 |
| 2006 | $47,300 | $19,800 | $0 | $0 | $0 |
Deed and Sales History
| 1 | 05/30/2025 | SWD | STATUTORY WARRANTY DEED | CATON WALTER F & LAURIE A | CURNUCK CHERITH & MAURICIO ANDRES VELIS REALES | | | $225,000.00 | 149464 | 2025-03033 |
| 2 | 12/11/1997 | WARRANTY D | WARRANTY DEED | | | | | $55,000.00 | 89512 | 2609-712149 |
Payout Agreement
| No payout information available.. |